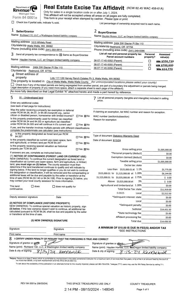
Property
Account |
| Property ID: | 10142 | Abbreviated Legal Description: | MTN VIEW LOT 16 BLK 12 |
| Parcel Number: | 360728851216 | Agent Code: | |
| Type: | Real | | |
| Tax Area: | 1 - OL-140-F | Land Use Code | 11 |
| Open Space: | N | DFL | N |
| Historic Property: | N | Remodel Property: | N |
| Multi-Family Redevelopment: | N | | |
| Township: | 7 | Section: | 28 |
| Range: | 36 |
Location |
| Address: | 515 CLAY ST WA 99362 | Mapsco: | |
| Neighborhood: | A Res | Map ID: | |
| Neighborhood CD: | 613011 |
Owner |
| Name: | BYRD LAURA L | Owner ID: | 41787 |
| Mailing Address: | 307 S 9TH AVE # 305 WALLA WALLA, WA 99362 | % Ownership: | 100.0000000000% |
| | | Exemptions: | |
Taxes and Assessment Details
Values
| (+) Improvement Homesite Value: | + | $0 | |
| (+) Improvement Non-Homesite Value: | + | $294,220 | |
| (+) Land Homesite Value: | + | $0 | |
| (+) Land Non-Homesite Value: | + | $51,750 | |
| (+) Curr Use (HS): | + | $0 | $0 |
| (+) Curr Use (NHS): | + | $0 | $0 |
| | | -------------------------- | |
| (=) Market Value: | = | $345,970 | |
| (–) Productivity Loss: | – | $0 | |
| | | -------------------------- | |
| (=) Subtotal: | = | $345,970 | |
| (+) Senior Appraised Value: | + | $0 | |
| (+) Non-Senior Appraised Value: | + | $345,970 | |
| | | -------------------------- | |
| (=) Total Appraised Value: | = | $345,970 | |
| (–) Senior Exemption Loss: | – | $0 | |
| (–) Exemption Loss: | – | $0 | |
| | | -------------------------- | |
| (=) Taxable Value: | = | $345,970 | |
Taxing Jurisdiction
| Owner: | BYRD LAURA L | | |
| % Ownership: | 100.0000000000% | | |
| Total Value: | $345,970 | | |
| Tax Area: | 1 - OL-140-F |
| CERFD | CURRENT EXPENSE REFUND 010 | 0.0000000000 | $345,970 | $345,970 | $0.00 | | |
| CURREXP | CURRENT EXPENSE 010 | 1.0175366760 | $345,970 | $345,970 | $352.04 | | |
| HUMNSERV | HUMAN SERVICES 119 | 0.0250000000 | $345,970 | $345,970 | $8.65 | | |
| SLDREL | SOLDIERS RELIEF 121 | 0.0155990005 | $345,970 | $345,970 | $5.40 | | |
| EMERGSER | EMS 147 | 0.3792580840 | $345,970 | $345,970 | $131.21 | | |
| EMSRFD | EMS REFUND 147 | 0.0000000000 | $345,970 | $345,970 | $0.00 | | |
| PORTRFD | PORT REFUND 640 | 0.0000000000 | $345,970 | $345,970 | $0.00 | | |
| PORTWWGEN | PORT OF WW 640 | 0.2460186015 | $345,970 | $345,970 | $85.12 | | |
| SD140BOND | SD #140 BOND 764 | 0.8342371393 | $345,970 | $345,970 | $288.62 | | |
| SD140GEN | SD #140 GENERAL 760 | 2.0646500647 | $345,970 | $345,970 | $714.31 | | |
| ST2 | STATE SCHOOL PART 2 600 | 0.8131451643 | $345,970 | $345,970 | $281.32 | | |
| STATESCHL | STATE SCHOOL 600 | 1.5158548041 | $345,970 | $345,970 | $524.44 | | |
| STREFUND | STATE REFUND LEVY 603 | 0.0000000000 | $345,970 | $345,970 | $0.00 | | |
| CWWBOND | C OF WW BOND 643 | 0.2760494372 | $345,970 | $345,970 | $95.50 | | |
| CWWGEN | CITY OF WW 631 | 1.6100204973 | $345,970 | $345,970 | $557.02 | | |
| CWWRFD | CITY OF WALLA WALLA REFUND 631 | 0.0000000000 | $345,970 | $345,970 | $0.00 | | |
| | Total Tax Rate: | 8.7973694689 | | | | | |
| | | | | Taxes w/Current Exemptions: | $3,043.63 | | |
| | | | | Taxes w/o Exemptions: | $3,043.63 | | |
Improvement / Building
| Improvement #1: | RESIDENTIAL | State Code: | 11 | 949.0 sqft | Value: | $294,220 |
| Exterior Wall: | STUCCO | Heating/Cooling: | FORCED AIR | | Number of Bathrooms: | 2 | Number of Bedrooms: | 3 | | Plumbing: | 9 | Roof Covering: | COMP SHINGLE |
|
| | Type | Description | Class CD | Sub Class CD | Year Built | Area |
| | MA | Main Area | 1 | 30 | 1951 | 949.0 |
| | SI1 | SITE IMPROVEMENT | 1 | 30 | 1951 | 2.0 |
| | BASE | BASEMENT | 1 | 30 | 1951 | 949.0 |
| | BPF | BASEMENT -PARTITIONED FINISH | 1 | 30 | 1951 | 949.0 |
| | DTG | Detached Garage | 1 | 30 | 1951 | 260.0 |
| | CPC | COVERED CARPORT/PATIO | 1 | 30 | 1951 | 168.0 |
| | PRC | PORCH W STEPS, ROOF,CEILED | 1 | 30 | 1951 | 20.0 |
| | CPCD | CARPORT/DIRT FLOOR | 1 | 30 | 1951 | 180.0 |
Sketch
Property Image
Land
| 1 | RES 1 | Converted: Residential | 0.1320 | 5750.00 | 0.00 | 0.00 | 1.00 | $51,750 | $0 |
Roll Value History
| 2025 | N/A | N/A | N/A | N/A | N/A |
| 2024 | $294,220 | $51,750 | $0 | $345,970 | $345,970 |
| 2023 | $294,220 | $51,750 | $0 | $345,970 | $345,970 |
| 2022 | $245,190 | $41,690 | $0 | $286,880 | $286,880 |
| 2021 | $188,600 | $41,690 | $0 | $230,290 | $230,290 |
| 2020 | $145,080 | $41,690 | $0 | $186,770 | $186,770 |
| 2019 | $145,080 | $41,690 | $0 | $186,770 | $186,770 |
| 2018 | $138,480 | $34,500 | $0 | $172,980 | $172,980 |
| 2017 | $138,480 | $34,500 | $0 | $172,980 | $172,980 |
| 2016 | $115,400 | $34,500 | $0 | $149,900 | $149,900 |
| 2015 | $115,400 | $34,500 | $0 | $149,900 | $149,900 |
| 2014 | $115,400 | $34,500 | $0 | $149,900 | $149,900 |
| 2013 | $115,400 | $34,500 | $0 | $149,900 | $149,900 |
| 2012 | $112,300 | $34,500 | $0 | $0 | $0 |
| 2011 | $112,300 | $34,500 | $0 | $0 | $0 |
| 2010 | $105,300 | $34,500 | $0 | $0 | $0 |
| 2009 | $120,800 | $34,500 | $0 | $0 | $0 |
| 2008 | $120,800 | $34,500 | $0 | $0 | $0 |
| 2007 | $72,100 | $17,300 | $0 | $0 | $0 |
| 2006 | $72,100 | $17,300 | $0 | $0 | $0 |
Deed and Sales History
| 1 | 01/27/2006 | WARRANTY D | WARRANTY DEED | ASTLE, CLARA M LIFE ESTATE | BYRD, LAURA L | | | $155,000.00 | 109554 | 2006-01070 |
| 2 | 11/29/1983 | WARRANTY D | WARRANTY DEED | | | | | $48,000.00 | 0 | 1418-308518 |
Payout Agreement
| No payout information available.. |