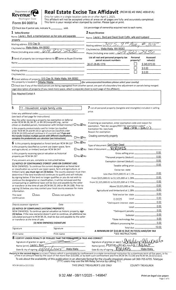
Property
Account |
| Property ID: | 10095 | Abbreviated Legal Description: | MTN VIEW LOT 5 BLK 1 |
| Parcel Number: | 360728850125 | Agent Code: | |
| Type: | Real | | |
| Tax Area: | 1 - OL-140-F | Land Use Code | 11 |
| Open Space: | N | DFL | N |
| Historic Property: | N | Remodel Property: | N |
| Multi-Family Redevelopment: | N | | |
| Township: | 7 | Section: | 28 |
| Range: | 36 |
Location |
| Address: | 516 BRYANT AVE WA 99362 | Mapsco: | |
| Neighborhood: | A Res | Map ID: | |
| Neighborhood CD: | 613011 |
Owner |
| Name: | REYES SANTIAGO | Owner ID: | 72515 |
| Mailing Address: | 516 BRYANT AVE WALLA WALLA, WA 99362 | % Ownership: | 100.0000000000% |
| | | Exemptions: | |
Taxes and Assessment Details
Values
| (+) Improvement Homesite Value: | + | $0 | |
| (+) Improvement Non-Homesite Value: | + | $222,080 | |
| (+) Land Homesite Value: | + | $0 | |
| (+) Land Non-Homesite Value: | + | $51,750 | |
| (+) Curr Use (HS): | + | $0 | $0 |
| (+) Curr Use (NHS): | + | $0 | $0 |
| | | -------------------------- | |
| (=) Market Value: | = | $273,830 | |
| (–) Productivity Loss: | – | $0 | |
| | | -------------------------- | |
| (=) Subtotal: | = | $273,830 | |
| (+) Senior Appraised Value: | + | $0 | |
| (+) Non-Senior Appraised Value: | + | $273,830 | |
| | | -------------------------- | |
| (=) Total Appraised Value: | = | $273,830 | |
| (–) Senior Exemption Loss: | – | $0 | |
| (–) Exemption Loss: | – | $0 | |
| | | -------------------------- | |
| (=) Taxable Value: | = | $273,830 | |
Taxing Jurisdiction
| Owner: | REYES SANTIAGO | | |
| % Ownership: | 100.0000000000% | | |
| Total Value: | $273,830 | | |
| Tax Area: | 1 - OL-140-F |
| CERFD | CURRENT EXPENSE REFUND 010 | 0.0000000000 | $273,830 | $273,830 | $0.00 | | |
| CURREXP | CURRENT EXPENSE 010 | 1.0175366760 | $273,830 | $273,830 | $278.63 | | |
| HUMNSERV | HUMAN SERVICES 119 | 0.0250000000 | $273,830 | $273,830 | $6.85 | | |
| SLDREL | SOLDIERS RELIEF 121 | 0.0155990005 | $273,830 | $273,830 | $4.27 | | |
| EMERGSER | EMS 147 | 0.3792580840 | $273,830 | $273,830 | $103.85 | | |
| EMSRFD | EMS REFUND 147 | 0.0000000000 | $273,830 | $273,830 | $0.00 | | |
| PORTRFD | PORT REFUND 640 | 0.0000000000 | $273,830 | $273,830 | $0.00 | | |
| PORTWWGEN | PORT OF WW 640 | 0.2460186015 | $273,830 | $273,830 | $67.37 | | |
| SD140BOND | SD #140 BOND 764 | 0.8342371393 | $273,830 | $273,830 | $228.44 | | |
| SD140GEN | SD #140 GENERAL 760 | 2.0646500647 | $273,830 | $273,830 | $565.36 | | |
| ST2 | STATE SCHOOL PART 2 600 | 0.8131451643 | $273,830 | $273,830 | $222.66 | | |
| STATESCHL | STATE SCHOOL 600 | 1.5158548041 | $273,830 | $273,830 | $415.09 | | |
| STREFUND | STATE REFUND LEVY 603 | 0.0000000000 | $273,830 | $273,830 | $0.00 | | |
| CWWBOND | C OF WW BOND 643 | 0.2760494372 | $273,830 | $273,830 | $75.59 | | |
| CWWGEN | CITY OF WW 631 | 1.6100204973 | $273,830 | $273,830 | $440.87 | | |
| CWWRFD | CITY OF WALLA WALLA REFUND 631 | 0.0000000000 | $273,830 | $273,830 | $0.00 | | |
| | Total Tax Rate: | 8.7973694689 | | | | | |
| | | | | Taxes w/Current Exemptions: | $2,408.98 | | |
| | | | | Taxes w/o Exemptions: | $2,408.98 | | |
Improvement / Building
| Improvement #1: | RESIDENTIAL | State Code: | 11 | 1368.0 sqft | Value: | $222,080 |
| Exterior Wall: | SIDING | Heating/Cooling: | FLOOR FURNACE | | Number of Bathrooms: | 1 | Number of Bedrooms: | 3 | | Plumbing: | 6 | Roof Covering: | COMP SHINGLE |
|
| | Type | Description | Class CD | Sub Class CD | Year Built | Area |
| | MA | Main Area | 1 | 20 | 1906 | 1368.0 |
| | SI1 | SITE IMPROVEMENT | 1 | 20 | 1906 | 2.5 |
| | DTG | Detached Garage | 1 | 20 | 1906 | 640.0 |
| | RPO | OPEN PORCH W/ROOF | 1 | 20 | 1906 | 20.0 |
| | RCD | WOOD DECK W/ROOF, CEILED | 1 | 20 | 1906 | 72.0 |
Sketch
Property Image
Land
| 1 | RES 1 | Converted: Residential | 0.1320 | 5750.00 | 0.00 | 0.00 | 1.00 | $51,750 | $0 |
Roll Value History
| 2025 | N/A | N/A | N/A | N/A | N/A |
| 2024 | $222,080 | $51,750 | $0 | $273,830 | $273,830 |
| 2023 | $222,080 | $51,750 | $0 | $273,830 | $273,830 |
| 2022 | $211,510 | $41,690 | $0 | $253,200 | $253,200 |
| 2021 | $151,080 | $41,690 | $0 | $192,770 | $192,770 |
| 2020 | $120,860 | $41,690 | $0 | $162,550 | $162,550 |
| 2019 | $120,860 | $41,690 | $0 | $162,550 | $162,550 |
| 2018 | $99,920 | $34,500 | $0 | $134,420 | $134,420 |
| 2017 | $83,270 | $34,500 | $0 | $117,770 | $117,770 |
| 2016 | $83,270 | $34,500 | $0 | $117,770 | $117,770 |
| 2015 | $83,270 | $34,500 | $0 | $117,770 | $117,770 |
| 2014 | $79,300 | $34,500 | $0 | $113,800 | $113,800 |
| 2013 | $79,300 | $34,500 | $0 | $113,800 | $113,800 |
| 2012 | $74,600 | $34,500 | $0 | $0 | $0 |
| 2011 | $74,600 | $34,500 | $0 | $0 | $0 |
| 2010 | $74,600 | $34,500 | $0 | $0 | $0 |
| 2009 | $86,700 | $34,500 | $0 | $0 | $0 |
| 2008 | $86,700 | $34,500 | $0 | $0 | $0 |
| 2007 | $66,000 | $17,300 | $0 | $0 | $0 |
| 2006 | $66,000 | $17,300 | $0 | $0 | $0 |
Deed and Sales History
| 1 | 09/22/2022 | SWD | STATUTORY WARRANTY DEED | ADAMS SANDRA J | REYES SANTIAGO | | | $280,000.00 | 144735 | 2022-07910 |
| 2 | 06/25/1999 | WARRANTY D | WARRANTY DEED | | | | | $78,000.00 | 93037 | 2859-907479 |
Payout Agreement
| No payout information available.. |