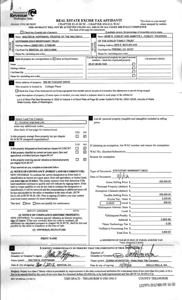
Property
Account |
| Property ID: | 10009 | Abbreviated Legal Description: | STUBBLEFIELD SUB DVN LOT 3 BLK 7 |
| Parcel Number: | 360728740703 | Agent Code: | |
| Type: | Real | | |
| Tax Area: | 1 - OL-140-F | Land Use Code | 11 |
| Open Space: | N | DFL | N |
| Historic Property: | N | Remodel Property: | N |
| Multi-Family Redevelopment: | N | | |
| Township: | 7 | Section: | 28 |
| Range: | 36 |
Location |
| Address: | 1088 AUBIN RD WA 99362 | Mapsco: | |
| Neighborhood: | G Res | Map ID: | |
| Neighborhood CD: | 614011 |
Owner |
| Name: | SUNDIN THOMAS EUGENE & SALLY JANE | Owner ID: | 57322 |
| Mailing Address: | 1088 AUBIN RD WALLA WALLA, WA 99362 | % Ownership: | 100.0000000000% |
| | | Exemptions: | |
Taxes and Assessment Details
Values
| (+) Improvement Homesite Value: | + | $0 | |
| (+) Improvement Non-Homesite Value: | + | $345,760 | |
| (+) Land Homesite Value: | + | $0 | |
| (+) Land Non-Homesite Value: | + | $120,000 | |
| (+) Curr Use (HS): | + | $0 | $0 |
| (+) Curr Use (NHS): | + | $0 | $0 |
| | | -------------------------- | |
| (=) Market Value: | = | $465,760 | |
| (–) Productivity Loss: | – | $0 | |
| | | -------------------------- | |
| (=) Subtotal: | = | $465,760 | |
| (+) Senior Appraised Value: | + | $0 | |
| (+) Non-Senior Appraised Value: | + | $465,760 | |
| | | -------------------------- | |
| (=) Total Appraised Value: | = | $465,760 | |
| (–) Senior Exemption Loss: | – | $0 | |
| (–) Exemption Loss: | – | $0 | |
| | | -------------------------- | |
| (=) Taxable Value: | = | $465,760 | |
Taxing Jurisdiction
| Owner: | SUNDIN THOMAS EUGENE & SALLY JANE | | |
| % Ownership: | 100.0000000000% | | |
| Total Value: | $465,760 | | |
| Tax Area: | 1 - OL-140-F |
| CERFD | CURRENT EXPENSE REFUND 010 | 0.0000000000 | $465,760 | $465,760 | $0.00 | | |
| CURREXP | CURRENT EXPENSE 010 | 1.0175366760 | $465,760 | $465,760 | $473.93 | | |
| HUMNSERV | HUMAN SERVICES 119 | 0.0250000000 | $465,760 | $465,760 | $11.64 | | |
| SLDREL | SOLDIERS RELIEF 121 | 0.0155990005 | $465,760 | $465,760 | $7.27 | | |
| EMERGSER | EMS 147 | 0.3792580840 | $465,760 | $465,760 | $176.64 | | |
| EMSRFD | EMS REFUND 147 | 0.0000000000 | $465,760 | $465,760 | $0.00 | | |
| PORTRFD | PORT REFUND 640 | 0.0000000000 | $465,760 | $465,760 | $0.00 | | |
| PORTWWGEN | PORT OF WW 640 | 0.2460186015 | $465,760 | $465,760 | $114.59 | | |
| SD140BOND | SD #140 BOND 764 | 0.8342371393 | $465,760 | $465,760 | $388.55 | | |
| SD140GEN | SD #140 GENERAL 760 | 2.0646500647 | $465,760 | $465,760 | $961.63 | | |
| ST2 | STATE SCHOOL PART 2 600 | 0.8131451643 | $465,760 | $465,760 | $378.73 | | |
| STATESCHL | STATE SCHOOL 600 | 1.5158548041 | $465,760 | $465,760 | $706.02 | | |
| STREFUND | STATE REFUND LEVY 603 | 0.0000000000 | $465,760 | $465,760 | $0.00 | | |
| CWWBOND | C OF WW BOND 643 | 0.2760494372 | $465,760 | $465,760 | $128.57 | | |
| CWWGEN | CITY OF WW 631 | 1.6100204973 | $465,760 | $465,760 | $749.88 | | |
| CWWRFD | CITY OF WALLA WALLA REFUND 631 | 0.0000000000 | $465,760 | $465,760 | $0.00 | | |
| | Total Tax Rate: | 8.7973694689 | | | | | |
| | | | | Taxes w/Current Exemptions: | $4,097.45 | | |
| | | | | Taxes w/o Exemptions: | $4,097.45 | | |
Improvement / Building
| Improvement #1: | RESIDENTIAL | State Code: | 11 | 1978.0 sqft | Value: | $345,760 |
| Exterior Wall: | PLYWOOD | Heating/Cooling: | HEAT PUMP | | Number of Bathrooms: | 3 | Number of Bedrooms: | 3 | | Plumbing: | 12 | Roof Covering: | COMP SHINGLE |
|
| | Type | Description | Class CD | Sub Class CD | Year Built | Area |
| | MA | Main Area | 1 | 30 | 1969 | 1978.0 |
| | SI1 | SITE IMPROVEMENT | 1 | 30 | 1969 | 3.5 |
| | ATG | Attached Garage | 1 | 30 | 1969 | 748.0 |
| | GFP | GAS FIREPLACE | 1 | 30 | 1969 | 1.0 |
| | CPC | COVERED CARPORT/PATIO | 1 | 30 | 1969 | 606.0 |
| | WOD | Wood Deck | 1 | 30 | 1969 | 350.0 |
Sketch
Property Image
Land
| 1 | RES 1 | Converted: Residential | 0.2518 | 10969.00 | 0.00 | 0.00 | 1.00 | $120,000 | $0 |
Roll Value History
| 2025 | N/A | N/A | N/A | N/A | N/A |
| 2024 | $345,760 | $120,000 | $0 | $465,760 | $465,760 |
| 2023 | $345,760 | $120,000 | $0 | $465,760 | $465,760 |
| 2022 | $314,330 | $85,000 | $0 | $399,330 | $399,330 |
| 2021 | $224,520 | $85,000 | $0 | $309,520 | $309,520 |
| 2020 | $204,110 | $85,000 | $0 | $289,110 | $289,110 |
| 2019 | $204,110 | $85,000 | $0 | $289,110 | $289,110 |
| 2018 | $195,170 | $50,000 | $0 | $245,170 | $245,170 |
| 2017 | $185,880 | $50,000 | $0 | $235,880 | $235,880 |
| 2016 | $185,880 | $50,000 | $0 | $235,880 | $235,880 |
| 2015 | $148,700 | $50,000 | $0 | $198,700 | $198,700 |
| 2014 | $148,700 | $50,000 | $0 | $198,700 | $198,700 |
| 2013 | $148,700 | $50,000 | $0 | $198,700 | $198,700 |
| 2012 | $142,700 | $50,000 | $0 | $0 | $0 |
| 2011 | $142,700 | $50,000 | $0 | $0 | $0 |
| 2010 | $142,700 | $50,000 | $0 | $0 | $0 |
| 2009 | $143,500 | $50,000 | $0 | $0 | $0 |
| 2008 | $143,500 | $50,000 | $0 | $0 | $0 |
| 2007 | $106,500 | $30,000 | $0 | $0 | $0 |
| 2006 | $106,500 | $30,000 | $0 | $0 | $0 |
Deed and Sales History
| 1 | 08/31/2015 | SWD | STATUTORY WARRANTY DEED | SACK ROBERT R & SUSAN | SUNDIN THOMAS EUGENE & SALLY JANE | | | $245,000.00 | 128739 | 2015-07656 |
| 2 | 01/21/1971 | WARRANTY D | WARRANTY DEED | | | | | $23,000.00 | 0 | 3390-512181 |
Payout Agreement
| No payout information available.. |