Property
Account |
| Property ID: | 9981 | Abbreviated Legal Description: | STUBBLEFIELD SUB DVN LOT 2 BLK 3 |
| Parcel Number: | 360728740302 | Agent Code: | |
| Type: | Real | | |
| Tax Area: | 1 - OL-140-F | Land Use Code | 11 |
| Open Space: | N | DFL | N |
| Historic Property: | N | Remodel Property: | N |
| Multi-Family Redevelopment: | N | | |
| Township: | 7 | Section: | 28 |
| Range: | 36 |
Location |
| Address: | 1815 FERN AVE WA 99362 | Mapsco: | |
| Neighborhood: | G Res | Map ID: | |
| Neighborhood CD: | 614011 |
Owner |
| Name: | RANDALL SHELBY & BROOKLYNN | Owner ID: | 65945 |
| Mailing Address: | 1815 FERN AVE WALLA WALLA, WA 99362 | % Ownership: | 100.0000000000% |
| | | Exemptions: | |
Taxes and Assessment Details
Values
| (+) Improvement Homesite Value: | + | $0 | |
| (+) Improvement Non-Homesite Value: | + | $271,140 | |
| (+) Land Homesite Value: | + | $0 | |
| (+) Land Non-Homesite Value: | + | $120,000 | |
| (+) Curr Use (HS): | + | $0 | $0 |
| (+) Curr Use (NHS): | + | $0 | $0 |
| | | -------------------------- | |
| (=) Market Value: | = | $391,140 | |
| (–) Productivity Loss: | – | $0 | |
| | | -------------------------- | |
| (=) Subtotal: | = | $391,140 | |
| (+) Senior Appraised Value: | + | $0 | |
| (+) Non-Senior Appraised Value: | + | $391,140 | |
| | | -------------------------- | |
| (=) Total Appraised Value: | = | $391,140 | |
| (–) Senior Exemption Loss: | – | $0 | |
| (–) Exemption Loss: | – | $0 | |
| | | -------------------------- | |
| (=) Taxable Value: | = | $391,140 | |
Taxing Jurisdiction
| Owner: | RANDALL SHELBY & BROOKLYNN | | |
| % Ownership: | 100.0000000000% | | |
| Total Value: | $391,140 | | |
| Tax Area: | 1 - OL-140-F |
| CERFD | CURRENT EXPENSE REFUND 010 | 0.0000000000 | $391,140 | $391,140 | $0.00 | | |
| CURREXP | CURRENT EXPENSE 010 | 1.0175366760 | $391,140 | $391,140 | $398.00 | | |
| HUMNSERV | HUMAN SERVICES 119 | 0.0250000000 | $391,140 | $391,140 | $9.78 | | |
| SLDREL | SOLDIERS RELIEF 121 | 0.0155990005 | $391,140 | $391,140 | $6.10 | | |
| EMERGSER | EMS 147 | 0.3792580840 | $391,140 | $391,140 | $148.34 | | |
| EMSRFD | EMS REFUND 147 | 0.0000000000 | $391,140 | $391,140 | $0.00 | | |
| PORTRFD | PORT REFUND 640 | 0.0000000000 | $391,140 | $391,140 | $0.00 | | |
| PORTWWGEN | PORT OF WW 640 | 0.2460186015 | $391,140 | $391,140 | $96.23 | | |
| SD140BOND | SD #140 BOND 764 | 0.8342371393 | $391,140 | $391,140 | $326.30 | | |
| SD140GEN | SD #140 GENERAL 760 | 2.0646500647 | $391,140 | $391,140 | $807.57 | | |
| ST2 | STATE SCHOOL PART 2 600 | 0.8131451643 | $391,140 | $391,140 | $318.05 | | |
| STATESCHL | STATE SCHOOL 600 | 1.5158548041 | $391,140 | $391,140 | $592.91 | | |
| STREFUND | STATE REFUND LEVY 603 | 0.0000000000 | $391,140 | $391,140 | $0.00 | | |
| CWWBOND | C OF WW BOND 643 | 0.2760494372 | $391,140 | $391,140 | $107.97 | | |
| CWWGEN | CITY OF WW 631 | 1.6100204973 | $391,140 | $391,140 | $629.74 | | |
| CWWRFD | CITY OF WALLA WALLA REFUND 631 | 0.0000000000 | $391,140 | $391,140 | $0.00 | | |
| | Total Tax Rate: | 8.7973694689 | | | | | |
| | | | | Taxes w/Current Exemptions: | $3,440.99 | | |
| | | | | Taxes w/o Exemptions: | $3,440.99 | | |
Improvement / Building
| Improvement #1: | RESIDENTIAL | State Code: | 11 | 1170.0 sqft | Value: | $271,140 |
| Exterior Wall: | HARDBOARD | Heating/Cooling: | WARM & COOLED AIR | | Number of Bathrooms: | 3 | Number of Bedrooms: | 5 | | Plumbing: | 12 | Roof Covering: | COMP SHINGLE |
|
| | Type | Description | Class CD | Sub Class CD | Year Built | Area |
| | MA | Main Area | 11 | 30 | 1975 | 1170.0 |
| | SI1 | SITE IMPROVEMENT | 11 | 30 | 1975 | 3.5 |
| | BASE | BASEMENT | 11 | 30 | 1975 | 1056.0 |
| | BPF | BASEMENT -PARTITIONED FINISH | 11 | 30 | 1975 | 1056.0 |
| | ATG | Attached Garage | 11 | 30 | 1975 | 546.0 |
| | WOD | Wood Deck | 11 | 30 | 1975 | 384.0 |
| | WOD | Wood Deck | 11 | 30 | 1975 | 252.0 |
| | D2F | Double 2 Story Fireplace | 11 | 30 | 1975 | 1.0 |
Sketch
Property Image
Land
| 1 | RES 1 | Converted: Residential | 0.2349 | 10232.00 | 0.00 | 0.00 | 1.00 | $120,000 | $0 |
Roll Value History
| 2026 | N/A | N/A | N/A | N/A | N/A |
| 2025 | $321,580 | $150,000 | $0 | $471,580 | $471,580 |
| 2024 | $298,260 | $120,000 | $0 | $418,260 | $418,260 |
| 2023 | $271,140 | $120,000 | $0 | $391,140 | $391,140 |
| 2022 | $271,140 | $85,000 | $0 | $356,140 | $356,140 |
| 2021 | $216,910 | $85,000 | $0 | $301,910 | $301,910 |
| 2020 | $173,530 | $85,000 | $0 | $258,530 | $258,530 |
| 2019 | $173,530 | $85,000 | $0 | $258,530 | $258,530 |
| 2018 | $203,360 | $50,000 | $0 | $253,360 | $253,360 |
| 2017 | $193,680 | $50,000 | $0 | $243,680 | $243,680 |
| 2016 | $193,680 | $50,000 | $0 | $243,680 | $243,680 |
| 2015 | $193,680 | $50,000 | $0 | $243,680 | $243,680 |
| 2014 | $161,400 | $50,000 | $0 | $211,400 | $211,400 |
| 2013 | $161,400 | $50,000 | $0 | $211,400 | $211,400 |
| 2012 | $164,300 | $50,000 | $0 | $0 | $0 |
| 2011 | $164,300 | $50,000 | $0 | $0 | $0 |
| 2010 | $164,300 | $50,000 | $0 | $0 | $0 |
| 2009 | $200,600 | $50,000 | $0 | $0 | $0 |
| 2008 | $200,600 | $50,000 | $0 | $0 | $0 |
| 2007 | $118,800 | $30,000 | $0 | $0 | $0 |
Deed and Sales History
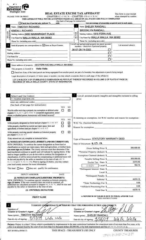
| 1 | 09/17/2019 | SWD | STATUTORY WARRANTY DEED | RICHARD TIMOTHY | RANDALL SHELBY & BROOKLYNN | | | $305,500.00 | 137691 | 2019-07248 |
| 2 | 05/31/2017 | SWD | STATUTORY WARRANTY DEED | PETTINGER THERESA M | RICHARD TIMOTHY | | | $258,500.00 | 132500 | 2017-04130 |
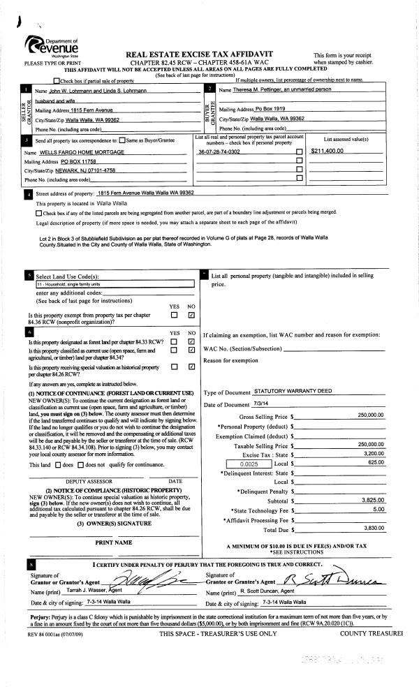
| 3 | 07/07/2014 | SWD | STATUTORY WARRANTY DEED | LOHRMANN JOHN W | PETTINGER THERESA M | | | $250,000.00 | 126207 | 2014-04707 |
| 4 | 11/30/1987 | WARRANTY D | WARRANTY DEED | | | | | $83,900.00 | 0 | 1678-708791 |
Payout Agreement
| No payout information available.. |