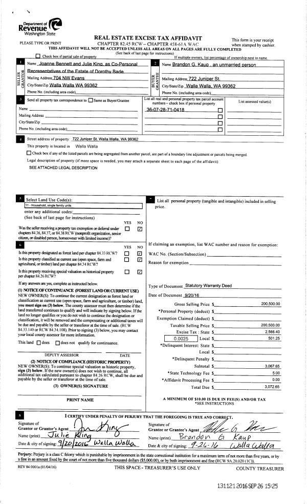
Property
Account |
| Property ID: | 9928 | Abbreviated Legal Description: | SPRING GROVE #1 PARCEL #18 BLK 4 LOT 4 OF S/P |
| Parcel Number: | 360728710418 | Agent Code: | |
| Type: | Real | | |
| Tax Area: | 1 - OL-140-F | Land Use Code | 11 |
| Open Space: | N | DFL | N |
| Historic Property: | N | Remodel Property: | N |
| Multi-Family Redevelopment: | N | | |
| Township: | 7 | Section: | 28 |
| Range: | 36 |
Location |
| Address: | 722 JUNIPER ST WA 99362 | Mapsco: | |
| Neighborhood: | A Res | Map ID: | |
| Neighborhood CD: | 613011 |
Owner |
| Name: | KAUP BRANDON G | Owner ID: | 59711 |
| Mailing Address: | 722 JUNIPER ST WALLA WALLA, WA 99362 | % Ownership: | 100.0000000000% |
| | | Exemptions: | |
Taxes and Assessment Details
Property Tax Information as of
02/21/2026
Click on "Statement Details" to expand or collapse a tax statement.
* Please enter a valid date ** Please enter a valid date *
Statement Details |
| | TOTAL: | $0.00 | $0.00 | $0.00 | $0.00 | $0.00 | $0.00 |
|
| | $0.00 | $0.00 | $0.00 | $0.00 | $0.00 | $0.00 |
Values
| (+) Improvement Homesite Value: | + | $291,390 | |
| (+) Improvement Non-Homesite Value: | + | $0 | |
| (+) Land Homesite Value: | + | $70,200 | |
| (+) Land Non-Homesite Value: | + | $0 | |
| (+) Curr Use (HS): | + | $0 | $0 |
| (+) Curr Use (NHS): | + | $0 | $0 |
| | | -------------------------- | |
| (=) Market Value: | = | $361,590 | |
| (–) Productivity Loss: | – | $0 | |
| | | -------------------------- | |
| (=) Subtotal: | = | $361,590 | |
| (+) Senior Appraised Value: | + | $0 | |
| (+) Non-Senior Appraised Value: | + | $361,590 | |
| | | -------------------------- | |
| (=) Total Appraised Value: | = | $361,590 | |
| (–) Senior Exemption Loss: | – | $0 | |
| (–) Exemption Loss: | – | $0 | |
| | | -------------------------- | |
| (=) Taxable Value: | = | $361,590 | |
Taxing Jurisdiction
| Owner: | KAUP BRANDON G | | |
| % Ownership: | 100.0000000000% | | |
| Total Value: | $361,590 | | |
| Tax Area: | 1 - OL-140-F |
| CERFD | CURRENT EXPENSE REFUND 010 | 0.0000000000 | $361,590 | $361,590 | $0.00 | | |
| CURREXP | CURRENT EXPENSE 010 | 1.0175366760 | $361,590 | $361,590 | $367.93 | | |
| HUMNSERV | HUMAN SERVICES 119 | 0.0250000000 | $361,590 | $361,590 | $9.04 | | |
| SLDREL | SOLDIERS RELIEF 121 | 0.0155990005 | $361,590 | $361,590 | $5.64 | | |
| EMERGSER | EMS 147 | 0.3792580840 | $361,590 | $361,590 | $137.14 | | |
| EMSRFD | EMS REFUND 147 | 0.0000000000 | $361,590 | $361,590 | $0.00 | | |
| PORTRFD | PORT REFUND 640 | 0.0000000000 | $361,590 | $361,590 | $0.00 | | |
| PORTWWGEN | PORT OF WW 640 | 0.2460186015 | $361,590 | $361,590 | $88.96 | | |
| SD140BOND | SD #140 BOND 764 | 0.8342371393 | $361,590 | $361,590 | $301.65 | | |
| SD140GEN | SD #140 GENERAL 760 | 2.0646500647 | $361,590 | $361,590 | $746.56 | | |
| ST2 | STATE SCHOOL PART 2 600 | 0.8131451643 | $361,590 | $361,590 | $294.03 | | |
| STATESCHL | STATE SCHOOL 600 | 1.5158548041 | $361,590 | $361,590 | $548.12 | | |
| STREFUND | STATE REFUND LEVY 603 | 0.0000000000 | $361,590 | $361,590 | $0.00 | | |
| CWWBOND | C OF WW BOND 643 | 0.2760494372 | $361,590 | $361,590 | $99.82 | | |
| CWWGEN | CITY OF WW 631 | 1.6100204973 | $361,590 | $361,590 | $582.17 | | |
| CWWRFD | CITY OF WALLA WALLA REFUND 631 | 0.0000000000 | $361,590 | $361,590 | $0.00 | | |
| | Total Tax Rate: | 8.7973694689 | | | | | |
| | | | | Taxes w/Current Exemptions: | $3,181.06 | | |
| | | | | Taxes w/o Exemptions: | $3,181.06 | | |
Improvement / Building
| Improvement #1: | RESIDENTIAL | State Code: | 11 | 1390.0 sqft | Value: | $291,390 |
| Exterior Wall: | PLYWOOD | Heating/Cooling: | WARM & COOLED AIR | | Number of Bathrooms: | 2 | Number of Bedrooms: | 3 | | Plumbing: | 9 | Roof Covering: | COMP SHINGLE |
|
| | Type | Description | Class CD | Sub Class CD | Year Built | Area |
| | MA | Main Area | 1 | 30 | 1986 | 1390.0 |
| | SI1 | SITE IMPROVEMENT | 1 | 30 | 1986 | 1.5 |
| | RPO | OPEN PORCH W/ROOF | 1 | 30 | 1986 | 36.0 |
| | ATG | Attached Garage | 1 | 30 | 1986 | 576.0 |
Sketch
Property Image
Land
| 1 | RES 1 | Converted: Residential | 0.1791 | 7800.00 | 0.00 | 0.00 | 1.00 | $70,200 | $0 |
Roll Value History
| 2026 | N/A | N/A | N/A | N/A | N/A |
| 2025 | $283,760 | $85,800 | $0 | $369,560 | $369,560 |
| 2024 | $291,390 | $70,200 | $0 | $361,590 | $361,590 |
| 2023 | $291,390 | $70,200 | $0 | $361,590 | $361,590 |
| 2022 | $233,110 | $56,550 | $0 | $289,660 | $289,660 |
| 2021 | $211,920 | $56,550 | $0 | $268,470 | $268,470 |
| 2020 | $151,370 | $56,550 | $0 | $207,920 | $207,920 |
| 2019 | $151,370 | $56,550 | $0 | $207,920 | $207,920 |
| 2018 | $143,980 | $45,300 | $0 | $189,280 | $189,280 |
| 2017 | $143,980 | $45,300 | $0 | $189,280 | $189,280 |
| 2016 | $125,200 | $45,300 | $0 | $170,500 | $170,500 |
| 2015 | $125,200 | $45,300 | $0 | $170,500 | $68,200 |
| 2014 | $125,200 | $45,300 | $0 | $170,500 | $110,825 |
| 2013 | $125,200 | $45,300 | $0 | $170,500 | $170,500 |
| 2012 | $125,200 | $45,300 | $0 | $0 | $0 |
| 2011 | $125,200 | $45,300 | $0 | $0 | $0 |
| 2010 | $109,700 | $45,300 | $0 | $0 | $0 |
| 2009 | $126,900 | $45,300 | $0 | $0 | $0 |
| 2008 | $126,900 | $45,300 | $0 | $0 | $0 |
| 2007 | $86,100 | $22,800 | $0 | $0 | $0 |
Deed and Sales History
| 1 | 09/26/2016 | SWD | STATUTORY WARRANTY DEED | BADE DOROTHY A ESTATE OF | KAUP BRANDON G | | | $200,500.00 | 131121 | 2016-07890 |
| 2 | 02/04/2015 | DPR | DEED OF PERSONAL REPRESENTATIVE | BADE DOROTHY | BADE DOROTHY A ESTATE OF | | | $0.00 | 127383 | 2015-01003 |
| 3 | 03/27/1984 | WARRANTY D | WARRANTY DEED | | | | | $13,000.00 | 53821 | 1428-402043 |
Payout Agreement
| No payout information available.. |