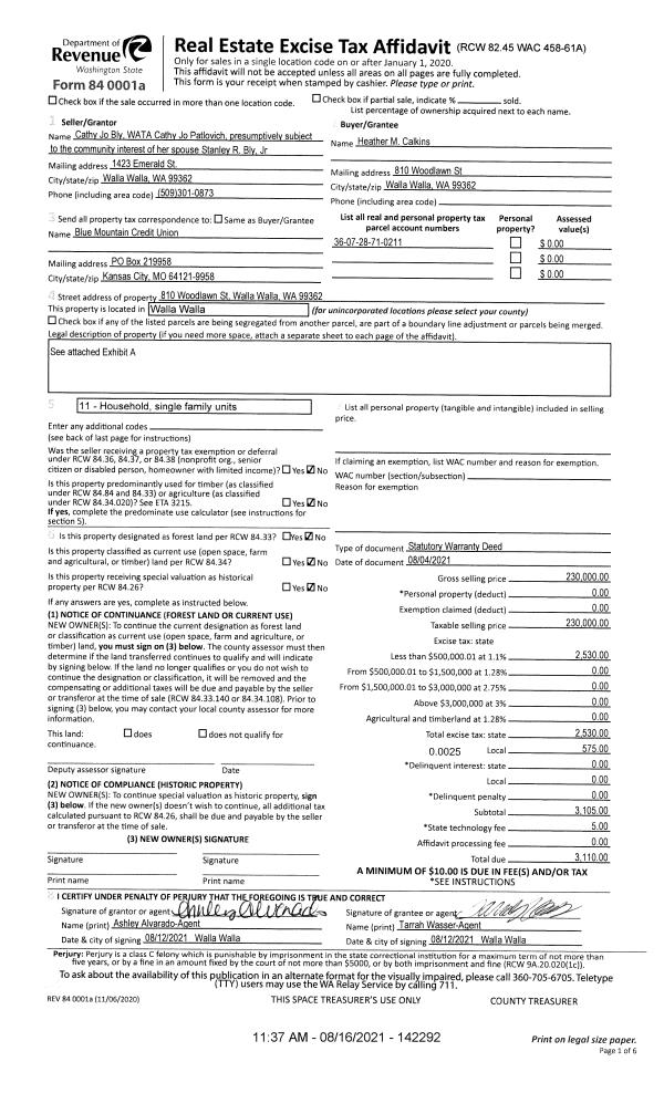
Property
Account |
| Property ID: | 9900 | Abbreviated Legal Description: | SPRING GROVE #1 TAX 9A & 9B BLK 2 |
| Parcel Number: | 360728710211 | Agent Code: | |
| Type: | Real | | |
| Tax Area: | 1 - OL-140-F | Land Use Code | 11 |
| Open Space: | N | DFL | N |
| Historic Property: | N | Remodel Property: | N |
| Multi-Family Redevelopment: | N | | |
| Township: | 7 | Section: | 28 |
| Range: | 36 |
Location |
| Address: | 810 WOODLAWN ST WA 99362 | Mapsco: | |
| Neighborhood: | A Res | Map ID: | |
| Neighborhood CD: | 613011 |
Owner |
| Name: | CALKINS HEATHER M | Owner ID: | 70132 |
| Mailing Address: | 810 WOODLAWN ST WALLA WALLA, WA 99362 | % Ownership: | 100.0000000000% |
| | | Exemptions: | |
Taxes and Assessment Details
Values
| (+) Improvement Homesite Value: | + | $0 | |
| (+) Improvement Non-Homesite Value: | + | $199,280 | |
| (+) Land Homesite Value: | + | $0 | |
| (+) Land Non-Homesite Value: | + | $113,550 | |
| (+) Curr Use (HS): | + | $0 | $0 |
| (+) Curr Use (NHS): | + | $0 | $0 |
| | | -------------------------- | |
| (=) Market Value: | = | $312,830 | |
| (–) Productivity Loss: | – | $0 | |
| | | -------------------------- | |
| (=) Subtotal: | = | $312,830 | |
| (+) Senior Appraised Value: | + | $0 | |
| (+) Non-Senior Appraised Value: | + | $312,830 | |
| | | -------------------------- | |
| (=) Total Appraised Value: | = | $312,830 | |
| (–) Senior Exemption Loss: | – | $0 | |
| (–) Exemption Loss: | – | $0 | |
| | | -------------------------- | |
| (=) Taxable Value: | = | $312,830 | |
Taxing Jurisdiction
| Owner: | CALKINS HEATHER M | | |
| % Ownership: | 100.0000000000% | | |
| Total Value: | $312,830 | | |
| Tax Area: | 1 - OL-140-F |
| CERFD | CURRENT EXPENSE REFUND 010 | 0.0000000000 | $312,830 | $312,830 | $0.00 | | |
| CURREXP | CURRENT EXPENSE 010 | 0.9851088983 | $312,830 | $312,830 | $308.17 | | |
| HUMNSERV | HUMAN SERVICES 119 | 0.0250000000 | $312,830 | $312,830 | $7.82 | | |
| SLDREL | SOLDIERS RELIEF 121 | 0.0155990000 | $312,830 | $312,830 | $4.88 | | |
| EMERGSER | EMS 147 | 0.3676811629 | $312,830 | $312,830 | $115.02 | | |
| EMSRFD | EMS REFUND 147 | 0.0000000000 | $312,830 | $312,830 | $0.00 | | |
| PORTRFD | PORT REFUND 640 | 0.0000000000 | $312,830 | $312,830 | $0.00 | | |
| PORTWWGEN | PORT OF WW 640 | 0.2344301070 | $312,830 | $312,830 | $73.34 | | |
| SD140BOND | SD #140 BOND 764 | 0.8032434458 | $312,830 | $312,830 | $251.28 | | |
| SD140CAP | SD #140 CAP 762 | 0.3840034221 | $312,830 | $312,830 | $120.13 | | |
| SD140GEN | SD #140 GENERAL 760 | 2.4999999996 | $312,830 | $312,830 | $782.08 | | |
| ST2 | STATE SCHOOL PART 2 600 | 0.8853714103 | $312,830 | $312,830 | $276.97 | | |
| STATESCHL | STATE SCHOOL 600 | 1.6424571473 | $312,830 | $312,830 | $513.81 | | |
| STREFUND | STATE REFUND LEVY 603 | 0.0000000000 | $312,830 | $312,830 | $0.00 | | |
| CWWBOND | C OF WW BOND 643 | 0.2642134255 | $312,830 | $312,830 | $82.65 | | |
| CWWGEN | CITY OF WW 631 | 1.6110494978 | $312,830 | $312,830 | $503.98 | | |
| CWWRFD | CITY OF WALLA WALLA REFUND 631 | 0.0000000000 | $312,830 | $312,830 | $0.00 | | |
| | Total Tax Rate: | 9.7181575166 | | | | | |
| | | | | Taxes w/Current Exemptions: | $3,040.13 | | |
| | | | | Taxes w/o Exemptions: | $3,040.13 | | |
Improvement / Building
| Improvement #1: | RESIDENTIAL | State Code: | 11 | 1602.0 sqft | Value: | $199,280 |
| Exterior Wall: | VINYL | Heating/Cooling: | WARM & COOLED AIR | | Number of Bathrooms: | 1 | Number of Bedrooms: | 4 | | Plumbing: | 7 | Roof Covering: | COMP SHINGLE |
|
| | Type | Description | Class CD | Sub Class CD | Year Built | Area |
| | MA | Main Area | 1 | 30 | 1947 | 1602.0 |
| | SI1 | SITE IMPROVEMENT | 1 | 30 | 1947 | 3.0 |
| | BASE | BASEMENT | 1 | 30 | 1947 | 399.0 |
| | S1F | Single One Story Fireplace | 1 | 30 | 1947 | 1.0 |
| | RPC | OPEN PORCH W/ROOF , CEILED | 1 | 30 | 1947 | 90.0 |
Sketch
Property Image
Land
| 1 | RES 1 | Converted: Residential | 0.3202 | 13950.00 | 0.00 | 0.00 | 1.00 | $113,550 | $0 |
Roll Value History
| 2026 | N/A | N/A | N/A | N/A | N/A |
| 2025 | $199,280 | $113,550 | $0 | $312,830 | $312,830 |
| 2024 | $198,760 | $92,890 | $0 | $291,650 | $291,650 |
| 2023 | $198,760 | $92,890 | $0 | $291,650 | $291,650 |
| 2022 | $189,290 | $74,630 | $0 | $263,920 | $263,920 |
| 2021 | $189,290 | $74,630 | $0 | $263,920 | $263,920 |
| 2020 | $135,210 | $74,630 | $0 | $209,840 | $209,840 |
| 2019 | $135,210 | $74,630 | $0 | $209,840 | $209,840 |
| 2018 | $127,910 | $50,500 | $0 | $178,410 | $178,410 |
| 2017 | $111,220 | $50,500 | $0 | $161,720 | $161,720 |
| 2016 | $92,690 | $50,500 | $0 | $143,190 | $143,190 |
| 2015 | $84,260 | $50,500 | $0 | $134,760 | $134,760 |
| 2014 | $76,600 | $50,500 | $0 | $127,100 | $127,100 |
| 2013 | $76,600 | $50,500 | $0 | $127,100 | $127,100 |
| 2012 | $65,000 | $50,500 | $0 | $0 | $0 |
| 2011 | $65,000 | $50,500 | $0 | $0 | $0 |
| 2010 | $65,000 | $50,500 | $0 | $0 | $0 |
| 2009 | $77,800 | $50,500 | $0 | $0 | $0 |
| 2008 | $77,800 | $50,500 | $0 | $0 | $0 |
| 2007 | $59,800 | $28,000 | $0 | $0 | $0 |
Deed and Sales History
| 1 | 08/16/2021 | SWD | STATUTORY WARRANTY DEED | BLY-PATLOVICH CATHY JO | CALKINS HEATHER M | | 2-PARCELS | $230,000.00 | 142292 | 2021-09926 |
|   | |
| 2 | 01/11/1994 | WARRANTY D | WARRANTY DEED | | | | | $75,500.00 | 80856 | 2159-400436 |
|   | |
Payout Agreement
| No payout information available.. |