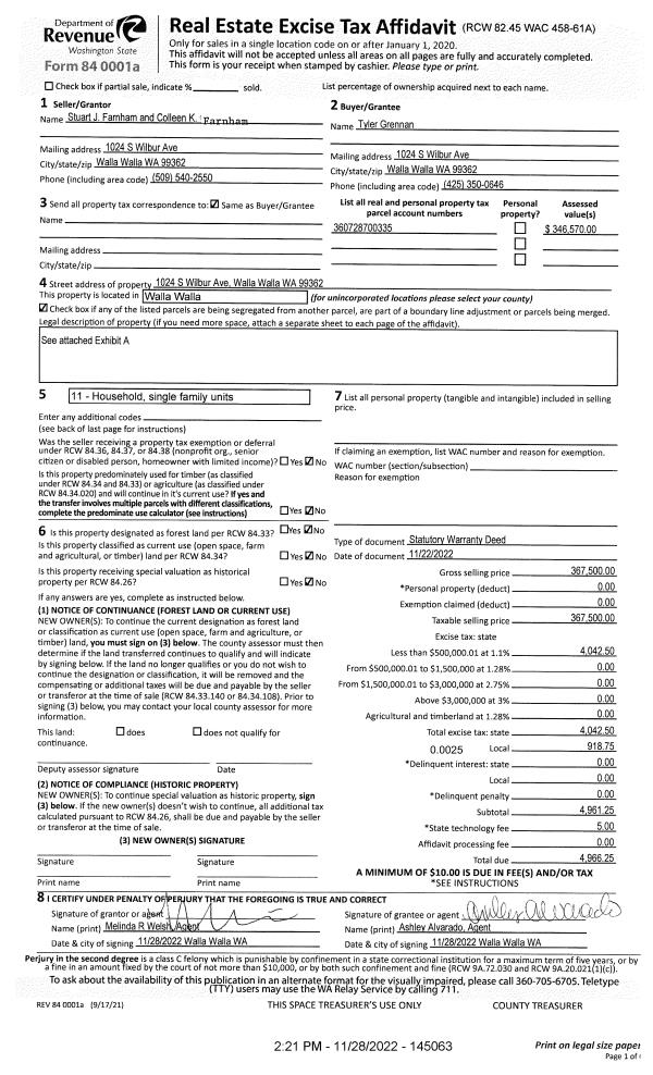
Property
Account |
| Property ID: | 9895 | Abbreviated Legal Description: | EAST SCHAFFERS SUB S1/2 OF S1/2 OF LOTS 9 AND 10 BLK 3 W 85' OFN1/2 OF S1/2 OF 9 AND 10 BLK 3 (PARCEL #35) |
| Parcel Number: | 360728700335 | Agent Code: | |
| Type: | Real | | |
| Tax Area: | 105 - 140-F-4 | Land Use Code | 11 |
| Open Space: | N | DFL | N |
| Historic Property: | N | Remodel Property: | N |
| Multi-Family Redevelopment: | N | | |
| Township: | 7 | Section: | 28 |
| Range: | 36 |
Location |
| Address: | 1024 S WILBUR AVE WA 99362 | Mapsco: | |
| Neighborhood: | A Res | Map ID: | |
| Neighborhood CD: | 613011 |
Owner |
| Name: | GRENNAN TYLER | Owner ID: | 72840 |
| Mailing Address: | 1024 S WILBUR AVE WALLA WALLA, WA 99362 | % Ownership: | 100.0000000000% |
| | | Exemptions: | |
Taxes and Assessment Details
Property Tax Information as of
02/21/2026
Click on "Statement Details" to expand or collapse a tax statement.
* Please enter a valid date ** Please enter a valid date *
Statement Details |
| | TOTAL: | $0.00 | $0.00 | $0.00 | $0.00 | $0.00 | $0.00 |
|
| | $0.00 | $0.00 | $0.00 | $0.00 | $0.00 | $0.00 |
Values
| (+) Improvement Homesite Value: | + | $0 | |
| (+) Improvement Non-Homesite Value: | + | $267,120 | |
| (+) Land Homesite Value: | + | $0 | |
| (+) Land Non-Homesite Value: | + | $99,720 | |
| (+) Curr Use (HS): | + | $0 | $0 |
| (+) Curr Use (NHS): | + | $0 | $0 |
| | | -------------------------- | |
| (=) Market Value: | = | $366,840 | |
| (–) Productivity Loss: | – | $0 | |
| | | -------------------------- | |
| (=) Subtotal: | = | $366,840 | |
| (+) Senior Appraised Value: | + | $0 | |
| (+) Non-Senior Appraised Value: | + | $366,840 | |
| | | -------------------------- | |
| (=) Total Appraised Value: | = | $366,840 | |
| (–) Senior Exemption Loss: | – | $0 | |
| (–) Exemption Loss: | – | $0 | |
| | | -------------------------- | |
| (=) Taxable Value: | = | $366,840 | |
Taxing Jurisdiction
| Owner: | GRENNAN TYLER | | |
| % Ownership: | 100.0000000000% | | |
| Total Value: | $366,840 | | |
| Tax Area: | 105 - 140-F-4 |
| CERFD | CURRENT EXPENSE REFUND 010 | 0.0000000000 | $366,840 | $366,840 | $0.00 | | |
| CURREXP | CURRENT EXPENSE 010 | 1.0175366760 | $366,840 | $366,840 | $373.27 | | |
| HUMNSERV | HUMAN SERVICES 119 | 0.0250000000 | $366,840 | $366,840 | $9.17 | | |
| SLDREL | SOLDIERS RELIEF 121 | 0.0155990005 | $366,840 | $366,840 | $5.72 | | |
| EMERGSER | EMS 147 | 0.3792580840 | $366,840 | $366,840 | $139.13 | | |
| EMSRFD | EMS REFUND 147 | 0.0000000000 | $366,840 | $366,840 | $0.00 | | |
| FD4EXP | FD #4 EXPENSE 686 | 0.8836993059 | $366,840 | $366,840 | $324.18 | | |
| RLBRFD | RURAL LIBRARY REFUND 623 | 0.0000000000 | $366,840 | $366,840 | $0.00 | | |
| RURALLIB | RURAL LIBRARY 623 | 0.3710609029 | $366,840 | $366,840 | $136.12 | | |
| PORTRFD | PORT REFUND 640 | 0.0000000000 | $366,840 | $366,840 | $0.00 | | |
| PORTWWGEN | PORT OF WW 640 | 0.2460186015 | $366,840 | $366,840 | $90.25 | | |
| SD140BOND | SD #140 BOND 764 | 0.8342371393 | $366,840 | $366,840 | $306.03 | | |
| SD140GEN | SD #140 GENERAL 760 | 2.0646500647 | $366,840 | $366,840 | $757.40 | | |
| ST2 | STATE SCHOOL PART 2 600 | 0.8131451643 | $366,840 | $366,840 | $298.29 | | |
| STATESCHL | STATE SCHOOL 600 | 1.5158548041 | $366,840 | $366,840 | $556.08 | | |
| STREFUND | STATE REFUND LEVY 603 | 0.0000000000 | $366,840 | $366,840 | $0.00 | | |
| COROAD | COUNTY ROAD 115 | 1.6549953990 | $366,840 | $366,840 | $607.12 | | |
| CRPRD | COUNTY ROAD REFUND 115 | 0.0000000000 | $366,840 | $366,840 | $0.00 | | |
| | Total Tax Rate: | 9.8210551422 | | | | | |
| | | | | Taxes w/Current Exemptions: | $3,602.76 | | |
| | | | | Taxes w/o Exemptions: | $3,602.76 | | |
Improvement / Building
| Improvement #1: | RESIDENTIAL | State Code: | 11 | 1596.0 sqft | Value: | $267,120 |
| Exterior Wall: | PLYWOOD | Heating/Cooling: | BASEBOARD ELECTRIC | | Number of Bathrooms: | 2 | Number of Bedrooms: | 3 | | Plumbing: | 9 | Roof Covering: | COMP SHINGLE |
|
| | Type | Description | Class CD | Sub Class CD | Year Built | Area |
| | MA | Main Area | 1 | 30 | 1949 | 1596.0 |
| | SI1 | SITE IMPROVEMENT | 1 | 30 | 1949 | 2.5 |
| | GFP | GAS FIREPLACE | 1 | 30 | 1949 | 1.0 |
| | PRC | PORCH W STEPS, ROOF,CEILED | 1 | 30 | 1949 | 64.0 |
| | WOD | Wood Deck | 1 | 30 | 1949 | 240.0 |
| | DTG | Detached Garage | 1 | 30 | 1949 | 792.0 |
Sketch
Property Image
Land
| 1 | RES 1 | Converted: Residential | 0.5287 | 23030.00 | 0.00 | 0.00 | 1.00 | $99,720 | $0 |
Roll Value History
| 2026 | N/A | N/A | N/A | N/A | N/A |
| 2025 | $256,490 | $121,600 | $0 | $378,090 | $378,090 |
| 2024 | $267,120 | $99,720 | $0 | $366,840 | $366,840 |
| 2023 | $267,120 | $99,720 | $0 | $366,840 | $366,840 |
| 2022 | $267,120 | $79,450 | $0 | $346,570 | $346,570 |
| 2021 | $222,600 | $79,450 | $0 | $302,050 | $302,050 |
| 2020 | $185,500 | $79,450 | $0 | $264,950 | $264,950 |
| 2019 | $185,500 | $79,450 | $0 | $264,950 | $264,950 |
| 2018 | $163,220 | $58,200 | $0 | $221,420 | $221,420 |
| 2017 | $148,390 | $58,200 | $0 | $206,590 | $206,590 |
| 2016 | $129,030 | $58,200 | $0 | $187,230 | $187,230 |
| 2015 | $112,200 | $58,200 | $0 | $170,400 | $170,400 |
| 2014 | $112,200 | $58,200 | $0 | $170,400 | $170,400 |
| 2013 | $112,200 | $58,200 | $0 | $170,400 | $170,400 |
| 2012 | $105,800 | $58,200 | $0 | $0 | $0 |
| 2011 | $105,800 | $58,200 | $0 | $0 | $0 |
| 2010 | $90,900 | $58,200 | $0 | $0 | $0 |
| 2009 | $107,500 | $58,200 | $0 | $0 | $0 |
| 2008 | $107,500 | $58,200 | $0 | $0 | $0 |
| 2007 | $91,200 | $35,700 | $0 | $0 | $0 |
Deed and Sales History
| 1 | 11/28/2022 | SWD | STATUTORY WARRANTY DEED | FARNHAM STUART J & COLLEEN K | GRENNAN TYLER | | | $367,500.00 | 145063 | 2022-09361 |
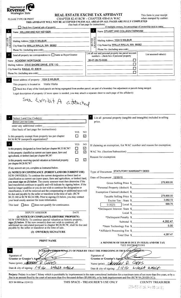
| 2 | 01/05/2016 | SWD | STATUTORY WARRANTY DEED | THE KEYSER FAMILY TRUST | FARNHAM STUART J & COLLEEN K | | | $279,900.00 | 129455 | 2016-00088 |
| 3 | 02/18/2014 | QCD | QUIT CLAIM DEED | KEYSER WILLIAM H | THE KEYSER FAMILY TRUST | | | | 125446 | 2014-01199 |
| 4 | 12/08/2003 | WARRANTY D | WARRANTY DEED | KELLER, TERRY & DEBBIE | KEYSER, WILLIAM H | | | $114,500.00 | 103672 | 2003-18541 |
| 5 | 12/08/2003 | QCD | QUIT CLAIM DEED | KEYSER, KAY F | KEYSER, WILLIAM H | | | | 103671 | 2003-18540 |
| 6 | 03/02/1989 | WARRANTY D | WARRANTY DEED | | | | | $37,500.00 | 70034 | 1758-901333 |
Payout Agreement
| No payout information available.. |