Property
Account |
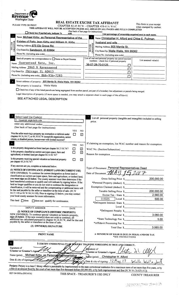
| Property ID: | 9868 | Abbreviated Legal Description: | EAST SCHAFFERS SUB TAX 11 LOT 7 BLK 1 |
| Parcel Number: | 360728700125 | Agent Code: | |
| Type: | Real | | |
| Tax Area: | 1 - OL-140-F | Land Use Code | 11 |
| Open Space: | N | DFL | N |
| Historic Property: | N | Remodel Property: | N |
| Multi-Family Redevelopment: | N | | |
| Township: | 7 | Section: | 28 |
| Range: | 36 |
Location |
| Address: | 805 MANILA ST WA 99362 | Mapsco: | |
| Neighborhood: | A Res | Map ID: | |
| Neighborhood CD: | 613011 |
Owner |
| Name: | MINOR TRAVIS JORDAN & BEATRIZ R VACILOTTO | Owner ID: | 67069 |
| Mailing Address: | 805 MANILA ST WALLA WALLA, WA 99362 | % Ownership: | 100.0000000000% |
| | | Exemptions: | |
Taxes and Assessment Details
Property Tax Information as of
02/21/2026
Click on "Statement Details" to expand or collapse a tax statement.
* Please enter a valid date ** Please enter a valid date *
Statement Details |
| | TOTAL: | $0.00 | $0.00 | $0.00 | $0.00 | $0.00 | $0.00 |
|
| | $0.00 | $0.00 | $0.00 | $0.00 | $0.00 | $0.00 |
Values
| (+) Improvement Homesite Value: | + | $0 | |
| (+) Improvement Non-Homesite Value: | + | $294,370 | |
| (+) Land Homesite Value: | + | $0 | |
| (+) Land Non-Homesite Value: | + | $69,500 | |
| (+) Curr Use (HS): | + | $0 | $0 |
| (+) Curr Use (NHS): | + | $0 | $0 |
| | | -------------------------- | |
| (=) Market Value: | = | $363,870 | |
| (–) Productivity Loss: | – | $0 | |
| | | -------------------------- | |
| (=) Subtotal: | = | $363,870 | |
| (+) Senior Appraised Value: | + | $0 | |
| (+) Non-Senior Appraised Value: | + | $363,870 | |
| | | -------------------------- | |
| (=) Total Appraised Value: | = | $363,870 | |
| (–) Senior Exemption Loss: | – | $0 | |
| (–) Exemption Loss: | – | $0 | |
| | | -------------------------- | |
| (=) Taxable Value: | = | $363,870 | |
Taxing Jurisdiction
| Owner: | MINOR TRAVIS JORDAN & BEATRIZ R VACILOTTO | | |
| % Ownership: | 100.0000000000% | | |
| Total Value: | $363,870 | | |
| Tax Area: | 1 - OL-140-F |
| CERFD | CURRENT EXPENSE REFUND 010 | 0.0000000000 | $363,870 | $363,870 | $0.00 | | |
| CURREXP | CURRENT EXPENSE 010 | 1.0175366760 | $363,870 | $363,870 | $370.25 | | |
| HUMNSERV | HUMAN SERVICES 119 | 0.0250000000 | $363,870 | $363,870 | $9.10 | | |
| SLDREL | SOLDIERS RELIEF 121 | 0.0155990005 | $363,870 | $363,870 | $5.68 | | |
| EMERGSER | EMS 147 | 0.3792580840 | $363,870 | $363,870 | $138.00 | | |
| EMSRFD | EMS REFUND 147 | 0.0000000000 | $363,870 | $363,870 | $0.00 | | |
| PORTRFD | PORT REFUND 640 | 0.0000000000 | $363,870 | $363,870 | $0.00 | | |
| PORTWWGEN | PORT OF WW 640 | 0.2460186015 | $363,870 | $363,870 | $89.52 | | |
| SD140BOND | SD #140 BOND 764 | 0.8342371393 | $363,870 | $363,870 | $303.55 | | |
| SD140GEN | SD #140 GENERAL 760 | 2.0646500647 | $363,870 | $363,870 | $751.26 | | |
| ST2 | STATE SCHOOL PART 2 600 | 0.8131451643 | $363,870 | $363,870 | $295.88 | | |
| STATESCHL | STATE SCHOOL 600 | 1.5158548041 | $363,870 | $363,870 | $551.57 | | |
| STREFUND | STATE REFUND LEVY 603 | 0.0000000000 | $363,870 | $363,870 | $0.00 | | |
| CWWBOND | C OF WW BOND 643 | 0.2760494372 | $363,870 | $363,870 | $100.45 | | |
| CWWGEN | CITY OF WW 631 | 1.6100204973 | $363,870 | $363,870 | $585.84 | | |
| CWWRFD | CITY OF WALLA WALLA REFUND 631 | 0.0000000000 | $363,870 | $363,870 | $0.00 | | |
| | Total Tax Rate: | 8.7973694689 | | | | | |
| | | | | Taxes w/Current Exemptions: | $3,201.10 | | |
| | | | | Taxes w/o Exemptions: | $3,201.10 | | |
Improvement / Building
| Improvement #1: | RESIDENTIAL | State Code: | 11 | 1040.0 sqft | Value: | $294,370 |
| Exterior Wall: | SIDING | Heating/Cooling: | WARM & COOLED AIR | | Number of Bathrooms: | 1 | Number of Bedrooms: | 4 | | Plumbing: | 6 | Roof Covering: | COMP SHINGLE |
|
| | Type | Description | Class CD | Sub Class CD | Year Built | Area |
| | MA | Main Area | 1 | 30 | 1956 | 1040.0 |
| | SI1 | SITE IMPROVEMENT | 1 | 30 | 1956 | 1.5 |
| | BASE | BASEMENT | 1 | 30 | 1956 | 1040.0 |
| | BPF | BASEMENT -PARTITIONED FINISH | 1 | 30 | 1956 | 606.0 |
| | S1F | Single One Story Fireplace | 1 | 30 | 1956 | 1.0 |
| | PRC | PORCH W STEPS, ROOF,CEILED | 1 | 30 | 1956 | 30.0 |
| | RPC | OPEN PORCH W/ROOF , CEILED | 1 | 30 | 1956 | 108.0 |
| | CPC | COVERED CARPORT/PATIO | 1 | 30 | 1956 | 264.0 |
Sketch
Property Image
Land
| 1 | RES 1 | Converted: Residential | 0.1773 | 7722.00 | 0.00 | 0.00 | 1.00 | $69,500 | $0 |
Roll Value History
| 2026 | N/A | N/A | N/A | N/A | N/A |
| 2025 | $276,000 | $84,940 | $0 | $360,940 | $360,940 |
| 2024 | $294,370 | $69,500 | $0 | $363,870 | $363,870 |
| 2023 | $294,370 | $69,500 | $0 | $363,870 | $363,870 |
| 2022 | $255,970 | $55,990 | $0 | $311,960 | $311,960 |
| 2021 | $189,610 | $55,990 | $0 | $245,600 | $245,600 |
| 2020 | $140,450 | $55,990 | $0 | $196,440 | $196,440 |
| 2019 | $140,450 | $55,990 | $0 | $196,440 | $196,440 |
| 2018 | $143,640 | $45,200 | $0 | $188,840 | $188,840 |
| 2017 | $102,600 | $45,200 | $0 | $147,800 | $147,800 |
| 2016 | $85,500 | $45,200 | $0 | $130,700 | $130,700 |
| 2015 | $85,500 | $45,200 | $0 | $130,700 | $130,700 |
| 2014 | $85,500 | $45,200 | $0 | $130,700 | $130,700 |
| 2013 | $85,500 | $45,200 | $0 | $130,700 | $130,700 |
| 2012 | $95,100 | $45,200 | $0 | $0 | $0 |
| 2011 | $95,100 | $45,200 | $0 | $0 | $0 |
| 2010 | $88,000 | $45,600 | $0 | $0 | $0 |
| 2009 | $102,800 | $45,600 | $0 | $0 | $0 |
| 2008 | $102,800 | $45,600 | $0 | $0 | $0 |
| 2007 | $66,200 | $23,100 | $0 | $0 | $0 |
Deed and Sales History
| 1 | 04/29/2020 | SWD | STATUTORY WARRANTY DEED | ALFORD CHRISTOPHER H | MINOR TRAVIS JORDAN & BEATRIZ R VACILOTTO | | | $250,000.00 | 138996 | 2020-03667 |
| 2 | 05/15/2017 | DPR | DEED OF PERSONAL REPRESENTATIVE | KIRBY PATTY JEAN ESTATE OF | ALFORD CHRISTOPHER H | | | $200,000.00 | 132392 | 2017-03662 |
| 3 | 05/15/2017 | QCD | QUIT CLAIM DEED | KIRBY DORIS R | KIRBY WILLIAM H | | | $0.00 | 132391 | 2017-03661 |
| 4 | 08/30/2016 | DEATH CERT | DEATH CERTIFICATE | KIRBY WILLIAM H | | | | | 0 | 2016-07003 |
| 5 | 08/30/2016 | COMMUNITY | COMMUNITY PROPERTY AGREEMENT | KIRBY WILLIAM H & PATTY JEAN | KIRBY WILLIAM H & PATTY JEAN | | | | 0 | 2016-07002 |
| 6 | 05/05/1970 | WARRANTY D | WARRANTY DEED | | | | | $18,546.00 | 0 | 3350-507515 |
| 7 | 11/11/1970 | ORDINANCE | ORDINANCE | | | | | | 0 | A-2432 |
| 8 | 05/28/1969 | ORDINANCE | ORDINANCE | | | | | | 0 | A-2356 |
Payout Agreement
| No payout information available.. |