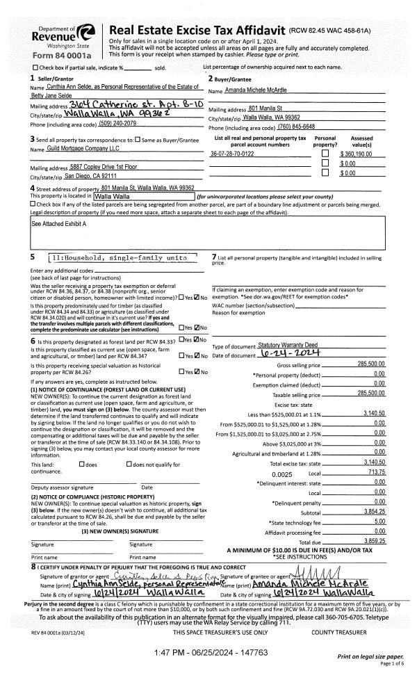
Property
Account |
| Property ID: | 9866 | Abbreviated Legal Description: | EAST SCHAFFERS SUB TAX 8 BLK 1 PLUS 1/2 VAC ALLEY |
| Parcel Number: | 360728700122 | Agent Code: | |
| Type: | Real | | |
| Tax Area: | 1 - OL-140-F | Land Use Code | 11 |
| Open Space: | N | DFL | N |
| Historic Property: | N | Remodel Property: | N |
| Multi-Family Redevelopment: | N | | |
| Township: | 7 | Section: | 28 |
| Range: | 36 |
Location |
| Address: | 801 MANILA ST WA 99362 | Mapsco: | |
| Neighborhood: | A Res | Map ID: | |
| Neighborhood CD: | 613011 |
Owner |
| Name: | SELDE BETTY JANE ESTATE OF | Owner ID: | 65122 |
| Mailing Address: | 801 MANILA ST WALLA WALLA, WA 99362 | % Ownership: | 100.0000000000% |
| | | Exemptions: | |
Taxes and Assessment Details
Values
| (+) Improvement Homesite Value: | + | $269,850 | |
| (+) Improvement Non-Homesite Value: | + | $0 | |
| (+) Land Homesite Value: | + | $90,340 | |
| (+) Land Non-Homesite Value: | + | $0 | |
| (+) Curr Use (HS): | + | $0 | $0 |
| (+) Curr Use (NHS): | + | $0 | $0 |
| | | -------------------------- | |
| (=) Market Value: | = | $360,190 | |
| (–) Productivity Loss: | – | $0 | |
| | | -------------------------- | |
| (=) Subtotal: | = | $360,190 | |
| (+) Senior Appraised Value: | + | $0 | |
| (+) Non-Senior Appraised Value: | + | $360,190 | |
| | | -------------------------- | |
| (=) Total Appraised Value: | = | $360,190 | |
| (–) Senior Exemption Loss: | – | $0 | |
| (–) Exemption Loss: | – | $0 | |
| | | -------------------------- | |
| (=) Taxable Value: | = | $360,190 | |
Taxing Jurisdiction
| Owner: | SELDE BETTY JANE ESTATE OF | | |
| % Ownership: | 100.0000000000% | | |
| Total Value: | $360,190 | | |
| Tax Area: | 1 - OL-140-F |
| CERFD | CURRENT EXPENSE REFUND 010 | 0.0000000000 | $360,190 | $360,190 | $0.00 | | |
| CURREXP | CURRENT EXPENSE 010 | 1.0175366760 | $360,190 | $360,190 | $366.51 | | |
| HUMNSERV | HUMAN SERVICES 119 | 0.0250000000 | $360,190 | $360,190 | $9.00 | | |
| SLDREL | SOLDIERS RELIEF 121 | 0.0155990005 | $360,190 | $360,190 | $5.62 | | |
| EMERGSER | EMS 147 | 0.3792580840 | $360,190 | $360,190 | $136.60 | | |
| EMSRFD | EMS REFUND 147 | 0.0000000000 | $360,190 | $360,190 | $0.00 | | |
| PORTRFD | PORT REFUND 640 | 0.0000000000 | $360,190 | $360,190 | $0.00 | | |
| PORTWWGEN | PORT OF WW 640 | 0.2460186015 | $360,190 | $360,190 | $88.61 | | |
| SD140BOND | SD #140 BOND 764 | 0.8342371393 | $360,190 | $360,190 | $300.48 | | |
| SD140GEN | SD #140 GENERAL 760 | 2.0646500647 | $360,190 | $360,190 | $743.67 | | |
| ST2 | STATE SCHOOL PART 2 600 | 0.8131451643 | $360,190 | $360,190 | $292.89 | | |
| STATESCHL | STATE SCHOOL 600 | 1.5158548041 | $360,190 | $360,190 | $546.00 | | |
| STREFUND | STATE REFUND LEVY 603 | 0.0000000000 | $360,190 | $360,190 | $0.00 | | |
| CWWBOND | C OF WW BOND 643 | 0.2760494372 | $360,190 | $360,190 | $99.43 | | |
| CWWGEN | CITY OF WW 631 | 1.6100204973 | $360,190 | $360,190 | $579.91 | | |
| CWWRFD | CITY OF WALLA WALLA REFUND 631 | 0.0000000000 | $360,190 | $360,190 | $0.00 | | |
| | Total Tax Rate: | 8.7973694689 | | | | | |
| | | | | Taxes w/Current Exemptions: | $3,168.72 | | |
| | | | | Taxes w/o Exemptions: | $3,168.72 | | |
Improvement / Building
| Improvement #1: | RESIDENTIAL | State Code: | 11 | 1040.0 sqft | Value: | $269,850 |
| Exterior Wall: | SIDING | Heating/Cooling: | WARM & COOLED AIR | | Number of Bathrooms: | 2 | Number of Bedrooms: | 4 | | Plumbing: | 8 | Roof Covering: | COMP SHINGLE |
|
| | Type | Description | Class CD | Sub Class CD | Year Built | Area |
| | MA | Main Area | 1 | 30 | 1955 | 1040.0 |
| | SI1 | SITE IMPROVEMENT | 1 | 30 | 1955 | 1.5 |
| | BASE | BASEMENT | 1 | 30 | 1955 | 1040.0 |
| | BPF | BASEMENT -PARTITIONED FINISH | 1 | 30 | 1955 | 691.0 |
| | PRC | PORCH W STEPS, ROOF,CEILED | 1 | 30 | 1955 | 20.0 |
| | CPC | COVERED CARPORT/PATIO | 1 | 30 | 1955 | 315.0 |
Sketch
Property Image
Land
| 1 | RES 1 | Converted: Residential | 0.2378 | 10360.00 | 0.00 | 0.00 | 1.00 | $90,340 | $0 |
Roll Value History
| 2026 | N/A | N/A | N/A | N/A | N/A |
| 2025 | $174,570 | $110,330 | $0 | $284,900 | $284,900 |
| 2024 | $269,850 | $90,340 | $0 | $360,190 | $360,190 |
| 2023 | $269,850 | $90,340 | $0 | $360,190 | $360,190 |
| 2022 | $234,650 | $72,730 | $0 | $307,380 | $122,952 |
| 2021 | $173,810 | $72,730 | $0 | $246,540 | $246,540 |
| 2020 | $139,050 | $72,730 | $0 | $211,780 | $211,780 |
| 2019 | $139,050 | $72,730 | $0 | $211,780 | $211,780 |
| 2018 | $134,610 | $47,400 | $0 | $182,010 | $182,010 |
| 2017 | $116,040 | $47,400 | $0 | $163,440 | $163,440 |
| 2016 | $96,700 | $47,400 | $0 | $144,100 | $144,100 |
| 2015 | $96,700 | $47,400 | $0 | $144,100 | $144,100 |
| 2014 | $96,700 | $47,400 | $0 | $144,100 | $144,100 |
| 2013 | $96,700 | $47,400 | $0 | $144,100 | $144,100 |
| 2012 | $91,600 | $47,400 | $0 | $0 | $0 |
| 2011 | $91,600 | $47,400 | $0 | $0 | $0 |
| 2010 | $85,000 | $47,400 | $0 | $0 | $0 |
| 2009 | $99,700 | $47,400 | $0 | $0 | $0 |
| 2008 | $99,700 | $47,400 | $0 | $0 | $0 |
| 2007 | $70,100 | $24,900 | $0 | $0 | $0 |
Deed and Sales History
| 1 | 06/25/2024 | SWD | STATUTORY WARRANTY DEED | SELDE BETTY JANE ESTATE OF | MCARDLE AMANDA MICHELE | | | $285,500.00 | 147763 | 2024-03380 |
| 2 | 09/13/2010 | COMMUNITY | COMMUNITY PROPERTY AGREEMENT | SELDE VERNON & BETTY JANE | | | | | 0 | 2010-07184 |
| 3 | 08/01/1963 | WARRANTY D | WARRANTY DEED | | | | | $16,142.00 | 0 | 3070-450764 |
Payout Agreement
| No payout information available.. |