Property
Account |
| Property ID: | 9842 | Abbreviated Legal Description: | PERRY ADDITION LOT 12 |
| Parcel Number: | 360728670012 | Agent Code: | |
| Type: | Real | | |
| Tax Area: | 1 - OL-140-F | Land Use Code | 11 |
| Open Space: | N | DFL | N |
| Historic Property: | N | Remodel Property: | N |
| Multi-Family Redevelopment: | N | | |
| Township: | 7 | Section: | 28 |
| Range: | 36 |
Location |
| Address: | 1441 TAWNY LN WA 99362 | Mapsco: | |
| Neighborhood: | G Res | Map ID: | |
| Neighborhood CD: | 614011 |
Owner |
| Name: | SMITH SCOTT D | Owner ID: | 64721 |
| Mailing Address: | COURTNEY J GUMM 1441 TAWNY LN WALLA WALLA, WA 99362 | % Ownership: | 100.0000000000% |
| | | Exemptions: | |
Taxes and Assessment Details
Values
| (+) Improvement Homesite Value: | + | $0 | |
| (+) Improvement Non-Homesite Value: | + | $222,140 | |
| (+) Land Homesite Value: | + | $0 | |
| (+) Land Non-Homesite Value: | + | $125,060 | |
| (+) Curr Use (HS): | + | $0 | $0 |
| (+) Curr Use (NHS): | + | $0 | $0 |
| | | -------------------------- | |
| (=) Market Value: | = | $347,200 | |
| (–) Productivity Loss: | – | $0 | |
| | | -------------------------- | |
| (=) Subtotal: | = | $347,200 | |
| (+) Senior Appraised Value: | + | $0 | |
| (+) Non-Senior Appraised Value: | + | $347,200 | |
| | | -------------------------- | |
| (=) Total Appraised Value: | = | $347,200 | |
| (–) Senior Exemption Loss: | – | $0 | |
| (–) Exemption Loss: | – | $0 | |
| | | -------------------------- | |
| (=) Taxable Value: | = | $347,200 | |
Taxing Jurisdiction
| Owner: | SMITH SCOTT D | | |
| % Ownership: | 100.0000000000% | | |
| Total Value: | $347,200 | | |
| Tax Area: | 1 - OL-140-F |
| CERFD | CURRENT EXPENSE REFUND 010 | 0.0000000000 | $347,200 | $347,200 | $0.00 | | |
| CURREXP | CURRENT EXPENSE 010 | 1.0175366760 | $347,200 | $347,200 | $353.29 | | |
| HUMNSERV | HUMAN SERVICES 119 | 0.0250000000 | $347,200 | $347,200 | $8.68 | | |
| SLDREL | SOLDIERS RELIEF 121 | 0.0155990005 | $347,200 | $347,200 | $5.42 | | |
| EMERGSER | EMS 147 | 0.3792580840 | $347,200 | $347,200 | $131.68 | | |
| EMSRFD | EMS REFUND 147 | 0.0000000000 | $347,200 | $347,200 | $0.00 | | |
| PORTRFD | PORT REFUND 640 | 0.0000000000 | $347,200 | $347,200 | $0.00 | | |
| PORTWWGEN | PORT OF WW 640 | 0.2460186015 | $347,200 | $347,200 | $85.42 | | |
| SD140BOND | SD #140 BOND 764 | 0.8342371393 | $347,200 | $347,200 | $289.65 | | |
| SD140GEN | SD #140 GENERAL 760 | 2.0646500647 | $347,200 | $347,200 | $716.85 | | |
| ST2 | STATE SCHOOL PART 2 600 | 0.8131451643 | $347,200 | $347,200 | $282.32 | | |
| STATESCHL | STATE SCHOOL 600 | 1.5158548041 | $347,200 | $347,200 | $526.30 | | |
| STREFUND | STATE REFUND LEVY 603 | 0.0000000000 | $347,200 | $347,200 | $0.00 | | |
| CWWBOND | C OF WW BOND 643 | 0.2760494372 | $347,200 | $347,200 | $95.84 | | |
| CWWGEN | CITY OF WW 631 | 1.6100204973 | $347,200 | $347,200 | $559.00 | | |
| CWWRFD | CITY OF WALLA WALLA REFUND 631 | 0.0000000000 | $347,200 | $347,200 | $0.00 | | |
| | Total Tax Rate: | 8.7973694689 | | | | | |
| | | | | Taxes w/Current Exemptions: | $3,054.45 | | |
| | | | | Taxes w/o Exemptions: | $3,054.45 | | |
Improvement / Building
| Improvement #1: | RESIDENTIAL | State Code: | 11 | 995.0 sqft | Value: | $222,140 |
| Exterior Wall: | PLYWOOD | Heating/Cooling: | WARM & COOLED AIR | | Number of Bathrooms: | 2 | Number of Bedrooms: | 4 | | Plumbing: | 9 | Roof Covering: | COMP SHINGLE |
|
| | Type | Description | Class CD | Sub Class CD | Year Built | Area |
| | MA | Main Area | 11 | 30 | 1970 | 995.0 |
| | SI1 | SITE IMPROVEMENT | 11 | 30 | 1970 | 3.5 |
| | BASE | BASEMENT | 11 | 30 | 1970 | 960.0 |
| | BPF | BASEMENT -PARTITIONED FINISH | 11 | 30 | 1970 | 960.0 |
| | ATG | Attached Garage | 11 | 30 | 1970 | 675.0 |
| | WOD | Wood Deck | 11 | 30 | 1970 | 638.0 |
| | SMP | SWIMMING POOL | 11 | 30 | 1970 | 1.0 |
| | RPC | OPEN PORCH W/ROOF , CEILED | 11 | 30 | 1970 | 30.0 |
Sketch
Property Image
Land
| 1 | RES 1 | Converted: Residential | 0.3960 | 17250.00 | 0.00 | 0.00 | 1.00 | $125,060 | $0 |
Roll Value History
| 2026 | N/A | N/A | N/A | N/A | N/A |
| 2025 | $235,060 | $148,350 | $0 | $383,410 | $383,410 |
| 2024 | $255,460 | $125,060 | $0 | $380,520 | $380,520 |
| 2023 | $222,140 | $125,060 | $0 | $347,200 | $347,200 |
| 2022 | $222,140 | $102,640 | $0 | $324,780 | $324,780 |
| 2021 | $170,880 | $102,640 | $0 | $273,520 | $273,520 |
| 2020 | $162,740 | $102,640 | $0 | $265,380 | $265,380 |
| 2019 | $162,740 | $102,640 | $0 | $265,380 | $265,380 |
| 2018 | $182,790 | $53,300 | $0 | $236,090 | $236,090 |
| 2017 | $152,320 | $53,300 | $0 | $205,620 | $205,620 |
| 2016 | $145,070 | $53,300 | $0 | $198,370 | $198,370 |
| 2015 | $138,160 | $53,300 | $0 | $191,460 | $191,460 |
| 2014 | $125,600 | $53,300 | $0 | $178,900 | $178,900 |
| 2013 | $125,600 | $53,300 | $0 | $178,900 | $178,900 |
| 2012 | $120,900 | $53,300 | $0 | $0 | $0 |
| 2011 | $120,900 | $53,300 | $0 | $0 | $0 |
| 2010 | $120,900 | $53,300 | $0 | $0 | $0 |
| 2009 | $140,200 | $53,300 | $0 | $0 | $0 |
| 2008 | $140,200 | $53,300 | $0 | $0 | $0 |
| 2007 | $105,100 | $30,800 | $0 | $0 | $0 |
Deed and Sales History
| 1 | 02/20/2019 | SWD | STATUTORY WARRANTY DEED | SCHENK RYAN W & JANA L | SMITH SCOTT D | | | $270,000.00 | 136409 | 2019-01108 |
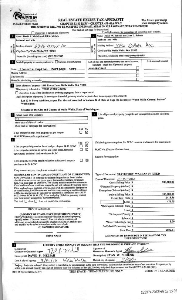
| 2 | 05/16/2013 | WARRANTY D | WARRANTY DEED | MELIAH, DAVID P & JILL K | SCHENK, RYAN W & JANA L | | | $188,700.00 | 123974 | 2013-04920 |
| 3 | 02/23/2005 | WARRANTY D | WARRANTY DEED | MULLINS, COREY J & JULIE F | MELIAH, DAVID P & JILL K | | | $165,000.00 | 106825 | 2005-02062 |
| 4 | 08/25/1998 | WARRANTY D | WARRANTY DEED | | | | | $122,500.00 | 91099 | 2719-809682 |
Payout Agreement
| No payout information available.. |