Property
Account |
| Property ID: | 9825 | Abbreviated Legal Description: | PAXTON PARK TAX 5 LOT 9 |
| Parcel Number: | 360728660009 | Agent Code: | |
| Type: | Real | | |
| Tax Area: | 1 - OL-140-F | Land Use Code | 11 |
| Open Space: | N | DFL | N |
| Historic Property: | N | Remodel Property: | N |
| Multi-Family Redevelopment: | N | | |
| Township: | 7 | Section: | 28 |
| Range: | 36 |
Location |
| Address: | 715 LIBERTY PL WALLA WALLA, WA 99362 | Mapsco: | |
| Neighborhood: | A Res | Map ID: | |
| Neighborhood CD: | 613011 |
Owner |
| Name: | HERR REBECCA E & MICHAEL A | Owner ID: | 69809 |
| Mailing Address: | 715 LIBERTY PL WALLA WALLA, WA 99362 | % Ownership: | 100.0000000000% |
| | | Exemptions: | |
Taxes and Assessment Details
Values
| (+) Improvement Homesite Value: | + | $0 | |
| (+) Improvement Non-Homesite Value: | + | $485,690 | |
| (+) Land Homesite Value: | + | $0 | |
| (+) Land Non-Homesite Value: | + | $92,330 | |
| (+) Curr Use (HS): | + | $0 | $0 |
| (+) Curr Use (NHS): | + | $0 | $0 |
| | | -------------------------- | |
| (=) Market Value: | = | $578,020 | |
| (–) Productivity Loss: | – | $0 | |
| | | -------------------------- | |
| (=) Subtotal: | = | $578,020 | |
| (+) Senior Appraised Value: | + | $0 | |
| (+) Non-Senior Appraised Value: | + | $578,020 | |
| | | -------------------------- | |
| (=) Total Appraised Value: | = | $578,020 | |
| (–) Senior Exemption Loss: | – | $0 | |
| (–) Exemption Loss: | – | $0 | |
| | | -------------------------- | |
| (=) Taxable Value: | = | $578,020 | |
Taxing Jurisdiction
| Owner: | HERR REBECCA E & MICHAEL A | | |
| % Ownership: | 100.0000000000% | | |
| Total Value: | $578,020 | | |
| Tax Area: | 1 - OL-140-F |
| CERFD | CURRENT EXPENSE REFUND 010 | 0.0000000000 | $578,020 | $578,020 | $0.00 | | |
| CURREXP | CURRENT EXPENSE 010 | 1.0175366760 | $578,020 | $578,020 | $588.16 | | |
| HUMNSERV | HUMAN SERVICES 119 | 0.0250000000 | $578,020 | $578,020 | $14.45 | | |
| SLDREL | SOLDIERS RELIEF 121 | 0.0155990005 | $578,020 | $578,020 | $9.02 | | |
| EMERGSER | EMS 147 | 0.3792580840 | $578,020 | $578,020 | $219.22 | | |
| EMSRFD | EMS REFUND 147 | 0.0000000000 | $578,020 | $578,020 | $0.00 | | |
| PORTRFD | PORT REFUND 640 | 0.0000000000 | $578,020 | $578,020 | $0.00 | | |
| PORTWWGEN | PORT OF WW 640 | 0.2460186015 | $578,020 | $578,020 | $142.20 | | |
| SD140BOND | SD #140 BOND 764 | 0.8342371393 | $578,020 | $578,020 | $482.21 | | |
| SD140GEN | SD #140 GENERAL 760 | 2.0646500647 | $578,020 | $578,020 | $1,193.41 | | |
| ST2 | STATE SCHOOL PART 2 600 | 0.8131451643 | $578,020 | $578,020 | $470.01 | | |
| STATESCHL | STATE SCHOOL 600 | 1.5158548041 | $578,020 | $578,020 | $876.19 | | |
| STREFUND | STATE REFUND LEVY 603 | 0.0000000000 | $578,020 | $578,020 | $0.00 | | |
| CWWBOND | C OF WW BOND 643 | 0.2760494372 | $578,020 | $578,020 | $159.56 | | |
| CWWGEN | CITY OF WW 631 | 1.6100204973 | $578,020 | $578,020 | $930.62 | | |
| CWWRFD | CITY OF WALLA WALLA REFUND 631 | 0.0000000000 | $578,020 | $578,020 | $0.00 | | |
| | Total Tax Rate: | 8.7973694689 | | | | | |
| | | | | Taxes w/Current Exemptions: | $5,085.05 | | |
| | | | | Taxes w/o Exemptions: | $5,085.05 | | |
Improvement / Building
| Improvement #1: | RESIDENTIAL | State Code: | 11 | 2152.0 sqft | Value: | $485,690 |
| Exterior Wall: | SIDING | Foundation: | SLAB FOUNDATION | | Heating/Cooling: | WARM & COOLED AIR | Number of Bathrooms: | 3 | | Number of Bedrooms: | 5 | Plumbing: | 15 | | Roof Covering: | COMP SHINGLE |   |   |
|
| | Type | Description | Class CD | Sub Class CD | Year Built | Area |
| | MA | Main Area | 3 | 35 | 1972 | 2152.0 |
| | SI1 | SITE IMPROVEMENT | 3 | 35 | 1972 | 5.5 |
| | UPFL | Upper Floor (included in main area) | 3 | 35 | 1972 | 672.0 |
| | ATG | Attached Garage | 3 | 35 | 1972 | 576.0 |
| | S1F | Single One Story Fireplace | 3 | 35 | 1972 | 1.0 |
| | RPC | OPEN PORCH W/ROOF , CEILED | 3 | 35 | 1972 | 24.0 |
| | WOD | Wood Deck | 3 | 30 | 1972 | 348.0 |
| | RCD | WOOD DECK W/ROOF, CEILED | 3 | 35 | 1972 | 100.0 |
Sketch
Property Image
Land
| 1 | RES 1 | Converted: Residential | 0.3019 | 13152.00 | 0.00 | 0.00 | 1.00 | $92,330 | $0 |
Roll Value History
| 2026 | N/A | N/A | N/A | N/A | N/A |
| 2025 | $469,120 | $112,840 | $0 | $581,960 | $581,960 |
| 2024 | $485,690 | $92,330 | $0 | $578,020 | $578,020 |
| 2023 | $485,690 | $92,330 | $0 | $578,020 | $578,020 |
| 2022 | $485,690 | $74,180 | $0 | $559,870 | $559,870 |
| 2021 | $272,320 | $74,180 | $0 | $346,500 | $346,500 |
| 2020 | $236,800 | $74,180 | $0 | $310,980 | $310,980 |
| 2019 | $236,800 | $74,180 | $0 | $310,980 | $310,980 |
| 2018 | $212,960 | $49,800 | $0 | $262,760 | $262,760 |
| 2017 | $193,600 | $49,800 | $0 | $243,400 | $243,400 |
| 2016 | $176,000 | $49,800 | $0 | $225,800 | $225,800 |
| 2015 | $176,000 | $49,800 | $0 | $225,800 | $225,800 |
| 2014 | $176,000 | $49,800 | $0 | $225,800 | $225,800 |
| 2013 | $176,000 | $49,800 | $0 | $225,800 | $225,800 |
| 2012 | $176,000 | $49,800 | $0 | $0 | $0 |
| 2011 | $176,000 | $49,800 | $0 | $0 | $0 |
| 2010 | $176,000 | $49,800 | $0 | $0 | $0 |
| 2009 | $201,100 | $49,800 | $0 | $0 | $0 |
| 2008 | $201,100 | $49,800 | $0 | $0 | $0 |
| 2007 | $129,000 | $27,300 | $0 | $0 | $0 |
Deed and Sales History
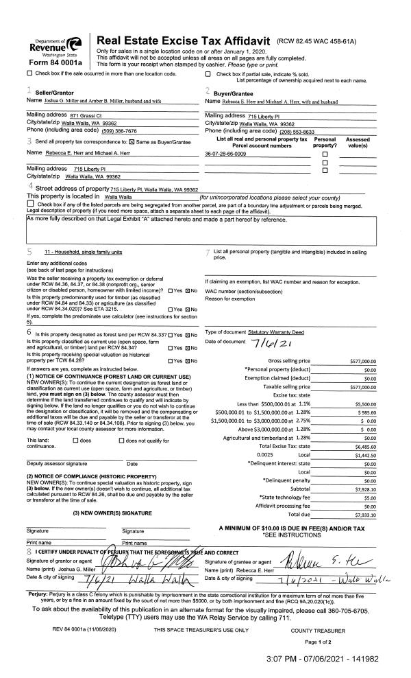
| 1 | 07/06/2021 | SWD | STATUTORY WARRANTY DEED | MILLER JOSHUA G & AMBER B | HERR REBECCA E & MICHAEL A | | | $577,000.00 | 141982 | 2021-08188 |
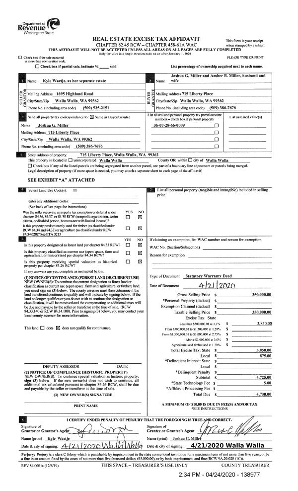
| 2 | 04/24/2020 | SWD | STATUTORY WARRANTY DEED | WAETJE KYLE | MILLER JOSHUA G & AMBER B | | | $350,000.00 | 138977 | 2020-03533 |
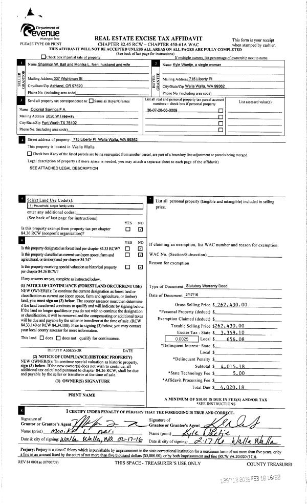
| 3 | 02/18/2016 | SWD | STATUTORY WARRANTY DEED | BALL SHARMON W | WAETJE KYLE | | | $262,430.00 | 129712 | 2016-01240 |
| 4 | 12/10/2013 | WARRANTY D | WARRANTY DEED | FRANK JEAN B | BALL SHARMON W | | | $228,000.00 | 125081 | 2013-11843 |
| 5 | 08/02/1971 | WARRANTY D | WARRANTY DEED | | | | | $4,500.00 | 0 | 3410-515887 |
Payout Agreement
| No payout information available.. |