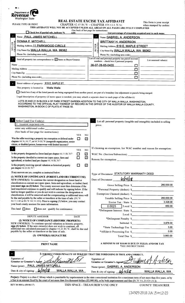
Property
Account |
| Property ID: | 9820 | Abbreviated Legal Description: | PARK ST GARDENS LOTS 20 & 21 BLK 4 |
| Parcel Number: | 360728650420 | Agent Code: | |
| Type: | Real | | |
| Tax Area: | 1 - OL-140-F | Land Use Code | 11 |
| Open Space: | N | DFL | N |
| Historic Property: | N | Remodel Property: | N |
| Multi-Family Redevelopment: | N | | |
| Township: | 7 | Section: | 28 |
| Range: | 36 |
Location |
| Address: | 619 E MAPLE ST WA 99362 | Mapsco: | |
| Neighborhood: | A Res | Map ID: | |
| Neighborhood CD: | 613011 |
Owner |
| Name: | ANDERSON GABRIEL A & BRITTANY H | Owner ID: | 63334 |
| Mailing Address: | 619 E MAPLE ST WALLA WALLA, WA 99362 | % Ownership: | 100.0000000000% |
| | | Exemptions: | |
Taxes and Assessment Details
Values
| (+) Improvement Homesite Value: | + | $0 | |
| (+) Improvement Non-Homesite Value: | + | $231,610 | |
| (+) Land Homesite Value: | + | $0 | |
| (+) Land Non-Homesite Value: | + | $85,000 | |
| (+) Curr Use (HS): | + | $0 | $0 |
| (+) Curr Use (NHS): | + | $0 | $0 |
| | | -------------------------- | |
| (=) Market Value: | = | $316,610 | |
| (–) Productivity Loss: | – | $0 | |
| | | -------------------------- | |
| (=) Subtotal: | = | $316,610 | |
| (+) Senior Appraised Value: | + | $0 | |
| (+) Non-Senior Appraised Value: | + | $316,610 | |
| | | -------------------------- | |
| (=) Total Appraised Value: | = | $316,610 | |
| (–) Senior Exemption Loss: | – | $0 | |
| (–) Exemption Loss: | – | $0 | |
| | | -------------------------- | |
| (=) Taxable Value: | = | $316,610 | |
Taxing Jurisdiction
| Owner: | ANDERSON GABRIEL A & BRITTANY H | | |
| % Ownership: | 100.0000000000% | | |
| Total Value: | $316,610 | | |
| Tax Area: | 1 - OL-140-F |
| CERFD | CURRENT EXPENSE REFUND 010 | 0.0000000000 | $316,610 | $316,610 | $0.00 | | |
| CURREXP | CURRENT EXPENSE 010 | 1.0175366760 | $316,610 | $316,610 | $322.16 | | |
| HUMNSERV | HUMAN SERVICES 119 | 0.0250000000 | $316,610 | $316,610 | $7.92 | | |
| SLDREL | SOLDIERS RELIEF 121 | 0.0155990005 | $316,610 | $316,610 | $4.94 | | |
| EMERGSER | EMS 147 | 0.3792580840 | $316,610 | $316,610 | $120.08 | | |
| EMSRFD | EMS REFUND 147 | 0.0000000000 | $316,610 | $316,610 | $0.00 | | |
| PORTRFD | PORT REFUND 640 | 0.0000000000 | $316,610 | $316,610 | $0.00 | | |
| PORTWWGEN | PORT OF WW 640 | 0.2460186015 | $316,610 | $316,610 | $77.89 | | |
| SD140BOND | SD #140 BOND 764 | 0.8342371393 | $316,610 | $316,610 | $264.13 | | |
| SD140GEN | SD #140 GENERAL 760 | 2.0646500647 | $316,610 | $316,610 | $653.69 | | |
| ST2 | STATE SCHOOL PART 2 600 | 0.8131451643 | $316,610 | $316,610 | $257.45 | | |
| STATESCHL | STATE SCHOOL 600 | 1.5158548041 | $316,610 | $316,610 | $479.93 | | |
| STREFUND | STATE REFUND LEVY 603 | 0.0000000000 | $316,610 | $316,610 | $0.00 | | |
| CWWBOND | C OF WW BOND 643 | 0.2760494372 | $316,610 | $316,610 | $87.40 | | |
| CWWGEN | CITY OF WW 631 | 1.6100204973 | $316,610 | $316,610 | $509.75 | | |
| CWWRFD | CITY OF WALLA WALLA REFUND 631 | 0.0000000000 | $316,610 | $316,610 | $0.00 | | |
| | Total Tax Rate: | 8.7973694689 | | | | | |
| | | | | Taxes w/Current Exemptions: | $2,785.34 | | |
| | | | | Taxes w/o Exemptions: | $2,785.34 | | |
Improvement / Building
| Improvement #1: | RESIDENTIAL | State Code: | 11 | 1150.0 sqft | Value: | $231,610 |
| Exterior Wall: | METAL/STEEL | Heating/Cooling: | WARM & COOLED AIR | | Number of Bathrooms: | 2 | Number of Bedrooms: | 4 | | Plumbing: | 10 | Roof Covering: | COMP SHINGLE |
|
| | Type | Description | Class CD | Sub Class CD | Year Built | Area |
| | MA | Main Area | 1 | 35 | 1940 | 1150.0 |
| | SI1 | SITE IMPROVEMENT | 1 | 35 | 1940 | 1.5 |
| | BASE | BASEMENT | 1 | 35 | 1940 | 1150.0 |
| | BPF | BASEMENT -PARTITIONED FINISH | 1 | 35 | 1940 | 1150.0 |
| | S1F | Single One Story Fireplace | 1 | 35 | 1940 | 1.0 |
| | OPS | OPEN PORCH W/STEPS | 1 | 35 | 1940 | 54.0 |
| | CPC | COVERED CARPORT/PATIO | 1 | 35 | 1940 | 489.0 |
| | DTG | Detached Garage | 1 | 35 | 1940 | 360.0 |
Sketch
Property Image
Land
| 1 | RES 1 | Converted: Residential | 0.2755 | 12000.00 | 0.00 | 0.00 | 1.00 | $85,000 | $0 |
Roll Value History
| 2026 | N/A | N/A | N/A | N/A | N/A |
| 2025 | $218,200 | $111,840 | $0 | $330,040 | $330,040 |
| 2024 | $231,610 | $85,000 | $0 | $316,610 | $316,610 |
| 2023 | $231,610 | $85,000 | $0 | $316,610 | $316,610 |
| 2022 | $231,610 | $75,000 | $0 | $306,610 | $306,610 |
| 2021 | $231,610 | $75,000 | $0 | $306,610 | $306,610 |
| 2020 | $185,290 | $75,000 | $0 | $260,290 | $260,290 |
| 2019 | $185,290 | $75,000 | $0 | $260,290 | $260,290 |
| 2018 | $166,270 | $48,800 | $0 | $215,070 | $215,070 |
| 2017 | $166,270 | $48,800 | $0 | $215,070 | $215,070 |
| 2016 | $144,590 | $48,800 | $0 | $193,390 | $193,390 |
| 2015 | $144,590 | $48,800 | $0 | $193,390 | $193,390 |
| 2014 | $137,700 | $48,800 | $0 | $186,500 | $186,500 |
| 2013 | $137,700 | $48,800 | $0 | $186,500 | $186,500 |
| 2012 | $137,700 | $48,800 | $0 | $0 | $0 |
| 2011 | $137,700 | $48,800 | $0 | $0 | $0 |
| 2010 | $113,400 | $48,800 | $0 | $0 | $0 |
| 2009 | $131,400 | $48,800 | $0 | $0 | $0 |
| 2008 | $131,400 | $48,800 | $0 | $0 | $0 |
| 2007 | $86,900 | $26,300 | $0 | $0 | $0 |
Deed and Sales History
| 1 | 06/15/2018 | SWD | STATUTORY WARRANTY DEED | MITCHELL PAUL J & DONNA E | ANDERSON GABRIEL A & BRITTANY H | | | $260,000.00 | 134929 | 2018-04823 |
| 2 | 06/28/1991 | WARRANTY D | WARRANTY DEED | | | | | $59,900.00 | 0 | 1909-104233 |
Payout Agreement
| No payout information available.. |