Property
Account |
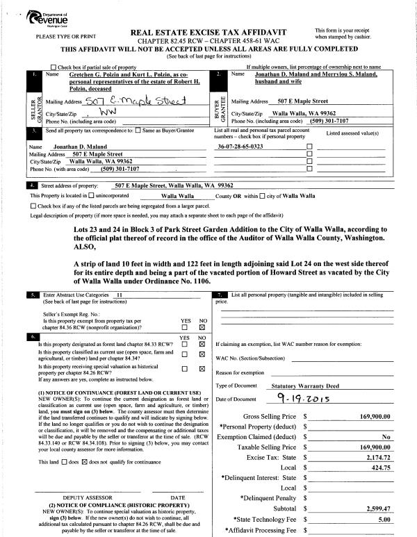
| Property ID: | 9812 | Abbreviated Legal Description: | PARK ST GARDENS LOT 23 BLK 3; LOT 24 BLK 3 AND TRACT |
| Parcel Number: | 360728650323 | Agent Code: | |
| Type: | Real | | |
| Tax Area: | 1 - OL-140-F | Land Use Code | 11 |
| Open Space: | N | DFL | N |
| Historic Property: | N | Remodel Property: | N |
| Multi-Family Redevelopment: | N | | |
| Township: | 7 | Section: | 28 |
| Range: | 36 |
Location |
| Address: | 507 E MAPLE ST WA 99362 | Mapsco: | |
| Neighborhood: | A Res | Map ID: | |
| Neighborhood CD: | 613011 |
Owner |
| Name: | MALAND JONATHAN D & MERRYLOU S | Owner ID: | 57540 |
| Mailing Address: | 507 E MAPLE ST WALLA WALLA, WA 99362 | % Ownership: | 100.0000000000% |
| | | Exemptions: | |
Taxes and Assessment Details
Property Tax Information as of
02/21/2026
Click on "Statement Details" to expand or collapse a tax statement.
* Please enter a valid date ** Please enter a valid date *
Statement Details |
| | TOTAL: | $0.00 | $0.00 | $0.00 | $0.00 | $0.00 | $0.00 |
|
| | $0.00 | $0.00 | $0.00 | $0.00 | $0.00 | $0.00 |
Values
| (+) Improvement Homesite Value: | + | $0 | |
| (+) Improvement Non-Homesite Value: | + | $284,880 | |
| (+) Land Homesite Value: | + | $0 | |
| (+) Land Non-Homesite Value: | + | $85,000 | |
| (+) Curr Use (HS): | + | $0 | $0 |
| (+) Curr Use (NHS): | + | $0 | $0 |
| | | -------------------------- | |
| (=) Market Value: | = | $369,880 | |
| (–) Productivity Loss: | – | $0 | |
| | | -------------------------- | |
| (=) Subtotal: | = | $369,880 | |
| (+) Senior Appraised Value: | + | $0 | |
| (+) Non-Senior Appraised Value: | + | $369,880 | |
| | | -------------------------- | |
| (=) Total Appraised Value: | = | $369,880 | |
| (–) Senior Exemption Loss: | – | $0 | |
| (–) Exemption Loss: | – | $0 | |
| | | -------------------------- | |
| (=) Taxable Value: | = | $369,880 | |
Taxing Jurisdiction
| Owner: | MALAND JONATHAN D & MERRYLOU S | | |
| % Ownership: | 100.0000000000% | | |
| Total Value: | $369,880 | | |
| Tax Area: | 1 - OL-140-F |
| CERFD | CURRENT EXPENSE REFUND 010 | 0.0000000000 | $369,880 | $369,880 | $0.00 | | |
| CURREXP | CURRENT EXPENSE 010 | 1.0175366760 | $369,880 | $369,880 | $376.37 | | |
| HUMNSERV | HUMAN SERVICES 119 | 0.0250000000 | $369,880 | $369,880 | $9.25 | | |
| SLDREL | SOLDIERS RELIEF 121 | 0.0155990005 | $369,880 | $369,880 | $5.77 | | |
| EMERGSER | EMS 147 | 0.3792580840 | $369,880 | $369,880 | $140.28 | | |
| EMSRFD | EMS REFUND 147 | 0.0000000000 | $369,880 | $369,880 | $0.00 | | |
| PORTRFD | PORT REFUND 640 | 0.0000000000 | $369,880 | $369,880 | $0.00 | | |
| PORTWWGEN | PORT OF WW 640 | 0.2460186015 | $369,880 | $369,880 | $91.00 | | |
| SD140BOND | SD #140 BOND 764 | 0.8342371393 | $369,880 | $369,880 | $308.57 | | |
| SD140GEN | SD #140 GENERAL 760 | 2.0646500647 | $369,880 | $369,880 | $763.67 | | |
| ST2 | STATE SCHOOL PART 2 600 | 0.8131451643 | $369,880 | $369,880 | $300.77 | | |
| STATESCHL | STATE SCHOOL 600 | 1.5158548041 | $369,880 | $369,880 | $560.68 | | |
| STREFUND | STATE REFUND LEVY 603 | 0.0000000000 | $369,880 | $369,880 | $0.00 | | |
| CWWBOND | C OF WW BOND 643 | 0.2760494372 | $369,880 | $369,880 | $102.11 | | |
| CWWGEN | CITY OF WW 631 | 1.6100204973 | $369,880 | $369,880 | $595.51 | | |
| CWWRFD | CITY OF WALLA WALLA REFUND 631 | 0.0000000000 | $369,880 | $369,880 | $0.00 | | |
| | Total Tax Rate: | 8.7973694689 | | | | | |
| | | | | Taxes w/Current Exemptions: | $3,253.98 | | |
| | | | | Taxes w/o Exemptions: | $3,253.98 | | |
Improvement / Building
| Improvement #1: | RESIDENTIAL | State Code: | 11 | 1418.0 sqft | Value: | $284,880 |
| Exterior Wall: | SIDING | Heating/Cooling: | WARM & COOLED AIR | | Number of Bathrooms: | 1 | Number of Bedrooms: | 3 | | Plumbing: | 7 | Roof Covering: | CONCRETE TILE |
|
| | Type | Description | Class CD | Sub Class CD | Year Built | Area |
| | MA | Main Area | 1 | 30 | 1922 | 1418.0 |
| | SI1 | SITE IMPROVEMENT | 1 | 30 | 1922 | 1.5 |
| | BASE | BASEMENT | 1 | 30 | 1922 | 253.0 |
| | S1F | Single One Story Fireplace | 1 | 30 | 1922 | 1.0 |
| | SWP | Solid Wall Porch | 1 | 30 | 1922 | 128.0 |
| | RCD | WOOD DECK W/ROOF, CEILED | 1 | 30 | 1922 | 194.0 |
| | DTG | Detached Garage | 1 | 30 | 1922 | 240.0 |
| | SHOP | SHOP BUILDING | 1 | 30 | 1922 | 960.0 |
Sketch
Property Image
Land
| 1 | RES 1 | Converted: Residential | 0.2755 | 12000.00 | 0.00 | 0.00 | 1.00 | $85,000 | $0 |
Roll Value History
| 2026 | N/A | N/A | N/A | N/A | N/A |
| 2025 | $280,220 | $111,840 | $0 | $392,060 | $392,060 |
| 2024 | $299,120 | $85,000 | $0 | $384,120 | $384,120 |
| 2023 | $284,880 | $85,000 | $0 | $369,880 | $369,880 |
| 2022 | $284,880 | $75,000 | $0 | $359,880 | $359,880 |
| 2021 | $189,920 | $75,000 | $0 | $264,920 | $264,920 |
| 2020 | $146,090 | $75,000 | $0 | $221,090 | $221,090 |
| 2019 | $146,090 | $75,000 | $0 | $221,090 | $221,090 |
| 2018 | $137,090 | $48,800 | $0 | $185,890 | $185,890 |
| 2017 | $124,630 | $48,800 | $0 | $173,430 | $173,430 |
| 2016 | $118,690 | $48,800 | $0 | $167,490 | $167,490 |
| 2015 | $118,690 | $48,800 | $0 | $167,490 | $167,490 |
| 2014 | $107,900 | $48,800 | $0 | $156,700 | $156,700 |
| 2013 | $107,900 | $48,800 | $0 | $156,700 | $156,700 |
| 2012 | $107,900 | $48,800 | $0 | $0 | $0 |
| 2011 | $107,900 | $48,800 | $0 | $0 | $0 |
| 2010 | $100,400 | $48,800 | $0 | $0 | $0 |
| 2009 | $117,000 | $48,800 | $0 | $0 | $0 |
| 2008 | $117,000 | $48,800 | $0 | $0 | $0 |
| 2007 | $86,600 | $26,300 | $0 | $0 | $0 |
Deed and Sales History
| 1 | 10/02/2015 | SWD | STATUTORY WARRANTY DEED | POLZIN ROBERT H ESTATE OF | MALAND JONATHAN D & MERRYLOU S | | | $169,900.00 | 128935 | 2015-08707 |
| 2 | 07/13/1984 | WARRANTY D | WARRANTY DEED | | | | | $57,800.00 | 0 | 1448-404939 |
Payout Agreement
| No payout information available.. |