Property
Account |
| Property ID: | 9798 | Abbreviated Legal Description: | PARK ST GARDENS N1/2 OF LOTS 1 & 2 BLK 2 AND TRACT |
| Parcel Number: | 360728650201 | Agent Code: | |
| Type: | Real | | |
| Tax Area: | 1 - OL-140-F | Land Use Code | 11 |
| Open Space: | N | DFL | N |
| Historic Property: | N | Remodel Property: | N |
| Multi-Family Redevelopment: | N | | |
| Township: | 7 | Section: | 28 |
| Range: | 36 |
Location |
| Address: | 1011 HOWARD ST WA 99362 | Mapsco: | |
| Neighborhood: | A Res | Map ID: | |
| Neighborhood CD: | 613011 |
Owner |
| Name: | BROUSSARD DANIEL S & SHAELYN D | Owner ID: | 70140 |
| Mailing Address: | 1011 HOWARD ST WALLA WALLA, WA 99362 | % Ownership: | 100.0000000000% |
| | | Exemptions: | |
Taxes and Assessment Details
Values
| (+) Improvement Homesite Value: | + | $0 | |
| (+) Improvement Non-Homesite Value: | + | $241,120 | |
| (+) Land Homesite Value: | + | $0 | |
| (+) Land Non-Homesite Value: | + | $70,000 | |
| (+) Curr Use (HS): | + | $0 | $0 |
| (+) Curr Use (NHS): | + | $0 | $0 |
| | | -------------------------- | |
| (=) Market Value: | = | $311,120 | |
| (–) Productivity Loss: | – | $0 | |
| | | -------------------------- | |
| (=) Subtotal: | = | $311,120 | |
| (+) Senior Appraised Value: | + | $0 | |
| (+) Non-Senior Appraised Value: | + | $311,120 | |
| | | -------------------------- | |
| (=) Total Appraised Value: | = | $311,120 | |
| (–) Senior Exemption Loss: | – | $0 | |
| (–) Exemption Loss: | – | $0 | |
| | | -------------------------- | |
| (=) Taxable Value: | = | $311,120 | |
Taxing Jurisdiction
| Owner: | BROUSSARD DANIEL S & SHAELYN D | | |
| % Ownership: | 100.0000000000% | | |
| Total Value: | $311,120 | | |
| Tax Area: | 1 - OL-140-F |
| CERFD | CURRENT EXPENSE REFUND 010 | 0.0000000000 | $311,120 | $311,120 | $0.00 | | |
| CURREXP | CURRENT EXPENSE 010 | 1.0175366760 | $311,120 | $311,120 | $316.58 | | |
| HUMNSERV | HUMAN SERVICES 119 | 0.0250000000 | $311,120 | $311,120 | $7.78 | | |
| SLDREL | SOLDIERS RELIEF 121 | 0.0155990005 | $311,120 | $311,120 | $4.85 | | |
| EMERGSER | EMS 147 | 0.3792580840 | $311,120 | $311,120 | $117.99 | | |
| EMSRFD | EMS REFUND 147 | 0.0000000000 | $311,120 | $311,120 | $0.00 | | |
| PORTRFD | PORT REFUND 640 | 0.0000000000 | $311,120 | $311,120 | $0.00 | | |
| PORTWWGEN | PORT OF WW 640 | 0.2460186015 | $311,120 | $311,120 | $76.54 | | |
| SD140BOND | SD #140 BOND 764 | 0.8342371393 | $311,120 | $311,120 | $259.55 | | |
| SD140GEN | SD #140 GENERAL 760 | 2.0646500647 | $311,120 | $311,120 | $642.35 | | |
| ST2 | STATE SCHOOL PART 2 600 | 0.8131451643 | $311,120 | $311,120 | $252.99 | | |
| STATESCHL | STATE SCHOOL 600 | 1.5158548041 | $311,120 | $311,120 | $471.61 | | |
| STREFUND | STATE REFUND LEVY 603 | 0.0000000000 | $311,120 | $311,120 | $0.00 | | |
| CWWBOND | C OF WW BOND 643 | 0.2760494372 | $311,120 | $311,120 | $85.88 | | |
| CWWGEN | CITY OF WW 631 | 1.6100204973 | $311,120 | $311,120 | $500.91 | | |
| CWWRFD | CITY OF WALLA WALLA REFUND 631 | 0.0000000000 | $311,120 | $311,120 | $0.00 | | |
| | Total Tax Rate: | 8.7973694689 | | | | | |
| | | | | Taxes w/Current Exemptions: | $2,737.03 | | |
| | | | | Taxes w/o Exemptions: | $2,737.03 | | |
Improvement / Building
| Improvement #1: | RESIDENTIAL | State Code: | 11 | 830.0 sqft | Value: | $241,120 |
| Exterior Wall: | METAL/STEEL | Heating/Cooling: | WARM & COOLED AIR | | Number of Bathrooms: | 1 | Number of Bedrooms: | 2 | | Plumbing: | 7 | Roof Covering: | COMP SHINGLE |
|
| | Type | Description | Class CD | Sub Class CD | Year Built | Area |
| | MA | Main Area | 1 | 25 | 1940 | 830.0 |
| | SI1 | SITE IMPROVEMENT | 1 | 25 | 1940 | 1.0 |
| | BASE | BASEMENT | 1 | 25 | 1940 | 750.0 |
| | BPF | BASEMENT -PARTITIONED FINISH | 1 | 25 | 1940 | 254.0 |
| | RPS | PORCH W/STEPS,ROOF | 1 | 25 | 1940 | 40.0 |
| | DTG | Detached Garage | 1 | 25 | 1940 | 260.0 |
Sketch
Property Image
Land
| 1 | RES 1 | Converted: Residential | 0.1377 | 6000.00 | 0.00 | 0.00 | 1.00 | $70,000 | $0 |
Roll Value History
| 2026 | N/A | N/A | N/A | N/A | N/A |
| 2025 | $243,930 | $66,000 | $0 | $309,930 | $309,930 |
| 2024 | $241,120 | $70,000 | $0 | $311,120 | $311,120 |
| 2023 | $241,120 | $70,000 | $0 | $311,120 | $311,120 |
| 2022 | $241,120 | $55,000 | $0 | $296,120 | $296,120 |
| 2021 | $155,560 | $55,000 | $0 | $210,560 | $210,560 |
| 2020 | $115,230 | $55,000 | $0 | $170,230 | $170,230 |
| 2019 | $115,230 | $55,000 | $0 | $170,230 | $170,230 |
| 2018 | $132,640 | $36,000 | $0 | $168,640 | $168,640 |
| 2017 | $120,580 | $36,000 | $0 | $156,580 | $156,580 |
| 2016 | $114,840 | $36,000 | $0 | $150,840 | $150,840 |
| 2015 | $114,840 | $36,000 | $0 | $150,840 | $150,840 |
| 2014 | $104,400 | $36,000 | $0 | $140,400 | $140,400 |
| 2013 | $104,400 | $36,000 | $0 | $140,400 | $140,400 |
| 2012 | $104,400 | $36,000 | $0 | $0 | $0 |
| 2011 | $104,400 | $36,000 | $0 | $0 | $0 |
| 2010 | $72,000 | $36,000 | $0 | $0 | $0 |
| 2009 | $84,000 | $36,000 | $0 | $0 | $0 |
| 2008 | $84,000 | $36,000 | $0 | $0 | $0 |
| 2007 | $57,500 | $18,000 | $0 | $0 | $0 |
Deed and Sales History
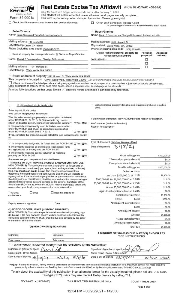
| 1 | 08/20/2021 | SWD | STATUTORY WARRANTY DEED | NELSON BRYAN | BROUSSARD DANIEL S & SHAELYN D | | | $300,000.00 | 142330 | 2021-10269 |
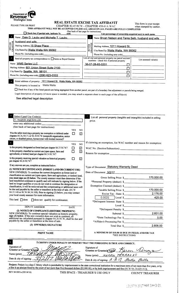
| 2 | 03/03/2017 | SWD | STATUTORY WARRANTY DEED | LAUBY DALE D | NELSON BRYAN | | | $170,000.00 | 131979 | 2017-01694 |
| 3 | 10/08/2004 | QCD | QUIT CLAIM DEED | LAUBY, DALE D | LAUBY, DALE D | | | | 105923 | 2004-11696 |
| 4 | 07/27/2001 | WARRANTY D | WARRANTY DEED | | | | | $76,900.00 | 97693 | 3170-108068 |
Payout Agreement
| No payout information available.. |