Property
Account |
| Property ID: | 9786 | Abbreviated Legal Description: | MUNCEYS ACRE TRACTS LOTS 1 THRU 5 PLUS STRIP IN LOT 6 BLK 2 PLUSVAC ST |
| Parcel Number: | 360728630207 | Agent Code: | |
| Type: | Real | | |
| Tax Area: | 1 - OL-140-F | Land Use Code | 91 |
| Open Space: | N | DFL | N |
| Historic Property: | N | Remodel Property: | N |
| Multi-Family Redevelopment: | N | | |
| Township: | 7 | Section: | 28 |
| Range: | 36 |
Location |
| Address: | 1217 BRYANT AVE WA 99362 | Mapsco: | |
| Neighborhood: | WW Commercial #4 | Map ID: | |
| Neighborhood CD: | 6344 |
Owner |
| Name: | PREAS DAN D | Owner ID: | 70427 |
| Mailing Address: | 839 SE WHISPERING CREEK COURT COLLEGE PLACE, WA 99324 | % Ownership: | 100.0000000000% |
| | | Exemptions: | |
Taxes and Assessment Details
Property Tax Information as of
02/21/2026
Click on "Statement Details" to expand or collapse a tax statement.
* Please enter a valid date ** Please enter a valid date *
Statement Details |
| | TOTAL: | $0.00 | $0.00 | $0.00 | $0.00 | $0.00 | $0.00 |
|
| | $0.00 | $0.00 | $0.00 | $0.00 | $0.00 | $0.00 |
Values
| (+) Improvement Homesite Value: | + | $0 | |
| (+) Improvement Non-Homesite Value: | + | $0 | |
| (+) Land Homesite Value: | + | $0 | |
| (+) Land Non-Homesite Value: | + | $508,200 | |
| (+) Curr Use (HS): | + | $0 | $0 |
| (+) Curr Use (NHS): | + | $0 | $0 |
| | | -------------------------- | |
| (=) Market Value: | = | $508,200 | |
| (–) Productivity Loss: | – | $0 | |
| | | -------------------------- | |
| (=) Subtotal: | = | $508,200 | |
| (+) Senior Appraised Value: | + | $0 | |
| (+) Non-Senior Appraised Value: | + | $508,200 | |
| | | -------------------------- | |
| (=) Total Appraised Value: | = | $508,200 | |
| (–) Senior Exemption Loss: | – | $0 | |
| (–) Exemption Loss: | – | $0 | |
| | | -------------------------- | |
| (=) Taxable Value: | = | $508,200 | |
Taxing Jurisdiction
| Owner: | PREAS DAN D | | |
| % Ownership: | 100.0000000000% | | |
| Total Value: | $508,200 | | |
| Tax Area: | 1 - OL-140-F |
| CERFD | CURRENT EXPENSE REFUND 010 | 0.0000000000 | $508,200 | $508,200 | $0.00 | | |
| CURREXP | CURRENT EXPENSE 010 | 0.9851088983 | $508,200 | $508,200 | $500.63 | | |
| HUMNSERV | HUMAN SERVICES 119 | 0.0250000000 | $508,200 | $508,200 | $12.71 | | |
| SLDREL | SOLDIERS RELIEF 121 | 0.0155990000 | $508,200 | $508,200 | $7.93 | | |
| EMERGSER | EMS 147 | 0.3676811629 | $508,200 | $508,200 | $186.86 | | |
| EMSRFD | EMS REFUND 147 | 0.0000000000 | $508,200 | $508,200 | $0.00 | | |
| PORTRFD | PORT REFUND 640 | 0.0000000000 | $508,200 | $508,200 | $0.00 | | |
| PORTWWGEN | PORT OF WW 640 | 0.2344301070 | $508,200 | $508,200 | $119.14 | | |
| SD140BOND | SD #140 BOND 764 | 0.8032434458 | $508,200 | $508,200 | $408.21 | | |
| SD140CAP | SD #140 CAP 762 | 0.3840034221 | $508,200 | $508,200 | $195.15 | | |
| SD140GEN | SD #140 GENERAL 760 | 2.4999999996 | $508,200 | $508,200 | $1,270.50 | | |
| ST2 | STATE SCHOOL PART 2 600 | 0.8853714103 | $508,200 | $508,200 | $449.95 | | |
| STATESCHL | STATE SCHOOL 600 | 1.6424571473 | $508,200 | $508,200 | $834.70 | | |
| STREFUND | STATE REFUND LEVY 603 | 0.0000000000 | $508,200 | $508,200 | $0.00 | | |
| CWWBOND | C OF WW BOND 643 | 0.2642134255 | $508,200 | $508,200 | $134.27 | | |
| CWWGEN | CITY OF WW 631 | 1.6110494978 | $508,200 | $508,200 | $818.74 | | |
| CWWRFD | CITY OF WALLA WALLA REFUND 631 | 0.0000000000 | $508,200 | $508,200 | $0.00 | | |
| | Total Tax Rate: | 9.7181575166 | | | | | |
| | | | | Taxes w/Current Exemptions: | $4,938.79 | | |
| | | | | Taxes w/o Exemptions: | $4,938.79 | | |
Improvement / Building
Sketch
| No sketches available for this property. |
Property Image
Land
| 1 | COM 1 | Converted: Commercial | 4.8400 | 210830.40 | 0.00 | 0.00 | 1.00 | $508,200 | $0 |
Roll Value History
| 2026 | N/A | N/A | N/A | N/A | N/A |
| 2025 | $0 | $508,200 | $0 | $508,200 | $508,200 |
| 2024 | $0 | $508,200 | $0 | $508,200 | $508,200 |
| 2023 | $7,600 | $508,200 | $0 | $515,800 | $515,800 |
| 2022 | $7,600 | $94,600 | $0 | $102,200 | $102,200 |
| 2021 | $7,600 | $94,600 | $0 | $102,200 | $102,200 |
| 2020 | $7,600 | $94,600 | $0 | $102,200 | $102,200 |
| 2019 | $7,600 | $94,600 | $0 | $102,200 | $102,200 |
| 2018 | $7,200 | $79,400 | $0 | $86,600 | $86,600 |
| 2017 | $7,200 | $79,400 | $0 | $86,600 | $86,600 |
| 2016 | $7,200 | $79,400 | $0 | $86,600 | $86,600 |
| 2015 | $7,200 | $79,400 | $0 | $86,600 | $86,600 |
| 2014 | $7,200 | $79,400 | $0 | $86,600 | $86,600 |
| 2013 | $7,200 | $79,400 | $0 | $86,600 | $86,600 |
| 2012 | $7,200 | $79,400 | $0 | $0 | $0 |
| 2011 | $7,200 | $79,400 | $0 | $0 | $0 |
| 2010 | $7,200 | $79,400 | $0 | $0 | $0 |
| 2009 | $7,200 | $79,400 | $0 | $0 | $0 |
| 2008 | $7,200 | $79,400 | $0 | $0 | $0 |
| 2007 | $800 | $67,000 | $0 | $0 | $0 |
Deed and Sales History
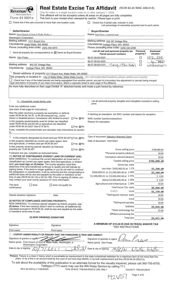
| 1 | 10/12/2021 | WARRANTY D | WARRANTY DEED | FIRST CHURCH OF GOD OF WALLA WALLA | PREAS DAN D | | 5-PARCELS | $700,000.00 | 142657 | 2021-12424 |
|   | |
Payout Agreement
| No payout information available.. |