Property
Account |
| Property ID: | 9766 | Abbreviated Legal Description: | HUNTINGTON PARK LOT 2 |
| Parcel Number: | 360728600002 | Agent Code: | |
| Type: | Real | | |
| Tax Area: | 105 - 140-F-4 | Land Use Code | 11 |
| Open Space: | N | DFL | N |
| Historic Property: | N | Remodel Property: | N |
| Multi-Family Redevelopment: | N | | |
| Township: | 7 | Section: | 28 |
| Range: | 36 |
Location |
| Address: | 1450 STURM AVE WA 99362 | Mapsco: | |
| Neighborhood: | G Res | Map ID: | |
| Neighborhood CD: | 614011 |
Owner |
| Name: | OTIS CHRISTIE A & JONATHAN M ULSH | Owner ID: | 67432 |
| Mailing Address: | 1450 STURM AVE WALLA WALLA, WA 99362 | % Ownership: | 100.0000000000% |
| | | Exemptions: | |
Taxes and Assessment Details
Property Tax Information as of
02/21/2026
Click on "Statement Details" to expand or collapse a tax statement.
* Please enter a valid date ** Please enter a valid date *
Statement Details |
| | TOTAL: | $0.00 | $0.00 | $0.00 | $0.00 | $0.00 | $0.00 |
|
| | $0.00 | $0.00 | $0.00 | $0.00 | $0.00 | $0.00 |
Values
| (+) Improvement Homesite Value: | + | $0 | |
| (+) Improvement Non-Homesite Value: | + | $515,510 | |
| (+) Land Homesite Value: | + | $0 | |
| (+) Land Non-Homesite Value: | + | $124,250 | |
| (+) Curr Use (HS): | + | $0 | $0 |
| (+) Curr Use (NHS): | + | $0 | $0 |
| | | -------------------------- | |
| (=) Market Value: | = | $639,760 | |
| (–) Productivity Loss: | – | $0 | |
| | | -------------------------- | |
| (=) Subtotal: | = | $639,760 | |
| (+) Senior Appraised Value: | + | $0 | |
| (+) Non-Senior Appraised Value: | + | $639,760 | |
| | | -------------------------- | |
| (=) Total Appraised Value: | = | $639,760 | |
| (–) Senior Exemption Loss: | – | $0 | |
| (–) Exemption Loss: | – | $0 | |
| | | -------------------------- | |
| (=) Taxable Value: | = | $639,760 | |
Taxing Jurisdiction
| Owner: | OTIS CHRISTIE A & JONATHAN M ULSH | | |
| % Ownership: | 100.0000000000% | | |
| Total Value: | $639,760 | | |
| Tax Area: | 105 - 140-F-4 |
| CERFD | CURRENT EXPENSE REFUND 010 | 0.0000000000 | $639,760 | $639,760 | $0.00 | | |
| CURREXP | CURRENT EXPENSE 010 | 1.0175366760 | $639,760 | $639,760 | $650.98 | | |
| HUMNSERV | HUMAN SERVICES 119 | 0.0250000000 | $639,760 | $639,760 | $15.99 | | |
| SLDREL | SOLDIERS RELIEF 121 | 0.0155990005 | $639,760 | $639,760 | $9.98 | | |
| EMERGSER | EMS 147 | 0.3792580840 | $639,760 | $639,760 | $242.63 | | |
| EMSRFD | EMS REFUND 147 | 0.0000000000 | $639,760 | $639,760 | $0.00 | | |
| FD4EXP | FD #4 EXPENSE 686 | 0.8836993059 | $639,760 | $639,760 | $565.36 | | |
| RLBRFD | RURAL LIBRARY REFUND 623 | 0.0000000000 | $639,760 | $639,760 | $0.00 | | |
| RURALLIB | RURAL LIBRARY 623 | 0.3710609029 | $639,760 | $639,760 | $237.39 | | |
| PORTRFD | PORT REFUND 640 | 0.0000000000 | $639,760 | $639,760 | $0.00 | | |
| PORTWWGEN | PORT OF WW 640 | 0.2460186015 | $639,760 | $639,760 | $157.39 | | |
| SD140BOND | SD #140 BOND 764 | 0.8342371393 | $639,760 | $639,760 | $533.71 | | |
| SD140GEN | SD #140 GENERAL 760 | 2.0646500647 | $639,760 | $639,760 | $1,320.88 | | |
| ST2 | STATE SCHOOL PART 2 600 | 0.8131451643 | $639,760 | $639,760 | $520.22 | | |
| STATESCHL | STATE SCHOOL 600 | 1.5158548041 | $639,760 | $639,760 | $969.78 | | |
| STREFUND | STATE REFUND LEVY 603 | 0.0000000000 | $639,760 | $639,760 | $0.00 | | |
| COROAD | COUNTY ROAD 115 | 1.6549953990 | $639,760 | $639,760 | $1,058.80 | | |
| CRPRD | COUNTY ROAD REFUND 115 | 0.0000000000 | $639,760 | $639,760 | $0.00 | | |
| | Total Tax Rate: | 9.8210551422 | | | | | |
| | | | | Taxes w/Current Exemptions: | $6,283.11 | | |
| | | | | Taxes w/o Exemptions: | $6,283.11 | | |
Improvement / Building
| Improvement #1: | RESIDENTIAL | State Code: | 11 | 2100.0 sqft | Value: | $515,510 |
| Exterior Wall: | CEMENT FIBER | Heating/Cooling: | WARM & COOLED AIR | | Number of Bathrooms: | 2 | Number of Bedrooms: | 3 | | Plumbing: | 12 | Roof Covering: | COMP SHINGLE |
|
| | Type | Description | Class CD | Sub Class CD | Year Built | Area |
| | MA | Main Area | 1 | 40 | 1959 | 2100.0 |
| | SI1 | SITE IMPROVEMENT | 1 | 40 | 1959 | 4.0 |
| | BASE | BASEMENT | 1 | 40 | 1959 | 1267.0 |
| | S1F | Single One Story Fireplace | 1 | 40 | 1959 | 1.0 |
| | RPC | OPEN PORCH W/ROOF , CEILED | 1 | 40 | 1959 | 81.0 |
| | CPCG | CARPORT/ GABLE ROOF | 1 | 40 | 2020 | 407.0 |
| | ATG | Attached Garage | 1 | 40 | 1959 | 276.0 |
| | TOOL | TOOL SHED | 1 | 40 | 1959 | 216.0 |
Sketch
Property Image
Land
| 1 | RES 1 | Converted: Residential | 0.3788 | 16500.00 | 0.00 | 0.00 | 1.00 | $124,250 | $0 |
Roll Value History
| 2026 | N/A | N/A | N/A | N/A | N/A |
| 2025 | $515,510 | $150,000 | $0 | $665,510 | $665,510 |
| 2024 | $515,510 | $124,250 | $0 | $639,760 | $639,760 |
| 2023 | $515,510 | $124,250 | $0 | $639,760 | $639,760 |
| 2022 | $515,510 | $101,970 | $0 | $617,480 | $617,480 |
| 2021 | $448,270 | $101,970 | $0 | $550,240 | $550,240 |
| 2020 | $192,280 | $101,970 | $0 | $294,250 | $294,250 |
| 2019 | $192,280 | $101,970 | $0 | $294,250 | $294,250 |
| 2018 | $191,380 | $52,700 | $0 | $244,080 | $244,080 |
| 2017 | $182,270 | $52,700 | $0 | $234,970 | $234,970 |
| 2016 | $165,700 | $52,700 | $0 | $218,400 | $218,400 |
| 2015 | $165,700 | $52,700 | $0 | $218,400 | $218,400 |
| 2014 | $165,700 | $52,700 | $0 | $218,400 | $218,400 |
| 2013 | $165,700 | $52,700 | $0 | $218,400 | $218,400 |
| 2012 | $165,700 | $52,700 | $0 | $0 | $0 |
| 2011 | $165,700 | $52,700 | $0 | $0 | $0 |
| 2010 | $137,200 | $52,700 | $0 | $0 | $0 |
| 2009 | $158,300 | $52,700 | $0 | $0 | $0 |
| 2008 | $158,300 | $52,700 | $0 | $0 | $0 |
| 2007 | $99,600 | $30,200 | $0 | $0 | $0 |
Deed and Sales History
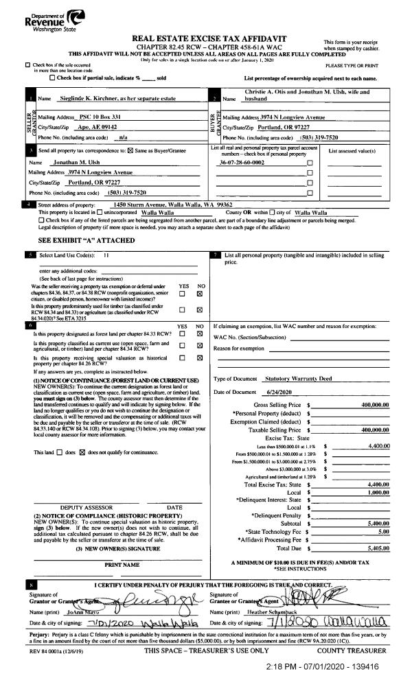
| 1 | 07/01/2020 | SWD | STATUTORY WARRANTY DEED | KIRCHNER SIEGLINDE K | OTIS CHRISTIE A & JONATHAN M ULSH | | | $400,000.00 | 139416 | 2020-06187 |
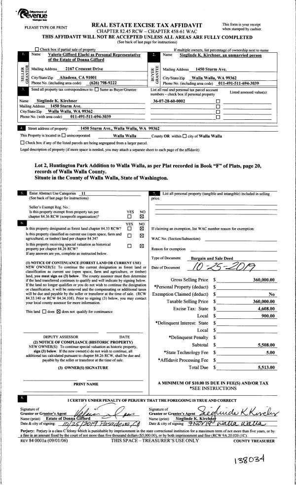
| 2 | 11/07/2019 | BARGAIN & | BARGAIN & SALE DEED | GIFFORD GERALD B & DONNA M | KIRCHNER SIEGLINDE K | | | $360,000.00 | 138034 | 2019-09137 |
| 3 | 05/01/1963 | WARRANTY D | WARRANTY DEED | | | | | $22,650.00 | 0 | 3060-448340 |
Payout Agreement
| No payout information available.. |