Property
Account |
| Property ID: | 9762 | Abbreviated Legal Description: | HATCH W 82' OF S 167.615' OF LOT 5 BLK 2 |
| Parcel Number: | 360728590216 | Agent Code: | |
| Type: | Real | | |
| Tax Area: | 1 - OL-140-F | Land Use Code | 11 |
| Open Space: | N | DFL | N |
| Historic Property: | N | Remodel Property: | N |
| Multi-Family Redevelopment: | N | | |
| Township: | 7 | Section: | 28 |
| Range: | 36 |
Location |
| Address: | 1205 PLEASANT ST WA 99362 | Mapsco: | |
| Neighborhood: | A Res | Map ID: | |
| Neighborhood CD: | 613011 |
Owner |
| Name: | ALMANZAR GUADALUPE E & GISELA | Owner ID: | 60216 |
| Mailing Address: | 243 SARAH RD KENNEWICK, WA 99338 | % Ownership: | 100.0000000000% |
| | | Exemptions: | |
Taxes and Assessment Details
Property Tax Information as of
02/21/2026
Click on "Statement Details" to expand or collapse a tax statement.
* Please enter a valid date ** Please enter a valid date *
Statement Details |
| | TOTAL: | $0.00 | $0.00 | $0.00 | $0.00 | $0.00 | $0.00 |
|
| | $0.00 | $0.00 | $0.00 | $0.00 | $0.00 | $0.00 |
Values
| (+) Improvement Homesite Value: | + | $356,130 | |
| (+) Improvement Non-Homesite Value: | + | $0 | |
| (+) Land Homesite Value: | + | $92,710 | |
| (+) Land Non-Homesite Value: | + | $0 | |
| (+) Curr Use (HS): | + | $0 | $0 |
| (+) Curr Use (NHS): | + | $0 | $0 |
| | | -------------------------- | |
| (=) Market Value: | = | $448,840 | |
| (–) Productivity Loss: | – | $0 | |
| | | -------------------------- | |
| (=) Subtotal: | = | $448,840 | |
| (+) Senior Appraised Value: | + | $0 | |
| (+) Non-Senior Appraised Value: | + | $448,840 | |
| | | -------------------------- | |
| (=) Total Appraised Value: | = | $448,840 | |
| (–) Senior Exemption Loss: | – | $0 | |
| (–) Exemption Loss: | – | $0 | |
| | | -------------------------- | |
| (=) Taxable Value: | = | $448,840 | |
Taxing Jurisdiction
| Owner: | ALMANZAR GUADALUPE E & GISELA | | |
| % Ownership: | 100.0000000000% | | |
| Total Value: | $448,840 | | |
| Tax Area: | 1 - OL-140-F |
| CERFD | CURRENT EXPENSE REFUND 010 | 0.0000000000 | $448,840 | $448,840 | $0.00 | | |
| CURREXP | CURRENT EXPENSE 010 | 1.0175366760 | $448,840 | $448,840 | $456.71 | | |
| HUMNSERV | HUMAN SERVICES 119 | 0.0250000000 | $448,840 | $448,840 | $11.22 | | |
| SLDREL | SOLDIERS RELIEF 121 | 0.0155990005 | $448,840 | $448,840 | $7.00 | | |
| EMERGSER | EMS 147 | 0.3792580840 | $448,840 | $448,840 | $170.23 | | |
| EMSRFD | EMS REFUND 147 | 0.0000000000 | $448,840 | $448,840 | $0.00 | | |
| PORTRFD | PORT REFUND 640 | 0.0000000000 | $448,840 | $448,840 | $0.00 | | |
| PORTWWGEN | PORT OF WW 640 | 0.2460186015 | $448,840 | $448,840 | $110.42 | | |
| SD140BOND | SD #140 BOND 764 | 0.8342371393 | $448,840 | $448,840 | $374.44 | | |
| SD140GEN | SD #140 GENERAL 760 | 2.0646500647 | $448,840 | $448,840 | $926.70 | | |
| ST2 | STATE SCHOOL PART 2 600 | 0.8131451643 | $448,840 | $448,840 | $364.97 | | |
| STATESCHL | STATE SCHOOL 600 | 1.5158548041 | $448,840 | $448,840 | $680.38 | | |
| STREFUND | STATE REFUND LEVY 603 | 0.0000000000 | $448,840 | $448,840 | $0.00 | | |
| CWWBOND | C OF WW BOND 643 | 0.2760494372 | $448,840 | $448,840 | $123.90 | | |
| CWWGEN | CITY OF WW 631 | 1.6100204973 | $448,840 | $448,840 | $722.64 | | |
| CWWRFD | CITY OF WALLA WALLA REFUND 631 | 0.0000000000 | $448,840 | $448,840 | $0.00 | | |
| | Total Tax Rate: | 8.7973694689 | | | | | |
| | | | | Taxes w/Current Exemptions: | $3,948.61 | | |
| | | | | Taxes w/o Exemptions: | $3,948.61 | | |
Improvement / Building
| Improvement #1: | RESIDENTIAL | State Code: | 11 | 1442.0 sqft | Value: | $356,130 |
| Exterior Wall: | SHINGLE | Heating/Cooling: | WARM & COOLED AIR | | Number of Bathrooms: | 1.5 | Number of Bedrooms: | 2 | | Plumbing: | 8 | Roof Covering: | COMP SHINGLE |
|
| | Type | Description | Class CD | Sub Class CD | Year Built | Area |
| | MA | Main Area | 1 | 35 | 1905 | 1442.0 |
| | SI1 | SITE IMPROVEMENT | 1 | 35 | 1905 | 2.0 |
| | BASE | BASEMENT | 1 | 35 | 1905 | 1083.0 |
| | BPF | BASEMENT -PARTITIONED FINISH | 1 | 35 | 1905 | 812.0 |
| | S1F | Single One Story Fireplace | 1 | 35 | 1905 | 1.0 |
| | RPS | PORCH W/STEPS,ROOF | 1 | 35 | 1905 | 26.0 |
| | DTG | Detached Garage | 1 | 35 | 1905 | 280.0 |
| | SOLR | SOLAR POWER PANELS | 1 | 35 | 2018 | 31.0 |
Sketch
Property Image
Land
| 1 | RES 1 | Converted: Residential | 0.3144 | 13694.00 | 0.00 | 0.00 | 1.00 | $92,710 | $0 |
Roll Value History
| 2026 | N/A | N/A | N/A | N/A | N/A |
| 2025 | $348,980 | $113,390 | $0 | $462,370 | $462,370 |
| 2024 | $356,130 | $92,710 | $0 | $448,840 | $448,840 |
| 2023 | $356,130 | $92,710 | $0 | $448,840 | $448,840 |
| 2022 | $356,130 | $74,500 | $0 | $430,630 | $430,630 |
| 2021 | $254,380 | $74,500 | $0 | $328,880 | $328,880 |
| 2020 | $188,430 | $74,500 | $0 | $262,930 | $262,930 |
| 2019 | $188,430 | $74,500 | $0 | $262,930 | $262,930 |
| 2018 | $167,420 | $50,300 | $0 | $217,720 | $217,720 |
| 2017 | $167,420 | $50,300 | $0 | $217,720 | $217,720 |
| 2016 | $152,200 | $50,300 | $0 | $202,500 | $202,500 |
| 2015 | $152,200 | $50,300 | $0 | $202,500 | $81,000 |
| 2014 | $152,200 | $50,300 | $0 | $202,500 | $202,500 |
| 2013 | $152,200 | $50,300 | $0 | $202,500 | $202,500 |
| 2012 | $152,200 | $50,300 | $0 | $0 | $0 |
| 2011 | $152,200 | $50,300 | $0 | $0 | $0 |
| 2010 | $133,800 | $50,300 | $0 | $0 | $0 |
| 2009 | $154,200 | $50,300 | $0 | $0 | $0 |
| 2008 | $154,200 | $50,300 | $0 | $0 | $0 |
| 2007 | $89,500 | $27,800 | $0 | $0 | $0 |
Deed and Sales History
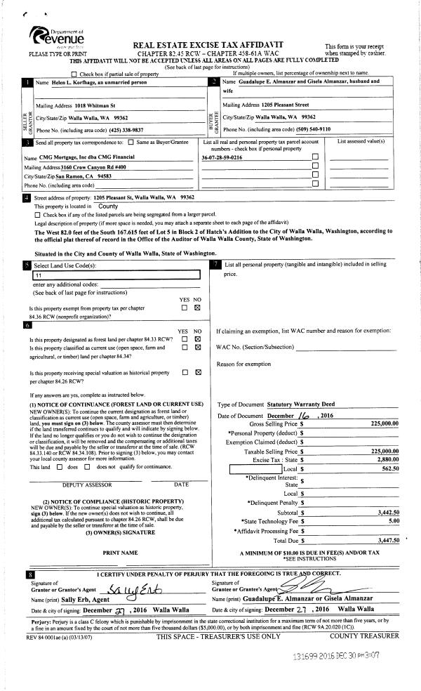
| 1 | 12/30/2016 | SWD | STATUTORY WARRANTY DEED | KORFHAGE HELEN L ET AL | ALMANZAR GUADALUPE E & GISELA | | | $225,000.00 | 131699 | 2016-10812 |
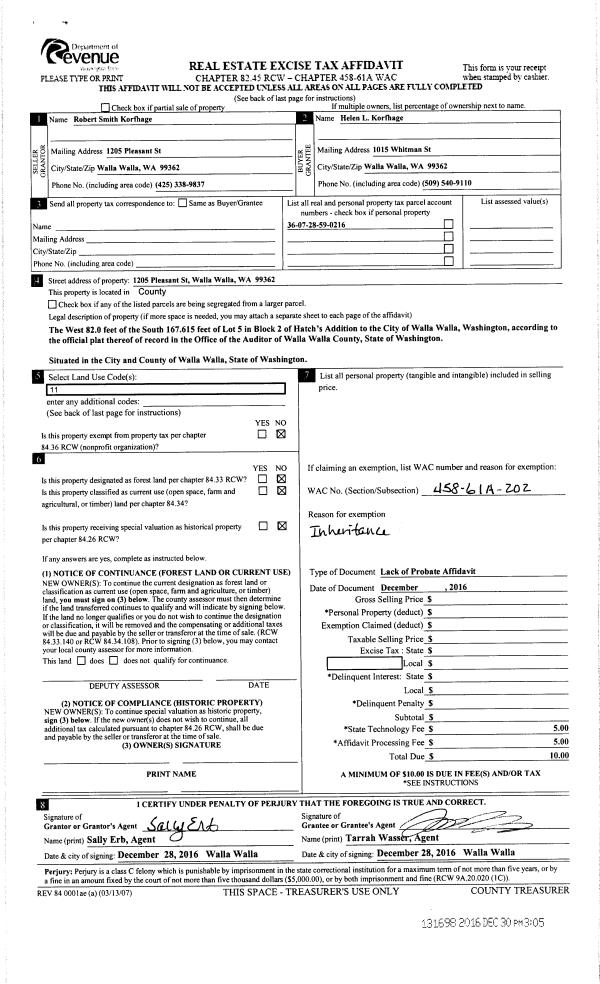
| 2 | 12/30/2016 | LOPA | LACK OF PROBATE AFFIDAVIT | KORFHAGE ROBERT SMITH | KORFHAGE HELEN L ET AL | | | | 131698 | 2016-10810 |
| 3 | 01/01/1950 | WARRANTY D | WARRANTY DEED | | | | | $0.00 | 0 | 2490-335405 |
Payout Agreement
| No payout information available.. |