Property
Account |
| Property ID: | 9754 | Abbreviated Legal Description: | HATCH TAX 4 LOT 3 BLK 1 |
| Parcel Number: | 360728590116 | Agent Code: | |
| Type: | Real | | |
| Tax Area: | 1 - OL-140-F | Land Use Code | 11 |
| Open Space: | N | DFL | N |
| Historic Property: | N | Remodel Property: | N |
| Multi-Family Redevelopment: | N | | |
| Township: | 7 | Section: | 28 |
| Range: | 36 |
Location |
| Address: | 1235 DAKOTA ST WA 99362 | Mapsco: | |
| Neighborhood: | A Res | Map ID: | |
| Neighborhood CD: | 613011 |
Owner |
| Name: | BELL SARAH M | Owner ID: | 68972 |
| Mailing Address: | 1235 DAKOTA ST WALLA WALLA, WA 99362 | % Ownership: | 100.0000000000% |
| | | Exemptions: | |
Taxes and Assessment Details
Property Tax Information as of
02/21/2026
Click on "Statement Details" to expand or collapse a tax statement.
* Please enter a valid date ** Please enter a valid date *
Statement Details |
| | TOTAL: | $0.00 | $0.00 | $0.00 | $0.00 | $0.00 | $0.00 |
|
| | $0.00 | $0.00 | $0.00 | $0.00 | $0.00 | $0.00 |
Values
| (+) Improvement Homesite Value: | + | $0 | |
| (+) Improvement Non-Homesite Value: | + | $337,190 | |
| (+) Land Homesite Value: | + | $0 | |
| (+) Land Non-Homesite Value: | + | $82,080 | |
| (+) Curr Use (HS): | + | $0 | $0 |
| (+) Curr Use (NHS): | + | $0 | $0 |
| | | -------------------------- | |
| (=) Market Value: | = | $419,270 | |
| (–) Productivity Loss: | – | $0 | |
| | | -------------------------- | |
| (=) Subtotal: | = | $419,270 | |
| (+) Senior Appraised Value: | + | $0 | |
| (+) Non-Senior Appraised Value: | + | $419,270 | |
| | | -------------------------- | |
| (=) Total Appraised Value: | = | $419,270 | |
| (–) Senior Exemption Loss: | – | $0 | |
| (–) Exemption Loss: | – | $0 | |
| | | -------------------------- | |
| (=) Taxable Value: | = | $419,270 | |
Taxing Jurisdiction
| Owner: | BELL SARAH M | | |
| % Ownership: | 100.0000000000% | | |
| Total Value: | $419,270 | | |
| Tax Area: | 1 - OL-140-F |
| CERFD | CURRENT EXPENSE REFUND 010 | 0.0000000000 | $419,270 | $419,270 | $0.00 | | |
| CURREXP | CURRENT EXPENSE 010 | 1.0175366760 | $419,270 | $419,270 | $426.62 | | |
| HUMNSERV | HUMAN SERVICES 119 | 0.0250000000 | $419,270 | $419,270 | $10.48 | | |
| SLDREL | SOLDIERS RELIEF 121 | 0.0155990005 | $419,270 | $419,270 | $6.54 | | |
| EMERGSER | EMS 147 | 0.3792580840 | $419,270 | $419,270 | $159.01 | | |
| EMSRFD | EMS REFUND 147 | 0.0000000000 | $419,270 | $419,270 | $0.00 | | |
| PORTRFD | PORT REFUND 640 | 0.0000000000 | $419,270 | $419,270 | $0.00 | | |
| PORTWWGEN | PORT OF WW 640 | 0.2460186015 | $419,270 | $419,270 | $103.15 | | |
| SD140BOND | SD #140 BOND 764 | 0.8342371393 | $419,270 | $419,270 | $349.77 | | |
| SD140GEN | SD #140 GENERAL 760 | 2.0646500647 | $419,270 | $419,270 | $865.65 | | |
| ST2 | STATE SCHOOL PART 2 600 | 0.8131451643 | $419,270 | $419,270 | $340.93 | | |
| STATESCHL | STATE SCHOOL 600 | 1.5158548041 | $419,270 | $419,270 | $635.55 | | |
| STREFUND | STATE REFUND LEVY 603 | 0.0000000000 | $419,270 | $419,270 | $0.00 | | |
| CWWBOND | C OF WW BOND 643 | 0.2760494372 | $419,270 | $419,270 | $115.74 | | |
| CWWGEN | CITY OF WW 631 | 1.6100204973 | $419,270 | $419,270 | $675.03 | | |
| CWWRFD | CITY OF WALLA WALLA REFUND 631 | 0.0000000000 | $419,270 | $419,270 | $0.00 | | |
| | Total Tax Rate: | 8.7973694689 | | | | | |
| | | | | Taxes w/Current Exemptions: | $3,688.47 | | |
| | | | | Taxes w/o Exemptions: | $3,688.47 | | |
Improvement / Building
| Improvement #1: | RESIDENTIAL | State Code: | 11 | 1627.0 sqft | Value: | $337,190 |
| Exterior Wall: | VINYL | Heating/Cooling: | WARM & COOLED AIR | | Number of Bathrooms: | 2 | Number of Bedrooms: | 4 | | Plumbing: | 9 | Roof Covering: | COMP SHINGLE |
|
| | Type | Description | Class CD | Sub Class CD | Year Built | Area |
| | MA | Main Area | 1 | 30 | 1975 | 1627.0 |
| | SI1 | SITE IMPROVEMENT | 1 | 30 | 1975 | 2.0 |
| | BASE | BASEMENT | 1 | 30 | 1975 | 907.0 |
| | BPF | BASEMENT -PARTITIONED FINISH | 1 | 30 | 1975 | 450.0 |
| | S1F | Single One Story Fireplace | 1 | 30 | 1975 | 1.0 |
| | PRC | PORCH W STEPS, ROOF,CEILED | 1 | 30 | 1975 | 42.0 |
| | WOD | Wood Deck | 1 | 30 | 1975 | 108.0 |
| | DTG | Detached Garage | 1 | 30 | 1975 | 1272.0 |
Sketch
Property Image
Land
| 1 | RES 1 | Converted: Residential | 0.2094 | 9120.00 | 0.00 | 0.00 | 1.00 | $82,080 | $0 |
Roll Value History
| 2026 | N/A | N/A | N/A | N/A | N/A |
| 2025 | $335,030 | $100,320 | $0 | $435,350 | $435,350 |
| 2024 | $337,190 | $82,080 | $0 | $419,270 | $419,270 |
| 2023 | $337,190 | $82,080 | $0 | $419,270 | $419,270 |
| 2022 | $321,130 | $66,120 | $0 | $387,250 | $387,250 |
| 2021 | $237,870 | $66,120 | $0 | $303,990 | $303,990 |
| 2020 | $182,980 | $66,120 | $0 | $249,100 | $249,100 |
| 2019 | $182,980 | $66,120 | $0 | $249,100 | $249,100 |
| 2018 | $182,390 | $46,400 | $0 | $228,790 | $228,790 |
| 2017 | $182,390 | $46,400 | $0 | $228,790 | $228,790 |
| 2016 | $158,600 | $46,400 | $0 | $205,000 | $205,000 |
| 2015 | $158,600 | $46,400 | $0 | $205,000 | $205,000 |
| 2014 | $158,600 | $46,400 | $0 | $205,000 | $205,000 |
| 2013 | $158,600 | $46,400 | $0 | $205,000 | $205,000 |
| 2012 | $158,600 | $46,400 | $0 | $0 | $0 |
| 2011 | $158,600 | $46,400 | $0 | $0 | $0 |
| 2010 | $148,900 | $46,400 | $0 | $0 | $0 |
| 2009 | $170,600 | $46,400 | $0 | $0 | $0 |
| 2008 | $170,600 | $46,400 | $0 | $0 | $0 |
| 2007 | $113,600 | $23,900 | $0 | $0 | $0 |
Deed and Sales History
| 1 | 02/26/2021 | QCD | QUIT CLAIM DEED | BELL KENNETH D & SARAH M | BELL SARAH M | | | $0.00 | 141014 | 2021-02352 |
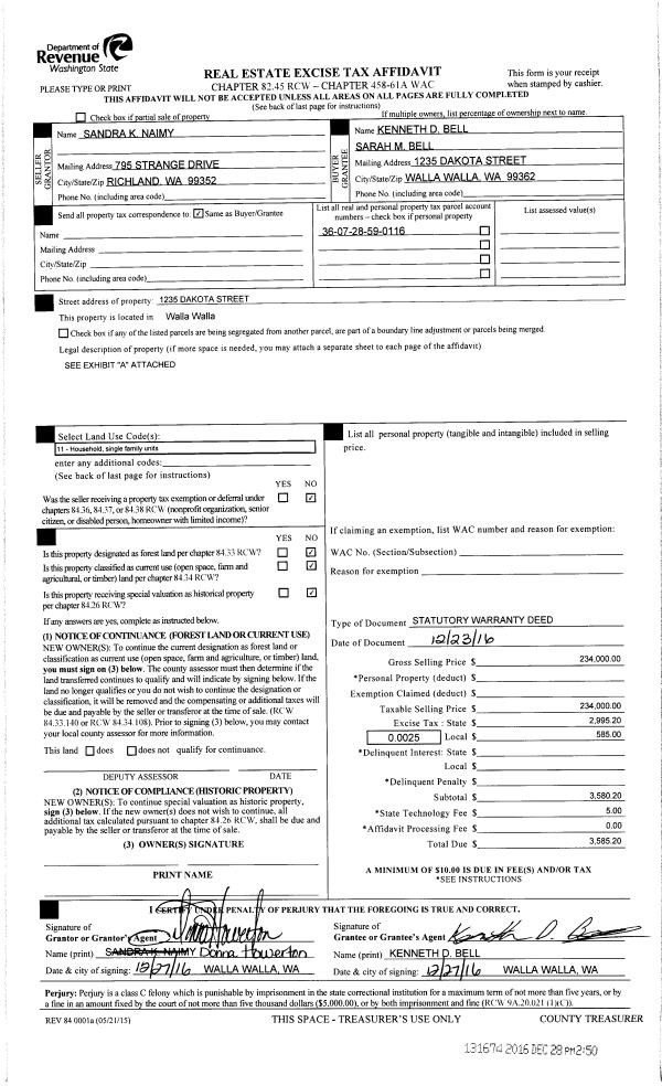
| 2 | 12/28/2016 | SWD | STATUTORY WARRANTY DEED | NAIMY SANDRA K | BELL KENNETH D & SARAH M | | | $234,000.00 | 131674 | 2016-10726 |
| 3 | 08/12/2013 | QCD | QUIT CLAIM DEED | NAIMY, BRUCE A & SANDRA K | NAIMY, SANDRA K | | | $0.00 | 124450 | 2013-08180 |
| 4 | 02/01/1973 | WARRANTY D | WARRANTY DEED | | | | | $16,900.00 | 0 | 2052-6992 |
Payout Agreement
| No payout information available.. |