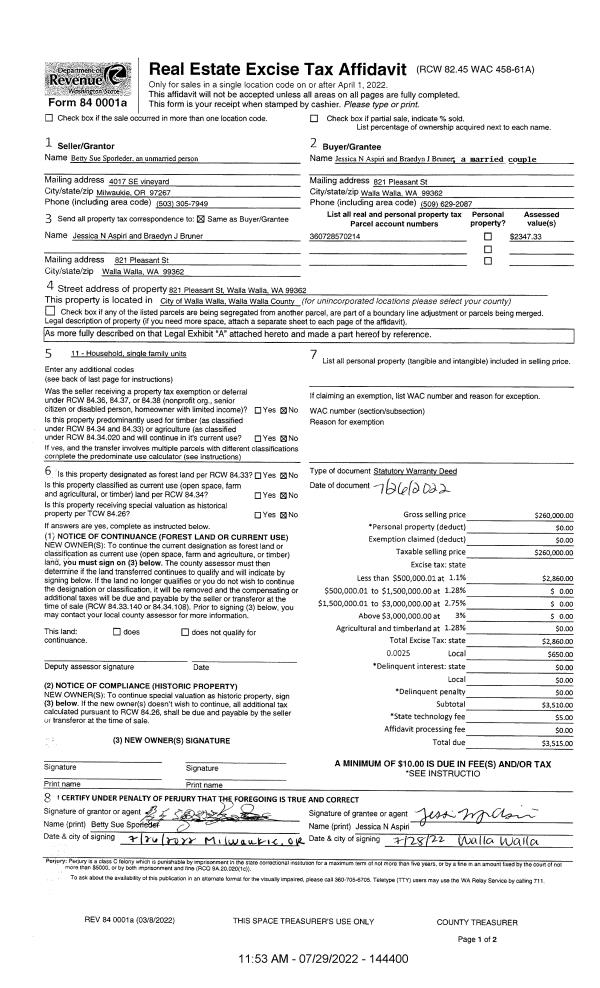
Property
Account |
| Property ID: | 9750 | Abbreviated Legal Description: | EDGEWOOD PLACE LOT 14 BLK 2 |
| Parcel Number: | 360728570214 | Agent Code: | |
| Type: | Real | | |
| Tax Area: | 1 - OL-140-F | Land Use Code | 11 |
| Open Space: | N | DFL | N |
| Historic Property: | N | Remodel Property: | N |
| Multi-Family Redevelopment: | N | | |
| Township: | 7 | Section: | 28 |
| Range: | 36 |
Location |
| Address: | 821 PLEASANT ST WA 99362 | Mapsco: | |
| Neighborhood: | A Res | Map ID: | |
| Neighborhood CD: | 613011 |
Owner |
| Name: | ASPIRI JESSICA N & BRAEDYN J BRUNER | Owner ID: | 72030 |
| Mailing Address: | 821 PLEASANT ST WALLA WALLA, WA 99362 | % Ownership: | 100.0000000000% |
| | | Exemptions: | |
Taxes and Assessment Details
Property Tax Information as of
02/21/2026
Click on "Statement Details" to expand or collapse a tax statement.
* Please enter a valid date ** Please enter a valid date *
Statement Details |
| | TOTAL: | $0.00 | $0.00 | $0.00 | $0.00 | $0.00 | $0.00 |
|
| | $0.00 | $0.00 | $0.00 | $0.00 | $0.00 | $0.00 |
Values
| (+) Improvement Homesite Value: | + | $0 | |
| (+) Improvement Non-Homesite Value: | + | $205,970 | |
| (+) Land Homesite Value: | + | $0 | |
| (+) Land Non-Homesite Value: | + | $60,000 | |
| (+) Curr Use (HS): | + | $0 | $0 |
| (+) Curr Use (NHS): | + | $0 | $0 |
| | | -------------------------- | |
| (=) Market Value: | = | $265,970 | |
| (–) Productivity Loss: | – | $0 | |
| | | -------------------------- | |
| (=) Subtotal: | = | $265,970 | |
| (+) Senior Appraised Value: | + | $0 | |
| (+) Non-Senior Appraised Value: | + | $265,970 | |
| | | -------------------------- | |
| (=) Total Appraised Value: | = | $265,970 | |
| (–) Senior Exemption Loss: | – | $0 | |
| (–) Exemption Loss: | – | $0 | |
| | | -------------------------- | |
| (=) Taxable Value: | = | $265,970 | |
Taxing Jurisdiction
| Owner: | ASPIRI JESSICA N & BRAEDYN J BRUNER | | |
| % Ownership: | 100.0000000000% | | |
| Total Value: | $265,970 | | |
| Tax Area: | 1 - OL-140-F |
| CERFD | CURRENT EXPENSE REFUND 010 | 0.0000000000 | $265,970 | $265,970 | $0.00 | | |
| CURREXP | CURRENT EXPENSE 010 | 1.0175366760 | $265,970 | $265,970 | $270.63 | | |
| HUMNSERV | HUMAN SERVICES 119 | 0.0250000000 | $265,970 | $265,970 | $6.65 | | |
| SLDREL | SOLDIERS RELIEF 121 | 0.0155990005 | $265,970 | $265,970 | $4.15 | | |
| EMERGSER | EMS 147 | 0.3792580840 | $265,970 | $265,970 | $100.87 | | |
| EMSRFD | EMS REFUND 147 | 0.0000000000 | $265,970 | $265,970 | $0.00 | | |
| PORTRFD | PORT REFUND 640 | 0.0000000000 | $265,970 | $265,970 | $0.00 | | |
| PORTWWGEN | PORT OF WW 640 | 0.2460186015 | $265,970 | $265,970 | $65.43 | | |
| SD140BOND | SD #140 BOND 764 | 0.8342371393 | $265,970 | $265,970 | $221.88 | | |
| SD140GEN | SD #140 GENERAL 760 | 2.0646500647 | $265,970 | $265,970 | $549.13 | | |
| ST2 | STATE SCHOOL PART 2 600 | 0.8131451643 | $265,970 | $265,970 | $216.27 | | |
| STATESCHL | STATE SCHOOL 600 | 1.5158548041 | $265,970 | $265,970 | $403.17 | | |
| STREFUND | STATE REFUND LEVY 603 | 0.0000000000 | $265,970 | $265,970 | $0.00 | | |
| CWWBOND | C OF WW BOND 643 | 0.2760494372 | $265,970 | $265,970 | $73.42 | | |
| CWWGEN | CITY OF WW 631 | 1.6100204973 | $265,970 | $265,970 | $428.22 | | |
| CWWRFD | CITY OF WALLA WALLA REFUND 631 | 0.0000000000 | $265,970 | $265,970 | $0.00 | | |
| | Total Tax Rate: | 8.7973694689 | | | | | |
| | | | | Taxes w/Current Exemptions: | $2,339.82 | | |
| | | | | Taxes w/o Exemptions: | $2,339.82 | | |
Improvement / Building
| Improvement #1: | RESIDENTIAL | State Code: | 11 | 888.0 sqft | Value: | $205,970 |
| Exterior Wall: | STUCCO | Heating/Cooling: | WARM & COOLED AIR | | Number of Bathrooms: | 1 | Number of Bedrooms: | 2 | | Plumbing: | 7 | Roof Covering: | COMP SHINGLE |
|
| | Type | Description | Class CD | Sub Class CD | Year Built | Area |
| | MA | Main Area | 1 | 25 | 1938 | 888.0 |
| | SI1 | SITE IMPROVEMENT | 1 | 25 | 1938 | 1.0 |
| | BASE | BASEMENT | 1 | 25 | 1938 | 448.0 |
| | BPF | BASEMENT -PARTITIONED FINISH | 1 | 25 | 1938 | 448.0 |
| | SWP | Solid Wall Porch | 1 | 25 | 1938 | 66.0 |
| | ATG | Attached Garage | 1 | 25 | 1938 | 228.0 |
Sketch
Property Image
Land
| 1 | RES 1 | Converted: Residential | 0.1148 | 5000.00 | 0.00 | 0.00 | 1.00 | $60,000 | $0 |
Roll Value History
| 2026 | N/A | N/A | N/A | N/A | N/A |
| 2025 | $209,000 | $60,000 | $0 | $269,000 | $269,000 |
| 2024 | $205,970 | $60,000 | $0 | $265,970 | $265,970 |
| 2023 | $205,970 | $60,000 | $0 | $265,970 | $265,970 |
| 2022 | $205,970 | $45,000 | $0 | $250,970 | $250,970 |
| 2021 | $171,640 | $45,000 | $0 | $216,640 | $216,640 |
| 2020 | $122,600 | $45,000 | $0 | $167,600 | $167,600 |
| 2019 | $122,600 | $45,000 | $0 | $167,600 | $167,600 |
| 2018 | $72,600 | $30,000 | $0 | $102,600 | $102,600 |
| 2017 | $66,000 | $30,000 | $0 | $96,000 | $96,000 |
| 2016 | $55,000 | $30,000 | $0 | $85,000 | $85,000 |
| 2015 | $55,000 | $30,000 | $0 | $85,000 | $85,000 |
| 2014 | $50,000 | $30,000 | $0 | $80,000 | $80,000 |
| 2013 | $50,000 | $30,000 | $0 | $80,000 | $80,000 |
| 2012 | $50,000 | $30,000 | $0 | $0 | $0 |
| 2011 | $50,000 | $30,000 | $0 | $0 | $0 |
| 2010 | $64,100 | $30,000 | $0 | $0 | $0 |
| 2009 | $74,500 | $30,000 | $0 | $0 | $0 |
| 2008 | $74,500 | $30,000 | $0 | $0 | $0 |
| 2007 | $55,800 | $15,000 | $0 | $0 | $0 |
Deed and Sales History
| 1 | 07/29/2022 | SWD | STATUTORY WARRANTY DEED | SPORLEDER BETTY SUE | ASPIRI JESSICA N & BRAEDYN J BRUNER | | | $260,000.00 | 144400 | 2022-06370 |
| 2 | 01/22/2002 | WARRANTY D | WARRANTY DEED | | | | | $68,000.00 | 98770 | 3270-200699 |
Payout Agreement
| No payout information available.. |