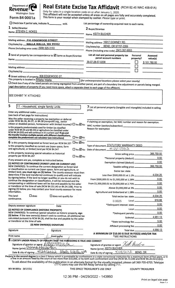
Property
Account |
| Property ID: | 9749 | Abbreviated Legal Description: | EDGEWOOD PLACE LOT 8 BLK 2 |
| Parcel Number: | 360728570208 | Agent Code: | |
| Type: | Real | | |
| Tax Area: | 1 - OL-140-F | Land Use Code | 11 |
| Open Space: | N | DFL | N |
| Historic Property: | N | Remodel Property: | N |
| Multi-Family Redevelopment: | N | | |
| Township: | 7 | Section: | 28 |
| Range: | 36 |
Location |
| Address: | 808 EDGEWOOD ST WA 99362 | Mapsco: | |
| Neighborhood: | A Res | Map ID: | |
| Neighborhood CD: | 613011 |
Owner |
| Name: | BUCHER KEITH BRIDGE | Owner ID: | 70398 |
| Mailing Address: | 16917 DOWNEY RD BEND, OR 97707 | % Ownership: | 100.0000000000% |
| | | Exemptions: | |
Taxes and Assessment Details
Values
| (+) Improvement Homesite Value: | + | $0 | |
| (+) Improvement Non-Homesite Value: | + | $277,190 | |
| (+) Land Homesite Value: | + | $0 | |
| (+) Land Non-Homesite Value: | + | $60,000 | |
| (+) Curr Use (HS): | + | $0 | $0 |
| (+) Curr Use (NHS): | + | $0 | $0 |
| | | -------------------------- | |
| (=) Market Value: | = | $337,190 | |
| (–) Productivity Loss: | – | $0 | |
| | | -------------------------- | |
| (=) Subtotal: | = | $337,190 | |
| (+) Senior Appraised Value: | + | $0 | |
| (+) Non-Senior Appraised Value: | + | $337,190 | |
| | | -------------------------- | |
| (=) Total Appraised Value: | = | $337,190 | |
| (–) Senior Exemption Loss: | – | $0 | |
| (–) Exemption Loss: | – | $0 | |
| | | -------------------------- | |
| (=) Taxable Value: | = | $337,190 | |
Taxing Jurisdiction
| Owner: | BUCHER KEITH BRIDGE | | |
| % Ownership: | 100.0000000000% | | |
| Total Value: | $337,190 | | |
| Tax Area: | 1 - OL-140-F |
| CERFD | CURRENT EXPENSE REFUND 010 | 0.0000000000 | $337,190 | $337,190 | $0.00 | | |
| CURREXP | CURRENT EXPENSE 010 | 1.0175366760 | $337,190 | $337,190 | $343.10 | | |
| HUMNSERV | HUMAN SERVICES 119 | 0.0250000000 | $337,190 | $337,190 | $8.43 | | |
| SLDREL | SOLDIERS RELIEF 121 | 0.0155990005 | $337,190 | $337,190 | $5.26 | | |
| EMERGSER | EMS 147 | 0.3792580840 | $337,190 | $337,190 | $127.88 | | |
| EMSRFD | EMS REFUND 147 | 0.0000000000 | $337,190 | $337,190 | $0.00 | | |
| PORTRFD | PORT REFUND 640 | 0.0000000000 | $337,190 | $337,190 | $0.00 | | |
| PORTWWGEN | PORT OF WW 640 | 0.2460186015 | $337,190 | $337,190 | $82.96 | | |
| SD140BOND | SD #140 BOND 764 | 0.8342371393 | $337,190 | $337,190 | $281.30 | | |
| SD140GEN | SD #140 GENERAL 760 | 2.0646500647 | $337,190 | $337,190 | $696.18 | | |
| ST2 | STATE SCHOOL PART 2 600 | 0.8131451643 | $337,190 | $337,190 | $274.18 | | |
| STATESCHL | STATE SCHOOL 600 | 1.5158548041 | $337,190 | $337,190 | $511.13 | | |
| STREFUND | STATE REFUND LEVY 603 | 0.0000000000 | $337,190 | $337,190 | $0.00 | | |
| CWWBOND | C OF WW BOND 643 | 0.2760494372 | $337,190 | $337,190 | $93.08 | | |
| CWWGEN | CITY OF WW 631 | 1.6100204973 | $337,190 | $337,190 | $542.88 | | |
| CWWRFD | CITY OF WALLA WALLA REFUND 631 | 0.0000000000 | $337,190 | $337,190 | $0.00 | | |
| | Total Tax Rate: | 8.7973694689 | | | | | |
| | | | | Taxes w/Current Exemptions: | $2,966.38 | | |
| | | | | Taxes w/o Exemptions: | $2,966.38 | | |
Improvement / Building
| Improvement #1: | RESIDENTIAL | State Code: | 11 | 880.0 sqft | Value: | $277,190 |
| Exterior Wall: | SIDING | Heating/Cooling: | WARM & COOLED AIR | | Number of Bathrooms: | 2 | Number of Bedrooms: | 2 | | Plumbing: | 9 | Roof Covering: | COMP SHINGLE |
|
| | Type | Description | Class CD | Sub Class CD | Year Built | Area |
| | MA | Main Area | 4 | 30 | 1902 | 880.0 |
| | UPFL | Upper Floor (included in main area) | 4 | 30 | 1902 | 280.0 |
| | SI1 | SITE IMPROVEMENT | 4 | 30 | 1902 | 1.0 |
| | BASE | BASEMENT | 4 | 30 | 1902 | 100.0 |
| | RCD | WOOD DECK W/ROOF, CEILED | 4 | 30 | 1902 | 120.0 |
| | DTG | Detached Garage | 4 | 30 | 1902 | 697.0 |
| | GIF | GARAGE INTERIOR FINISH | 4 | 30 | 1902 | 391.0 |
| | FBAT | FULL BATH | 4 | 30 | 1902 | 1.0 |
| | APP | APPLIANCE ALLOWANCE | 4 | 30 | 1902 | 2.0 |
Sketch
Property Image
Land
| 1 | RES 1 | Converted: Residential | 0.1148 | 5000.00 | 0.00 | 0.00 | 1.00 | $60,000 | $0 |
Roll Value History
| 2026 | N/A | N/A | N/A | N/A | N/A |
| 2025 | $288,990 | $60,000 | $0 | $348,990 | $348,990 |
| 2024 | $277,190 | $60,000 | $0 | $337,190 | $337,190 |
| 2023 | $277,190 | $60,000 | $0 | $337,190 | $337,190 |
| 2022 | $197,990 | $45,000 | $0 | $242,990 | $242,990 |
| 2021 | $56,780 | $45,000 | $0 | $101,780 | $101,780 |
| 2020 | $56,780 | $45,000 | $0 | $101,780 | $101,780 |
| 2019 | $56,780 | $45,000 | $0 | $101,780 | $101,780 |
| 2018 | $49,770 | $30,000 | $0 | $79,770 | $79,770 |
| 2017 | $49,770 | $30,000 | $0 | $79,770 | $79,770 |
| 2016 | $49,770 | $30,000 | $0 | $79,770 | $79,770 |
| 2015 | $49,770 | $30,000 | $0 | $79,770 | $79,770 |
| 2014 | $47,400 | $30,000 | $0 | $77,400 | $77,400 |
| 2013 | $47,400 | $30,000 | $0 | $77,400 | $77,400 |
| 2012 | $35,200 | $30,000 | $0 | $0 | $0 |
| 2011 | $35,200 | $30,000 | $0 | $0 | $0 |
| 2010 | $35,200 | $30,000 | $0 | $0 | $0 |
| 2009 | $42,400 | $30,000 | $0 | $0 | $0 |
| 2008 | $42,400 | $30,000 | $0 | $0 | $0 |
| 2007 | $28,200 | $15,000 | $0 | $0 | $0 |
Deed and Sales History
| 1 | 04/28/2022 | QCD | QUIT CLAIM DEED | BUCHER ANNE ABBOTT | BUCHER KEITH BRIDGE | | | | 143861 | 2022-03673 |
| 2 | 04/29/2022 | SWD | STATUTORY WARRANTY DEED | NOKES STEVEN C | BUCHER KEITH BRIDGE | | | $366,750.00 | 143860 | 2022-03672 |
| 3 | 07/05/1978 | WARRANTY D | WARRANTY DEED | | | | | $5,000.00 | 0 | 8578-05866 |
Payout Agreement
| No payout information available.. |