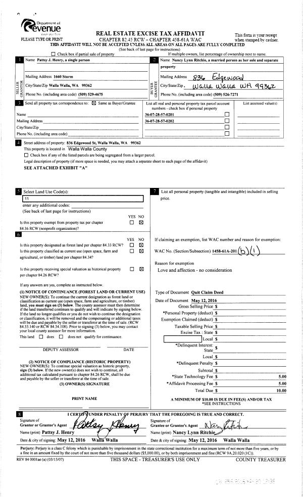
Property
Account |
| Property ID: | 9745 | Abbreviated Legal Description: | EDGEWOOD PLACE LOTS 2 & 3 BLK 2 |
| Parcel Number: | 360728570202 | Agent Code: | |
| Type: | Real | | |
| Tax Area: | 1 - OL-140-F | Land Use Code | 11 |
| Open Space: | N | DFL | N |
| Historic Property: | N | Remodel Property: | N |
| Multi-Family Redevelopment: | N | | |
| Township: | 7 | Section: | 28 |
| Range: | 36 |
Location |
| Address: | 836 EDGEWOOD ST WA 99362 | Mapsco: | |
| Neighborhood: | G Res | Map ID: | |
| Neighborhood CD: | 614011 |
Owner |
| Name: | RITCHIE NANCY LYNN | Owner ID: | 58753 |
| Mailing Address: | 836 EDGEWOOD WALLA WALLA, WA 99362 | % Ownership: | 100.0000000000% |
| | | Exemptions: | |
Taxes and Assessment Details
Values
| (+) Improvement Homesite Value: | + | N/A | |
| (+) Improvement Non-Homesite Value: | + | N/A | |
| (+) Land Homesite Value: | + | N/A | |
| (+) Land Non-Homesite Value: | + | N/A | Ag / Timber Use Value |
| (+) Curr Use (HS): | + | N/A | N/A |
| (+) Curr Use (NHS): | + | N/A | N/A |
| | | -------------------------- | |
| (=) Market Value: | = | N/A | |
| (–) Productivity Loss: | – | N/A | |
| | | -------------------------- | |
| (=) Subtotal: | = | N/A | |
| (+) Senior Appraised Value: | + | N/A | |
| (+) Non-Senior Appraised Value: | + | N/A | |
| | | -------------------------- | |
| (=) Total Appraised Value: | = | N/A | |
| (–) Senior Exemption Loss: | – | N/A | |
| (–) Exemption Loss: | – | N/A | |
| | | -------------------------- | |
| (=) Taxable Value: | = | N/A | |
Taxing Jurisdiction
| Owner: | RITCHIE NANCY LYNN | | |
| % Ownership: | 100.0000000000% | | |
| Total Value: | N/A | | |
| Tax Area: | 1 - OL-140-F |
| CERFD | CURRENT EXPENSE REFUND 010 | N/A | N/A | N/A | N/A | | |
| CURREXP | CURRENT EXPENSE 010 | N/A | N/A | N/A | N/A | | |
| HUMNSERV | HUMAN SERVICES 119 | N/A | N/A | N/A | N/A | | |
| SLDREL | SOLDIERS RELIEF 121 | N/A | N/A | N/A | N/A | | |
| EMERGSER | EMS 147 | N/A | N/A | N/A | N/A | | |
| EMSRFD | EMS REFUND 147 | N/A | N/A | N/A | N/A | | |
| PORTRFD | PORT REFUND 640 | N/A | N/A | N/A | N/A | | |
| PORTWWGEN | PORT OF WW 640 | N/A | N/A | N/A | N/A | | |
| SD140BOND | SD #140 BOND 764 | N/A | N/A | N/A | N/A | | |
| SD140GEN | SD #140 GENERAL 760 | N/A | N/A | N/A | N/A | | |
| ST2 | STATE SCHOOL PART 2 600 | N/A | N/A | N/A | N/A | | |
| STATESCHL | STATE SCHOOL 600 | N/A | N/A | N/A | N/A | | |
| STREFUND | STATE REFUND LEVY 603 | N/A | N/A | N/A | N/A | | |
| CWWBOND | C OF WW BOND 643 | N/A | N/A | N/A | N/A | | |
| CWWGEN | CITY OF WW 631 | N/A | N/A | N/A | N/A | | |
| CWWRFD | CITY OF WALLA WALLA REFUND 631 | N/A | N/A | N/A | N/A | | |
| | Total Tax Rate: | N/A | | | | | |
| | | | | Taxes w/Current Exemptions: | N/A | | |
| | | | | Taxes w/o Exemptions: | N/A | | |
Improvement / Building
| Improvement #1: | RESIDENTIAL | State Code: | 11 | 1140.0 sqft | Value: | N/A |
| Exterior Wall: | VINYL | Heating/Cooling: | FLOOR FURNACE | | Number of Bathrooms: | 1 | Number of Bedrooms: | 3 | | Plumbing: | 7 | Roof Covering: | COMP SHINGLE |
|
| | Type | Description | Class CD | Sub Class CD | Year Built | Area |
| | MA | Main Area | 1 | 25 | 1949 | 1140.0 |
| | SI1 | SITE IMPROVEMENT | 1 | 25 | 1949 | 2.0 |
| | S1F | Single One Story Fireplace | 1 | 25 | 1949 | 1.0 |
| | WDR | WOOD DECK W/ROOF | 1 | 25 | 2016 | 180.0 |
| | DTG | Detached Garage | 1 | 25 | 1949 | 400.0 |
Sketch
Property Image
Land
| 1 | RES 1 | Converted: Residential | 0.2181 | 9500.00 | 0.00 | 0.00 | 1.00 | N/A | N/A |
Roll Value History
| 2026 | N/A | N/A | N/A | N/A | N/A |
| 2025 | $151,500 | $114,000 | $0 | $265,500 | $265,500 |
| 2024 | $209,550 | $85,500 | $0 | $295,050 | $295,050 |
| 2023 | $209,550 | $85,500 | $0 | $295,050 | $295,050 |
| 2022 | $182,210 | $68,880 | $0 | $251,090 | $251,090 |
| 2021 | $151,840 | $68,880 | $0 | $220,720 | $220,720 |
| 2020 | $138,040 | $68,880 | $0 | $206,920 | $206,920 |
| 2019 | $138,040 | $68,880 | $0 | $206,920 | $206,920 |
| 2018 | $63,990 | $46,700 | $0 | $110,690 | $110,690 |
| 2017 | $31,990 | $46,700 | $0 | $78,690 | $78,690 |
| 2016 | $30,470 | $46,700 | $0 | $77,170 | $17,170 |
| 2015 | $30,470 | $46,700 | $0 | $77,170 | $77,170 |
| 2014 | $27,700 | $46,700 | $0 | $74,400 | $74,400 |
| 2013 | $27,700 | $46,700 | $0 | $74,400 | $74,400 |
| 2012 | $24,300 | $46,700 | $0 | $0 | $0 |
| 2011 | $24,300 | $46,700 | $0 | $0 | $0 |
| 2010 | $36,800 | $46,700 | $0 | $0 | $0 |
| 2009 | $46,100 | $46,700 | $0 | $0 | $0 |
| 2008 | $46,100 | $46,700 | $0 | $0 | $0 |
| 2007 | $49,600 | $24,200 | $0 | $0 | $0 |
Deed and Sales History
| 1 | 05/12/2016 | QCD | QUIT CLAIM DEED | HENRY PATTSY J | RITCHIE NANCY LYNN | | | $0.00 | 130256 | 2016-03798 |
| 2 | 11/06/2015 | DPR | DEED OF PERSONAL REPRESENTATIVE | HENRY HARVEY R & PATTSY J HENRY | HENRY PATTSY J | 2 PARCELS | | | 129179 | 2015-09847 |
| 3 | 05/19/1995 | QCD | QUIT CLAIM DEED | | | | | $41,568.00 | 84001 | 2309-504562 |
|   | |
Payout Agreement
| No payout information available.. |