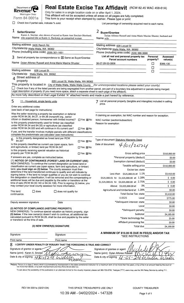
Property
Account |
| Property ID: | 9719 | Abbreviated Legal Description: | BRYANTS LOT 6 BLK 8 |
| Parcel Number: | 360728530806 | Agent Code: | |
| Type: | Real | | |
| Tax Area: | 1 - OL-140-F | Land Use Code | 11 |
| Open Space: | N | DFL | N |
| Historic Property: | N | Remodel Property: | N |
| Multi-Family Redevelopment: | N | | |
| Township: | 7 | Section: | 28 |
| Range: | 36 |
Location |
| Address: | 628 LOCUST ST WA 99362 | Mapsco: | |
| Neighborhood: | A Res | Map ID: | |
| Neighborhood CD: | 613011 |
Owner |
| Name: | SINCLAIR KAREN A | Owner ID: | 11016 |
| Mailing Address: | 3435 RANCH RD WALLA WALLA, WA 99362 | % Ownership: | 100.0000000000% |
| | | Exemptions: | |
Taxes and Assessment Details
Values
| (+) Improvement Homesite Value: | + | $0 | |
| (+) Improvement Non-Homesite Value: | + | $319,130 | |
| (+) Land Homesite Value: | + | $0 | |
| (+) Land Non-Homesite Value: | + | $70,000 | |
| (+) Curr Use (HS): | + | $0 | $0 |
| (+) Curr Use (NHS): | + | $0 | $0 |
| | | -------------------------- | |
| (=) Market Value: | = | $389,130 | |
| (–) Productivity Loss: | – | $0 | |
| | | -------------------------- | |
| (=) Subtotal: | = | $389,130 | |
| (+) Senior Appraised Value: | + | $0 | |
| (+) Non-Senior Appraised Value: | + | $389,130 | |
| | | -------------------------- | |
| (=) Total Appraised Value: | = | $389,130 | |
| (–) Senior Exemption Loss: | – | $0 | |
| (–) Exemption Loss: | – | $0 | |
| | | -------------------------- | |
| (=) Taxable Value: | = | $389,130 | |
Taxing Jurisdiction
| Owner: | SINCLAIR KAREN A | | |
| % Ownership: | 100.0000000000% | | |
| Total Value: | $389,130 | | |
| Tax Area: | 1 - OL-140-F |
| CERFD | CURRENT EXPENSE REFUND 010 | 0.0000000000 | $389,130 | $389,130 | $0.00 | | |
| CURREXP | CURRENT EXPENSE 010 | 1.0175366760 | $389,130 | $389,130 | $395.95 | | |
| HUMNSERV | HUMAN SERVICES 119 | 0.0250000000 | $389,130 | $389,130 | $9.73 | | |
| SLDREL | SOLDIERS RELIEF 121 | 0.0155990005 | $389,130 | $389,130 | $6.07 | | |
| EMERGSER | EMS 147 | 0.3792580840 | $389,130 | $389,130 | $147.58 | | |
| EMSRFD | EMS REFUND 147 | 0.0000000000 | $389,130 | $389,130 | $0.00 | | |
| PORTRFD | PORT REFUND 640 | 0.0000000000 | $389,130 | $389,130 | $0.00 | | |
| PORTWWGEN | PORT OF WW 640 | 0.2460186015 | $389,130 | $389,130 | $95.73 | | |
| SD140BOND | SD #140 BOND 764 | 0.8342371393 | $389,130 | $389,130 | $324.63 | | |
| SD140GEN | SD #140 GENERAL 760 | 2.0646500647 | $389,130 | $389,130 | $803.42 | | |
| ST2 | STATE SCHOOL PART 2 600 | 0.8131451643 | $389,130 | $389,130 | $316.42 | | |
| STATESCHL | STATE SCHOOL 600 | 1.5158548041 | $389,130 | $389,130 | $589.86 | | |
| STREFUND | STATE REFUND LEVY 603 | 0.0000000000 | $389,130 | $389,130 | $0.00 | | |
| CWWBOND | C OF WW BOND 643 | 0.2760494372 | $389,130 | $389,130 | $107.42 | | |
| CWWGEN | CITY OF WW 631 | 1.6100204973 | $389,130 | $389,130 | $626.51 | | |
| CWWRFD | CITY OF WALLA WALLA REFUND 631 | 0.0000000000 | $389,130 | $389,130 | $0.00 | | |
| | Total Tax Rate: | 8.7973694689 | | | | | |
| | | | | Taxes w/Current Exemptions: | $3,423.32 | | |
| | | | | Taxes w/o Exemptions: | $3,423.32 | | |
Improvement / Building
| Improvement #1: | RESIDENTIAL | State Code: | 11 | 1549.0 sqft | Value: | $319,130 |
| Exterior Wall: | SHINGLE | Heating/Cooling: | WARM & COOLED AIR | | Number of Bathrooms: | 1 | Number of Bedrooms: | 3 | | Plumbing: | 7 | Roof Covering: | COMP SHINGLE |
|
| | Type | Description | Class CD | Sub Class CD | Year Built | Area |
| | MA | Main Area | 4 | 35 | 1901 | 1549.0 |
| | UPFL | Upper Floor (included in main area) | 4 | 35 | 1901 | 479.0 |
| | SI1 | SITE IMPROVEMENT | 4 | 35 | 1901 | 1.5 |
| | BASE | BASEMENT | 4 | 35 | 1901 | 676.0 |
| | BMF | BASEMENT - MIN FINISH | 4 | 35 | 1901 | 304.0 |
| | OPS | OPEN PORCH W/STEPS | 4 | 35 | 1901 | 35.0 |
| | DTG | Detached Garage | 4 | 35 | 1901 | 288.0 |
Sketch
Property Image
Land
| 1 | RES 1 | Converted: Residential | 0.1377 | 6000.00 | 0.00 | 0.00 | 1.00 | $70,000 | $0 |
Roll Value History
| 2026 | N/A | N/A | N/A | N/A | N/A |
| 2025 | $240,000 | $66,000 | $0 | $306,000 | $306,000 |
| 2024 | $239,340 | $70,000 | $0 | $309,340 | $309,340 |
| 2023 | $319,130 | $70,000 | $0 | $389,130 | $389,130 |
| 2022 | $319,130 | $55,000 | $0 | $374,130 | $374,130 |
| 2021 | $212,750 | $55,000 | $0 | $267,750 | $267,750 |
| 2020 | $170,200 | $55,000 | $0 | $225,200 | $225,200 |
| 2019 | $170,200 | $55,000 | $0 | $225,200 | $225,200 |
| 2018 | $155,740 | $36,000 | $0 | $191,740 | $191,740 |
| 2017 | $129,780 | $36,000 | $0 | $165,780 | $165,780 |
| 2016 | $108,150 | $36,000 | $0 | $144,150 | $144,150 |
| 2015 | $108,150 | $36,000 | $0 | $144,150 | $144,150 |
| 2014 | $103,000 | $36,000 | $0 | $139,000 | $139,000 |
| 2013 | $103,000 | $36,000 | $0 | $139,000 | $139,000 |
| 2012 | $100,200 | $36,000 | $0 | $0 | $0 |
| 2011 | $100,200 | $36,000 | $0 | $0 | $0 |
| 2010 | $100,200 | $36,000 | $0 | $0 | $0 |
| 2009 | $115,300 | $36,000 | $0 | $0 | $0 |
| 2008 | $115,300 | $36,000 | $0 | $0 | $0 |
| 2007 | $77,300 | $18,000 | $0 | $0 | $0 |
Deed and Sales History
| 1 | 04/02/2024 | SWD | STATUTORY WARRANTY DEED | SINCLAIR KAREN A | RUSSELL DYLAN ALFONSO & ANNA-MARIE MAXINE SHUSTER | | | $310,000.00 | 147328 | 2024-01601 |
| 2 | 09/30/1985 | WARRANTY D | WARRANTY DEED | | | | | $41,900.00 | 0 | 5605-62667 |
Payout Agreement
| No payout information available.. |