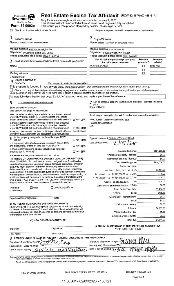
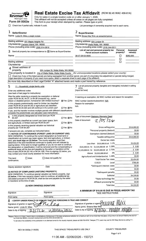
Property
Account |
| Property ID: | 9704 | Abbreviated Legal Description: | BRYANTS LOT 5 BLK 6 |
| Parcel Number: | 360728530605 | Agent Code: | |
| Type: | Real | | |
| Tax Area: | 1 - OL-140-F | Land Use Code | 11 |
| Open Space: | N | DFL | N |
| Historic Property: | N | Remodel Property: | N |
| Multi-Family Redevelopment: | N | | |
| Township: | 7 | Section: | 28 |
| Range: | 36 |
Location |
| Address: | 624 JUNIPER ST WA 99362 | Mapsco: | |
| Neighborhood: | A Res | Map ID: | |
| Neighborhood CD: | 613011 |
Owner |
| Name: | MILES LINDA M | Owner ID: | 61724 |
| Mailing Address: | 624 JUNIPER ST WALLA WALLA, WA 99362 | % Ownership: | 100.0000000000% |
| | | Exemptions: | SNR/DSBL |
Taxes and Assessment Details
Property Tax Information as of
02/21/2026
Click on "Statement Details" to expand or collapse a tax statement.
* Please enter a valid date ** Please enter a valid date *
Statement Details |
| | TOTAL: | $0.00 | $0.00 | $0.00 | $0.00 | $0.00 | $0.00 |
|
| | $0.00 | $0.00 | $0.00 | $0.00 | $0.00 | $0.00 |
Values
| (+) Improvement Homesite Value: | + | $210,000 | |
| (+) Improvement Non-Homesite Value: | + | $0 | |
| (+) Land Homesite Value: | + | $70,000 | |
| (+) Land Non-Homesite Value: | + | $0 | |
| (+) Curr Use (HS): | + | $0 | $0 |
| (+) Curr Use (NHS): | + | $0 | $0 |
| | | -------------------------- | |
| (=) Market Value: | = | $280,000 | |
| (–) Productivity Loss: | – | $0 | |
| | | -------------------------- | |
| (=) Subtotal: | = | $280,000 | |
| (+) Senior Appraised Value: | + | $203,150 | |
| (+) Non-Senior Appraised Value: | + | $0 | |
| | | -------------------------- | |
| (=) Total Appraised Value: | = | $203,150 | |
| (–) Senior Exemption Loss: | – | $121,890 | |
| (–) Exemption Loss: | – | $0 | |
| | | -------------------------- | |
| (=) Taxable Value: | = | $81,260 | |
Taxing Jurisdiction
| Owner: | MILES LINDA M | | |
| % Ownership: | 100.0000000000% | | |
| Total Value: | $280,000 | | |
| Tax Area: | 1 - OL-140-F |
| CERFD | CURRENT EXPENSE REFUND 010 | 0.0000000000 | $280,000 | $81,260 | $0.00 | | |
| CURREXP | CURRENT EXPENSE 010 | 1.0175366760 | $280,000 | $81,260 | $82.69 | | |
| HUMNSERV | HUMAN SERVICES 119 | 0.0250000000 | $280,000 | $81,260 | $2.03 | | |
| SLDREL | SOLDIERS RELIEF 121 | 0.0155990005 | $280,000 | $81,260 | $1.27 | | |
| EMERGSER | EMS 147 | 0.3792580840 | $280,000 | $81,260 | $30.82 | | |
| EMSRFD | EMS REFUND 147 | 0.0000000000 | $280,000 | $81,260 | $0.00 | | |
| PORTRFD | PORT REFUND 640 | 0.0000000000 | $280,000 | $81,260 | $0.00 | | |
| PORTWWGEN | PORT OF WW 640 | 0.2460186015 | $280,000 | $81,260 | $19.99 | | |
| SD140BOND | SD #140 BOND 764 | 0.0000000000 | $280,000 | $0 | $0.00 | | |
| SD140GEN | SD #140 GENERAL 760 | 0.0000000000 | $280,000 | $0 | $0.00 | | |
| ST2 | STATE SCHOOL PART 2 600 | 0.0000000000 | $280,000 | $0 | $0.00 | | |
| STATESCHL | STATE SCHOOL 600 | 1.5158548041 | $280,000 | $81,260 | $123.18 | | |
| STREFUND | STATE REFUND LEVY 603 | 0.0000000000 | $280,000 | $81,260 | $0.00 | | |
| CWWBOND | C OF WW BOND 643 | 0.0000000000 | $280,000 | $0 | $0.00 | | |
| CWWGEN | CITY OF WW 631 | 1.6100204973 | $280,000 | $81,260 | $130.83 | | |
| CWWRFD | CITY OF WALLA WALLA REFUND 631 | 0.0000000000 | $280,000 | $81,260 | $0.00 | | |
| | Total Tax Rate: | 4.8092876634 | | | | | |
| | | | | Taxes w/Current Exemptions: | $390.81 | | |
| | | | | Taxes w/o Exemptions: | $2,463.27 | | |
Improvement / Building
| Improvement #1: | RESIDENTIAL | State Code: | 11 | 1018.0 sqft | Value: | $210,000 |
| Exterior Wall: | SIDING | Heating/Cooling: | FLOOR FURNACE | | Number of Bathrooms: | 1 | Number of Bedrooms: | 2 | | Plumbing: | 7 | Roof Covering: | COMP SHINGLE |
|
| | Type | Description | Class CD | Sub Class CD | Year Built | Area |
| | MA | Main Area | 1 | 30 | 1960 | 1018.0 |
| | SI1 | SITE IMPROVEMENT | 1 | 30 | 1960 | 1.0 |
| | RPS | PORCH W/STEPS,ROOF | 1 | 30 | 1960 | 30.0 |
| | CPC | COVERED CARPORT/PATIO | 1 | 30 | 1960 | 189.0 |
| | UTST | Utility Storage Shed | 1 | 30 | 1960 | 146.0 |
| | DTG | Detached Garage | 1 | 30 | 1960 | 448.0 |
Sketch
Property Image
Land
| 1 | RES 1 | Converted: Residential | 0.1377 | 6000.00 | 0.00 | 0.00 | 1.00 | $70,000 | $0 |
Roll Value History
| 2026 | N/A | N/A | N/A | N/A | N/A |
| 2025 | $216,630 | $66,000 | $0 | $282,630 | $81,260 |
| 2024 | $210,000 | $70,000 | $0 | $280,000 | $81,260 |
| 2023 | $210,000 | $70,000 | $0 | $280,000 | $81,260 |
| 2022 | $200,000 | $55,000 | $0 | $255,000 | $81,260 |
| 2021 | $148,150 | $55,000 | $0 | $203,150 | $81,260 |
| 2020 | $105,820 | $55,000 | $0 | $160,820 | $160,820 |
| 2019 | $105,820 | $55,000 | $0 | $160,820 | $160,820 |
| 2018 | $110,230 | $36,000 | $0 | $146,230 | $146,230 |
| 2017 | $100,210 | $36,000 | $0 | $136,210 | $136,210 |
| 2016 | $91,100 | $36,000 | $0 | $127,100 | $127,100 |
| 2015 | $91,100 | $36,000 | $0 | $127,100 | $127,100 |
| 2014 | $91,100 | $36,000 | $0 | $127,100 | $127,100 |
| 2013 | $91,100 | $36,000 | $0 | $127,100 | $127,100 |
| 2012 | $91,100 | $36,000 | $0 | $0 | $0 |
| 2011 | $91,100 | $36,000 | $0 | $0 | $0 |
| 2010 | $80,600 | $36,000 | $0 | $0 | $0 |
| 2009 | $93,600 | $36,000 | $0 | $0 | $0 |
| 2008 | $93,600 | $36,000 | $0 | $0 | $0 |
| 2007 | $64,500 | $18,000 | $0 | $0 | $0 |
Deed and Sales History
| 1 | 09/12/2017 | SWD | STATUTORY WARRANTY DEED | CALHOUN MARILYN J | MILES LINDA M | | | $163,000.00 | 133197 | 2017-07152 |
| 2 | 08/03/2001 | WARRANTY D | WARRANTY DEED | | | | | $78,000.00 | 97761 | 3170-108374 |
Payout Agreement
| No payout information available.. |