Property
Account |
| Property ID: | 9676 | Abbreviated Legal Description: | BRYANTS LOT 18 BLK 3 |
| Parcel Number: | 360728530318 | Agent Code: | |
| Type: | Real | | |
| Tax Area: | 1 - OL-140-F | Land Use Code | 11 |
| Open Space: | N | DFL | N |
| Historic Property: | N | Remodel Property: | N |
| Multi-Family Redevelopment: | N | | |
| Township: | 7 | Section: | 28 |
| Range: | 36 |
Location |
| Address: | 533 JUNIPER ST WA 99362 | Mapsco: | |
| Neighborhood: | A Res | Map ID: | |
| Neighborhood CD: | 613011 |
Owner |
| Name: | PARRA BRENDA GARCIA & JOSE LARA DIAZ | Owner ID: | 66158 |
| Mailing Address: | 533 JUNIPER ST WALLA WALLA, WA 99362 | % Ownership: | 100.0000000000% |
| | | Exemptions: | |
Taxes and Assessment Details
Property Tax Information as of
04/19/2026
Click on "Statement Details" to expand or collapse a tax statement.
* Please enter a valid date ** Please enter a valid date *
Statement Details |
| | TOTAL: | $0.00 | $0.00 | $0.00 | $0.00 | $0.00 | $0.00 |
|
| | $0.00 | $0.00 | $0.00 | $0.00 | $0.00 | $0.00 |
Values
| (+) Improvement Homesite Value: | + | $0 | |
| (+) Improvement Non-Homesite Value: | + | $347,610 | |
| (+) Land Homesite Value: | + | $0 | |
| (+) Land Non-Homesite Value: | + | $70,000 | |
| (+) Curr Use (HS): | + | $0 | $0 |
| (+) Curr Use (NHS): | + | $0 | $0 |
| | | -------------------------- | |
| (=) Market Value: | = | $417,610 | |
| (–) Productivity Loss: | – | $0 | |
| | | -------------------------- | |
| (=) Subtotal: | = | $417,610 | |
| (+) Senior Appraised Value: | + | $0 | |
| (+) Non-Senior Appraised Value: | + | $417,610 | |
| | | -------------------------- | |
| (=) Total Appraised Value: | = | $417,610 | |
| (–) Senior Exemption Loss: | – | $0 | |
| (–) Exemption Loss: | – | $0 | |
| | | -------------------------- | |
| (=) Taxable Value: | = | $417,610 | |
Taxing Jurisdiction
| Owner: | PARRA BRENDA GARCIA & JOSE LARA DIAZ | | |
| % Ownership: | 100.0000000000% | | |
| Total Value: | $417,610 | | |
| Tax Area: | 1 - OL-140-F |
| CERFD | CURRENT EXPENSE REFUND 010 | 0.0000000000 | $417,610 | $417,610 | $0.00 | | |
| CURREXP | CURRENT EXPENSE 010 | 1.0175366760 | $417,610 | $417,610 | $424.93 | | |
| HUMNSERV | HUMAN SERVICES 119 | 0.0250000000 | $417,610 | $417,610 | $10.44 | | |
| SLDREL | SOLDIERS RELIEF 121 | 0.0155990005 | $417,610 | $417,610 | $6.51 | | |
| EMERGSER | EMS 147 | 0.3792580840 | $417,610 | $417,610 | $158.38 | | |
| EMSRFD | EMS REFUND 147 | 0.0000000000 | $417,610 | $417,610 | $0.00 | | |
| PORTRFD | PORT REFUND 640 | 0.0000000000 | $417,610 | $417,610 | $0.00 | | |
| PORTWWGEN | PORT OF WW 640 | 0.2460186015 | $417,610 | $417,610 | $102.74 | | |
| SD140BOND | SD #140 BOND 764 | 0.8342371393 | $417,610 | $417,610 | $348.39 | | |
| SD140GEN | SD #140 GENERAL 760 | 2.0646500647 | $417,610 | $417,610 | $862.22 | | |
| ST2 | STATE SCHOOL PART 2 600 | 0.8131451643 | $417,610 | $417,610 | $339.58 | | |
| STATESCHL | STATE SCHOOL 600 | 1.5158548041 | $417,610 | $417,610 | $633.04 | | |
| STREFUND | STATE REFUND LEVY 603 | 0.0000000000 | $417,610 | $417,610 | $0.00 | | |
| CWWBOND | C OF WW BOND 643 | 0.2760494372 | $417,610 | $417,610 | $115.28 | | |
| CWWGEN | CITY OF WW 631 | 1.6100204973 | $417,610 | $417,610 | $672.36 | | |
| CWWRFD | CITY OF WALLA WALLA REFUND 631 | 0.0000000000 | $417,610 | $417,610 | $0.00 | | |
| | Total Tax Rate: | 8.7973694689 | | | | | |
| | | | | Taxes w/Current Exemptions: | $3,673.87 | | |
| | | | | Taxes w/o Exemptions: | $3,673.87 | | |
Improvement / Building
| Improvement #1: | RESIDENTIAL | State Code: | 11 | 1919.0 sqft | Value: | $347,610 |
| Exterior Wall: | SIDING | Heating/Cooling: | WARM & COOLED AIR | | Number of Bathrooms: | 2.5 | Number of Bedrooms: | 3 | | Plumbing: | 11 | Roof Covering: | WOOD SHINGLE |
|
| | Type | Description | Class CD | Sub Class CD | Year Built | Area |
| | MA | Main Area | 4 | 35 | 1921 | 1919.0 |
| | UPFL | Upper Floor (included in main area) | 4 | 35 | 2018 | 540.0 |
| | SI1 | SITE IMPROVEMENT | 4 | 35 | 1921 | 4.0 |
| | WOD | Wood Deck | 4 | 35 | 2018 | 144.0 |
| | RCD | WOOD DECK W/ROOF, CEILED | 4 | 35 | 1921 | 126.0 |
| | UTST | Utility Storage Shed | 4 | 35 | 1921 | 252.0 |
Sketch
Property Image
Land
| 1 | RES 1 | Converted: Residential | 0.1377 | 6000.00 | 0.00 | 0.00 | 1.00 | $70,000 | $0 |
Roll Value History
| 2026 | N/A | N/A | N/A | N/A | N/A |
| 2025 | $356,370 | $66,000 | $0 | $422,370 | $422,370 |
| 2024 | $347,610 | $70,000 | $0 | $417,610 | $417,610 |
| 2023 | $347,610 | $70,000 | $0 | $417,610 | $417,610 |
| 2022 | $289,680 | $55,000 | $0 | $344,680 | $344,680 |
| 2021 | $289,680 | $55,000 | $0 | $344,680 | $344,680 |
| 2020 | $231,740 | $55,000 | $0 | $286,740 | $286,740 |
| 2019 | $231,740 | $55,000 | $0 | $286,740 | $286,740 |
| 2018 | $35,110 | $36,000 | $0 | $71,110 | $71,110 |
| 2017 | $31,920 | $36,000 | $0 | $67,920 | $67,920 |
| 2016 | $30,400 | $36,000 | $0 | $66,400 | $66,400 |
| 2015 | $30,400 | $36,000 | $0 | $66,400 | $66,400 |
| 2014 | $30,400 | $36,000 | $0 | $66,400 | $66,400 |
| 2013 | $30,400 | $36,000 | $0 | $66,400 | $66,400 |
| 2012 | $30,400 | $36,000 | $0 | $0 | $0 |
| 2011 | $27,200 | $36,000 | $0 | $0 | $0 |
| 2010 | $31,200 | $36,000 | $0 | $0 | $0 |
| 2009 | $66,300 | $36,000 | $0 | $0 | $0 |
| 2008 | $66,300 | $36,000 | $0 | $0 | $0 |
| 2007 | $61,500 | $18,000 | $0 | $0 | $0 |
Deed and Sales History
| 1 | 10/25/2019 | SWD | STATUTORY WARRANTY DEED | PONTI MARILYN K | PARRA BRENDA GARCIA & JOSE LARA DIAZ | | | $299,000.00 | 137960 | 2019-08663 |
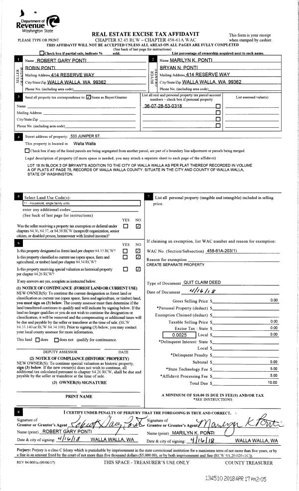
| 2 | 04/17/2018 | QCD | QUIT CLAIM DEED | PONTI ROBERT GARY | PONTI MARILYN K | | | | 134510 | 2018-03003 |
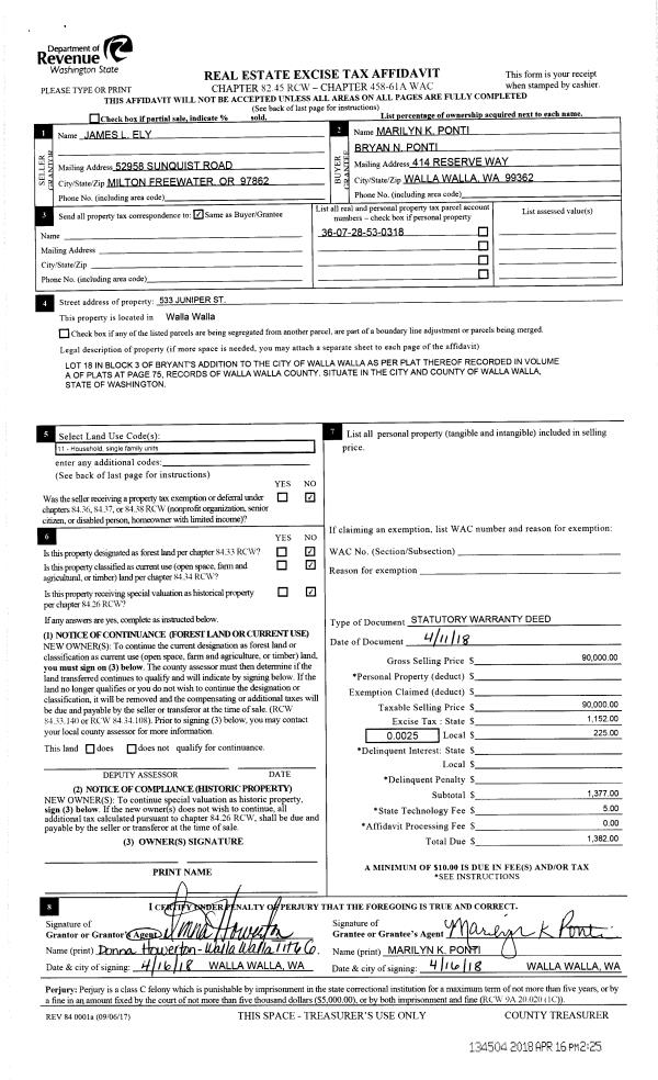
| 3 | 04/16/2018 | SWD | STATUTORY WARRANTY DEED | ELY JAMES L ESTATE OF | PONTI MARILYN K | | | $90,000.00 | 134504 | 2018-02935 |
| 4 | 02/01/1968 | WARRANTY D | WARRANTY DEED | | | | | $8,950.00 | 0 | 3250-492175 |
Payout Agreement
| No payout information available.. |