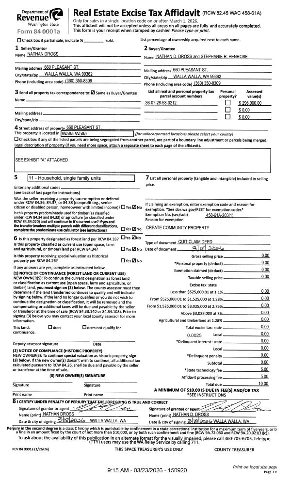
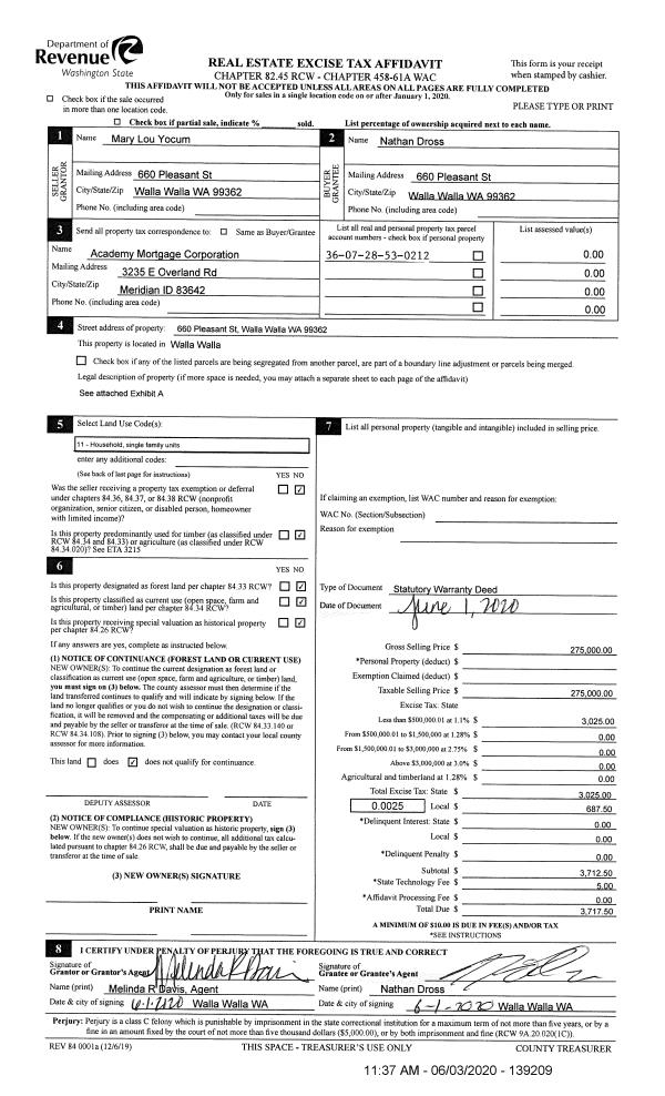
Property
Account |
| Property ID: | 9664 | Abbreviated Legal Description: | BRYANTS LOT 12 BLK 2 |
| Parcel Number: | 360728530212 | Agent Code: | |
| Type: | Real | | |
| Tax Area: | 1 - OL-140-F | Land Use Code | 11 |
| Open Space: | N | DFL | N |
| Historic Property: | N | Remodel Property: | N |
| Multi-Family Redevelopment: | N | | |
| Township: | 7 | Section: | 28 |
| Range: | 36 |
Location |
| Address: | 660 PLEASANT ST WA 99362 | Mapsco: | |
| Neighborhood: | A Res Multi Res | Map ID: | |
| Neighborhood CD: | 613081 |
Owner |
| Name: | DROSS NATHAN | Owner ID: | 67255 |
| Mailing Address: | 660 PLEASANT ST WALLA WALLA, WA 99362 | % Ownership: | 100.0000000000% |
| | | Exemptions: | |
Taxes and Assessment Details
Property Tax Information as of
02/21/2026
Click on "Statement Details" to expand or collapse a tax statement.
* Please enter a valid date ** Please enter a valid date *
Statement Details |
| | TOTAL: | $0.00 | $0.00 | $0.00 | $0.00 | $0.00 | $0.00 |
|
| | $0.00 | $0.00 | $0.00 | $0.00 | $0.00 | $0.00 |
Values
| (+) Improvement Homesite Value: | + | $0 | |
| (+) Improvement Non-Homesite Value: | + | $232,650 | |
| (+) Land Homesite Value: | + | $0 | |
| (+) Land Non-Homesite Value: | + | $70,000 | |
| (+) Curr Use (HS): | + | $0 | $0 |
| (+) Curr Use (NHS): | + | $0 | $0 |
| | | -------------------------- | |
| (=) Market Value: | = | $302,650 | |
| (–) Productivity Loss: | – | $0 | |
| | | -------------------------- | |
| (=) Subtotal: | = | $302,650 | |
| (+) Senior Appraised Value: | + | $0 | |
| (+) Non-Senior Appraised Value: | + | $302,650 | |
| | | -------------------------- | |
| (=) Total Appraised Value: | = | $302,650 | |
| (–) Senior Exemption Loss: | – | $0 | |
| (–) Exemption Loss: | – | $0 | |
| | | -------------------------- | |
| (=) Taxable Value: | = | $302,650 | |
Taxing Jurisdiction
| Owner: | DROSS NATHAN | | |
| % Ownership: | 100.0000000000% | | |
| Total Value: | $302,650 | | |
| Tax Area: | 1 - OL-140-F |
| CERFD | CURRENT EXPENSE REFUND 010 | 0.0000000000 | $302,650 | $302,650 | $0.00 | | |
| CURREXP | CURRENT EXPENSE 010 | 1.0175366760 | $302,650 | $302,650 | $307.96 | | |
| HUMNSERV | HUMAN SERVICES 119 | 0.0250000000 | $302,650 | $302,650 | $7.57 | | |
| SLDREL | SOLDIERS RELIEF 121 | 0.0155990005 | $302,650 | $302,650 | $4.72 | | |
| EMERGSER | EMS 147 | 0.3792580840 | $302,650 | $302,650 | $114.78 | | |
| EMSRFD | EMS REFUND 147 | 0.0000000000 | $302,650 | $302,650 | $0.00 | | |
| PORTRFD | PORT REFUND 640 | 0.0000000000 | $302,650 | $302,650 | $0.00 | | |
| PORTWWGEN | PORT OF WW 640 | 0.2460186015 | $302,650 | $302,650 | $74.46 | | |
| SD140BOND | SD #140 BOND 764 | 0.8342371393 | $302,650 | $302,650 | $252.48 | | |
| SD140GEN | SD #140 GENERAL 760 | 2.0646500647 | $302,650 | $302,650 | $624.87 | | |
| ST2 | STATE SCHOOL PART 2 600 | 0.8131451643 | $302,650 | $302,650 | $246.10 | | |
| STATESCHL | STATE SCHOOL 600 | 1.5158548041 | $302,650 | $302,650 | $458.77 | | |
| STREFUND | STATE REFUND LEVY 603 | 0.0000000000 | $302,650 | $302,650 | $0.00 | | |
| CWWBOND | C OF WW BOND 643 | 0.2760494372 | $302,650 | $302,650 | $83.55 | | |
| CWWGEN | CITY OF WW 631 | 1.6100204973 | $302,650 | $302,650 | $487.27 | | |
| CWWRFD | CITY OF WALLA WALLA REFUND 631 | 0.0000000000 | $302,650 | $302,650 | $0.00 | | |
| | Total Tax Rate: | 8.7973694689 | | | | | |
| | | | | Taxes w/Current Exemptions: | $2,662.53 | | |
| | | | | Taxes w/o Exemptions: | $2,662.53 | | |
Improvement / Building
| Improvement #1: | RESIDENTIAL | State Code: | 11 | 1342.0 sqft | Value: | $179,300 |
| Exterior Wall: | STUCCO | Foundation: | SLAB FOUNDATION | | Heating/Cooling: | WARM & COOLED AIR | Number of Bathrooms: | 1 | | Number of Bedrooms: | 2 | Plumbing: | 7 | | Roof Covering: | GALVANIZED METAL |   |   |
|
| | Type | Description | Class CD | Sub Class CD | Year Built | Area |
| | MA | Main Area | 1 | 30 | 1920 | 1342.0 |
| | SI1 | SITE IMPROVEMENT | 1 | 30 | 1920 | 1.5 |
| | BASE | BASEMENT | 1 | 30 | 1920 | 462.0 |
| | BPF | BASEMENT -PARTITIONED FINISH | 1 | 30 | 1920 | 462.0 |
| | RCD | WOOD DECK W/ROOF, CEILED | 1 | 30 | 1920 | 12.0 |
| | CPC | COVERED CARPORT/PATIO | 1 | 30 | 1920 | 200.0 |
| | CPCG | CARPORT/ GABLE ROOF | 1 | 30 | 2013 | 160.0 |
| Improvement #2: | RESIDENTIAL | State Code: | 11 | 900.0 sqft | Value: | $53,350 |
| Exterior Wall: | SIDING | Foundation: | SLAB FOUNDATION | | Heating/Cooling: | HEAT PUMP | Number of Bathrooms: | 1 | | Number of Bedrooms: | 1 | Plumbing: | 6 | | Roof Covering: | COMP SHINGLE |   |   |
|
| | Type | Description | Class CD | Sub Class CD | Year Built | Area |
| | MA | Main Area | 4 | 20 | 1920 | 900.0 |
| | UPFL | Upper Floor (included in main area) | 4 | 20 | 1920 | 300.0 |
| | SI1 | SITE IMPROVEMENT | 4 | 20 | 1920 | 1.0 |
Sketch
Property Image
Land
| 1 | RES 1 | Converted: Residential | 0.1377 | 6000.00 | 0.00 | 0.00 | 1.00 | $70,000 | $0 |
Roll Value History
| 2026 | N/A | N/A | N/A | N/A | N/A |
| 2025 | $230,000 | $66,000 | $0 | $296,000 | $296,000 |
| 2024 | $232,650 | $70,000 | $0 | $302,650 | $302,650 |
| 2023 | $232,650 | $70,000 | $0 | $302,650 | $302,650 |
| 2022 | $232,650 | $55,000 | $0 | $287,650 | $287,650 |
| 2021 | $221,570 | $55,000 | $0 | $276,570 | $276,570 |
| 2020 | $201,430 | $55,000 | $0 | $256,430 | $256,430 |
| 2019 | $201,430 | $55,000 | $0 | $256,430 | $256,430 |
| 2018 | $178,240 | $36,000 | $0 | $214,240 | $214,240 |
| 2017 | $162,040 | $36,000 | $0 | $198,040 | $198,040 |
| 2016 | $162,040 | $36,000 | $0 | $198,040 | $198,040 |
| 2015 | $140,900 | $36,000 | $0 | $176,900 | $176,900 |
| 2014 | $140,900 | $36,000 | $0 | $176,900 | $176,900 |
| 2013 | $140,900 | $36,000 | $0 | $176,900 | $176,900 |
| 2012 | $135,300 | $36,000 | $0 | $0 | $0 |
| 2011 | $135,300 | $36,000 | $0 | $0 | $0 |
| 2010 | $135,300 | $36,000 | $0 | $0 | $0 |
| 2009 | $135,300 | $36,000 | $0 | $0 | $0 |
| 2008 | $135,300 | $36,000 | $0 | $0 | $0 |
| 2007 | $50,800 | $18,000 | $0 | $0 | $0 |
Deed and Sales History
| 1 | 06/03/2020 | SWD | STATUTORY WARRANTY DEED | YOCUM MARY LOU | DROSS NATHAN | | | $275,000.00 | 139209 | 2020-04946 |
| 2 | 08/25/2004 | WARRANTY D | WARRANTY DEED | MEADE, JAMES D & SANDRA L | YOCUM, MARY LOU | | | $154,500.00 | 105570 | 2004-09814 |
| 3 | 12/15/2000 | WARRANTY D | WARRANTY DEED | | | | | $49,000.00 | 96318 | 3060-011855 |
Payout Agreement
| No payout information available.. |