Property
Account |
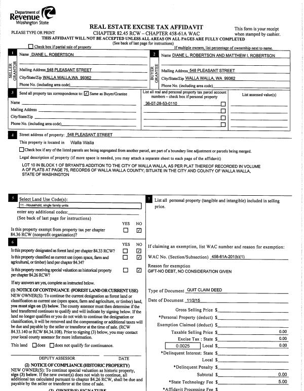
| Property ID: | 9650 | Abbreviated Legal Description: | BRYANTS LOT 10 BLK 1 |
| Parcel Number: | 360728530110 | Agent Code: | |
| Type: | Real | | |
| Tax Area: | 1 - OL-140-F | Land Use Code | 11 |
| Open Space: | N | DFL | N |
| Historic Property: | N | Remodel Property: | N |
| Multi-Family Redevelopment: | N | | |
| Township: | 7 | Section: | 28 |
| Range: | 36 |
Location |
| Address: | 548 PLEASANT ST WA 99362 | Mapsco: | |
| Neighborhood: | A Res | Map ID: | |
| Neighborhood CD: | 613011 |
Owner |
| Name: | ROBERTSON DIANE L | Owner ID: | 57757 |
| Mailing Address: | MATTHEW I ROBERTSON 548 PLEASANT ST WALLA WALLA, WA 99362 | % Ownership: | 100.0000000000% |
| | | Exemptions: | |
Taxes and Assessment Details
Property Tax Information as of
02/21/2026
Click on "Statement Details" to expand or collapse a tax statement.
* Please enter a valid date ** Please enter a valid date *
Statement Details |
| | TOTAL: | $0.00 | $0.00 | $0.00 | $0.00 | $0.00 | $0.00 |
|
| | $0.00 | $0.00 | $0.00 | $0.00 | $0.00 | $0.00 |
Values
| (+) Improvement Homesite Value: | + | $0 | |
| (+) Improvement Non-Homesite Value: | + | $283,290 | |
| (+) Land Homesite Value: | + | $0 | |
| (+) Land Non-Homesite Value: | + | $70,000 | |
| (+) Curr Use (HS): | + | $0 | $0 |
| (+) Curr Use (NHS): | + | $0 | $0 |
| | | -------------------------- | |
| (=) Market Value: | = | $353,290 | |
| (–) Productivity Loss: | – | $0 | |
| | | -------------------------- | |
| (=) Subtotal: | = | $353,290 | |
| (+) Senior Appraised Value: | + | $0 | |
| (+) Non-Senior Appraised Value: | + | $353,290 | |
| | | -------------------------- | |
| (=) Total Appraised Value: | = | $353,290 | |
| (–) Senior Exemption Loss: | – | $0 | |
| (–) Exemption Loss: | – | $0 | |
| | | -------------------------- | |
| (=) Taxable Value: | = | $353,290 | |
Taxing Jurisdiction
| Owner: | ROBERTSON DIANE L | | |
| % Ownership: | 100.0000000000% | | |
| Total Value: | $353,290 | | |
| Tax Area: | 1 - OL-140-F |
| CERFD | CURRENT EXPENSE REFUND 010 | 0.0000000000 | $353,290 | $353,290 | $0.00 | | |
| CURREXP | CURRENT EXPENSE 010 | 1.0175366760 | $353,290 | $353,290 | $359.49 | | |
| HUMNSERV | HUMAN SERVICES 119 | 0.0250000000 | $353,290 | $353,290 | $8.83 | | |
| SLDREL | SOLDIERS RELIEF 121 | 0.0155990005 | $353,290 | $353,290 | $5.51 | | |
| EMERGSER | EMS 147 | 0.3792580840 | $353,290 | $353,290 | $133.99 | | |
| EMSRFD | EMS REFUND 147 | 0.0000000000 | $353,290 | $353,290 | $0.00 | | |
| PORTRFD | PORT REFUND 640 | 0.0000000000 | $353,290 | $353,290 | $0.00 | | |
| PORTWWGEN | PORT OF WW 640 | 0.2460186015 | $353,290 | $353,290 | $86.92 | | |
| SD140BOND | SD #140 BOND 764 | 0.8342371393 | $353,290 | $353,290 | $294.73 | | |
| SD140GEN | SD #140 GENERAL 760 | 2.0646500647 | $353,290 | $353,290 | $729.42 | | |
| ST2 | STATE SCHOOL PART 2 600 | 0.8131451643 | $353,290 | $353,290 | $287.28 | | |
| STATESCHL | STATE SCHOOL 600 | 1.5158548041 | $353,290 | $353,290 | $535.54 | | |
| STREFUND | STATE REFUND LEVY 603 | 0.0000000000 | $353,290 | $353,290 | $0.00 | | |
| CWWBOND | C OF WW BOND 643 | 0.2760494372 | $353,290 | $353,290 | $97.53 | | |
| CWWGEN | CITY OF WW 631 | 1.6100204973 | $353,290 | $353,290 | $568.80 | | |
| CWWRFD | CITY OF WALLA WALLA REFUND 631 | 0.0000000000 | $353,290 | $353,290 | $0.00 | | |
| | Total Tax Rate: | 8.7973694689 | | | | | |
| | | | | Taxes w/Current Exemptions: | $3,108.04 | | |
| | | | | Taxes w/o Exemptions: | $3,108.04 | | |
Improvement / Building
| Improvement #1: | RESIDENTIAL | State Code: | 11 | 956.0 sqft | Value: | $283,290 |
| Exterior Wall: | STUCCO | Heating/Cooling: | FORCED AIR | | Number of Bathrooms: | 1 | Number of Bedrooms: | 2 | | Plumbing: | 7 | Roof Covering: | COMP SHINGLE |
|
| | Type | Description | Class CD | Sub Class CD | Year Built | Area |
| | MA | Main Area | 1 | 30 | 1943 | 956.0 |
| | SI1 | SITE IMPROVEMENT | 1 | 30 | 1943 | 1.0 |
| | BASE | BASEMENT | 1 | 30 | 1943 | 683.0 |
| | BPF | BASEMENT -PARTITIONED FINISH | 1 | 30 | 1943 | 500.0 |
| | RPS | PORCH W/STEPS,ROOF | 1 | 30 | 1943 | 48.0 |
| | STG1 | Sub Terrain Garage Single | 1 | 30 | 1943 | 1.0 |
Sketch
Property Image
Land
| 1 | RES 1 | Converted: Residential | 0.1377 | 6000.00 | 0.00 | 0.00 | 1.00 | $70,000 | $0 |
Roll Value History
| 2026 | N/A | N/A | N/A | N/A | N/A |
| 2025 | $287,090 | $66,000 | $0 | $353,090 | $353,090 |
| 2024 | $283,290 | $70,000 | $0 | $353,290 | $353,290 |
| 2023 | $283,290 | $70,000 | $0 | $353,290 | $353,290 |
| 2022 | $236,070 | $55,000 | $0 | $291,070 | $291,070 |
| 2021 | $168,620 | $55,000 | $0 | $223,620 | $223,620 |
| 2020 | $129,710 | $55,000 | $0 | $184,710 | $184,710 |
| 2019 | $129,710 | $55,000 | $0 | $184,710 | $184,710 |
| 2018 | $143,360 | $36,000 | $0 | $179,360 | $179,360 |
| 2017 | $125,750 | $36,000 | $0 | $161,750 | $161,750 |
| 2016 | $100,600 | $36,000 | $0 | $136,600 | $136,600 |
| 2015 | $100,600 | $36,000 | $0 | $136,600 | $136,600 |
| 2014 | $100,600 | $36,000 | $0 | $136,600 | $136,600 |
| 2013 | $100,600 | $36,000 | $0 | $136,600 | $136,600 |
| 2012 | $100,600 | $36,000 | $0 | $0 | $0 |
| 2011 | $100,600 | $36,000 | $0 | $0 | $0 |
| 2010 | $94,100 | $36,000 | $0 | $0 | $0 |
| 2009 | $108,500 | $36,000 | $0 | $0 | $0 |
| 2008 | $108,500 | $36,000 | $0 | $0 | $0 |
| 2007 | $62,600 | $18,000 | $0 | $0 | $0 |
Deed and Sales History
| 1 | 06/13/2024 | DPR | DEED OF PERSONAL REPRESENTATIVE | ROBERTSON DIANE L | ROBERTSON DIANE L | | | | 147701 | 2024-03128 |
| 2 | 11/02/2015 | QCD | QUIT CLAIM DEED | ROBERTSON DIANE L | ROBERTSON DIANE L | | | | 129127 | 2015-09603 |
| 3 | 05/09/1989 | WARRANTY D | WARRANTY DEED | | | | | $37,000.00 | 0 | 1768-902801 |
Payout Agreement
| No payout information available.. |