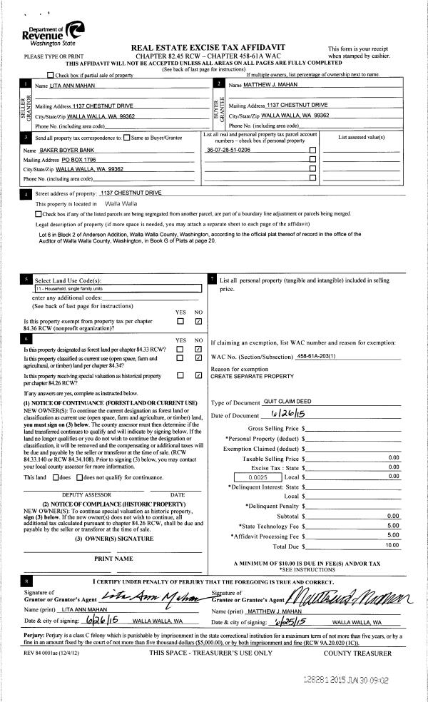
Property
Account |
| Property ID: | 9629 | Abbreviated Legal Description: | ANDERSON LOT 6 BLK 2 |
| Parcel Number: | 360728510206 | Agent Code: | |
| Type: | Real | | |
| Tax Area: | 105 - 140-F-4 | Land Use Code | 11 |
| Open Space: | N | DFL | N |
| Historic Property: | N | Remodel Property: | N |
| Multi-Family Redevelopment: | N | | |
| Township: | 7 | Section: | 28 |
| Range: | 36 |
Location |
| Address: | 1137 CHESTNUT DR WA 99362 | Mapsco: | |
| Neighborhood: | G Res | Map ID: | |
| Neighborhood CD: | 614011 |
Owner |
| Name: | MAHAN MATTHEW J | Owner ID: | 56868 |
| Mailing Address: | 1137 CHESTNUT DR WALLA WALLA, WA 99362 | % Ownership: | 100.0000000000% |
| | | Exemptions: | |
Taxes and Assessment Details
Values
| (+) Improvement Homesite Value: | + | $0 | |
| (+) Improvement Non-Homesite Value: | + | $288,780 | |
| (+) Land Homesite Value: | + | $0 | |
| (+) Land Non-Homesite Value: | + | $121,820 | |
| (+) Curr Use (HS): | + | $0 | $0 |
| (+) Curr Use (NHS): | + | $0 | $0 |
| | | -------------------------- | |
| (=) Market Value: | = | $410,600 | |
| (–) Productivity Loss: | – | $0 | |
| | | -------------------------- | |
| (=) Subtotal: | = | $410,600 | |
| (+) Senior Appraised Value: | + | $0 | |
| (+) Non-Senior Appraised Value: | + | $410,600 | |
| | | -------------------------- | |
| (=) Total Appraised Value: | = | $410,600 | |
| (–) Senior Exemption Loss: | – | $0 | |
| (–) Exemption Loss: | – | $0 | |
| | | -------------------------- | |
| (=) Taxable Value: | = | $410,600 | |
Taxing Jurisdiction
| Owner: | MAHAN MATTHEW J | | |
| % Ownership: | 100.0000000000% | | |
| Total Value: | $410,600 | | |
| Tax Area: | 105 - 140-F-4 |
| CERFD | CURRENT EXPENSE REFUND 010 | 0.0000000000 | $410,600 | $410,600 | $0.00 | | |
| CURREXP | CURRENT EXPENSE 010 | 1.0175366760 | $410,600 | $410,600 | $417.80 | | |
| HUMNSERV | HUMAN SERVICES 119 | 0.0250000000 | $410,600 | $410,600 | $10.27 | | |
| SLDREL | SOLDIERS RELIEF 121 | 0.0155990005 | $410,600 | $410,600 | $6.40 | | |
| EMERGSER | EMS 147 | 0.3792580840 | $410,600 | $410,600 | $155.72 | | |
| EMSRFD | EMS REFUND 147 | 0.0000000000 | $410,600 | $410,600 | $0.00 | | |
| FD4EXP | FD #4 EXPENSE 686 | 0.8836993059 | $410,600 | $410,600 | $362.85 | | |
| RLBRFD | RURAL LIBRARY REFUND 623 | 0.0000000000 | $410,600 | $410,600 | $0.00 | | |
| RURALLIB | RURAL LIBRARY 623 | 0.3710609029 | $410,600 | $410,600 | $152.36 | | |
| PORTRFD | PORT REFUND 640 | 0.0000000000 | $410,600 | $410,600 | $0.00 | | |
| PORTWWGEN | PORT OF WW 640 | 0.2460186015 | $410,600 | $410,600 | $101.02 | | |
| SD140BOND | SD #140 BOND 764 | 0.8342371393 | $410,600 | $410,600 | $342.54 | | |
| SD140GEN | SD #140 GENERAL 760 | 2.0646500647 | $410,600 | $410,600 | $847.75 | | |
| ST2 | STATE SCHOOL PART 2 600 | 0.8131451643 | $410,600 | $410,600 | $333.88 | | |
| STATESCHL | STATE SCHOOL 600 | 1.5158548041 | $410,600 | $410,600 | $622.41 | | |
| STREFUND | STATE REFUND LEVY 603 | 0.0000000000 | $410,600 | $410,600 | $0.00 | | |
| COROAD | COUNTY ROAD 115 | 1.6549953990 | $410,600 | $410,600 | $679.54 | | |
| CRPRD | COUNTY ROAD REFUND 115 | 0.0000000000 | $410,600 | $410,600 | $0.00 | | |
| | Total Tax Rate: | 9.8210551422 | | | | | |
| | | | | Taxes w/Current Exemptions: | $4,032.54 | | |
| | | | | Taxes w/o Exemptions: | $4,032.54 | | |
Improvement / Building
| Improvement #1: | RESIDENTIAL | State Code: | 11 | 1684.0 sqft | Value: | $288,780 |
| Exterior Wall: | SIDING | Heating/Cooling: | WARM & COOLED AIR | | Number of Bathrooms: | 2 | Number of Bedrooms: | 3 | | Plumbing: | 9 | Roof Covering: | COMP SHINGLE |
|
| | Type | Description | Class CD | Sub Class CD | Year Built | Area |
| | MA | Main Area | 1 | 30 | 1964 | 1684.0 |
| | SI1 | SITE IMPROVEMENT | 1 | 30 | 1964 | 2.0 |
| | S1F | Single One Story Fireplace | 1 | 30 | 1964 | 1.0 |
| | RPC | OPEN PORCH W/ROOF , CEILED | 1 | 30 | 1964 | 48.0 |
| | WOD | Wood Deck | 1 | 30 | 1964 | 546.0 |
| | ATG | Attached Garage | 1 | 30 | 1964 | 440.0 |
Sketch
Property Image
Land
| 1 | RES 1 | Converted: Residential | 0.3189 | 13890.00 | 0.00 | 0.00 | 1.00 | $121,820 | $0 |
Roll Value History
| 2026 | N/A | N/A | N/A | N/A | N/A |
| 2025 | $281,250 | $145,570 | $0 | $426,820 | $426,820 |
| 2024 | $288,780 | $121,820 | $0 | $410,600 | $410,600 |
| 2023 | $288,780 | $121,820 | $0 | $410,600 | $410,600 |
| 2022 | $262,530 | $100,290 | $0 | $362,820 | $362,820 |
| 2021 | $194,470 | $100,290 | $0 | $294,760 | $294,760 |
| 2020 | $169,100 | $100,290 | $0 | $269,390 | $269,390 |
| 2019 | $169,100 | $100,290 | $0 | $269,390 | $269,390 |
| 2018 | $165,190 | $50,400 | $0 | $215,590 | $215,590 |
| 2017 | $143,640 | $50,400 | $0 | $194,040 | $194,040 |
| 2016 | $136,800 | $50,400 | $0 | $187,200 | $187,200 |
| 2015 | $136,800 | $50,400 | $0 | $187,200 | $187,200 |
| 2014 | $136,800 | $50,400 | $0 | $187,200 | $187,200 |
| 2013 | $136,800 | $50,400 | $0 | $187,200 | $187,200 |
| 2012 | $117,500 | $50,400 | $0 | $0 | $0 |
| 2011 | $117,500 | $50,400 | $0 | $0 | $0 |
| 2010 | $102,200 | $50,400 | $0 | $0 | $0 |
| 2009 | $119,200 | $50,400 | $0 | $0 | $0 |
| 2008 | $119,200 | $50,400 | $0 | $0 | $0 |
| 2007 | $91,700 | $27,900 | $0 | $0 | $0 |
Deed and Sales History
| 1 | 06/26/2015 | QCD | QUIT CLAIM DEED | MAHAN MATTHEW J & LITA A | MAHAN MATTHEW J | | | | 128281 | 2015-05541 |
| 2 | 02/25/2000 | WARRANTY D | WARRANTY DEED | | | | | $116,000.00 | 94589 | 2950-001852 |
Payout Agreement
| No payout information available.. |