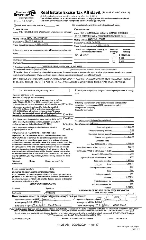
Property
Account |
| Property ID: | 9627 | Abbreviated Legal Description: | ANDERSON LOT 4 BLK 2 |
| Parcel Number: | 360728510204 | Agent Code: | |
| Type: | Real | | |
| Tax Area: | 105 - 140-F-4 | Land Use Code | 11 |
| Open Space: | N | DFL | N |
| Historic Property: | N | Remodel Property: | N |
| Multi-Family Redevelopment: | N | | |
| Township: | 7 | Section: | 28 |
| Range: | 36 |
Location |
| Address: | 1117 CHESTNUT DR WA 99362 | Mapsco: | |
| Neighborhood: | G Res | Map ID: | |
| Neighborhood CD: | 614011 |
Owner |
| Name: | WBG HOLDINGS | Owner ID: | 69020 |
| Mailing Address: | 3407 41ST AVE SW SEATTLE, WA 98116 | % Ownership: | 100.0000000000% |
| | | Exemptions: | |
Taxes and Assessment Details
Property Tax Information as of
02/21/2026
Click on "Statement Details" to expand or collapse a tax statement.
* Please enter a valid date ** Please enter a valid date *
Statement Details |
| | TOTAL: | $0.00 | $0.00 | $0.00 | $0.00 | $0.00 | $0.00 |
|
| | $0.00 | $0.00 | $0.00 | $0.00 | $0.00 | $0.00 |
Values
| (+) Improvement Homesite Value: | + | $0 | |
| (+) Improvement Non-Homesite Value: | + | $312,280 | |
| (+) Land Homesite Value: | + | $0 | |
| (+) Land Non-Homesite Value: | + | $120,000 | |
| (+) Curr Use (HS): | + | $0 | $0 |
| (+) Curr Use (NHS): | + | $0 | $0 |
| | | -------------------------- | |
| (=) Market Value: | = | $432,280 | |
| (–) Productivity Loss: | – | $0 | |
| | | -------------------------- | |
| (=) Subtotal: | = | $432,280 | |
| (+) Senior Appraised Value: | + | $0 | |
| (+) Non-Senior Appraised Value: | + | $432,280 | |
| | | -------------------------- | |
| (=) Total Appraised Value: | = | $432,280 | |
| (–) Senior Exemption Loss: | – | $0 | |
| (–) Exemption Loss: | – | $0 | |
| | | -------------------------- | |
| (=) Taxable Value: | = | $432,280 | |
Taxing Jurisdiction
| Owner: | WBG HOLDINGS | | |
| % Ownership: | 100.0000000000% | | |
| Total Value: | $432,280 | | |
| Tax Area: | 105 - 140-F-4 |
| CERFD | CURRENT EXPENSE REFUND 010 | 0.0000000000 | $432,280 | $432,280 | $0.00 | | |
| CURREXP | CURRENT EXPENSE 010 | 1.0175366760 | $432,280 | $432,280 | $439.86 | | |
| HUMNSERV | HUMAN SERVICES 119 | 0.0250000000 | $432,280 | $432,280 | $10.81 | | |
| SLDREL | SOLDIERS RELIEF 121 | 0.0155990005 | $432,280 | $432,280 | $6.74 | | |
| EMERGSER | EMS 147 | 0.3792580840 | $432,280 | $432,280 | $163.95 | | |
| EMSRFD | EMS REFUND 147 | 0.0000000000 | $432,280 | $432,280 | $0.00 | | |
| FD4EXP | FD #4 EXPENSE 686 | 0.8836993059 | $432,280 | $432,280 | $382.01 | | |
| RLBRFD | RURAL LIBRARY REFUND 623 | 0.0000000000 | $432,280 | $432,280 | $0.00 | | |
| RURALLIB | RURAL LIBRARY 623 | 0.3710609029 | $432,280 | $432,280 | $160.40 | | |
| PORTRFD | PORT REFUND 640 | 0.0000000000 | $432,280 | $432,280 | $0.00 | | |
| PORTWWGEN | PORT OF WW 640 | 0.2460186015 | $432,280 | $432,280 | $106.35 | | |
| SD140BOND | SD #140 BOND 764 | 0.8342371393 | $432,280 | $432,280 | $360.62 | | |
| SD140GEN | SD #140 GENERAL 760 | 2.0646500647 | $432,280 | $432,280 | $892.51 | | |
| ST2 | STATE SCHOOL PART 2 600 | 0.8131451643 | $432,280 | $432,280 | $351.51 | | |
| STATESCHL | STATE SCHOOL 600 | 1.5158548041 | $432,280 | $432,280 | $655.27 | | |
| STREFUND | STATE REFUND LEVY 603 | 0.0000000000 | $432,280 | $432,280 | $0.00 | | |
| COROAD | COUNTY ROAD 115 | 1.6549953990 | $432,280 | $432,280 | $715.42 | | |
| CRPRD | COUNTY ROAD REFUND 115 | 0.0000000000 | $432,280 | $432,280 | $0.00 | | |
| | Total Tax Rate: | 9.8210551422 | | | | | |
| | | | | Taxes w/Current Exemptions: | $4,245.45 | | |
| | | | | Taxes w/o Exemptions: | $4,245.45 | | |
Improvement / Building
| Improvement #1: | RESIDENTIAL | State Code: | 11 | 1858.0 sqft | Value: | $312,280 |
| Exterior Wall: | SIDING | Heating/Cooling: | WARM & COOLED AIR | | Number of Bathrooms: | 2.5 | Number of Bedrooms: | 3 | | Plumbing: | 11 | Roof Covering: | COMP SHINGLE |
|
| | Type | Description | Class CD | Sub Class CD | Year Built | Area |
| | MA | Main Area | 1 | 35 | 1964 | 1858.0 |
| | SI1 | SITE IMPROVEMENT | 1 | 35 | 1964 | 2.0 |
| | S1F | Single One Story Fireplace | 1 | 35 | 1964 | 1.0 |
| | RPC | OPEN PORCH W/ROOF , CEILED | 1 | 35 | 1964 | 100.0 |
| | WOD | Wood Deck | 1 | 35 | 1964 | 532.0 |
| | ATG | Attached Garage | 1 | 35 | 1964 | 400.0 |
| | TOOL | TOOL SHED | 1 | 35 | 1964 | 64.0 |
Sketch
Property Image
Land
| 1 | RES 1 | Converted: Residential | 0.2755 | 12000.00 | 0.00 | 0.00 | 1.00 | $120,000 | $0 |
Roll Value History
| 2026 | N/A | N/A | N/A | N/A | N/A |
| 2025 | $352,390 | $144,000 | $0 | $496,390 | $496,390 |
| 2024 | $312,280 | $120,000 | $0 | $432,280 | $432,280 |
| 2023 | $312,280 | $120,000 | $0 | $432,280 | $432,280 |
| 2022 | $312,280 | $99,000 | $0 | $411,280 | $411,280 |
| 2021 | $283,890 | $99,000 | $0 | $382,890 | $382,890 |
| 2020 | $189,260 | $99,000 | $0 | $288,260 | $288,260 |
| 2019 | $189,260 | $99,000 | $0 | $288,260 | $288,260 |
| 2018 | $191,490 | $48,800 | $0 | $240,290 | $240,290 |
| 2017 | $166,510 | $48,800 | $0 | $215,310 | $215,310 |
| 2016 | $144,800 | $48,800 | $0 | $193,600 | $193,600 |
| 2015 | $137,900 | $48,800 | $0 | $186,700 | $186,700 |
| 2014 | $137,900 | $48,800 | $0 | $186,700 | $186,700 |
| 2013 | $137,900 | $48,800 | $0 | $186,700 | $186,700 |
| 2012 | $137,900 | $48,800 | $0 | $0 | $0 |
| 2011 | $129,000 | $48,800 | $0 | $0 | $0 |
| 2010 | $112,800 | $48,800 | $0 | $0 | $0 |
| 2009 | $130,700 | $48,800 | $0 | $0 | $0 |
| 2008 | $130,700 | $48,800 | $0 | $0 | $0 |
| 2007 | $109,500 | $26,300 | $0 | $0 | $0 |
Deed and Sales History
| 1 | 09/06/2024 | SWD | STATUTORY WARRANTY DEED | WBG HOLDINGS | DEMATEI FAMILY TRUST | | | $537,500.00 | 148147 | 2024-05057 |
| 2 | 03/12/2021 | QCD | QUIT CLAIM DEED | TURCOTTE JOSEPH A & ANITA S LAVINE | WBG HOLDINGS | | | $0.00 | 141103 | 2021-02923 |
| 3 | 01/13/2021 | SWD | STATUTORY WARRANTY DEED | GREGOIRE NORRIS SCOTT & LUCILLE MARIE | TURCOTTE JOSEPH A & ANITA S LAVINE | | | $420,000.00 | 140723 | 2021-00508 |
| 4 | 02/03/2016 | SWD | STATUTORY WARRANTY DEED | SPINKS MARK R | GREGOIRE NORRIS SCOTT & LUCILLE MARIE | | | $246,000.00 | 129622 | 2016-00868 |
| 5 | 08/12/2010 | WARRANTY D | WARRANTY DEED | MEDLAR, DEBORAH L | SPINKS, MARK R | | | $200,000.00 | 118861 | 2010-06238 |
| 6 | 07/12/2010 | QCD | QUIT CLAIM DEED | MEDLAR, WILLIAM P | MEDLAR, DEBORAH L | | | | 118741 | 2010-05333 |
| 7 | 07/07/2005 | QCD | QUIT CLAIM DEED | MEDLAR, WILLIAM P | MEDLAR, WILLIAM P JR LIFE ESTA | | | | 107902 | 2005-08255 |
| 8 | 04/01/1965 | WARRANTY D | WARRANTY DEED | | | | | $20,000.00 | 0 | 3130-465932 |
Payout Agreement
| No payout information available.. |