Property
Account |
| Property ID: | 9625 | Abbreviated Legal Description: | ANDERSON E 75' OF LOT 6 BLK 1 |
| Parcel Number: | 360728510106 | Agent Code: | |
| Type: | Real | | |
| Tax Area: | 105 - 140-F-4 | Land Use Code | 11 |
| Open Space: | N | DFL | N |
| Historic Property: | N | Remodel Property: | N |
| Multi-Family Redevelopment: | N | | |
| Township: | 7 | Section: | 28 |
| Range: | 36 |
Location |
| Address: | 1105 BRYANT AVE WA 99362 | Mapsco: | |
| Neighborhood: | G Res | Map ID: | |
| Neighborhood CD: | 614011 |
Owner |
| Name: | CAMPBELL GEORGIA N | Owner ID: | 71681 |
| Mailing Address: | 1105 BRYANT AVE WALLA WALLA, WA 99362 | % Ownership: | 100.0000000000% |
| | | Exemptions: | |
Taxes and Assessment Details
Property Tax Information as of
02/21/2026
Click on "Statement Details" to expand or collapse a tax statement.
* Please enter a valid date ** Please enter a valid date *
Statement Details |
| | TOTAL: | $0.00 | $0.00 | $0.00 | $0.00 | $0.00 | $0.00 |
|
| | $0.00 | $0.00 | $0.00 | $0.00 | $0.00 | $0.00 |
Values
| (+) Improvement Homesite Value: | + | $0 | |
| (+) Improvement Non-Homesite Value: | + | $313,670 | |
| (+) Land Homesite Value: | + | $0 | |
| (+) Land Non-Homesite Value: | + | $93,750 | |
| (+) Curr Use (HS): | + | $0 | $0 |
| (+) Curr Use (NHS): | + | $0 | $0 |
| | | -------------------------- | |
| (=) Market Value: | = | $407,420 | |
| (–) Productivity Loss: | – | $0 | |
| | | -------------------------- | |
| (=) Subtotal: | = | $407,420 | |
| (+) Senior Appraised Value: | + | $0 | |
| (+) Non-Senior Appraised Value: | + | $407,420 | |
| | | -------------------------- | |
| (=) Total Appraised Value: | = | $407,420 | |
| (–) Senior Exemption Loss: | – | $0 | |
| (–) Exemption Loss: | – | $0 | |
| | | -------------------------- | |
| (=) Taxable Value: | = | $407,420 | |
Taxing Jurisdiction
| Owner: | CAMPBELL GEORGIA N | | |
| % Ownership: | 100.0000000000% | | |
| Total Value: | $407,420 | | |
| Tax Area: | 105 - 140-F-4 |
| CERFD | CURRENT EXPENSE REFUND 010 | 0.0000000000 | $407,420 | $407,420 | $0.00 | | |
| CURREXP | CURRENT EXPENSE 010 | 1.0175366760 | $407,420 | $407,420 | $414.56 | | |
| HUMNSERV | HUMAN SERVICES 119 | 0.0250000000 | $407,420 | $407,420 | $10.19 | | |
| SLDREL | SOLDIERS RELIEF 121 | 0.0155990005 | $407,420 | $407,420 | $6.36 | | |
| EMERGSER | EMS 147 | 0.3792580840 | $407,420 | $407,420 | $154.52 | | |
| EMSRFD | EMS REFUND 147 | 0.0000000000 | $407,420 | $407,420 | $0.00 | | |
| FD4EXP | FD #4 EXPENSE 686 | 0.8836993059 | $407,420 | $407,420 | $360.04 | | |
| RLBRFD | RURAL LIBRARY REFUND 623 | 0.0000000000 | $407,420 | $407,420 | $0.00 | | |
| RURALLIB | RURAL LIBRARY 623 | 0.3710609029 | $407,420 | $407,420 | $151.18 | | |
| PORTRFD | PORT REFUND 640 | 0.0000000000 | $407,420 | $407,420 | $0.00 | | |
| PORTWWGEN | PORT OF WW 640 | 0.2460186015 | $407,420 | $407,420 | $100.23 | | |
| SD140BOND | SD #140 BOND 764 | 0.8342371393 | $407,420 | $407,420 | $339.88 | | |
| SD140GEN | SD #140 GENERAL 760 | 2.0646500647 | $407,420 | $407,420 | $841.18 | | |
| ST2 | STATE SCHOOL PART 2 600 | 0.8131451643 | $407,420 | $407,420 | $331.29 | | |
| STATESCHL | STATE SCHOOL 600 | 1.5158548041 | $407,420 | $407,420 | $617.59 | | |
| STREFUND | STATE REFUND LEVY 603 | 0.0000000000 | $407,420 | $407,420 | $0.00 | | |
| COROAD | COUNTY ROAD 115 | 1.6549953990 | $407,420 | $407,420 | $674.28 | | |
| CRPRD | COUNTY ROAD REFUND 115 | 0.0000000000 | $407,420 | $407,420 | $0.00 | | |
| | Total Tax Rate: | 9.8210551422 | | | | | |
| | | | | Taxes w/Current Exemptions: | $4,001.30 | | |
| | | | | Taxes w/o Exemptions: | $4,001.30 | | |
Improvement / Building
| Improvement #1: | RESIDENTIAL | State Code: | 11 | 1450.0 sqft | Value: | $313,670 |
| Exterior Wall: | SIDING | Heating/Cooling: | WARM & COOLED AIR | | Number of Bathrooms: | 2 | Number of Bedrooms: | 3 | | Plumbing: | 9 | Roof Covering: | COMP SHINGLE |
|
| | Type | Description | Class CD | Sub Class CD | Year Built | Area |
| | MA | Main Area | 1 | 30 | 1968 | 1450.0 |
| | SI1 | SITE IMPROVEMENT | 1 | 30 | 1968 | 1.5 |
| | RPC | OPEN PORCH W/ROOF , CEILED | 1 | 30 | 1968 | 24.0 |
| | WDR | WOOD DECK W/ROOF | 1 | 30 | 1968 | 273.0 |
| | TOOL | TOOL SHED | 1 | 30 | 1968 | 160.0 |
| | ATG | Attached Garage | 1 | 30 | 1968 | 528.0 |
Sketch
Property Image
Land
| 1 | RES 1 | Converted: Residential | 0.2152 | 9375.00 | 0.00 | 0.00 | 1.00 | $93,750 | $0 |
Roll Value History
| 2026 | N/A | N/A | N/A | N/A | N/A |
| 2025 | $265,340 | $112,500 | $0 | $377,840 | $377,840 |
| 2024 | $329,360 | $93,750 | $0 | $423,110 | $423,110 |
| 2023 | $313,670 | $93,750 | $0 | $407,420 | $407,420 |
| 2022 | $285,160 | $77,340 | $0 | $362,500 | $362,500 |
| 2021 | $167,740 | $77,340 | $0 | $245,080 | $245,080 |
| 2020 | $129,030 | $77,340 | $0 | $206,370 | $206,370 |
| 2019 | $129,030 | $77,340 | $0 | $206,370 | $206,370 |
| 2018 | $145,440 | $46,600 | $0 | $192,040 | $192,040 |
| 2017 | $126,470 | $46,600 | $0 | $173,070 | $173,070 |
| 2016 | $114,980 | $46,600 | $0 | $161,580 | $161,580 |
| 2015 | $109,500 | $46,600 | $0 | $156,100 | $156,100 |
| 2014 | $109,500 | $46,600 | $0 | $156,100 | $156,100 |
| 2013 | $109,500 | $46,600 | $0 | $156,100 | $156,100 |
| 2012 | $107,100 | $46,600 | $0 | $0 | $0 |
| 2011 | $107,100 | $46,600 | $0 | $0 | $0 |
| 2010 | $94,400 | $46,600 | $0 | $0 | $0 |
| 2009 | $110,100 | $46,600 | $0 | $0 | $0 |
| 2008 | $110,100 | $46,600 | $0 | $0 | $0 |
| 2007 | $92,500 | $24,100 | $0 | $0 | $0 |
Deed and Sales History
| 1 | 10/24/2024 | SWD | STATUTORY WARRANTY DEED | CAMPBELL GEORGIA N | WARD JOSIAH & CHRISTINA IVONNE | | | $385,000.00 | 148419 | 2024-06207 |
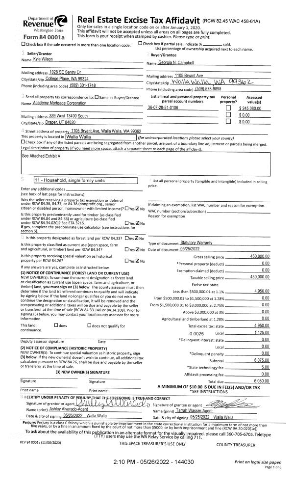
| 2 | 05/26/2022 | SWD | STATUTORY WARRANTY DEED | WILSON KYLE | CAMPBELL GEORGIA N | | | $450,000.00 | 144030 | 2022-04554 |
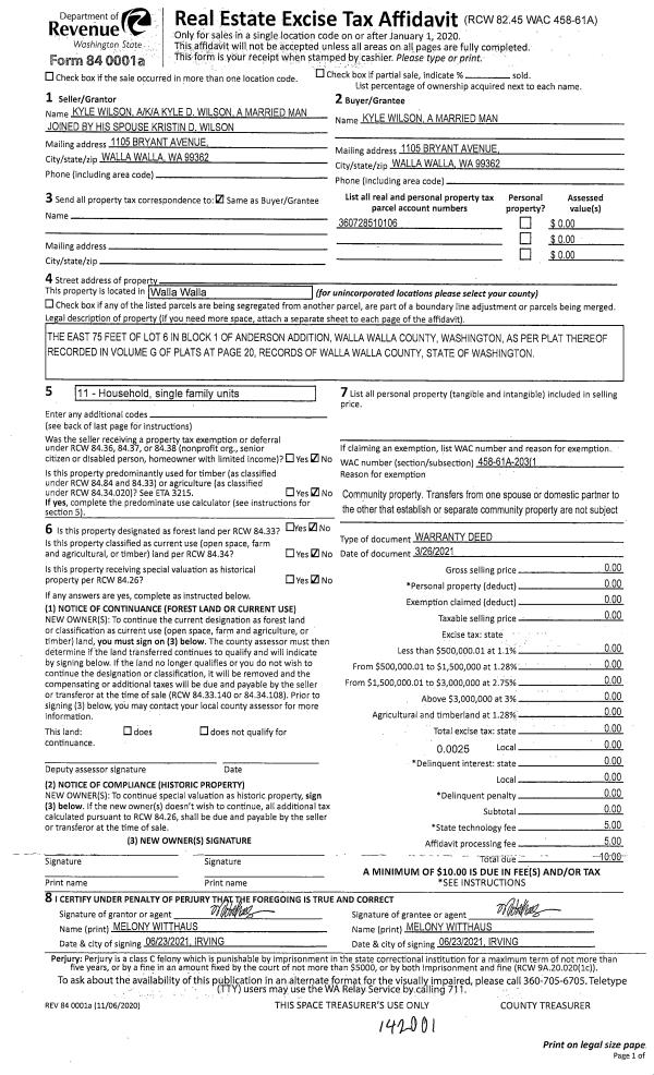
| 3 | 03/26/2021 | WARRANTY D | WARRANTY DEED | WILSON KYLE D | WILSON KYLE | | | $0.00 | 142001 | 2021-08291 |
| 4 | 05/03/2004 | WARRANTY D | WARRANTY DEED | BALLARD, JOHN H & JANDENE C | WILSON, KYLE D | | | $137,000.00 | 104667 | 2004-04741 |
| 5 | 12/18/2000 | WARRANTY D | WARRANTY DEED | | | | | $116,500.00 | 96329 | 3060-011916 |
Payout Agreement
| No payout information available.. |