Property
Account |
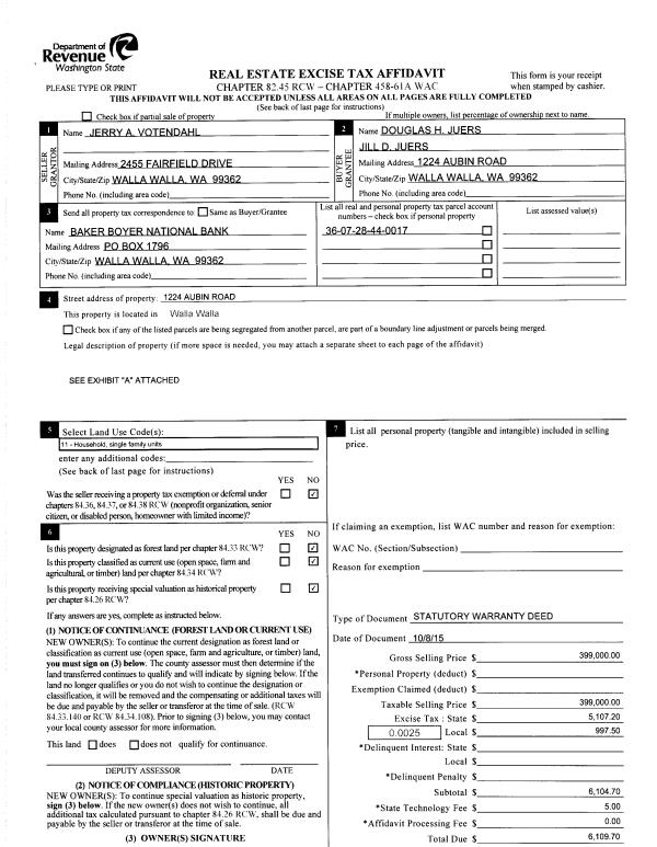
| Property ID: | 9608 | Abbreviated Legal Description: | 28-7-36 TAX 56C |
| Parcel Number: | 360728440017 | Agent Code: | |
| Type: | Real | | |
| Tax Area: | 1 - OL-140-F | Land Use Code | 11 |
| Open Space: | N | DFL | N |
| Historic Property: | N | Remodel Property: | N |
| Multi-Family Redevelopment: | N | | |
| Township: | 7 | Section: | 28 |
| Range: | 36 |
Location |
| Address: | 1224 AUBIN RD WA 99362 | Mapsco: | |
| Neighborhood: | G Res Rural/City Inf | Map ID: | |
| Neighborhood CD: | 614012 |
Owner |
| Name: | JUERS DOUGLAS H & JILL D | Owner ID: | 57582 |
| Mailing Address: | 1224 AUBIN RD WALLA WALLA, WA 99362 | % Ownership: | 100.0000000000% |
| | | Exemptions: | |
Taxes and Assessment Details
Property Tax Information as of
02/21/2026
Click on "Statement Details" to expand or collapse a tax statement.
* Please enter a valid date ** Please enter a valid date *
Statement Details |
| | TOTAL: | $0.00 | $0.00 | $0.00 | $0.00 | $0.00 | $0.00 |
|
| | $0.00 | $0.00 | $0.00 | $0.00 | $0.00 | $0.00 |
Values
| (+) Improvement Homesite Value: | + | $0 | |
| (+) Improvement Non-Homesite Value: | + | $403,670 | |
| (+) Land Homesite Value: | + | $0 | |
| (+) Land Non-Homesite Value: | + | $147,050 | |
| (+) Curr Use (HS): | + | $0 | $0 |
| (+) Curr Use (NHS): | + | $0 | $0 |
| | | -------------------------- | |
| (=) Market Value: | = | $550,720 | |
| (–) Productivity Loss: | – | $0 | |
| | | -------------------------- | |
| (=) Subtotal: | = | $550,720 | |
| (+) Senior Appraised Value: | + | $0 | |
| (+) Non-Senior Appraised Value: | + | $550,720 | |
| | | -------------------------- | |
| (=) Total Appraised Value: | = | $550,720 | |
| (–) Senior Exemption Loss: | – | $0 | |
| (–) Exemption Loss: | – | $0 | |
| | | -------------------------- | |
| (=) Taxable Value: | = | $550,720 | |
Taxing Jurisdiction
| Owner: | JUERS DOUGLAS H & JILL D | | |
| % Ownership: | 100.0000000000% | | |
| Total Value: | $550,720 | | |
| Tax Area: | 1 - OL-140-F |
| CERFD | CURRENT EXPENSE REFUND 010 | 0.0000000000 | $550,720 | $550,720 | $0.00 | | |
| CURREXP | CURRENT EXPENSE 010 | 1.0175366760 | $550,720 | $550,720 | $560.38 | | |
| HUMNSERV | HUMAN SERVICES 119 | 0.0250000000 | $550,720 | $550,720 | $13.77 | | |
| SLDREL | SOLDIERS RELIEF 121 | 0.0155990005 | $550,720 | $550,720 | $8.59 | | |
| EMERGSER | EMS 147 | 0.3792580840 | $550,720 | $550,720 | $208.87 | | |
| EMSRFD | EMS REFUND 147 | 0.0000000000 | $550,720 | $550,720 | $0.00 | | |
| PORTRFD | PORT REFUND 640 | 0.0000000000 | $550,720 | $550,720 | $0.00 | | |
| PORTWWGEN | PORT OF WW 640 | 0.2460186015 | $550,720 | $550,720 | $135.49 | | |
| SD140BOND | SD #140 BOND 764 | 0.8342371393 | $550,720 | $550,720 | $459.43 | | |
| SD140GEN | SD #140 GENERAL 760 | 2.0646500647 | $550,720 | $550,720 | $1,137.04 | | |
| ST2 | STATE SCHOOL PART 2 600 | 0.8131451643 | $550,720 | $550,720 | $447.82 | | |
| STATESCHL | STATE SCHOOL 600 | 1.5158548041 | $550,720 | $550,720 | $834.81 | | |
| STREFUND | STATE REFUND LEVY 603 | 0.0000000000 | $550,720 | $550,720 | $0.00 | | |
| CWWBOND | C OF WW BOND 643 | 0.2760494372 | $550,720 | $550,720 | $152.03 | | |
| CWWGEN | CITY OF WW 631 | 1.6100204973 | $550,720 | $550,720 | $886.67 | | |
| CWWRFD | CITY OF WALLA WALLA REFUND 631 | 0.0000000000 | $550,720 | $550,720 | $0.00 | | |
| | Total Tax Rate: | 8.7973694689 | | | | | |
| | | | | Taxes w/Current Exemptions: | $4,844.90 | | |
| | | | | Taxes w/o Exemptions: | $4,844.90 | | |
Improvement / Building
| Improvement #1: | RESIDENTIAL | State Code: | 11 | 1588.0 sqft | Value: | $403,670 |
| Exterior Wall: | CONCRETE BLOCK | Heating/Cooling: | HEAT PUMP | | Number of Bathrooms: | 2 | Number of Bedrooms: | 2 | | Plumbing: | 9 | Roof Covering: | COMP SHINGLE |
|
| | Type | Description | Class CD | Sub Class CD | Year Built | Area |
| | MA | Main Area | 1 | 35 | 1955 | 1588.0 |
| | SI1 | SITE IMPROVEMENT | 1 | 35 | 1955 | 4.5 |
| | BASE | BASEMENT | 1 | 35 | 1955 | 480.0 |
| | BPF | BASEMENT -PARTITIONED FINISH | 1 | 35 | 1955 | 480.0 |
| | DTG | Detached Garage | 1 | 35 | 1955 | 658.0 |
| | WOD | Wood Deck | 1 | 35 | 1955 | 1031.0 |
| | D2F | Double 2 Story Fireplace | 1 | 35 | 1955 | 1.0 |
| | RPC | OPEN PORCH W/ROOF , CEILED | 1 | 35 | 1955 | 84.0 |
Sketch
Property Image
Land
| 1 | RES 1 | Converted: Residential | 0.9300 | 40510.00 | 0.00 | 0.00 | 1.00 | $147,050 | $0 |
Roll Value History
| 2026 | N/A | N/A | N/A | N/A | N/A |
| 2025 | $389,640 | $167,310 | $0 | $556,950 | $556,950 |
| 2024 | $403,670 | $147,050 | $0 | $550,720 | $550,720 |
| 2023 | $403,670 | $147,050 | $0 | $550,720 | $550,720 |
| 2022 | $403,670 | $117,880 | $0 | $521,550 | $521,550 |
| 2021 | $336,390 | $117,880 | $0 | $454,270 | $454,270 |
| 2020 | $258,760 | $117,880 | $0 | $376,640 | $376,640 |
| 2019 | $258,760 | $117,880 | $0 | $376,640 | $376,640 |
| 2018 | $299,270 | $73,100 | $0 | $372,370 | $372,370 |
| 2017 | $285,020 | $73,100 | $0 | $358,120 | $358,120 |
| 2016 | $271,450 | $73,100 | $0 | $344,550 | $344,550 |
| 2015 | $193,890 | $73,100 | $0 | $266,990 | $266,990 |
| 2014 | $168,600 | $73,100 | $0 | $241,700 | $241,700 |
| 2013 | $168,600 | $73,100 | $0 | $241,700 | $241,700 |
| 2012 | $168,600 | $73,100 | $0 | $0 | $0 |
| 2011 | $168,600 | $73,100 | $0 | $0 | $0 |
| 2010 | $168,600 | $73,100 | $0 | $0 | $0 |
| 2009 | $195,400 | $73,100 | $0 | $0 | $0 |
| 2008 | $195,400 | $73,100 | $0 | $0 | $0 |
| 2007 | $131,000 | $43,900 | $0 | $0 | $0 |
Deed and Sales History
| 1 | 10/09/2015 | SWD | STATUTORY WARRANTY DEED | VOTENDAHL JERRY A | JUERS DOUGLAS H & JILL D | | | $399,000.00 | 128974 | 2015-08916 |
| 2 | 05/07/1969 | WARRANTY D | WARRANTY DEED | | | | | $28,500.00 | 0 | 3310-501313 |
Payout Agreement
| No payout information available.. |