Property
Account |
| Property ID: | 9599 | Abbreviated Legal Description: | 28-7-36 TAX 86A & 86B PARCEL #67 |
| Parcel Number: | 360728420067 | Agent Code: | |
| Type: | Real | | |
| Tax Area: | 6 - OL-140-F-FB | Land Use Code | 11 |
| Open Space: | N | DFL | N |
| Historic Property: | N | Remodel Property: | N |
| Multi-Family Redevelopment: | N | | |
| Township: | 7 | Section: | 28 |
| Range: | 36 |
Location |
| Address: | 1629 FERN AVE WA 99362 | Mapsco: | |
| Neighborhood: | G Res | Map ID: | |
| Neighborhood CD: | 614011 |
Owner |
| Name: | LARKINS KENNETH E & OLIVIA J | Owner ID: | 66597 |
| Mailing Address: | 1629 FERN AVE WALLA WALLA, WA 99362 | % Ownership: | 100.0000000000% |
| | | Exemptions: | |
Taxes and Assessment Details
Values
| (+) Improvement Homesite Value: | + | $0 | |
| (+) Improvement Non-Homesite Value: | + | $463,260 | |
| (+) Land Homesite Value: | + | $0 | |
| (+) Land Non-Homesite Value: | + | $125,300 | |
| (+) Curr Use (HS): | + | $0 | $0 |
| (+) Curr Use (NHS): | + | $0 | $0 |
| | | -------------------------- | |
| (=) Market Value: | = | $588,560 | |
| (–) Productivity Loss: | – | $0 | |
| | | -------------------------- | |
| (=) Subtotal: | = | $588,560 | |
| (+) Senior Appraised Value: | + | $0 | |
| (+) Non-Senior Appraised Value: | + | $588,560 | |
| | | -------------------------- | |
| (=) Total Appraised Value: | = | $588,560 | |
| (–) Senior Exemption Loss: | – | $0 | |
| (–) Exemption Loss: | – | $0 | |
| | | -------------------------- | |
| (=) Taxable Value: | = | $588,560 | |
Taxing Jurisdiction
| Owner: | LARKINS KENNETH E & OLIVIA J | | |
| % Ownership: | 100.0000000000% | | |
| Total Value: | $588,560 | | |
| Tax Area: | 6 - OL-140-F-FB |
| CERFD | CURRENT EXPENSE REFUND 010 | 0.0000000000 | $588,560 | $588,560 | $0.00 | | |
| CURREXP | CURRENT EXPENSE 010 | 1.0175366760 | $588,560 | $588,560 | $598.88 | | |
| HUMNSERV | HUMAN SERVICES 119 | 0.0250000000 | $588,560 | $588,560 | $14.71 | | |
| SLDREL | SOLDIERS RELIEF 121 | 0.0155990005 | $588,560 | $588,560 | $9.18 | | |
| EMERGSER | EMS 147 | 0.3792580840 | $588,560 | $588,560 | $223.22 | | |
| EMSRFD | EMS REFUND 147 | 0.0000000000 | $588,560 | $588,560 | $0.00 | | |
| PORTRFD | PORT REFUND 640 | 0.0000000000 | $588,560 | $588,560 | $0.00 | | |
| PORTWWGEN | PORT OF WW 640 | 0.2460186015 | $588,560 | $588,560 | $144.80 | | |
| SD140BOND | SD #140 BOND 764 | 0.8342371393 | $588,560 | $588,560 | $491.00 | | |
| SD140GEN | SD #140 GENERAL 760 | 2.0646500647 | $588,560 | $588,560 | $1,215.17 | | |
| ST2 | STATE SCHOOL PART 2 600 | 0.8131451643 | $588,560 | $588,560 | $478.58 | | |
| STATESCHL | STATE SCHOOL 600 | 1.5158548041 | $588,560 | $588,560 | $892.17 | | |
| STREFUND | STATE REFUND LEVY 603 | 0.0000000000 | $588,560 | $588,560 | $0.00 | | |
| CWWBOND | C OF WW BOND 643 | 0.2760494372 | $588,560 | $588,560 | $162.47 | | |
| CWWGEN | CITY OF WW 631 | 1.6100204973 | $588,560 | $588,560 | $947.59 | | |
| CWWRFD | CITY OF WALLA WALLA REFUND 631 | 0.0000000000 | $588,560 | $588,560 | $0.00 | | |
| | Total Tax Rate: | 8.7973694689 | | | | | |
| | | | | Taxes w/Current Exemptions: | $5,177.77 | | |
| | | | | Taxes w/o Exemptions: | $5,177.77 | | |
Improvement / Building
| Improvement #1: | RESIDENTIAL | State Code: | 11 | 1763.0 sqft | Value: | $463,260 |
| Exterior Wall: | PLYWOOD | Heating/Cooling: | FLOOR RADIANT | | Number of Bathrooms: | 3.5 | Number of Bedrooms: | 3 | | Plumbing: | 15 | Roof Covering: | COMP SHINGLE |
|
| | Type | Description | Class CD | Sub Class CD | Year Built | Area |
| | MA | Main Area | 1 | 40 | 1959 | 1763.0 |
| | SI1 | SITE IMPROVEMENT | 1 | 40 | 1959 | 3.0 |
| | BASE | BASEMENT | 1 | 40 | 1959 | 1343.0 |
| | BPF | BASEMENT -PARTITIONED FINISH | 1 | 40 | 1959 | 1343.0 |
| | D2F | Double 2 Story Fireplace | 1 | 40 | 1959 | 1.0 |
| | SMP | SWIMMING POOL | 1 | 40 | 2004 | 1.0 |
| | RPC | OPEN PORCH W/ROOF , CEILED | 1 | 40 | 1959 | 26.0 |
| | WOD | Wood Deck | 1 | 40 | 1959 | 1038.0 |
| | ATG | Attached Garage | 1 | 40 | 1959 | 480.0 |
Sketch
Property Image
Land
| 1 | RES 1 | Converted: Residential | 0.4017 | 17500.00 | 0.00 | 0.00 | 1.00 | $125,300 | $0 |
Roll Value History
| 2026 | N/A | N/A | N/A | N/A | N/A |
| 2025 | $354,720 | $148,580 | $0 | $503,300 | $503,300 |
| 2024 | $509,590 | $125,300 | $0 | $634,890 | $634,890 |
| 2023 | $463,260 | $125,300 | $0 | $588,560 | $588,560 |
| 2022 | $463,260 | $102,730 | $0 | $565,990 | $565,990 |
| 2021 | $289,540 | $102,730 | $0 | $392,270 | $392,270 |
| 2020 | $289,540 | $102,730 | $0 | $392,270 | $392,270 |
| 2019 | $289,540 | $102,730 | $0 | $392,270 | $392,270 |
| 2018 | $269,350 | $53,500 | $0 | $322,850 | $322,850 |
| 2017 | $244,860 | $53,500 | $0 | $298,360 | $298,360 |
| 2016 | $222,600 | $53,500 | $0 | $276,100 | $276,100 |
| 2015 | $222,600 | $53,500 | $0 | $276,100 | $276,100 |
| 2014 | $222,600 | $53,500 | $0 | $276,100 | $276,100 |
| 2013 | $222,600 | $53,500 | $0 | $276,100 | $276,100 |
| 2012 | $222,600 | $53,500 | $0 | $0 | $0 |
| 2011 | $222,600 | $53,500 | $0 | $0 | $0 |
| 2010 | $197,500 | $53,500 | $0 | $0 | $0 |
| 2009 | $225,400 | $53,500 | $0 | $0 | $0 |
| 2008 | $225,400 | $53,500 | $0 | $0 | $0 |
| 2007 | $194,800 | $31,000 | $0 | $0 | $0 |
Deed and Sales History
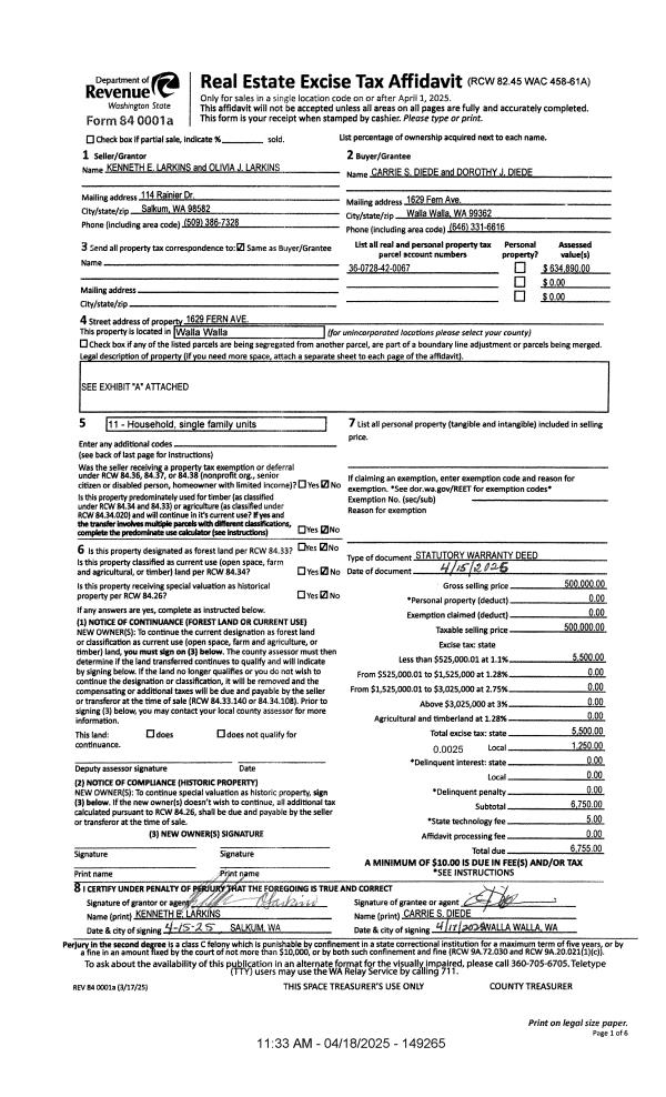
| 1 | 04/18/2025 | SWD | STATUTORY WARRANTY DEED | LARKINS KENNETH E & OLIVIA J | DIEDE CARRIE S | | | $500,000.00 | 149265 | 2025-02078 |
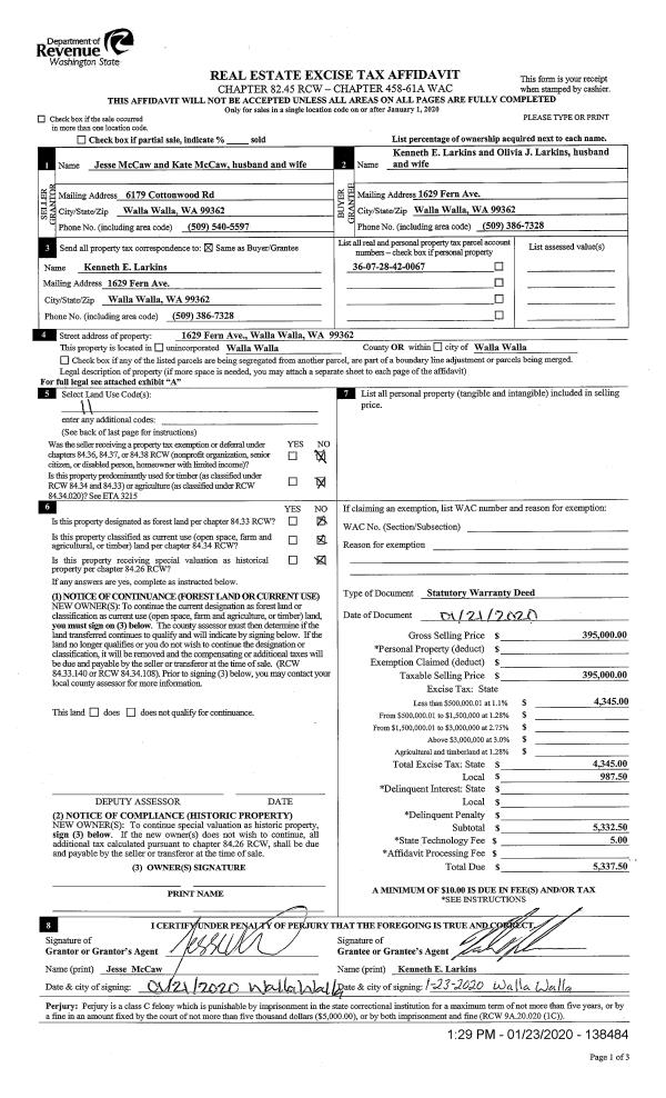
| 2 | 01/23/2020 | SWD | STATUTORY WARRANTY DEED | MCCAW JESSE & KATE | LARKINS KENNETH E & OLIVIA J | | | $395,000.00 | 138484 | 2020-00670 |
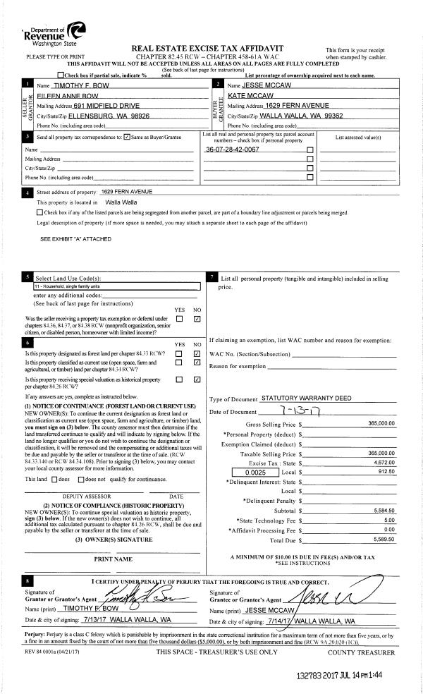
| 3 | 07/14/2017 | SWD | STATUTORY WARRANTY DEED | BOW TIMOTHY F | MCCAW JESSE & KATE | | | $365,000.00 | 132783 | 2017-05398 |
| 4 | 01/06/2004 | WARRANTY D | WARRANTY DEED | ERMACOFF LIVING TRUST | BOW, TIMOTHY F | | | $250,000.00 | 103872 | 2004-00137 |
| 5 | 07/23/2002 | WARRANTY D | WARRANTY DEED | | | | | $99,000.00 | 5 | 2002-0008305 |
Payout Agreement
| No payout information available.. |