Property
Account |
| Property ID: | 9596 | Abbreviated Legal Description: | 28-7-36 TAX 155D |
| Parcel Number: | 360728420055 | Agent Code: | |
| Type: | Real | | |
| Tax Area: | 105 - 140-F-4 | Land Use Code | 11 |
| Open Space: | N | DFL | N |
| Historic Property: | N | Remodel Property: | N |
| Multi-Family Redevelopment: | N | | |
| Township: | 7 | Section: | 28 |
| Range: | 36 |
Location |
| Address: | 1016 BRYANT AVE WA 99362 | Mapsco: | |
| Neighborhood: | G Res | Map ID: | |
| Neighborhood CD: | 614011 |
Owner |
| Name: | DRUSE GREGORY ELDON & CAROL KIRSCHBAUM | Owner ID: | 71863 |
| Mailing Address: | 545 E MAPLE ST WALLA WALLA, WA 99362 | % Ownership: | 100.0000000000% |
| | | Exemptions: | |
Taxes and Assessment Details
Property Tax Information as of
02/21/2026
Click on "Statement Details" to expand or collapse a tax statement.
* Please enter a valid date ** Please enter a valid date *
Statement Details |
| | TOTAL: | $0.00 | $0.00 | $0.00 | $0.00 | $0.00 | $0.00 |
|
| | $0.00 | $0.00 | $0.00 | $0.00 | $0.00 | $0.00 |
Values
| (+) Improvement Homesite Value: | + | $0 | |
| (+) Improvement Non-Homesite Value: | + | $417,140 | |
| (+) Land Homesite Value: | + | $0 | |
| (+) Land Non-Homesite Value: | + | $123,840 | |
| (+) Curr Use (HS): | + | $0 | $0 |
| (+) Curr Use (NHS): | + | $0 | $0 |
| | | -------------------------- | |
| (=) Market Value: | = | $540,980 | |
| (–) Productivity Loss: | – | $0 | |
| | | -------------------------- | |
| (=) Subtotal: | = | $540,980 | |
| (+) Senior Appraised Value: | + | $0 | |
| (+) Non-Senior Appraised Value: | + | $540,980 | |
| | | -------------------------- | |
| (=) Total Appraised Value: | = | $540,980 | |
| (–) Senior Exemption Loss: | – | $0 | |
| (–) Exemption Loss: | – | $0 | |
| | | -------------------------- | |
| (=) Taxable Value: | = | $540,980 | |
Taxing Jurisdiction
| Owner: | DRUSE GREGORY ELDON & CAROL KIRSCHBAUM | | |
| % Ownership: | 100.0000000000% | | |
| Total Value: | $540,980 | | |
| Tax Area: | 105 - 140-F-4 |
| CERFD | CURRENT EXPENSE REFUND 010 | 0.0000000000 | $540,980 | $540,980 | $0.00 | | |
| CURREXP | CURRENT EXPENSE 010 | 1.0175366760 | $540,980 | $540,980 | $550.47 | | |
| HUMNSERV | HUMAN SERVICES 119 | 0.0250000000 | $540,980 | $540,980 | $13.52 | | |
| SLDREL | SOLDIERS RELIEF 121 | 0.0155990005 | $540,980 | $540,980 | $8.44 | | |
| EMERGSER | EMS 147 | 0.3792580840 | $540,980 | $540,980 | $205.17 | | |
| EMSRFD | EMS REFUND 147 | 0.0000000000 | $540,980 | $540,980 | $0.00 | | |
| FD4EXP | FD #4 EXPENSE 686 | 0.8836993059 | $540,980 | $540,980 | $478.06 | | |
| RLBRFD | RURAL LIBRARY REFUND 623 | 0.0000000000 | $540,980 | $540,980 | $0.00 | | |
| RURALLIB | RURAL LIBRARY 623 | 0.3710609029 | $540,980 | $540,980 | $200.74 | | |
| PORTRFD | PORT REFUND 640 | 0.0000000000 | $540,980 | $540,980 | $0.00 | | |
| PORTWWGEN | PORT OF WW 640 | 0.2460186015 | $540,980 | $540,980 | $133.09 | | |
| SD140BOND | SD #140 BOND 764 | 0.8342371393 | $540,980 | $540,980 | $451.31 | | |
| SD140GEN | SD #140 GENERAL 760 | 2.0646500647 | $540,980 | $540,980 | $1,116.93 | | |
| ST2 | STATE SCHOOL PART 2 600 | 0.8131451643 | $540,980 | $540,980 | $439.90 | | |
| STATESCHL | STATE SCHOOL 600 | 1.5158548041 | $540,980 | $540,980 | $820.05 | | |
| STREFUND | STATE REFUND LEVY 603 | 0.0000000000 | $540,980 | $540,980 | $0.00 | | |
| COROAD | COUNTY ROAD 115 | 1.6549953990 | $540,980 | $540,980 | $895.32 | | |
| CRPRD | COUNTY ROAD REFUND 115 | 0.0000000000 | $540,980 | $540,980 | $0.00 | | |
| | Total Tax Rate: | 9.8210551422 | | | | | |
| | | | | Taxes w/Current Exemptions: | $5,313.00 | | |
| | | | | Taxes w/o Exemptions: | $5,313.00 | | |
Improvement / Building
| Improvement #1: | RESIDENTIAL | State Code: | 11 | 1718.0 sqft | Value: | $417,140 |
| Exterior Wall: | SIDING | Heating/Cooling: | HEAT PUMP | | Number of Bathrooms: | 2.5 | Number of Bedrooms: | 4 | | Plumbing: | 12 | Roof Covering: | COMP SHINGLE |
|
| | Type | Description | Class CD | Sub Class CD | Year Built | Area |
| | MA | Main Area | 1 | 40 | 1957 | 1718.0 |
| | SI1 | SITE IMPROVEMENT | 1 | 40 | 1957 | 2.5 |
| | BASE | BASEMENT | 1 | 40 | 1957 | 1046.0 |
| | BPF | BASEMENT -PARTITIONED FINISH | 1 | 40 | 1957 | 784.0 |
| | D2F | Double 2 Story Fireplace | 1 | 40 | 1957 | 1.0 |
| | PRC | PORCH W STEPS, ROOF,CEILED | 1 | 40 | 1957 | 15.0 |
| | CPC | COVERED CARPORT/PATIO | 1 | 40 | 1957 | 420.0 |
| | ATG | Attached Garage | 1 | 40 | 1957 | 399.0 |
| | GFP | GAS FIREPLACE | 1 | 40 | 1957 | 2.0 |
Sketch
Property Image
Land
| 1 | RES 1 | Converted: Residential | 0.3673 | 16000.00 | 0.00 | 0.00 | 1.00 | $123,840 | $0 |
Roll Value History
| 2026 | N/A | N/A | N/A | N/A | N/A |
| 2025 | $475,640 | $147,360 | $0 | $623,000 | $623,000 |
| 2024 | $458,850 | $123,840 | $0 | $582,690 | $582,690 |
| 2023 | $417,140 | $123,840 | $0 | $540,980 | $540,980 |
| 2022 | $417,140 | $101,600 | $0 | $518,740 | $518,740 |
| 2021 | $309,340 | $101,600 | $0 | $410,940 | $410,940 |
| 2020 | $220,960 | $101,600 | $0 | $322,560 | $322,560 |
| 2019 | $220,960 | $101,600 | $0 | $322,560 | $322,560 |
| 2018 | $207,210 | $52,200 | $0 | $259,410 | $259,410 |
| 2017 | $197,340 | $52,200 | $0 | $249,540 | $249,540 |
| 2016 | $179,400 | $52,200 | $0 | $231,600 | $231,600 |
| 2015 | $179,400 | $52,200 | $0 | $231,600 | $231,600 |
| 2014 | $179,400 | $52,200 | $0 | $231,600 | $231,600 |
| 2013 | $179,400 | $52,200 | $0 | $231,600 | $231,600 |
| 2012 | $186,600 | $52,200 | $0 | $0 | $0 |
| 2011 | $186,600 | $52,200 | $0 | $0 | $0 |
| 2010 | $164,900 | $52,200 | $0 | $0 | $0 |
| 2009 | $189,000 | $52,200 | $0 | $0 | $0 |
| 2008 | $189,000 | $52,200 | $0 | $0 | $0 |
| 2007 | $120,700 | $29,700 | $0 | $0 | $0 |
Deed and Sales History
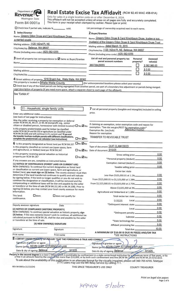
| 1 | 05/20/2025 | QCD | QUIT CLAIM DEED | DRUSE GREGORY ELDON & CAROL KIRSCHBAUM | DRUSE GREGORY ELDON & CAROL KIRSCHBAUM TRUST | | | | 149404 | 2025-02760 |
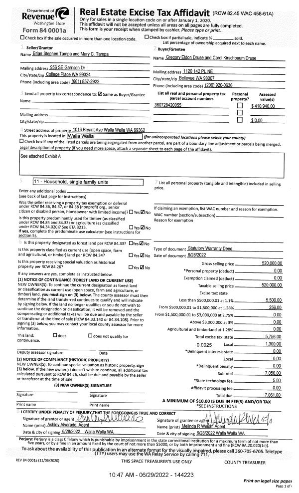
| 2 | 06/29/2022 | SWD | STATUTORY WARRANTY DEED | TAMPA BRIAN STEPHEN & MARY C | DRUSE GREGORY ELDON & CAROL KIRSCHBAUM | | | $520,000.00 | 144223 | 2022-05480 |
| 3 | 12/12/2018 | SWD | STATUTORY WARRANTY DEED | HAFEN DAVID L | TAMPA BRIAN STEPHEN & MARY C | | | $335,000.00 | 136077 | 2018-10270 |
| 4 | 06/29/1972 | WARRANTY D | WARRANTY DEED | | | | | $29,000.00 | 0 | 3460-522302 |
Payout Agreement
| No payout information available.. |