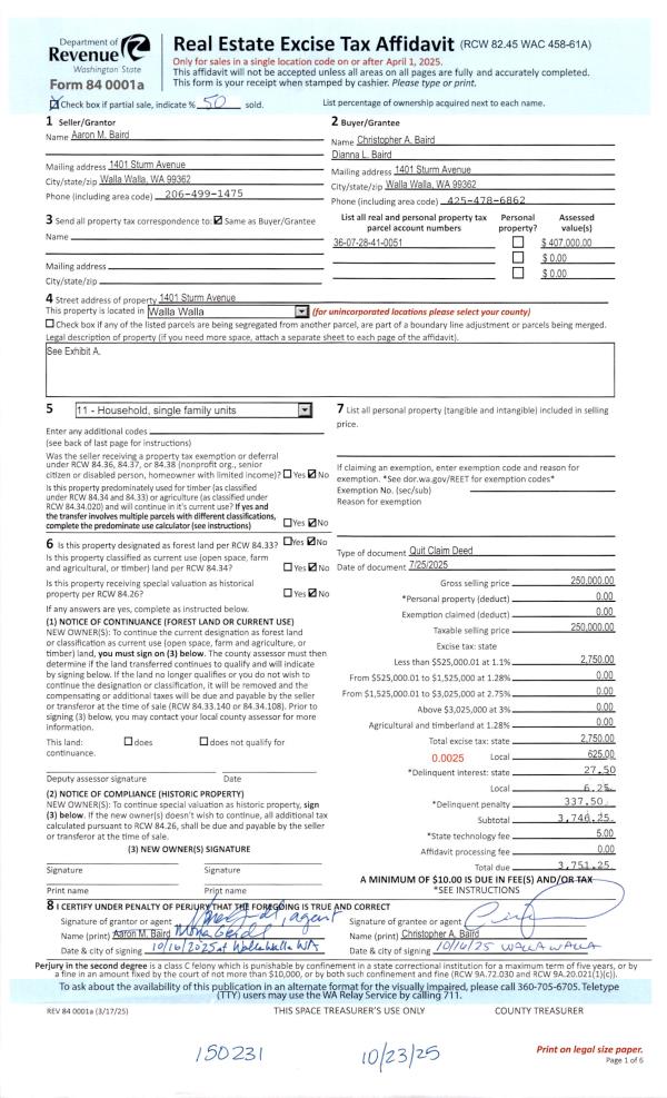
Property
Account |
| Property ID: | 9587 | Abbreviated Legal Description: | 28-7-36 TAX 149 |
| Parcel Number: | 360728410051 | Agent Code: | |
| Type: | Real | | |
| Tax Area: | 105 - 140-F-4 | Land Use Code | 11 |
| Open Space: | N | DFL | N |
| Historic Property: | N | Remodel Property: | N |
| Multi-Family Redevelopment: | N | | |
| Township: | 7 | Section: | 28 |
| Range: | 36 |
Location |
| Address: | 1401 STURM AVE WA 99362 | Mapsco: | |
| Neighborhood: | G Res | Map ID: | |
| Neighborhood CD: | 614011 |
Owner |
| Name: | BAIRD CHRISTOPHER A & AARON M BAIRD | Owner ID: | 73427 |
| Mailing Address: | 1401 STURM AVE WALLA WALLA, WA 99362 | % Ownership: | 100.0000000000% |
| | | Exemptions: | |
Taxes and Assessment Details
Property Tax Information as of
02/21/2026
Click on "Statement Details" to expand or collapse a tax statement.
* Please enter a valid date ** Please enter a valid date *
Statement Details |
| | TOTAL: | $0.00 | $0.00 | $0.00 | $0.00 | $0.00 | $0.00 |
|
| | $0.00 | $0.00 | $0.00 | $0.00 | $0.00 | $0.00 |
Values
| (+) Improvement Homesite Value: | + | $0 | |
| (+) Improvement Non-Homesite Value: | + | $257,000 | |
| (+) Land Homesite Value: | + | $0 | |
| (+) Land Non-Homesite Value: | + | $150,000 | |
| (+) Curr Use (HS): | + | $0 | $0 |
| (+) Curr Use (NHS): | + | $0 | $0 |
| | | -------------------------- | |
| (=) Market Value: | = | $407,000 | |
| (–) Productivity Loss: | – | $0 | |
| | | -------------------------- | |
| (=) Subtotal: | = | $407,000 | |
| (+) Senior Appraised Value: | + | $0 | |
| (+) Non-Senior Appraised Value: | + | $407,000 | |
| | | -------------------------- | |
| (=) Total Appraised Value: | = | $407,000 | |
| (–) Senior Exemption Loss: | – | $0 | |
| (–) Exemption Loss: | – | $0 | |
| | | -------------------------- | |
| (=) Taxable Value: | = | $407,000 | |
Taxing Jurisdiction
| Owner: | BAIRD CHRISTOPHER A & AARON M BAIRD | | |
| % Ownership: | 100.0000000000% | | |
| Total Value: | $407,000 | | |
| Tax Area: | 105 - 140-F-4 |
| CERFD | CURRENT EXPENSE REFUND 010 | 0.0000000000 | $407,000 | $407,000 | $0.00 | | |
| CURREXP | CURRENT EXPENSE 010 | 1.0175366760 | $407,000 | $407,000 | $414.14 | | |
| HUMNSERV | HUMAN SERVICES 119 | 0.0250000000 | $407,000 | $407,000 | $10.18 | | |
| SLDREL | SOLDIERS RELIEF 121 | 0.0155990005 | $407,000 | $407,000 | $6.35 | | |
| EMERGSER | EMS 147 | 0.3792580840 | $407,000 | $407,000 | $154.36 | | |
| EMSRFD | EMS REFUND 147 | 0.0000000000 | $407,000 | $407,000 | $0.00 | | |
| FD4EXP | FD #4 EXPENSE 686 | 0.8836993059 | $407,000 | $407,000 | $359.67 | | |
| RLBRFD | RURAL LIBRARY REFUND 623 | 0.0000000000 | $407,000 | $407,000 | $0.00 | | |
| RURALLIB | RURAL LIBRARY 623 | 0.3710609029 | $407,000 | $407,000 | $151.02 | | |
| PORTRFD | PORT REFUND 640 | 0.0000000000 | $407,000 | $407,000 | $0.00 | | |
| PORTWWGEN | PORT OF WW 640 | 0.2460186015 | $407,000 | $407,000 | $100.13 | | |
| SD140BOND | SD #140 BOND 764 | 0.8342371393 | $407,000 | $407,000 | $339.53 | | |
| SD140GEN | SD #140 GENERAL 760 | 2.0646500647 | $407,000 | $407,000 | $840.31 | | |
| ST2 | STATE SCHOOL PART 2 600 | 0.8131451643 | $407,000 | $407,000 | $330.95 | | |
| STATESCHL | STATE SCHOOL 600 | 1.5158548041 | $407,000 | $407,000 | $616.95 | | |
| STREFUND | STATE REFUND LEVY 603 | 0.0000000000 | $407,000 | $407,000 | $0.00 | | |
| COROAD | COUNTY ROAD 115 | 1.6549953990 | $407,000 | $407,000 | $673.58 | | |
| CRPRD | COUNTY ROAD REFUND 115 | 0.0000000000 | $407,000 | $407,000 | $0.00 | | |
| | Total Tax Rate: | 9.8210551422 | | | | | |
| | | | | Taxes w/Current Exemptions: | $3,997.17 | | |
| | | | | Taxes w/o Exemptions: | $3,997.17 | | |
Improvement / Building
| Improvement #1: | RESIDENTIAL | State Code: | 11 | 1580.0 sqft | Value: | $257,000 |
| Exterior Wall: | SIDING | Foundation: | SLAB FOUNDATION | | Heating/Cooling: | WARM & COOLED AIR | Number of Bathrooms: | 2 | | Number of Bedrooms: | 3 | Plumbing: | 9 | | Roof Covering: | COMP SHINGLE |   |   |
|
| | Type | Description | Class CD | Sub Class CD | Year Built | Area |
| | MA | Main Area | 1 | 30 | 1959 | 1580.0 |
| | SI1 | SITE IMPROVEMENT | 1 | 30 | 1959 | 2.0 |
| | S1F | Single One Story Fireplace | 1 | 30 | 1959 | 1.0 |
| | PRC | PORCH W STEPS, ROOF,CEILED | 1 | 30 | 1959 | 16.0 |
| | CPC | COVERED CARPORT/PATIO | 1 | 30 | 1959 | 256.0 |
| | DTG | Detached Garage | 1 | 30 | 1959 | 480.0 |
| | TOOL | TOOL SHED | 1 | 30 | 1959 | 288.0 |
| | UTST | Utility Storage Shed | 1 | 30 | 1959 | 192.0 |
Sketch
Property Image
Land
| 1 | RES 1 | Converted: Residential | 1.0000 | 0.00 | 0.00 | 0.00 | 1.00 | $150,000 | $0 |
Roll Value History
| 2026 | N/A | N/A | N/A | N/A | N/A |
| 2025 | $260,500 | $170,000 | $0 | $430,500 | $430,500 |
| 2024 | $257,000 | $150,000 | $0 | $407,000 | $407,000 |
| 2023 | $257,000 | $150,000 | $0 | $407,000 | $407,000 |
| 2022 | $233,640 | $120,000 | $0 | $353,640 | $353,640 |
| 2021 | $186,910 | $120,000 | $0 | $306,910 | $306,910 |
| 2020 | $162,530 | $120,000 | $0 | $282,530 | $282,530 |
| 2019 | $162,530 | $120,000 | $0 | $282,530 | $282,530 |
| 2018 | $127,160 | $75,000 | $0 | $202,160 | $202,160 |
| 2017 | $127,160 | $75,000 | $0 | $202,160 | $202,160 |
| 2016 | $121,100 | $75,000 | $0 | $196,100 | $196,100 |
| 2015 | $121,100 | $75,000 | $0 | $196,100 | $196,100 |
| 2014 | $121,100 | $75,000 | $0 | $196,100 | $196,100 |
| 2013 | $121,100 | $75,000 | $0 | $196,100 | $196,100 |
| 2012 | $116,000 | $75,000 | $0 | $0 | $0 |
| 2011 | $116,000 | $75,000 | $0 | $0 | $0 |
| 2010 | $98,600 | $75,000 | $0 | $0 | $0 |
| 2009 | $117,900 | $75,000 | $0 | $0 | $0 |
| 2008 | $117,900 | $75,000 | $0 | $0 | $0 |
| 2007 | $97,800 | $44,000 | $0 | $0 | $0 |
Deed and Sales History
| 1 | 10/23/2025 | QCD | QUIT CLAIM DEED | BAIRD CHRISTOPHER A & AARON M BAIRD | BAIRD CHRISTOPHER A & DIANNA BAIRD | | | | 150231 | 2025-06555 |
| 2 | 04/13/2023 | QCD | QUIT CLAIM DEED | BAIRD DIANE C | BAIRD CHRISTOPHER A & AARON M BAIRD | | | | 145663 | 2023-01958 |
| 3 | 01/31/2018 | DEATH CERT | DEATH CERTIFICATE | | BAIRD ALLEN COLVIN | | | | 0 | 2018-00864 |
| 4 | 01/31/2018 | COMMUNITY | COMMUNITY PROPERTY AGREEMENT | BAIRD ALLEN C & DIANE C | BAIRD ALLEN C & DIANE C | | | | 0 | 2018-00863 |
| 5 | 07/19/1984 | WARRANTY D | WARRANTY DEED | | | | | $74,900.00 | 0 | 1458-405043 |
Payout Agreement
| No payout information available.. |