Property
Account |
| Property ID: | 9579 | Abbreviated Legal Description: | 28-7-36 LOT 5 OF S/P (SLY PTN TAX 64 WITHIN NE1/4SW1/4) |
| Parcel Number: | 360728310041 | Agent Code: | |
| Type: | Real | | |
| Tax Area: | 1 - OL-140-F | Land Use Code | 11 |
| Open Space: | N | DFL | N |
| Historic Property: | N | Remodel Property: | N |
| Multi-Family Redevelopment: | N | | |
| Township: | 7 | Section: | 28 |
| Range: | 36 |
Location |
| Address: | 789 CLAY ST WA 99362 | Mapsco: | |
| Neighborhood: | E Res | Map ID: | |
| Neighborhood CD: | 616011 |
Owner |
| Name: | HENDERSON SONJA R | Owner ID: | 74023 |
| Mailing Address: | 789 CLAY ST WALLA WALLA, WA 99362 | % Ownership: | 100.0000000000% |
| | | Exemptions: | |
Taxes and Assessment Details
Values
| (+) Improvement Homesite Value: | + | $0 | |
| (+) Improvement Non-Homesite Value: | + | $633,140 | |
| (+) Land Homesite Value: | + | $0 | |
| (+) Land Non-Homesite Value: | + | $120,000 | |
| (+) Curr Use (HS): | + | $0 | $0 |
| (+) Curr Use (NHS): | + | $0 | $0 |
| | | -------------------------- | |
| (=) Market Value: | = | $753,140 | |
| (–) Productivity Loss: | – | $0 | |
| | | -------------------------- | |
| (=) Subtotal: | = | $753,140 | |
| (+) Senior Appraised Value: | + | $0 | |
| (+) Non-Senior Appraised Value: | + | $753,140 | |
| | | -------------------------- | |
| (=) Total Appraised Value: | = | $753,140 | |
| (–) Senior Exemption Loss: | – | $0 | |
| (–) Exemption Loss: | – | $0 | |
| | | -------------------------- | |
| (=) Taxable Value: | = | $753,140 | |
Taxing Jurisdiction
| Owner: | HENDERSON SONJA R | | |
| % Ownership: | 100.0000000000% | | |
| Total Value: | $753,140 | | |
| Tax Area: | 1 - OL-140-F |
| CERFD | CURRENT EXPENSE REFUND 010 | 0.0000000000 | $753,140 | $753,140 | $0.00 | | |
| CURREXP | CURRENT EXPENSE 010 | 1.0175366760 | $753,140 | $753,140 | $766.35 | | |
| HUMNSERV | HUMAN SERVICES 119 | 0.0250000000 | $753,140 | $753,140 | $18.83 | | |
| SLDREL | SOLDIERS RELIEF 121 | 0.0155990005 | $753,140 | $753,140 | $11.75 | | |
| EMERGSER | EMS 147 | 0.3792580840 | $753,140 | $753,140 | $285.63 | | |
| EMSRFD | EMS REFUND 147 | 0.0000000000 | $753,140 | $753,140 | $0.00 | | |
| PORTRFD | PORT REFUND 640 | 0.0000000000 | $753,140 | $753,140 | $0.00 | | |
| PORTWWGEN | PORT OF WW 640 | 0.2460186015 | $753,140 | $753,140 | $185.29 | | |
| SD140BOND | SD #140 BOND 764 | 0.8342371393 | $753,140 | $753,140 | $628.30 | | |
| SD140GEN | SD #140 GENERAL 760 | 2.0646500647 | $753,140 | $753,140 | $1,554.97 | | |
| ST2 | STATE SCHOOL PART 2 600 | 0.8131451643 | $753,140 | $753,140 | $612.41 | | |
| STATESCHL | STATE SCHOOL 600 | 1.5158548041 | $753,140 | $753,140 | $1,141.65 | | |
| STREFUND | STATE REFUND LEVY 603 | 0.0000000000 | $753,140 | $753,140 | $0.00 | | |
| CWWBOND | C OF WW BOND 643 | 0.2760494372 | $753,140 | $753,140 | $207.90 | | |
| CWWGEN | CITY OF WW 631 | 1.6100204973 | $753,140 | $753,140 | $1,212.57 | | |
| CWWRFD | CITY OF WALLA WALLA REFUND 631 | 0.0000000000 | $753,140 | $753,140 | $0.00 | | |
| | Total Tax Rate: | 8.7973694689 | | | | | |
| | | | | Taxes w/Current Exemptions: | $6,625.65 | | |
| | | | | Taxes w/o Exemptions: | $6,625.65 | | |
Improvement / Building
| Improvement #1: | RESIDENTIAL | State Code: | 11 | 2860.0 sqft | Value: | $633,140 |
| Exterior Wall: | STUCCO | Heating/Cooling: | WARM & COOLED AIR | | Number of Bathrooms: | 2.5 | Number of Bedrooms: | 3 | | Plumbing: | 14 | Roof Covering: | COMP SHINGLE |
|
| | Type | Description | Class CD | Sub Class CD | Year Built | Area |
| | MA | Main Area | 1 | 50 | 2001 | 2860.0 |
| | SI1 | SITE IMPROVEMENT | 1 | 50 | 2001 | 5.5 |
| | ATG | Attached Garage | 1 | 50 | 2001 | 672.0 |
| | RPC | OPEN PORCH W/ROOF , CEILED | 1 | 50 | 2001 | 180.0 |
| | RPC | OPEN PORCH W/ROOF , CEILED | 1 | 50 | 2001 | 64.0 |
| | GFP | GAS FIREPLACE | 1 | 50 | 2001 | 1.0 |
Sketch
Property Image
Land
| 1 | RES 1 | Converted: Residential | 0.3774 | 16440.00 | 0.00 | 0.00 | 1.00 | $120,000 | $0 |
Roll Value History
| 2026 | N/A | N/A | N/A | N/A | N/A |
| 2025 | $584,090 | $183,470 | $0 | $767,560 | $767,560 |
| 2024 | $633,140 | $120,000 | $0 | $753,140 | $753,140 |
| 2023 | $633,140 | $120,000 | $0 | $753,140 | $753,140 |
| 2022 | $633,140 | $95,000 | $0 | $728,140 | $728,140 |
| 2021 | $527,620 | $95,000 | $0 | $622,620 | $622,620 |
| 2020 | $376,870 | $95,000 | $0 | $471,870 | $471,870 |
| 2019 | $376,870 | $95,000 | $0 | $471,870 | $471,870 |
| 2018 | $389,260 | $85,000 | $0 | $474,260 | $474,260 |
| 2017 | $353,870 | $85,000 | $0 | $438,870 | $438,870 |
| 2016 | $321,700 | $85,000 | $0 | $406,700 | $406,700 |
| 2015 | $321,700 | $85,000 | $0 | $406,700 | $406,700 |
| 2014 | $321,700 | $85,000 | $0 | $406,700 | $406,700 |
| 2013 | $321,700 | $85,000 | $0 | $406,700 | $406,700 |
| 2012 | $321,700 | $85,000 | $0 | $0 | $0 |
| 2011 | $321,700 | $85,000 | $0 | $0 | $0 |
| 2010 | $321,700 | $85,000 | $0 | $0 | $0 |
| 2009 | $345,300 | $85,000 | $0 | $0 | $0 |
| 2008 | $345,300 | $85,000 | $0 | $0 | $0 |
| 2007 | $336,100 | $70,000 | $0 | $0 | $0 |
Deed and Sales History
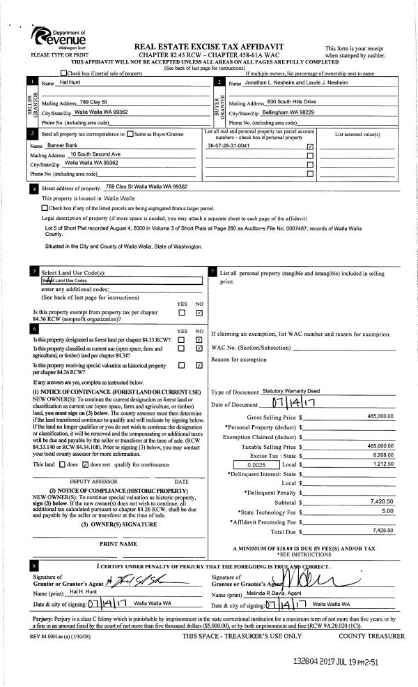
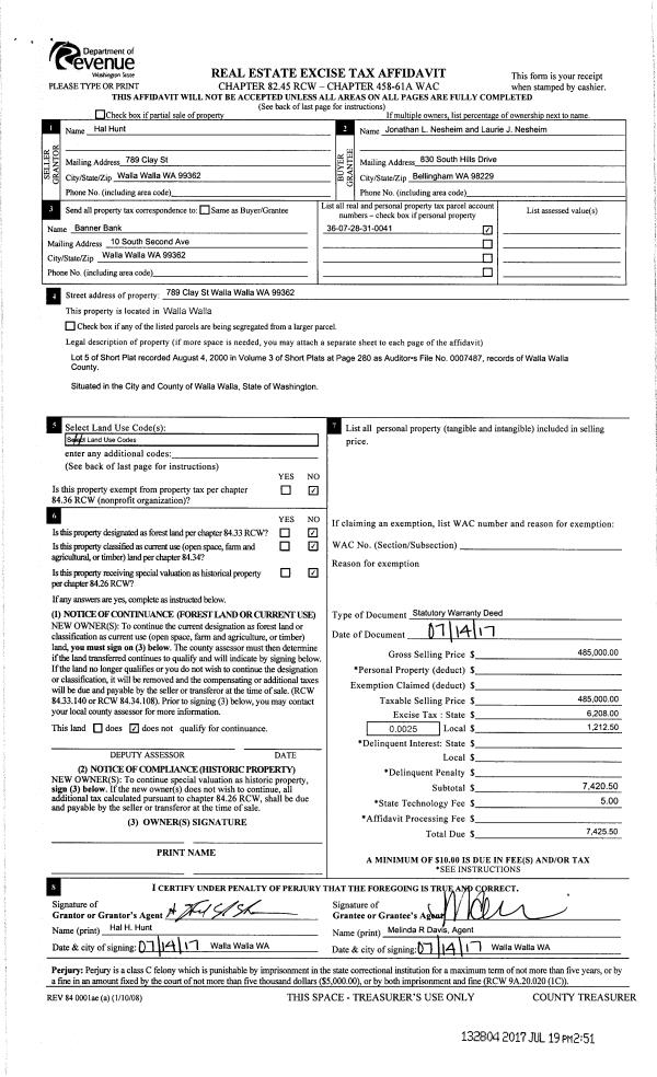
| 1 | 08/02/2023 | SWD | STATUTORY WARRANTY DEED | NESHEIM JONATHAN L & LAURIE J | HENDERSON SONJA R | | | $755,000.00 | 146257 | 2023-04392 |
| 2 | 07/19/2017 | SWD | STATUTORY WARRANTY DEED | HUNT HAL H | NESHEIM JONATHAN L & LAURIE J | | | $485,000.00 | 132804 | 2017-05523 |
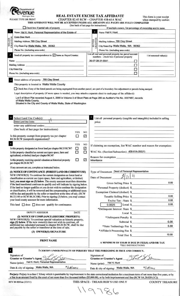
| 3 | 02/25/2011 | WARRANTY D | WARRANTY DEED | HUNT, CORA DEE ESTATE OF | HUNT, HAL H | | | | 119786 | 2011-01759 |
| 4 | 04/07/2003 | WARRANTY D | WARRANTY DEED | "SIEGEL, LARRY & CLAIRE" | ASHMORE ALAN H & SHERI R | | | | 94562 | 2003-04862 |
| 5 | 08/17/2001 | WARRANTY D | WARRANTY DEED | | | | | $75,000.00 | 97853 | 3180-108965 |
Payout Agreement
| No payout information available.. |