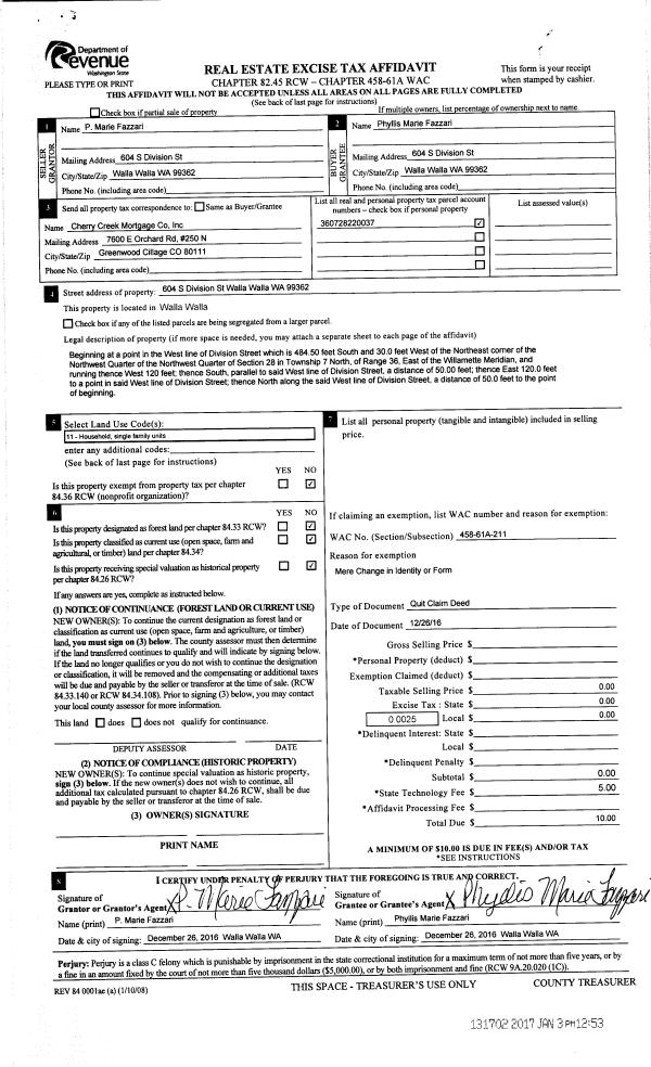
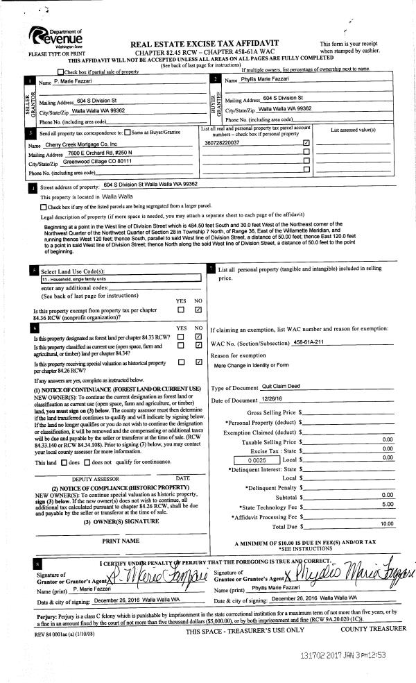
Property
Account |
| Property ID: | 9557 | Abbreviated Legal Description: | 28-7-36 TAX 98 |
| Parcel Number: | 360728220037 | Agent Code: | |
| Type: | Real | | |
| Tax Area: | 1 - OL-140-F | Land Use Code | 11 |
| Open Space: | N | DFL | N |
| Historic Property: | N | Remodel Property: | N |
| Multi-Family Redevelopment: | N | | |
| Township: | 7 | Section: | 28 |
| Range: | 36 |
Location |
| Address: | 604 S DIVISION ST WA 99362 | Mapsco: | |
| Neighborhood: | G Res | Map ID: | |
| Neighborhood CD: | 614011 |
Owner |
| Name: | NIKITIN TIMOFEY | Owner ID: | 64000 |
| Mailing Address: | 604 S DIVISION ST WALLA WALLA, WA 99362 | % Ownership: | 100.0000000000% |
| | | Exemptions: | |
Taxes and Assessment Details
Property Tax Information as of
02/21/2026
Click on "Statement Details" to expand or collapse a tax statement.
* Please enter a valid date ** Please enter a valid date *
Statement Details |
| | TOTAL: | $0.00 | $0.00 | $0.00 | $0.00 | $0.00 | $0.00 |
|
| | $0.00 | $0.00 | $0.00 | $0.00 | $0.00 | $0.00 |
Values
| (+) Improvement Homesite Value: | + | $0 | |
| (+) Improvement Non-Homesite Value: | + | $264,140 | |
| (+) Land Homesite Value: | + | $0 | |
| (+) Land Non-Homesite Value: | + | $70,000 | |
| (+) Curr Use (HS): | + | $0 | $0 |
| (+) Curr Use (NHS): | + | $0 | $0 |
| | | -------------------------- | |
| (=) Market Value: | = | $334,140 | |
| (–) Productivity Loss: | – | $0 | |
| | | -------------------------- | |
| (=) Subtotal: | = | $334,140 | |
| (+) Senior Appraised Value: | + | $0 | |
| (+) Non-Senior Appraised Value: | + | $334,140 | |
| | | -------------------------- | |
| (=) Total Appraised Value: | = | $334,140 | |
| (–) Senior Exemption Loss: | – | $0 | |
| (–) Exemption Loss: | – | $0 | |
| | | -------------------------- | |
| (=) Taxable Value: | = | $334,140 | |
Taxing Jurisdiction
| Owner: | NIKITIN TIMOFEY | | |
| % Ownership: | 100.0000000000% | | |
| Total Value: | $334,140 | | |
| Tax Area: | 1 - OL-140-F |
| CERFD | CURRENT EXPENSE REFUND 010 | 0.0000000000 | $334,140 | $334,140 | $0.00 | | |
| CURREXP | CURRENT EXPENSE 010 | 1.0175366760 | $334,140 | $334,140 | $340.00 | | |
| HUMNSERV | HUMAN SERVICES 119 | 0.0250000000 | $334,140 | $334,140 | $8.35 | | |
| SLDREL | SOLDIERS RELIEF 121 | 0.0155990005 | $334,140 | $334,140 | $5.21 | | |
| EMERGSER | EMS 147 | 0.3792580840 | $334,140 | $334,140 | $126.73 | | |
| EMSRFD | EMS REFUND 147 | 0.0000000000 | $334,140 | $334,140 | $0.00 | | |
| PORTRFD | PORT REFUND 640 | 0.0000000000 | $334,140 | $334,140 | $0.00 | | |
| PORTWWGEN | PORT OF WW 640 | 0.2460186015 | $334,140 | $334,140 | $82.20 | | |
| SD140BOND | SD #140 BOND 764 | 0.8342371393 | $334,140 | $334,140 | $278.75 | | |
| SD140GEN | SD #140 GENERAL 760 | 2.0646500647 | $334,140 | $334,140 | $689.88 | | |
| ST2 | STATE SCHOOL PART 2 600 | 0.8131451643 | $334,140 | $334,140 | $271.70 | | |
| STATESCHL | STATE SCHOOL 600 | 1.5158548041 | $334,140 | $334,140 | $506.51 | | |
| STREFUND | STATE REFUND LEVY 603 | 0.0000000000 | $334,140 | $334,140 | $0.00 | | |
| CWWBOND | C OF WW BOND 643 | 0.2760494372 | $334,140 | $334,140 | $92.24 | | |
| CWWGEN | CITY OF WW 631 | 1.6100204973 | $334,140 | $334,140 | $537.97 | | |
| CWWRFD | CITY OF WALLA WALLA REFUND 631 | 0.0000000000 | $334,140 | $334,140 | $0.00 | | |
| | Total Tax Rate: | 8.7973694689 | | | | | |
| | | | | Taxes w/Current Exemptions: | $2,939.54 | | |
| | | | | Taxes w/o Exemptions: | $2,939.54 | | |
Improvement / Building
| Improvement #1: | RESIDENTIAL | State Code: | 11 | 1434.0 sqft | Value: | $264,140 |
| Exterior Wall: | SIDING | Heating/Cooling: | BASEBOARD ELECTRIC | | Number of Bathrooms: | 2 | Number of Bedrooms: | 2 | | Plumbing: | 10 | Roof Covering: | COMP SHINGLE |
|
| | Type | Description | Class CD | Sub Class CD | Year Built | Area |
| | MA | Main Area | 1 | 30 | 1910 | 1434.0 |
| | SI1 | SITE IMPROVEMENT | 1 | 30 | 1910 | 1.0 |
| | S1F | Single One Story Fireplace | 1 | 30 | 1910 | 2.0 |
| | RPO | OPEN PORCH W/ROOF | 1 | 30 | 1910 | 70.0 |
| | DTG | Detached Garage | 1 | 30 | 1910 | 440.0 |
Sketch
Property Image
Land
| 1 | RES 1 | Converted: Residential | 0.1377 | 6000.00 | 0.00 | 0.00 | 1.00 | $70,000 | $0 |
Roll Value History
| 2026 | N/A | N/A | N/A | N/A | N/A |
| 2025 | $240,280 | $72,000 | $0 | $312,280 | $312,280 |
| 2024 | $264,140 | $70,000 | $0 | $334,140 | $334,140 |
| 2023 | $264,140 | $70,000 | $0 | $334,140 | $334,140 |
| 2022 | $251,560 | $55,000 | $0 | $306,560 | $306,560 |
| 2021 | $173,490 | $55,000 | $0 | $228,490 | $228,490 |
| 2020 | $123,920 | $55,000 | $0 | $178,920 | $178,920 |
| 2019 | $123,920 | $55,000 | $0 | $178,920 | $178,920 |
| 2018 | $126,880 | $36,000 | $0 | $162,880 | $162,880 |
| 2017 | $105,740 | $36,000 | $0 | $141,740 | $141,740 |
| 2016 | $105,740 | $36,000 | $0 | $141,740 | $141,740 |
| 2015 | $105,740 | $36,000 | $0 | $141,740 | $141,740 |
| 2014 | $100,700 | $36,000 | $0 | $136,700 | $136,700 |
| 2013 | $100,700 | $36,000 | $0 | $136,700 | $136,700 |
| 2012 | $100,700 | $36,000 | $0 | $0 | $0 |
| 2011 | $100,700 | $36,000 | $0 | $0 | $0 |
| 2010 | $89,400 | $36,000 | $0 | $0 | $0 |
| 2009 | $103,300 | $36,000 | $0 | $0 | $0 |
| 2008 | $103,300 | $36,000 | $0 | $0 | $0 |
| 2007 | $69,400 | $18,000 | $0 | $0 | $0 |
Deed and Sales History
| 1 | 09/24/2018 | SWD | STATUTORY WARRANTY DEED | FAZZARI PHYLLIS MARIE | NIKITIN TIMOFEY | | | $180,000.00 | 135601 | 2018-07923 |
| 2 | 12/26/2016 | QCD | QUIT CLAIM DEED | FAZZARI P MARIE | FAZZARI PHYLLIS MARIE | | | $0.00 | 131702 | 2017-00018 |
| 3 | 06/26/1998 | WARRANTY D | WARRANTY DEED | | | | | $64,000.00 | 90700 | 2699-807161 |
Payout Agreement
| No payout information available.. |