Property
Account |
| Property ID: | 9542 | Abbreviated Legal Description: | AUTUMN MEADOWS LT 9 BLK 2 |
| Parcel Number: | 350736970209 | Agent Code: | |
| Type: | Real | | |
| Tax Area: | 77 - CP-250-F | Land Use Code | 11 |
| Open Space: | N | DFL | N |
| Historic Property: | N | Remodel Property: | N |
| Multi-Family Redevelopment: | N | | |
| Township: | 7 | Section: | 36 |
| Range: | 35 |
Location |
| Address: | 1342 SE NEWGATE DR WA 99324 | Mapsco: | |
| Neighborhood: | A SFR | Map ID: | |
| Neighborhood CD: | 113011 |
Owner |
| Name: | SCHERMANN HEATHER M | Owner ID: | 64021 |
| Mailing Address: | 1342 SE NEWGATE DR COLLEGE PLACE, WA 99324 | % Ownership: | 100.0000000000% |
| | | Exemptions: | |
Taxes and Assessment Details
Values
| (+) Improvement Homesite Value: | + | N/A | |
| (+) Improvement Non-Homesite Value: | + | N/A | |
| (+) Land Homesite Value: | + | N/A | |
| (+) Land Non-Homesite Value: | + | N/A | Ag / Timber Use Value |
| (+) Curr Use (HS): | + | N/A | N/A |
| (+) Curr Use (NHS): | + | N/A | N/A |
| | | -------------------------- | |
| (=) Market Value: | = | N/A | |
| (–) Productivity Loss: | – | N/A | |
| | | -------------------------- | |
| (=) Subtotal: | = | N/A | |
| (+) Senior Appraised Value: | + | N/A | |
| (+) Non-Senior Appraised Value: | + | N/A | |
| | | -------------------------- | |
| (=) Total Appraised Value: | = | N/A | |
| (–) Senior Exemption Loss: | – | N/A | |
| (–) Exemption Loss: | – | N/A | |
| | | -------------------------- | |
| (=) Taxable Value: | = | N/A | |
Taxing Jurisdiction
| Owner: | SCHERMANN HEATHER M | | |
| % Ownership: | 100.0000000000% | | |
| Total Value: | N/A | | |
| Tax Area: | 77 - CP-250-F |
| CERFD | CURRENT EXPENSE REFUND 010 | N/A | N/A | N/A | N/A | | |
| CURREXP | CURRENT EXPENSE 010 | N/A | N/A | N/A | N/A | | |
| HUMNSERV | HUMAN SERVICES 119 | N/A | N/A | N/A | N/A | | |
| SLDREL | SOLDIERS RELIEF 121 | N/A | N/A | N/A | N/A | | |
| COLLPLBOND | C OF CP BOND 644 | N/A | N/A | N/A | N/A | | |
| COLLPLGEN | CITY OF CP 632 | N/A | N/A | N/A | N/A | | |
| EMERGSER | EMS 147 | N/A | N/A | N/A | N/A | | |
| EMSRFD | EMS REFUND 147 | N/A | N/A | N/A | N/A | | |
| PORTRFD | PORT REFUND 640 | N/A | N/A | N/A | N/A | | |
| PORTWWGEN | PORT OF WW 640 | N/A | N/A | N/A | N/A | | |
| SD250BOND | SD #250 BOND 773 | N/A | N/A | N/A | N/A | | |
| SD250GEN | SD #250 GENERAL 770 | N/A | N/A | N/A | N/A | | |
| ST2 | STATE SCHOOL PART 2 600 | N/A | N/A | N/A | N/A | | |
| STATESCHL | STATE SCHOOL 600 | N/A | N/A | N/A | N/A | | |
| STREFUND | STATE REFUND LEVY 603 | N/A | N/A | N/A | N/A | | |
| | Total Tax Rate: | N/A | | | | | |
| | | | | Taxes w/Current Exemptions: | N/A | | |
| | | | | Taxes w/o Exemptions: | N/A | | |
Improvement / Building
| Improvement #1: | RESIDENTIAL | State Code: | 11 | 1032.0 sqft | Value: | N/A |
| Exterior Wall: | PLYWOOD | Heating/Cooling: | WARM & COOLED AIR | | Number of Bathrooms: | 2 | Number of Bedrooms: | 3 | | Plumbing: | 9 | Roof Covering: | COMP SHINGLE |
|
| | Type | Description | Class CD | Sub Class CD | Year Built | Area |
| | MA | Main Area | 1 | 30 | 2003 | 1032.0 |
| | SI1 | SITE IMPROVEMENT | 1 | 30 | 2003 | 1.5 |
| | ATG | Attached Garage | 1 | 30 | 2003 | 400.0 |
| | RPC | OPEN PORCH W/ROOF , CEILED | 1 | 30 | 2003 | 24.0 |
| | CPC | COVERED CARPORT/PATIO | 1 | 30 | 2003 | 364.0 |
Sketch
Property Image
Land
| 1 | RES 1 | Converted: Residential | 0.1148 | 5000.00 | 0.00 | 0.00 | 1.00 | N/A | N/A |
Roll Value History
| 2026 | N/A | N/A | N/A | N/A | N/A |
| 2025 | $191,430 | $125,000 | $0 | $316,430 | $316,430 |
| 2024 | $242,320 | $70,000 | $0 | $312,320 | $312,320 |
| 2023 | $242,320 | $70,000 | $0 | $312,320 | $312,320 |
| 2022 | $210,710 | $70,000 | $0 | $280,710 | $280,710 |
| 2021 | $168,570 | $70,000 | $0 | $238,570 | $238,570 |
| 2020 | $112,380 | $70,000 | $0 | $182,380 | $182,380 |
| 2019 | $127,380 | $55,000 | $0 | $182,380 | $182,380 |
| 2018 | $110,760 | $55,000 | $0 | $165,760 | $165,760 |
| 2017 | $105,490 | $55,000 | $0 | $160,490 | $160,490 |
| 2016 | $91,730 | $55,000 | $0 | $146,730 | $146,730 |
| 2015 | $87,360 | $55,000 | $0 | $142,360 | $142,360 |
| 2014 | $72,800 | $55,000 | $0 | $127,800 | $127,800 |
| 2013 | $72,800 | $55,000 | $0 | $127,800 | $127,800 |
| 2012 | $87,000 | $55,000 | $0 | $0 | $0 |
| 2011 | $94,500 | $55,000 | $0 | $0 | $0 |
| 2010 | $94,500 | $55,000 | $0 | $0 | $0 |
| 2009 | $111,100 | $55,000 | $0 | $0 | $0 |
| 2008 | $76,200 | $30,000 | $0 | $0 | $0 |
| 2007 | $76,200 | $30,000 | $0 | $0 | $0 |
Deed and Sales History
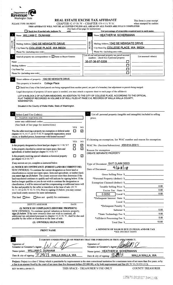
| 1 | 09/28/2018 | QCD | QUIT CLAIM DEED | DUNHAM WILLIAM C | SCHERMANN HEATHER M | | | $0.00 | 135678 | 2018-08233 |
| 2 | 05/08/2014 | SWD | STATUTORY WARRANTY DEED | CASEY KAREN J | DUNHAM WILLIAM C | | | $155,000.00 | 125851 | 2014-03147 |
| 3 | 02/23/2009 | QCD | QUIT CLAIM DEED | CASEY, MICHAEL L | CASEY, KAREN J | | | | 116359 | 2009-01669 |
| 4 | 10/04/2002 | WARRANTY D | WARRANTY DEED | HAYDEN ENTERPRISES INC | PRICE, KAREN J | | | $105,715.00 | 100518 | 2002-11187 |
| 5 | 06/14/2001 | WARRANTY D | WARRANTY DEED | | | | | $483,000.00 | 97375 | 3140-106223 |
|   | |
Payout Agreement
| No payout information available.. |