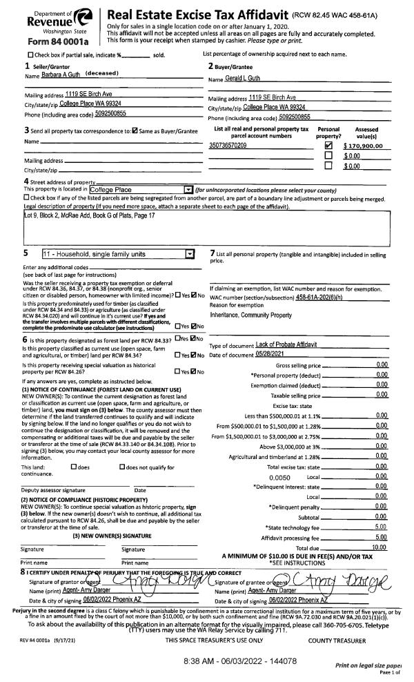
Property
Account |
| Property ID: | 9532 | Abbreviated Legal Description: | MCRAE LOT 9 BLK 2 |
| Parcel Number: | 350736570209 | Agent Code: | |
| Type: | Real | | |
| Tax Area: | 75 - CP 250 | Land Use Code | 11 |
| Open Space: | N | DFL | N |
| Historic Property: | N | Remodel Property: | N |
| Multi-Family Redevelopment: | N | | |
| Township: | 7 | Section: | 36 |
| Range: | 35 |
Location |
| Address: | 1119 SE BIRCH AVE WA 99324 | Mapsco: | |
| Neighborhood: | A SFR | Map ID: | |
| Neighborhood CD: | 113011 |
Owner |
| Name: | GUTH GERALD L | Owner ID: | 71776 |
| Mailing Address: | 1119 SE BIRCH AVE COLLEGE PLACE, WA 99324 | % Ownership: | 100.0000000000% |
| | | Exemptions: | |
Taxes and Assessment Details
Values
| (+) Improvement Homesite Value: | + | $0 | |
| (+) Improvement Non-Homesite Value: | + | $139,720 | |
| (+) Land Homesite Value: | + | $0 | |
| (+) Land Non-Homesite Value: | + | $43,880 | |
| (+) Curr Use (HS): | + | $0 | $0 |
| (+) Curr Use (NHS): | + | $0 | $0 |
| | | -------------------------- | |
| (=) Market Value: | = | $183,600 | |
| (–) Productivity Loss: | – | $0 | |
| | | -------------------------- | |
| (=) Subtotal: | = | $183,600 | |
| (+) Senior Appraised Value: | + | $0 | |
| (+) Non-Senior Appraised Value: | + | $183,600 | |
| | | -------------------------- | |
| (=) Total Appraised Value: | = | $183,600 | |
| (–) Senior Exemption Loss: | – | $0 | |
| (–) Exemption Loss: | – | $0 | |
| | | -------------------------- | |
| (=) Taxable Value: | = | $183,600 | |
Taxing Jurisdiction
| Owner: | GUTH GERALD L | | |
| % Ownership: | 100.0000000000% | | |
| Total Value: | $183,600 | | |
| Tax Area: | 75 - CP 250 |
| CERFD | CURRENT EXPENSE REFUND 010 | 0.0000000000 | $183,600 | $183,600 | $0.00 | | |
| CURREXP | CURRENT EXPENSE 010 | 1.0175366760 | $183,600 | $183,600 | $186.82 | | |
| HUMNSERV | HUMAN SERVICES 119 | 0.0250000000 | $183,600 | $183,600 | $4.59 | | |
| SLDREL | SOLDIERS RELIEF 121 | 0.0155990005 | $183,600 | $183,600 | $2.86 | | |
| COLLPLBOND | C OF CP BOND 644 | 0.4374241808 | $183,600 | $183,600 | $80.31 | | |
| COLLPLGEN | CITY OF CP 632 | 1.4453819216 | $183,600 | $183,600 | $265.37 | | |
| EMERGSER | EMS 147 | 0.3792580840 | $183,600 | $183,600 | $69.63 | | |
| EMSRFD | EMS REFUND 147 | 0.0000000000 | $183,600 | $183,600 | $0.00 | | |
| RURALLIB | RURAL LIBRARY 623 | 0.3710609029 | $183,600 | $183,600 | $68.13 | | |
| PORTRFD | PORT REFUND 640 | 0.0000000000 | $183,600 | $183,600 | $0.00 | | |
| PORTWWGEN | PORT OF WW 640 | 0.2460186015 | $183,600 | $183,600 | $45.17 | | |
| SD250BOND | SD #250 BOND 773 | 1.4560608159 | $183,600 | $183,600 | $267.33 | | |
| SD250GEN | SD #250 GENERAL 770 | 2.3880724087 | $183,600 | $183,600 | $438.45 | | |
| ST2 | STATE SCHOOL PART 2 600 | 0.8131451643 | $183,600 | $183,600 | $149.29 | | |
| STATESCHL | STATE SCHOOL 600 | 1.5158548041 | $183,600 | $183,600 | $278.31 | | |
| STREFUND | STATE REFUND LEVY 603 | 0.0000000000 | $183,600 | $183,600 | $0.00 | | |
| | Total Tax Rate: | 10.1104125603 | | | | | |
| | | | | Taxes w/Current Exemptions: | $1,856.26 | | |
| | | | | Taxes w/o Exemptions: | $1,856.26 | | |
Improvement / Building
| Improvement #1: | RESIDENTIAL | State Code: | 11 | 1092.0 sqft | Value: | $139,720 |
| Exterior Wall: | PLYWOOD | Heating/Cooling: | BASEBOARD ELECTRIC | | Number of Bathrooms: | 2 | Number of Bedrooms: | 4 | | Plumbing: | 8 | Roof Covering: | BUILT-UP ROCK |
|
| | Type | Description | Class CD | Sub Class CD | Year Built | Area |
| | MA | Main Area | 1 | 25 | 1962 | 1092.0 |
| | SI1 | SITE IMPROVEMENT | 1 | 25 | 1962 | 1.0 |
| | RPO | OPEN PORCH W/ROOF | 1 | 25 | 1962 | 192.0 |
| | CPCS | CARPORT/SHED OR FLAT ROOF | 1 | 25 | 1962 | 312.0 |
Sketch
Property Image
Land
| 1 | RES 1 | Converted: Residential | 0.1492 | 6500.00 | 0.00 | 0.00 | 1.00 | $43,880 | $0 |
Roll Value History
| 2026 | N/A | N/A | N/A | N/A | N/A |
| 2025 | $125,750 | $65,000 | $0 | $190,750 | $190,750 |
| 2024 | $139,720 | $43,880 | $0 | $183,600 | $183,600 |
| 2023 | $139,720 | $43,880 | $0 | $183,600 | $183,600 |
| 2022 | $139,720 | $43,880 | $0 | $183,600 | $183,600 |
| 2021 | $127,020 | $43,880 | $0 | $170,900 | $170,900 |
| 2020 | $87,600 | $43,880 | $0 | $131,480 | $131,480 |
| 2019 | $92,480 | $39,000 | $0 | $131,480 | $131,480 |
| 2018 | $77,070 | $39,000 | $0 | $116,070 | $116,070 |
| 2017 | $77,070 | $39,000 | $0 | $116,070 | $116,070 |
| 2016 | $73,400 | $39,000 | $0 | $112,400 | $112,400 |
| 2015 | $69,900 | $39,000 | $0 | $108,900 | $108,900 |
| 2014 | $69,900 | $39,000 | $0 | $108,900 | $108,900 |
| 2013 | $69,900 | $39,000 | $0 | $108,900 | $108,900 |
| 2012 | $69,900 | $39,000 | $0 | $0 | $0 |
| 2011 | $69,900 | $39,000 | $0 | $0 | $0 |
| 2010 | $69,900 | $39,000 | $0 | $0 | $0 |
| 2009 | $82,000 | $39,000 | $0 | $0 | $0 |
| 2008 | $66,000 | $19,500 | $0 | $0 | $0 |
| 2007 | $66,000 | $19,500 | $0 | $0 | $0 |
Deed and Sales History
| 1 | 06/03/2021 | LOPA | LACK OF PROBATE AFFIDAVIT | GUTH GERALD L & BARBARA A | GUTH GERALD L | | | $0.00 | 144078 | 2022-04751 |
| 2 | 05/17/2004 | WARRANTY D | WARRANTY DEED | PETERSON, RULENE E | GUTH, GERALD L & BARBARA A | | | $95,000.00 | 104772 | 2004-05278 |
| 3 | 07/20/1978 | WARRANTY D | WARRANTY DEED | | | | | $35,250.00 | 0 | 1909-105047 |
Payout Agreement
| No payout information available.. |