Property
Account |
| Property ID: | 9515 | Abbreviated Legal Description: | 28-7-36 TAX 37 |
| Parcel Number: | 360728220015 | Agent Code: | |
| Type: | Real | | |
| Tax Area: | 1 - OL-140-F | Land Use Code | 11 |
| Open Space: | N | DFL | N |
| Historic Property: | N | Remodel Property: | N |
| Multi-Family Redevelopment: | N | | |
| Township: | 7 | Section: | 28 |
| Range: | 36 |
Location |
| Address: | 728 WHITMAN ST WA 99362 | Mapsco: | |
| Neighborhood: | G Res | Map ID: | |
| Neighborhood CD: | 614011 |
Owner |
| Name: | REMINGTON BENJAMIN A | Owner ID: | 56659 |
| Mailing Address: | MARIA EULALIA REMINGTON 728 WHITMAN ST WALLA WALLA, WA 99362 | % Ownership: | 100.0000000000% |
| | | Exemptions: | |
Taxes and Assessment Details
Property Tax Information as of
02/21/2026
Click on "Statement Details" to expand or collapse a tax statement.
* Please enter a valid date ** Please enter a valid date *
Statement Details |
| | TOTAL: | $0.00 | $0.00 | $0.00 | $0.00 | $0.00 | $0.00 |
|
| | $0.00 | $0.00 | $0.00 | $0.00 | $0.00 | $0.00 |
Values
| (+) Improvement Homesite Value: | + | $0 | |
| (+) Improvement Non-Homesite Value: | + | $500,150 | |
| (+) Land Homesite Value: | + | $0 | |
| (+) Land Non-Homesite Value: | + | $126,430 | |
| (+) Curr Use (HS): | + | $0 | $0 |
| (+) Curr Use (NHS): | + | $0 | $0 |
| | | -------------------------- | |
| (=) Market Value: | = | $626,580 | |
| (–) Productivity Loss: | – | $0 | |
| | | -------------------------- | |
| (=) Subtotal: | = | $626,580 | |
| (+) Senior Appraised Value: | + | $0 | |
| (+) Non-Senior Appraised Value: | + | $626,580 | |
| | | -------------------------- | |
| (=) Total Appraised Value: | = | $626,580 | |
| (–) Senior Exemption Loss: | – | $0 | |
| (–) Exemption Loss: | – | $0 | |
| | | -------------------------- | |
| (=) Taxable Value: | = | $626,580 | |
Taxing Jurisdiction
| Owner: | REMINGTON BENJAMIN A | | |
| % Ownership: | 100.0000000000% | | |
| Total Value: | $626,580 | | |
| Tax Area: | 1 - OL-140-F |
| CERFD | CURRENT EXPENSE REFUND 010 | 0.0000000000 | $626,580 | $626,580 | $0.00 | | |
| CURREXP | CURRENT EXPENSE 010 | 1.0175366760 | $626,580 | $626,580 | $637.57 | | |
| HUMNSERV | HUMAN SERVICES 119 | 0.0250000000 | $626,580 | $626,580 | $15.66 | | |
| SLDREL | SOLDIERS RELIEF 121 | 0.0155990005 | $626,580 | $626,580 | $9.77 | | |
| EMERGSER | EMS 147 | 0.3792580840 | $626,580 | $626,580 | $237.64 | | |
| EMSRFD | EMS REFUND 147 | 0.0000000000 | $626,580 | $626,580 | $0.00 | | |
| PORTRFD | PORT REFUND 640 | 0.0000000000 | $626,580 | $626,580 | $0.00 | | |
| PORTWWGEN | PORT OF WW 640 | 0.2460186015 | $626,580 | $626,580 | $154.15 | | |
| SD140BOND | SD #140 BOND 764 | 0.8342371393 | $626,580 | $626,580 | $522.72 | | |
| SD140GEN | SD #140 GENERAL 760 | 2.0646500647 | $626,580 | $626,580 | $1,293.67 | | |
| ST2 | STATE SCHOOL PART 2 600 | 0.8131451643 | $626,580 | $626,580 | $509.50 | | |
| STATESCHL | STATE SCHOOL 600 | 1.5158548041 | $626,580 | $626,580 | $949.80 | | |
| STREFUND | STATE REFUND LEVY 603 | 0.0000000000 | $626,580 | $626,580 | $0.00 | | |
| CWWBOND | C OF WW BOND 643 | 0.2760494372 | $626,580 | $626,580 | $172.97 | | |
| CWWGEN | CITY OF WW 631 | 1.6100204973 | $626,580 | $626,580 | $1,008.81 | | |
| CWWRFD | CITY OF WALLA WALLA REFUND 631 | 0.0000000000 | $626,580 | $626,580 | $0.00 | | |
| | Total Tax Rate: | 8.7973694689 | | | | | |
| | | | | Taxes w/Current Exemptions: | $5,512.26 | | |
| | | | | Taxes w/o Exemptions: | $5,512.26 | | |
Improvement / Building
| Improvement #1: | RESIDENTIAL | State Code: | 11 | 2287.0 sqft | Value: | $500,150 |
| Exterior Wall: | VINYL | Heating/Cooling: | WARM & COOLED AIR | | Number of Bathrooms: | 2 | Number of Bedrooms: | 4 | | Plumbing: | 10 | Roof Covering: | COMP SHINGLE |
|
| | Type | Description | Class CD | Sub Class CD | Year Built | Area |
| | MA | Main Area | 2 | 40 | 1905 | 2287.0 |
| | UPFL | Upper Floor (included in main area) | 2 | 40 | 1905 | 1036.0 |
| | SI1 | SITE IMPROVEMENT | 2 | 40 | 1905 | 2.5 |
| | BASE | BASEMENT | 2 | 40 | 1905 | 623.0 |
| | SMP | SWIMMING POOL | 2 | 40 | 1905 | 1.0 |
| | CPC | COVERED CARPORT/PATIO | 2 | 40 | 1905 | 255.0 |
| | RCD | WOOD DECK W/ROOF, CEILED | 2 | 40 | 1905 | 359.0 |
Sketch
Property Image
Land
| 1 | RES 1 | Converted: Residential | 0.4300 | 18731.00 | 0.00 | 0.00 | 1.00 | $126,430 | $0 |
Roll Value History
| 2026 | N/A | N/A | N/A | N/A | N/A |
| 2025 | $482,840 | $149,470 | $0 | $632,310 | $632,310 |
| 2024 | $500,150 | $126,430 | $0 | $626,580 | $626,580 |
| 2023 | $500,150 | $126,430 | $0 | $626,580 | $626,580 |
| 2022 | $500,150 | $103,580 | $0 | $603,730 | $603,730 |
| 2021 | $434,920 | $103,580 | $0 | $538,500 | $538,500 |
| 2020 | $241,620 | $103,580 | $0 | $345,200 | $345,200 |
| 2019 | $241,620 | $103,580 | $0 | $345,200 | $345,200 |
| 2018 | $246,850 | $54,500 | $0 | $301,350 | $301,350 |
| 2017 | $189,880 | $54,500 | $0 | $244,380 | $244,380 |
| 2016 | $189,880 | $54,500 | $0 | $244,380 | $244,380 |
| 2015 | $158,240 | $54,500 | $0 | $212,740 | $212,740 |
| 2014 | $150,700 | $54,500 | $0 | $205,200 | $205,200 |
| 2013 | $150,700 | $54,500 | $0 | $205,200 | $205,200 |
| 2012 | $132,000 | $54,500 | $0 | $0 | $0 |
| 2011 | $132,000 | $54,500 | $0 | $0 | $0 |
| 2010 | $132,000 | $54,500 | $0 | $0 | $0 |
| 2009 | $152,700 | $54,500 | $0 | $0 | $0 |
| 2008 | $152,700 | $54,500 | $0 | $0 | $0 |
| 2007 | $102,700 | $32,000 | $0 | $0 | $0 |
Deed and Sales History
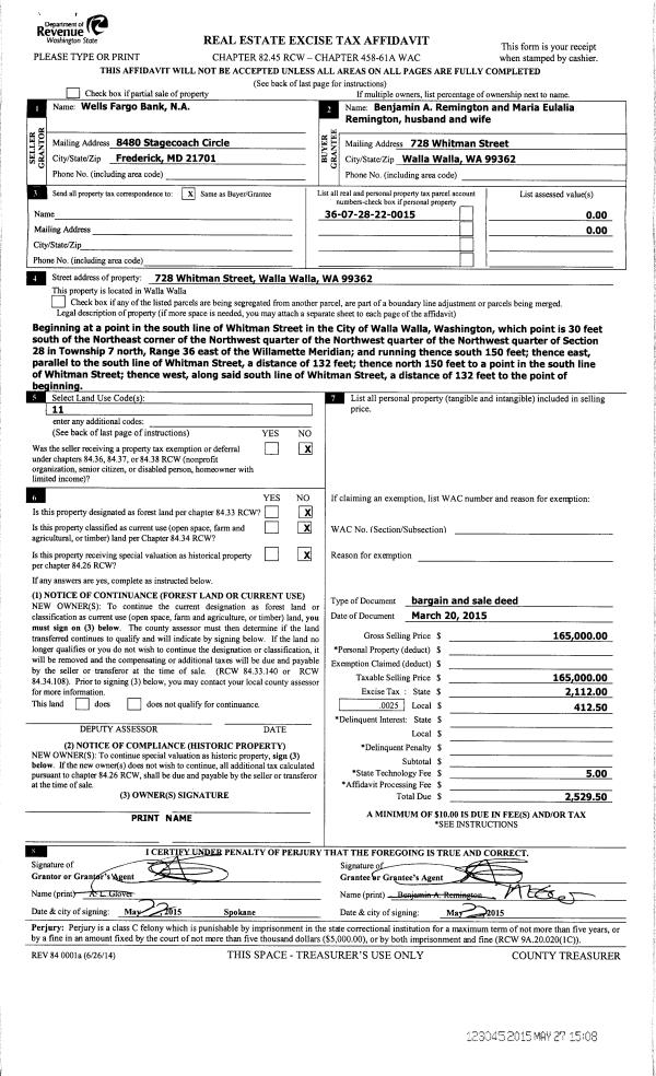
| 1 | 05/27/2015 | BARGAIN & | BARGAIN & SALE DEED | WELLS FARGO BANK NA CUSTOMER SERVICE | REMINGTON BENJAMIN A | | | $165,000.00 | 128045 | 2015-04473 |
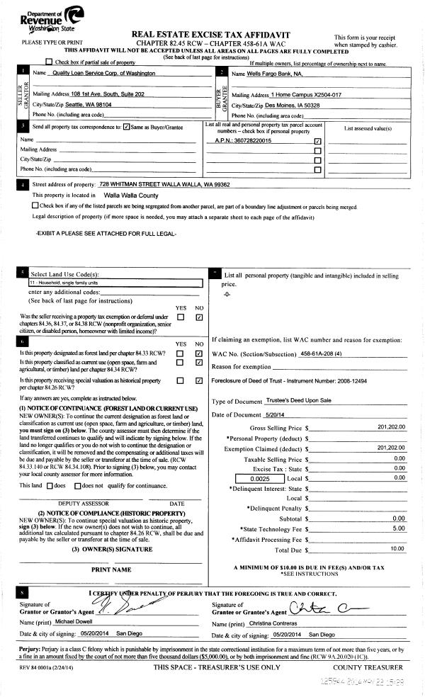
| 2 | 05/22/2014 | TRUSTEES D | TRUSTEE'S DEED | YOUD JOHN D & KRISTI L | WELLS FARGO BANK NA CUSTOMER SERVICE | | | $201,202.00 | 125944 | 2014-03489 |
| 3 | 09/08/1988 | WARRANTY D | WARRANTY DEED | | | | | $55,200.00 | 0 | 1728-806017 |
Payout Agreement
| No payout information available.. |