Property
Account |
| Property ID: | 9513 | Abbreviated Legal Description: | 28-7-36 TAX 36 |
| Parcel Number: | 360728220013 | Agent Code: | |
| Type: | Real | | |
| Tax Area: | 1 - OL-140-F | Land Use Code | 91 |
| Open Space: | N | DFL | N |
| Historic Property: | N | Remodel Property: | N |
| Multi-Family Redevelopment: | N | | |
| Township: | 7 | Section: | 28 |
| Range: | 36 |
Location |
| Address: | 714 WHITMAN ST WALLA WALLA, WA 99362 | Mapsco: | |
| Neighborhood: | G Res Land Only | Map ID: | |
| Neighborhood CD: | 614091 |
Owner |
| Name: | VU MINH N | Owner ID: | 8000 |
| Mailing Address: | 605 CRAIG ST WALLA WALLA, WA 99362 | % Ownership: | 100.0000000000% |
| | | Exemptions: | |
Taxes and Assessment Details
Values
| (+) Improvement Homesite Value: | + | $0 | |
| (+) Improvement Non-Homesite Value: | + | $0 | |
| (+) Land Homesite Value: | + | $120,410 | |
| (+) Land Non-Homesite Value: | + | $0 | |
| (+) Curr Use (HS): | + | $0 | $0 |
| (+) Curr Use (NHS): | + | $0 | $0 |
| | | -------------------------- | |
| (=) Market Value: | = | $120,410 | |
| (–) Productivity Loss: | – | $0 | |
| | | -------------------------- | |
| (=) Subtotal: | = | $120,410 | |
| (+) Senior Appraised Value: | + | $0 | |
| (+) Non-Senior Appraised Value: | + | $120,410 | |
| | | -------------------------- | |
| (=) Total Appraised Value: | = | $120,410 | |
| (–) Senior Exemption Loss: | – | $0 | |
| (–) Exemption Loss: | – | $0 | |
| | | -------------------------- | |
| (=) Taxable Value: | = | $120,410 | |
Taxing Jurisdiction
| Owner: | VU MINH N | | |
| % Ownership: | 100.0000000000% | | |
| Total Value: | $120,410 | | |
| Tax Area: | 1 - OL-140-F |
| CERFD | CURRENT EXPENSE REFUND 010 | 0.0000000000 | $120,410 | $120,410 | $0.00 | | |
| CURREXP | CURRENT EXPENSE 010 | 1.0175366760 | $120,410 | $120,410 | $122.52 | | |
| HUMNSERV | HUMAN SERVICES 119 | 0.0250000000 | $120,410 | $120,410 | $3.01 | | |
| SLDREL | SOLDIERS RELIEF 121 | 0.0155990005 | $120,410 | $120,410 | $1.88 | | |
| EMERGSER | EMS 147 | 0.3792580840 | $120,410 | $120,410 | $45.67 | | |
| EMSRFD | EMS REFUND 147 | 0.0000000000 | $120,410 | $120,410 | $0.00 | | |
| PORTRFD | PORT REFUND 640 | 0.0000000000 | $120,410 | $120,410 | $0.00 | | |
| PORTWWGEN | PORT OF WW 640 | 0.2460186015 | $120,410 | $120,410 | $29.62 | | |
| SD140BOND | SD #140 BOND 764 | 0.8342371393 | $120,410 | $120,410 | $100.45 | | |
| SD140GEN | SD #140 GENERAL 760 | 2.0646500647 | $120,410 | $120,410 | $248.60 | | |
| ST2 | STATE SCHOOL PART 2 600 | 0.8131451643 | $120,410 | $120,410 | $97.91 | | |
| STATESCHL | STATE SCHOOL 600 | 1.5158548041 | $120,410 | $120,410 | $182.52 | | |
| STREFUND | STATE REFUND LEVY 603 | 0.0000000000 | $120,410 | $120,410 | $0.00 | | |
| CWWBOND | C OF WW BOND 643 | 0.2760494372 | $120,410 | $120,410 | $33.24 | | |
| CWWGEN | CITY OF WW 631 | 1.6100204973 | $120,410 | $120,410 | $193.86 | | |
| CWWRFD | CITY OF WALLA WALLA REFUND 631 | 0.0000000000 | $120,410 | $120,410 | $0.00 | | |
| | Total Tax Rate: | 8.7973694689 | | | | | |
| | | | | Taxes w/Current Exemptions: | $1,059.28 | | |
| | | | | Taxes w/o Exemptions: | $1,059.28 | | |
Improvement / Building
Sketch
| No sketches available for this property. |
Property Image
Land
| 1 | RES 1 | Converted: Residential | 0.2841 | 12375.00 | 0.00 | 0.00 | 1.00 | $120,410 | $0 |
Roll Value History
| 2026 | N/A | N/A | N/A | N/A | N/A |
| 2025 | $0 | $144,290 | $0 | $144,290 | $144,290 |
| 2024 | $0 | $120,410 | $0 | $120,410 | $120,410 |
| 2023 | $0 | $120,410 | $0 | $120,410 | $120,410 |
| 2022 | $0 | $99,370 | $0 | $99,370 | $99,370 |
| 2021 | $0 | $99,370 | $0 | $99,370 | $99,370 |
| 2020 | $0 | $99,370 | $0 | $99,370 | $99,370 |
| 2019 | $0 | $99,370 | $0 | $99,370 | $99,370 |
| 2018 | $0 | $49,100 | $0 | $49,100 | $49,100 |
| 2017 | $0 | $49,100 | $0 | $49,100 | $49,100 |
| 2016 | $3,000 | $49,100 | $0 | $52,100 | $0 |
| 2015 | $3,000 | $49,100 | $0 | $52,100 | $0 |
| 2014 | $3,000 | $49,100 | $0 | $52,100 | $0 |
| 2013 | $3,000 | $49,100 | $0 | $52,100 | $0 |
| 2012 | $6,400 | $49,100 | $0 | $0 | $0 |
| 2011 | $6,400 | $49,100 | $0 | $0 | $0 |
| 2010 | $6,400 | $49,100 | $0 | $0 | $0 |
| 2009 | $12,600 | $49,100 | $0 | $0 | $0 |
| 2008 | $12,600 | $49,100 | $0 | $0 | $0 |
| 2007 | $14,600 | $26,600 | $0 | $0 | $0 |
Deed and Sales History
| 1 | 10/14/2025 | SWD | STATUTORY WARRANTY DEED | VU MINH N | KEILER FREDERICK D & JANE E EACKER | | | $360,000.00 | 150178 | 2025-06319 |
| 2 | 05/04/2017 | SWD | STATUTORY WARRANTY DEED | WALLA WALLA CITY OF | VU MINH N | | | $0.00 | 132327 | 2017-03380 |
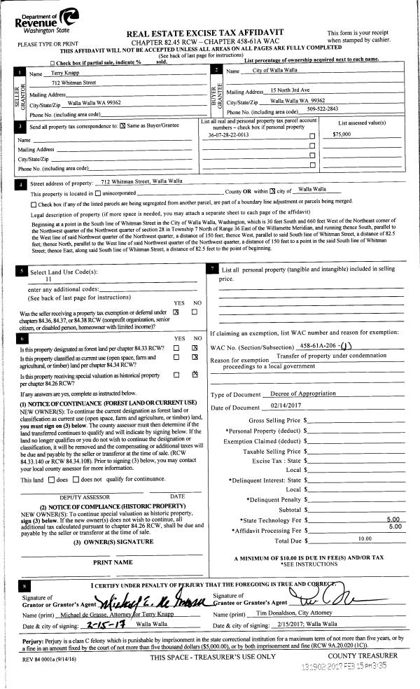
| 3 | 02/15/2017 | COURT CASE | COURT CASE | KNAPP TERRY L | WALLA WALLA CITY OF | | | | 131902 | 2017-01226 |
| 4 | 07/23/2001 | QCD | QUIT CLAIM DEED | | | | | $0.00 | 97711 | 3170-108146 |
Payout Agreement
| No payout information available.. |