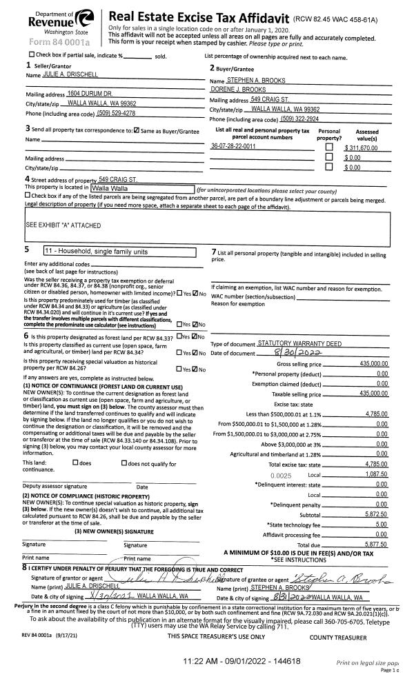
Property
Account |
| Property ID: | 9512 | Abbreviated Legal Description: | 28-7-36 TAX 35 LESS TAX 35A |
| Parcel Number: | 360728220011 | Agent Code: | |
| Type: | Real | | |
| Tax Area: | 1 - OL-140-F | Land Use Code | 11 |
| Open Space: | N | DFL | N |
| Historic Property: | N | Remodel Property: | N |
| Multi-Family Redevelopment: | N | | |
| Township: | 7 | Section: | 28 |
| Range: | 36 |
Location |
| Address: | 549 CRAIG ST WA 99362 | Mapsco: | |
| Neighborhood: | G Res | Map ID: | |
| Neighborhood CD: | 614011 |
Owner |
| Name: | BROOKS DORENE J | Owner ID: | 73569 |
| Mailing Address: | 549 CRAIG ST WALLA WALLA, WA 99362 | % Ownership: | 100.0000000000% |
| | | Exemptions: | |
Taxes and Assessment Details
Values
| (+) Improvement Homesite Value: | + | $0 | |
| (+) Improvement Non-Homesite Value: | + | $325,670 | |
| (+) Land Homesite Value: | + | $0 | |
| (+) Land Non-Homesite Value: | + | $95,820 | |
| (+) Curr Use (HS): | + | $0 | $0 |
| (+) Curr Use (NHS): | + | $0 | $0 |
| | | -------------------------- | |
| (=) Market Value: | = | $421,490 | |
| (–) Productivity Loss: | – | $0 | |
| | | -------------------------- | |
| (=) Subtotal: | = | $421,490 | |
| (+) Senior Appraised Value: | + | $0 | |
| (+) Non-Senior Appraised Value: | + | $421,490 | |
| | | -------------------------- | |
| (=) Total Appraised Value: | = | $421,490 | |
| (–) Senior Exemption Loss: | – | $0 | |
| (–) Exemption Loss: | – | $0 | |
| | | -------------------------- | |
| (=) Taxable Value: | = | $421,490 | |
Taxing Jurisdiction
| Owner: | BROOKS DORENE J | | |
| % Ownership: | 100.0000000000% | | |
| Total Value: | $421,490 | | |
| Tax Area: | 1 - OL-140-F |
| CERFD | CURRENT EXPENSE REFUND 010 | 0.0000000000 | $421,490 | $421,490 | $0.00 | | |
| CURREXP | CURRENT EXPENSE 010 | 1.0175366760 | $421,490 | $421,490 | $428.88 | | |
| HUMNSERV | HUMAN SERVICES 119 | 0.0250000000 | $421,490 | $421,490 | $10.54 | | |
| SLDREL | SOLDIERS RELIEF 121 | 0.0155990005 | $421,490 | $421,490 | $6.57 | | |
| EMERGSER | EMS 147 | 0.3792580840 | $421,490 | $421,490 | $159.85 | | |
| EMSRFD | EMS REFUND 147 | 0.0000000000 | $421,490 | $421,490 | $0.00 | | |
| PORTRFD | PORT REFUND 640 | 0.0000000000 | $421,490 | $421,490 | $0.00 | | |
| PORTWWGEN | PORT OF WW 640 | 0.2460186015 | $421,490 | $421,490 | $103.69 | | |
| SD140BOND | SD #140 BOND 764 | 0.8342371393 | $421,490 | $421,490 | $351.62 | | |
| SD140GEN | SD #140 GENERAL 760 | 2.0646500647 | $421,490 | $421,490 | $870.23 | | |
| ST2 | STATE SCHOOL PART 2 600 | 0.8131451643 | $421,490 | $421,490 | $342.73 | | |
| STATESCHL | STATE SCHOOL 600 | 1.5158548041 | $421,490 | $421,490 | $638.92 | | |
| STREFUND | STATE REFUND LEVY 603 | 0.0000000000 | $421,490 | $421,490 | $0.00 | | |
| CWWBOND | C OF WW BOND 643 | 0.2760494372 | $421,490 | $421,490 | $116.35 | | |
| CWWGEN | CITY OF WW 631 | 1.6100204973 | $421,490 | $421,490 | $678.61 | | |
| CWWRFD | CITY OF WALLA WALLA REFUND 631 | 0.0000000000 | $421,490 | $421,490 | $0.00 | | |
| | Total Tax Rate: | 8.7973694689 | | | | | |
| | | | | Taxes w/Current Exemptions: | $3,707.99 | | |
| | | | | Taxes w/o Exemptions: | $3,707.99 | | |
Improvement / Building
| Improvement #1: | RESIDENTIAL | State Code: | 11 | 1278.0 sqft | Value: | $325,670 |
| Exterior Wall: | SIDING | Heating/Cooling: | WARM & COOLED AIR | | Number of Bathrooms: | 2 | Number of Bedrooms: | 3 | | Plumbing: | 9 | Roof Covering: | COMP SHINGLE |
|
| | Type | Description | Class CD | Sub Class CD | Year Built | Area |
| | MA | Main Area | 1 | 30 | 1962 | 1278.0 |
| | SI1 | SITE IMPROVEMENT | 1 | 30 | 1962 | 1.5 |
| | BASE | BASEMENT | 1 | 30 | 1962 | 490.0 |
| | BPF | BASEMENT -PARTITIONED FINISH | 1 | 30 | 1962 | 490.0 |
| | S1F | Single One Story Fireplace | 1 | 30 | 1962 | 1.0 |
| | PRC | PORCH W STEPS, ROOF,CEILED | 1 | 30 | 2013 | 60.0 |
| | CPC | COVERED CARPORT/PATIO | 1 | 30 | 1962 | 280.0 |
| | CPCG | CARPORT/ GABLE ROOF | 1 | 30 | 1962 | 280.0 |
| | CPC | COVERED CARPORT/PATIO | 1 | 30 | 1962 | 510.0 |
Sketch
Property Image
Land
| 1 | RES 1 | Converted: Residential | 0.2200 | 9582.00 | 0.00 | 0.00 | 1.00 | $95,820 | $0 |
Roll Value History
| 2026 | N/A | N/A | N/A | N/A | N/A |
| 2025 | $322,210 | $114,980 | $0 | $437,190 | $437,190 |
| 2024 | $325,670 | $95,820 | $0 | $421,490 | $421,490 |
| 2023 | $325,670 | $95,820 | $0 | $421,490 | $421,490 |
| 2022 | $325,670 | $79,050 | $0 | $404,720 | $404,720 |
| 2021 | $232,620 | $79,050 | $0 | $311,670 | $311,670 |
| 2020 | $166,160 | $79,050 | $0 | $245,210 | $245,210 |
| 2019 | $166,160 | $79,050 | $0 | $245,210 | $245,210 |
| 2018 | $154,080 | $46,800 | $0 | $200,880 | $200,880 |
| 2017 | $154,080 | $46,800 | $0 | $200,880 | $200,880 |
| 2016 | $146,740 | $46,800 | $0 | $193,540 | $193,540 |
| 2015 | $146,740 | $46,800 | $0 | $193,540 | $193,540 |
| 2014 | $133,400 | $46,800 | $0 | $180,200 | $180,200 |
| 2013 | $133,400 | $46,800 | $0 | $180,200 | $180,200 |
| 2012 | $130,100 | $46,800 | $0 | $0 | $0 |
| 2011 | $130,100 | $46,800 | $0 | $0 | $0 |
| 2010 | $130,100 | $46,800 | $0 | $0 | $0 |
| 2009 | $149,700 | $46,800 | $0 | $0 | $0 |
| 2008 | $149,700 | $46,800 | $0 | $0 | $0 |
| 2007 | $95,400 | $24,300 | $0 | $0 | $0 |
Deed and Sales History
| 1 | 05/15/2023 | COMMUNITY | COMMUNITY PROPERTY AGREEMENT | BROOKS STEPHEN A & DORENE J | BROOKS DORENE J | | | | 0 | 2023-02584 |
| 2 | 09/01/2022 | SWD | STATUTORY WARRANTY DEED | DRISCHELL JULIE A | BROOKS STEPHEN A & DORENE J | | | $435,000.00 | 144618 | 2022-07365 |
| 3 | 11/10/1993 | WARRANTY D | WARRANTY DEED | | | | | $89,500.00 | 80457 | 2129-311799 |
Payout Agreement
| No payout information available.. |