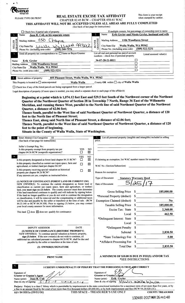
Property
Account |
| Property ID: | 9489 | Abbreviated Legal Description: | 28-7-36 TAX 25B |
| Parcel Number: | 360728210011 | Agent Code: | |
| Type: | Real | | |
| Tax Area: | 1 - OL-140-F | Land Use Code | 11 |
| Open Space: | N | DFL | N |
| Historic Property: | N | Remodel Property: | N |
| Multi-Family Redevelopment: | N | | |
| Township: | 7 | Section: | 28 |
| Range: | 36 |
Location |
| Address: | 855 PLEASANT ST WA 99362 | Mapsco: | |
| Neighborhood: | A Res | Map ID: | |
| Neighborhood CD: | 613011 |
Owner |
| Name: | GRYLER ERIK & NICOLE | Owner ID: | 46536 |
| Mailing Address: | 1106 WOODLAWN ST WALLA WALLA, WA 99362 | % Ownership: | 100.0000000000% |
| | | Exemptions: | |
Taxes and Assessment Details
Values
| (+) Improvement Homesite Value: | + | $0 | |
| (+) Improvement Non-Homesite Value: | + | $223,800 | |
| (+) Land Homesite Value: | + | $0 | |
| (+) Land Non-Homesite Value: | + | $70,000 | |
| (+) Curr Use (HS): | + | $0 | $0 |
| (+) Curr Use (NHS): | + | $0 | $0 |
| | | -------------------------- | |
| (=) Market Value: | = | $293,800 | |
| (–) Productivity Loss: | – | $0 | |
| | | -------------------------- | |
| (=) Subtotal: | = | $293,800 | |
| (+) Senior Appraised Value: | + | $0 | |
| (+) Non-Senior Appraised Value: | + | $293,800 | |
| | | -------------------------- | |
| (=) Total Appraised Value: | = | $293,800 | |
| (–) Senior Exemption Loss: | – | $0 | |
| (–) Exemption Loss: | – | $0 | |
| | | -------------------------- | |
| (=) Taxable Value: | = | $293,800 | |
Taxing Jurisdiction
| Owner: | GRYLER ERIK & NICOLE | | |
| % Ownership: | 100.0000000000% | | |
| Total Value: | $293,800 | | |
| Tax Area: | 1 - OL-140-F |
| CERFD | CURRENT EXPENSE REFUND 010 | 0.0000000000 | $293,800 | $293,800 | $0.00 | | |
| CURREXP | CURRENT EXPENSE 010 | 1.0175366760 | $293,800 | $293,800 | $298.95 | | |
| HUMNSERV | HUMAN SERVICES 119 | 0.0250000000 | $293,800 | $293,800 | $7.35 | | |
| SLDREL | SOLDIERS RELIEF 121 | 0.0155990005 | $293,800 | $293,800 | $4.58 | | |
| EMERGSER | EMS 147 | 0.3792580840 | $293,800 | $293,800 | $111.43 | | |
| EMSRFD | EMS REFUND 147 | 0.0000000000 | $293,800 | $293,800 | $0.00 | | |
| PORTRFD | PORT REFUND 640 | 0.0000000000 | $293,800 | $293,800 | $0.00 | | |
| PORTWWGEN | PORT OF WW 640 | 0.2460186015 | $293,800 | $293,800 | $72.28 | | |
| SD140BOND | SD #140 BOND 764 | 0.8342371393 | $293,800 | $293,800 | $245.10 | | |
| SD140GEN | SD #140 GENERAL 760 | 2.0646500647 | $293,800 | $293,800 | $606.59 | | |
| ST2 | STATE SCHOOL PART 2 600 | 0.8131451643 | $293,800 | $293,800 | $238.90 | | |
| STATESCHL | STATE SCHOOL 600 | 1.5158548041 | $293,800 | $293,800 | $445.36 | | |
| STREFUND | STATE REFUND LEVY 603 | 0.0000000000 | $293,800 | $293,800 | $0.00 | | |
| CWWBOND | C OF WW BOND 643 | 0.2760494372 | $293,800 | $293,800 | $81.10 | | |
| CWWGEN | CITY OF WW 631 | 1.6100204973 | $293,800 | $293,800 | $473.02 | | |
| CWWRFD | CITY OF WALLA WALLA REFUND 631 | 0.0000000000 | $293,800 | $293,800 | $0.00 | | |
| | Total Tax Rate: | 8.7973694689 | | | | | |
| | | | | Taxes w/Current Exemptions: | $2,584.66 | | |
| | | | | Taxes w/o Exemptions: | $2,584.66 | | |
Improvement / Building
| Improvement #1: | RESIDENTIAL | State Code: | 11 | 1153.0 sqft | Value: | $223,800 |
| Exterior Wall: | SIDING | Heating/Cooling: | WARM & COOLED AIR | | Number of Bathrooms: | 1 | Number of Bedrooms: | 2 | | Plumbing: | 7 | Roof Covering: | COMP SHINGLE |
|
| | Type | Description | Class CD | Sub Class CD | Year Built | Area |
| | MA | Main Area | 1 | 30 | 1947 | 1153.0 |
| | SI1 | SITE IMPROVEMENT | 1 | 30 | 1947 | 1.5 |
| | BASE | BASEMENT | 1 | 30 | 1947 | 108.0 |
| | PRC | PORCH W STEPS, ROOF,CEILED | 1 | 30 | 1947 | 42.0 |
| | ATG | Attached Garage | 1 | 30 | 1947 | 220.0 |
Sketch
Property Image
Land
| 1 | RES 1 | Converted: Residential | 0.1708 | 7440.00 | 0.00 | 0.00 | 1.00 | $70,000 | $0 |
Roll Value History
| 2026 | N/A | N/A | N/A | N/A | N/A |
| 2025 | $214,580 | $89,280 | $0 | $303,860 | $303,860 |
| 2024 | $223,800 | $70,000 | $0 | $293,800 | $293,800 |
| 2023 | $223,800 | $70,000 | $0 | $293,800 | $293,800 |
| 2022 | $213,140 | $55,000 | $0 | $268,140 | $268,140 |
| 2021 | $177,620 | $55,000 | $0 | $232,620 | $232,620 |
| 2020 | $126,870 | $55,000 | $0 | $181,870 | $181,870 |
| 2019 | $126,870 | $55,000 | $0 | $181,870 | $181,870 |
| 2018 | $116,890 | $44,600 | $0 | $161,490 | $161,490 |
| 2017 | $106,260 | $44,600 | $0 | $150,860 | $150,860 |
| 2016 | $96,600 | $44,600 | $0 | $141,200 | $141,200 |
| 2015 | $96,600 | $44,600 | $0 | $141,200 | $141,200 |
| 2014 | $96,600 | $44,600 | $0 | $141,200 | $141,200 |
| 2013 | $96,600 | $44,600 | $0 | $141,200 | $141,200 |
| 2012 | $90,000 | $44,600 | $0 | $0 | $0 |
| 2011 | $90,000 | $44,600 | $0 | $0 | $0 |
| 2010 | $83,600 | $44,600 | $0 | $0 | $0 |
| 2009 | $97,800 | $44,600 | $0 | $0 | $0 |
| 2008 | $97,800 | $44,600 | $0 | $0 | $0 |
| 2007 | $62,900 | $22,300 | $0 | $0 | $0 |
Deed and Sales History
| 1 | 05/26/2017 | SWD | STATUTORY WARRANTY DEED | COLL JUAN R | GRYLER ERIK & NICOLE | | | $185,000.00 | 132480 | 2017-04021 |
| 2 | 09/21/2007 | WARRANTY D | WARRANTY DEED | ROHDE, PETER W & KATHLEEN M | COLL, JUAN R | | | $162,500.00 | 113755 | 2007-11128 |
| 3 | 11/12/2003 | WARRANTY D | WARRANTY DEED | ROHDE, ERIC & ANGELA | ROHDE, PETER W & KATHLEEN M | | | $103,000.00 | 0 | 2003-17472 |
| 4 | 10/18/2000 | WARRANTY D | WARRANTY DEED | | | | | $85,000.00 | 96029 | 3040-010003 |
Payout Agreement
| No payout information available.. |