Property
Account |
| Property ID: | 9487 | Abbreviated Legal Description: | 28-7-36 TAX 25 |
| Parcel Number: | 360728210009 | Agent Code: | |
| Type: | Real | | |
| Tax Area: | 1 - OL-140-F | Land Use Code | 11 |
| Open Space: | N | DFL | N |
| Historic Property: | N | Remodel Property: | N |
| Multi-Family Redevelopment: | N | | |
| Township: | 7 | Section: | 28 |
| Range: | 36 |
Location |
| Address: | 854 EDGEWOOD ST WA 99362 | Mapsco: | |
| Neighborhood: | A Res | Map ID: | |
| Neighborhood CD: | 613011 |
Owner |
| Name: | JONES RUSSELL R | Owner ID: | 58707 |
| Mailing Address: | 854 EDGEWOOD ST WALLA WALLA, WA 99362 | % Ownership: | 100.0000000000% |
| | | Exemptions: | |
Taxes and Assessment Details
Property Tax Information as of
02/21/2026
Click on "Statement Details" to expand or collapse a tax statement.
* Please enter a valid date ** Please enter a valid date *
Statement Details |
| | TOTAL: | $0.00 | $0.00 | $0.00 | $0.00 | $0.00 | $0.00 |
|
| | $0.00 | $0.00 | $0.00 | $0.00 | $0.00 | $0.00 |
Values
| (+) Improvement Homesite Value: | + | $0 | |
| (+) Improvement Non-Homesite Value: | + | $112,380 | |
| (+) Land Homesite Value: | + | $0 | |
| (+) Land Non-Homesite Value: | + | $102,910 | |
| (+) Curr Use (HS): | + | $0 | $0 |
| (+) Curr Use (NHS): | + | $0 | $0 |
| | | -------------------------- | |
| (=) Market Value: | = | $215,290 | |
| (–) Productivity Loss: | – | $0 | |
| | | -------------------------- | |
| (=) Subtotal: | = | $215,290 | |
| (+) Senior Appraised Value: | + | $0 | |
| (+) Non-Senior Appraised Value: | + | $215,290 | |
| | | -------------------------- | |
| (=) Total Appraised Value: | = | $215,290 | |
| (–) Senior Exemption Loss: | – | $0 | |
| (–) Exemption Loss: | – | $0 | |
| | | -------------------------- | |
| (=) Taxable Value: | = | $215,290 | |
Taxing Jurisdiction
| Owner: | JONES RUSSELL R | | |
| % Ownership: | 100.0000000000% | | |
| Total Value: | $215,290 | | |
| Tax Area: | 1 - OL-140-F |
| CERFD | CURRENT EXPENSE REFUND 010 | 0.0000000000 | $215,290 | $215,290 | $0.00 | | |
| CURREXP | CURRENT EXPENSE 010 | 1.0175366760 | $215,290 | $215,290 | $219.07 | | |
| HUMNSERV | HUMAN SERVICES 119 | 0.0250000000 | $215,290 | $215,290 | $5.38 | | |
| SLDREL | SOLDIERS RELIEF 121 | 0.0155990005 | $215,290 | $215,290 | $3.36 | | |
| EMERGSER | EMS 147 | 0.3792580840 | $215,290 | $215,290 | $81.65 | | |
| EMSRFD | EMS REFUND 147 | 0.0000000000 | $215,290 | $215,290 | $0.00 | | |
| PORTRFD | PORT REFUND 640 | 0.0000000000 | $215,290 | $215,290 | $0.00 | | |
| PORTWWGEN | PORT OF WW 640 | 0.2460186015 | $215,290 | $215,290 | $52.97 | | |
| SD140BOND | SD #140 BOND 764 | 0.8342371393 | $215,290 | $215,290 | $179.60 | | |
| SD140GEN | SD #140 GENERAL 760 | 2.0646500647 | $215,290 | $215,290 | $444.50 | | |
| ST2 | STATE SCHOOL PART 2 600 | 0.8131451643 | $215,290 | $215,290 | $175.06 | | |
| STATESCHL | STATE SCHOOL 600 | 1.5158548041 | $215,290 | $215,290 | $326.35 | | |
| STREFUND | STATE REFUND LEVY 603 | 0.0000000000 | $215,290 | $215,290 | $0.00 | | |
| CWWBOND | C OF WW BOND 643 | 0.2760494372 | $215,290 | $215,290 | $59.43 | | |
| CWWGEN | CITY OF WW 631 | 1.6100204973 | $215,290 | $215,290 | $346.62 | | |
| CWWRFD | CITY OF WALLA WALLA REFUND 631 | 0.0000000000 | $215,290 | $215,290 | $0.00 | | |
| | Total Tax Rate: | 8.7973694689 | | | | | |
| | | | | Taxes w/Current Exemptions: | $1,893.99 | | |
| | | | | Taxes w/o Exemptions: | $1,893.99 | | |
Improvement / Building
| Improvement #1: | RESIDENTIAL | State Code: | 11 | 1205.0 sqft | Value: | $112,380 |
| Exterior Wall: | SIDING | Heating/Cooling: | BASEBOARD ELECTRIC | | Number of Bathrooms: | 1 | Number of Bedrooms: | 2 | | Plumbing: | 7 | Roof Covering: | WOOD SHAKE |
|
| | Type | Description | Class CD | Sub Class CD | Year Built | Area |
| | MA | Main Area | 1 | 25 | 1946 | 1205.0 |
| | SI1 | SITE IMPROVEMENT | 1 | 25 | 1946 | 1.0 |
| | OSP | Open | 1 | 25 | 1946 | 160.0 |
| | WOD | Wood Deck | 1 | 25 | 1946 | 256.0 |
| | UTST | Utility Storage Shed | 1 | 25 | 1946 | 308.0 |
Sketch
Property Image
Land
| 1 | RES 1 | Converted: Residential | 0.6300 | 27443.00 | 0.00 | 0.00 | 1.00 | $102,910 | $0 |
Roll Value History
| 2026 | N/A | N/A | N/A | N/A | N/A |
| 2025 | $68,030 | $156,700 | $0 | $224,730 | $224,730 |
| 2024 | $112,380 | $102,910 | $0 | $215,290 | $215,290 |
| 2023 | $112,380 | $102,910 | $0 | $215,290 | $215,290 |
| 2022 | $112,380 | $81,510 | $0 | $193,890 | $193,890 |
| 2021 | $112,380 | $81,510 | $0 | $193,890 | $193,890 |
| 2020 | $93,650 | $81,510 | $0 | $175,160 | $175,160 |
| 2019 | $93,650 | $81,510 | $0 | $175,160 | $175,160 |
| 2018 | $44,860 | $62,000 | $0 | $106,860 | $106,860 |
| 2017 | $40,780 | $62,000 | $0 | $102,780 | $102,780 |
| 2016 | $37,070 | $62,000 | $0 | $99,070 | $99,070 |
| 2015 | $37,070 | $62,000 | $0 | $99,070 | $99,070 |
| 2014 | $33,700 | $62,000 | $0 | $95,700 | $95,700 |
| 2013 | $33,700 | $62,000 | $0 | $95,700 | $95,700 |
| 2012 | $33,700 | $62,000 | $0 | $0 | $0 |
| 2011 | $33,700 | $62,000 | $0 | $0 | $0 |
| 2010 | $50,600 | $62,000 | $0 | $0 | $0 |
| 2009 | $63,100 | $62,000 | $0 | $0 | $0 |
| 2008 | $63,100 | $62,000 | $0 | $0 | $0 |
| 2007 | $46,800 | $25,200 | $0 | $0 | $0 |
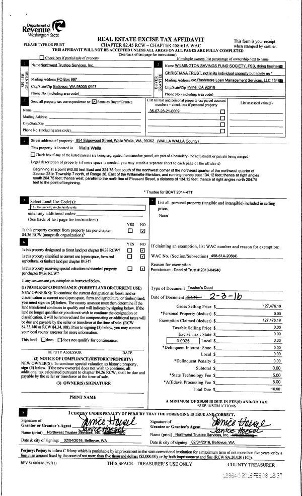
Deed and Sales History
| 1 | 05/10/2016 | SWP | Special Warranty Deed | WILMINGTON SAVING FUND SOCIETY FSB | JONES RUSSELL R | | | $115,539.00 | 130191 | 2016-03513 |
| 2 | 02/08/2016 | TRUSTEES D | TRUSTEE'S DEED | WOOD DONALD | WILMINGTON SAVING FUND SOCIETY FSB | | | $127,476.00 | 129640 | 2016-00953 |
| 3 | 04/13/2012 | WARRANTY D | WARRANTY DEED | WOOD, DEBBIE | WOOD, DONALD | | | | 0 | CC #11-3-00081-2 |
| 4 | 08/30/1979 | WARRANTY D | WARRANTY DEED | | | | | $38,000.00 | 0 | 1107-908243 |
Payout Agreement
| No payout information available.. |