Property
Account |
| Property ID: | 9486 | Abbreviated Legal Description: | 28-7-36 TAX 21 & 22 |
| Parcel Number: | 360728210007 | Agent Code: | |
| Type: | Real | | |
| Tax Area: | 1 - OL-140-F | Land Use Code | 65 |
| Open Space: | N | DFL | N |
| Historic Property: | N | Remodel Property: | N |
| Multi-Family Redevelopment: | N | | |
| Township: | 7 | Section: | 28 |
| Range: | 36 |
Location |
| Address: | 1018 WHITMAN ST WA 99362 | Mapsco: | |
| Neighborhood: | WW Commercial #3 | Map ID: | |
| Neighborhood CD: | 6343 |
Owner |
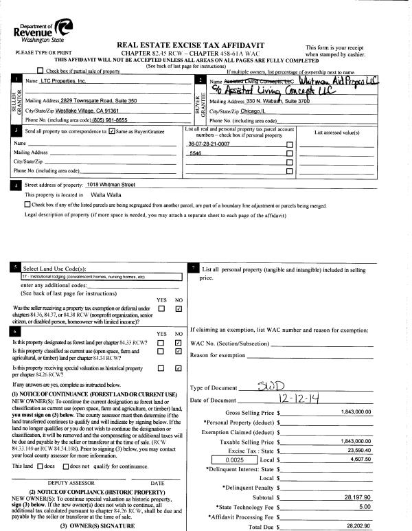
| Name: | WHITMAN AID PROPCO LLC | Owner ID: | 55901 |
| Mailing Address: | 330 N WABASH STE 3700 CHICAGO, IL 60611 | % Ownership: | 100.0000000000% |
| | | Exemptions: | |
Taxes and Assessment Details
Property Tax Information as of
02/21/2026
Click on "Statement Details" to expand or collapse a tax statement.
* Please enter a valid date ** Please enter a valid date *
Statement Details |
| | TOTAL: | $0.00 | $0.00 | $0.00 | $0.00 | $0.00 | $0.00 |
|
| | $0.00 | $0.00 | $0.00 | $0.00 | $0.00 | $0.00 |
Values
| (+) Improvement Homesite Value: | + | $0 | |
| (+) Improvement Non-Homesite Value: | + | $1,545,200 | |
| (+) Land Homesite Value: | + | $0 | |
| (+) Land Non-Homesite Value: | + | $227,700 | |
| (+) Curr Use (HS): | + | $0 | $0 |
| (+) Curr Use (NHS): | + | $0 | $0 |
| | | -------------------------- | |
| (=) Market Value: | = | $1,772,900 | |
| (–) Productivity Loss: | – | $0 | |
| | | -------------------------- | |
| (=) Subtotal: | = | $1,772,900 | |
| (+) Senior Appraised Value: | + | $0 | |
| (+) Non-Senior Appraised Value: | + | $1,772,900 | |
| | | -------------------------- | |
| (=) Total Appraised Value: | = | $1,772,900 | |
| (–) Senior Exemption Loss: | – | $0 | |
| (–) Exemption Loss: | – | $0 | |
| | | -------------------------- | |
| (=) Taxable Value: | = | $1,772,900 | |
Taxing Jurisdiction
| Owner: | WHITMAN AID PROPCO LLC | | |
| % Ownership: | 100.0000000000% | | |
| Total Value: | $1,772,900 | | |
| Tax Area: | 1 - OL-140-F |
| CERFD | CURRENT EXPENSE REFUND 010 | 0.0000000000 | $1,772,900 | $1,772,900 | $0.00 | | |
| CURREXP | CURRENT EXPENSE 010 | 1.0175366760 | $1,772,900 | $1,772,900 | $1,803.99 | | |
| HUMNSERV | HUMAN SERVICES 119 | 0.0250000000 | $1,772,900 | $1,772,900 | $44.32 | | |
| SLDREL | SOLDIERS RELIEF 121 | 0.0155990005 | $1,772,900 | $1,772,900 | $27.66 | | |
| EMERGSER | EMS 147 | 0.3792580840 | $1,772,900 | $1,772,900 | $672.39 | | |
| EMSRFD | EMS REFUND 147 | 0.0000000000 | $1,772,900 | $1,772,900 | $0.00 | | |
| PORTRFD | PORT REFUND 640 | 0.0000000000 | $1,772,900 | $1,772,900 | $0.00 | | |
| PORTWWGEN | PORT OF WW 640 | 0.2460186015 | $1,772,900 | $1,772,900 | $436.17 | | |
| SD140BOND | SD #140 BOND 764 | 0.8342371393 | $1,772,900 | $1,772,900 | $1,479.02 | | |
| SD140GEN | SD #140 GENERAL 760 | 2.0646500647 | $1,772,900 | $1,772,900 | $3,660.42 | | |
| ST2 | STATE SCHOOL PART 2 600 | 0.8131451643 | $1,772,900 | $1,772,900 | $1,441.63 | | |
| STATESCHL | STATE SCHOOL 600 | 1.5158548041 | $1,772,900 | $1,772,900 | $2,687.46 | | |
| STREFUND | STATE REFUND LEVY 603 | 0.0000000000 | $1,772,900 | $1,772,900 | $0.00 | | |
| CWWBOND | C OF WW BOND 643 | 0.2760494372 | $1,772,900 | $1,772,900 | $489.41 | | |
| CWWGEN | CITY OF WW 631 | 1.6100204973 | $1,772,900 | $1,772,900 | $2,854.41 | | |
| CWWRFD | CITY OF WALLA WALLA REFUND 631 | 0.0000000000 | $1,772,900 | $1,772,900 | $0.00 | | |
| | Total Tax Rate: | 8.7973694689 | | | | | |
| | | | | Taxes w/Current Exemptions: | $15,596.88 | | |
| | | | | Taxes w/o Exemptions: | $15,596.88 | | |
Improvement / Building
| Improvement #1: | COMMERCIAL | State Code: | 65 | 22291.0 sqft | Value: | $1,545,200 |
| | Type | Description | Class CD | Sub Class CD | Year Built | Area |
| | MA | Main Area | D | * | 1996 | 22291.0 |
| | SI1 | SITE IMPROVEMENT | D | * | 1996 | 5.0 |
| | RPO | OPEN PORCH W/ROOF | D | * | 1996 | 535.0 |
| | PRKSTLA | PARK STALL AVERAGE | D | * | 1996 | 23.0 |
Sketch
Property Image
Land
| 1 | COM 1 | Converted: Commercial | 1.9400 | 0.00 | 0.00 | 0.00 | 1.00 | $227,700 | $0 |
Roll Value History
| 2026 | N/A | N/A | N/A | N/A | N/A |
| 2025 | $1,790,840 | $232,800 | $0 | $2,023,640 | $2,023,640 |
| 2024 | $1,545,200 | $227,700 | $0 | $1,772,900 | $1,772,900 |
| 2023 | $1,545,200 | $227,700 | $0 | $1,772,900 | $1,772,900 |
| 2022 | $1,545,200 | $227,700 | $0 | $1,772,900 | $1,772,900 |
| 2021 | $1,545,200 | $227,700 | $0 | $1,772,900 | $1,772,900 |
| 2020 | $1,545,200 | $227,700 | $0 | $1,772,900 | $1,772,900 |
| 2019 | $1,545,200 | $227,700 | $0 | $1,772,900 | $1,772,900 |
| 2018 | $1,512,100 | $216,800 | $0 | $1,728,900 | $1,728,900 |
| 2017 | $1,512,100 | $216,800 | $0 | $1,728,900 | $1,728,900 |
| 2016 | $1,512,100 | $216,800 | $0 | $1,728,900 | $1,728,900 |
| 2015 | $1,512,100 | $216,800 | $0 | $1,728,900 | $1,728,900 |
| 2014 | $1,512,100 | $216,800 | $0 | $1,728,900 | $1,728,900 |
| 2013 | $1,512,100 | $216,800 | $0 | $1,728,900 | $1,728,900 |
| 2012 | $1,471,900 | $277,900 | $0 | $0 | $0 |
| 2011 | $1,471,900 | $277,900 | $0 | $0 | $0 |
| 2010 | $1,471,900 | $277,900 | $0 | $0 | $0 |
| 2009 | $1,722,100 | $277,900 | $0 | $0 | $0 |
| 2008 | $2,150,900 | $277,900 | $0 | $0 | $0 |
| 2007 | $1,827,300 | $169,000 | $0 | $0 | $0 |
Deed and Sales History
| 1 | 10/11/2024 | DFL | DEED IN LIEU OF FORECLOSURE | WHITMAN AID PROPCO LLC | 1018 WHITMAN LLC | | | | 148310 | 2024-05933 |
| 2 | 12/19/2014 | SWP | Special Warranty Deed | LTC PROPERTIES INC %ASST LVG | WHITMAN AID PROPCO LLC | | | $1,843,000.00 | 127148 | 2014-09256 |
| 3 | 04/11/1996 | WARRANTY D | WARRANTY DEED | | | | | $1,999,200.00 | 85938 | 2409-603584 |
Payout Agreement
| No payout information available.. |