Property
Account |
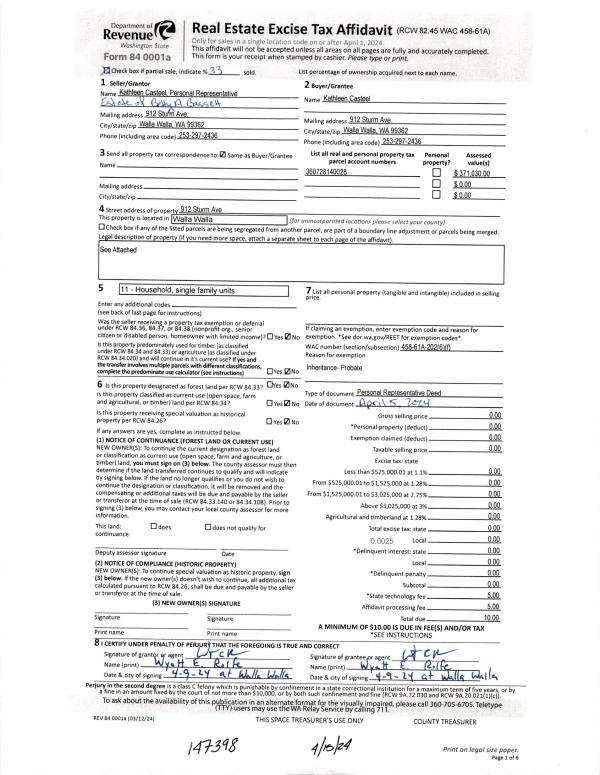
| Property ID: | 9466 | Abbreviated Legal Description: | 28-7-36 TAX 11B |
| Parcel Number: | 360728140028 | Agent Code: | |
| Type: | Real | | |
| Tax Area: | 1 - OL-140-F | Land Use Code | 11 |
| Open Space: | N | DFL | N |
| Historic Property: | N | Remodel Property: | N |
| Multi-Family Redevelopment: | N | | |
| Township: | 7 | Section: | 28 |
| Range: | 36 |
Location |
| Address: | 912 STURM AVE WA 99362 | Mapsco: | |
| Neighborhood: | G Res | Map ID: | |
| Neighborhood CD: | 614011 |
Owner |
| Name: | BASSETT BETTY A | Owner ID: | 55120 |
| Mailing Address: | 912 STURM AVE WALLA WALLA, WA 99362 | % Ownership: | 100.0000000000% |
| | | Exemptions: | |
Taxes and Assessment Details
Values
| (+) Improvement Homesite Value: | + | $0 | |
| (+) Improvement Non-Homesite Value: | + | $271,460 | |
| (+) Land Homesite Value: | + | $0 | |
| (+) Land Non-Homesite Value: | + | $112,500 | |
| (+) Curr Use (HS): | + | $0 | $0 |
| (+) Curr Use (NHS): | + | $0 | $0 |
| | | -------------------------- | |
| (=) Market Value: | = | $383,960 | |
| (–) Productivity Loss: | – | $0 | |
| | | -------------------------- | |
| (=) Subtotal: | = | $383,960 | |
| (+) Senior Appraised Value: | + | $0 | |
| (+) Non-Senior Appraised Value: | + | $383,960 | |
| | | -------------------------- | |
| (=) Total Appraised Value: | = | $383,960 | |
| (–) Senior Exemption Loss: | – | $0 | |
| (–) Exemption Loss: | – | $0 | |
| | | -------------------------- | |
| (=) Taxable Value: | = | $383,960 | |
Taxing Jurisdiction
| Owner: | BASSETT BETTY A | | |
| % Ownership: | 100.0000000000% | | |
| Total Value: | $383,960 | | |
| Tax Area: | 1 - OL-140-F |
| CERFD | CURRENT EXPENSE REFUND 010 | 0.0000000000 | $383,960 | $383,960 | $0.00 | | |
| CURREXP | CURRENT EXPENSE 010 | 1.0175366760 | $383,960 | $383,960 | $390.69 | | |
| HUMNSERV | HUMAN SERVICES 119 | 0.0250000000 | $383,960 | $383,960 | $9.60 | | |
| SLDREL | SOLDIERS RELIEF 121 | 0.0155990005 | $383,960 | $383,960 | $5.99 | | |
| EMERGSER | EMS 147 | 0.3792580840 | $383,960 | $383,960 | $145.62 | | |
| EMSRFD | EMS REFUND 147 | 0.0000000000 | $383,960 | $383,960 | $0.00 | | |
| PORTRFD | PORT REFUND 640 | 0.0000000000 | $383,960 | $383,960 | $0.00 | | |
| PORTWWGEN | PORT OF WW 640 | 0.2460186015 | $383,960 | $383,960 | $94.46 | | |
| SD140BOND | SD #140 BOND 764 | 0.8342371393 | $383,960 | $383,960 | $320.31 | | |
| SD140GEN | SD #140 GENERAL 760 | 2.0646500647 | $383,960 | $383,960 | $792.74 | | |
| ST2 | STATE SCHOOL PART 2 600 | 0.8131451643 | $383,960 | $383,960 | $312.22 | | |
| STATESCHL | STATE SCHOOL 600 | 1.5158548041 | $383,960 | $383,960 | $582.03 | | |
| STREFUND | STATE REFUND LEVY 603 | 0.0000000000 | $383,960 | $383,960 | $0.00 | | |
| CWWBOND | C OF WW BOND 643 | 0.2760494372 | $383,960 | $383,960 | $105.99 | | |
| CWWGEN | CITY OF WW 631 | 1.6100204973 | $383,960 | $383,960 | $618.18 | | |
| CWWRFD | CITY OF WALLA WALLA REFUND 631 | 0.0000000000 | $383,960 | $383,960 | $0.00 | | |
| | Total Tax Rate: | 8.7973694689 | | | | | |
| | | | | Taxes w/Current Exemptions: | $3,377.83 | | |
| | | | | Taxes w/o Exemptions: | $3,377.83 | | |
Improvement / Building
| Improvement #1: | RESIDENTIAL | State Code: | 11 | 1620.0 sqft | Value: | $271,460 |
| Exterior Wall: | SIDING | Heating/Cooling: | WARM & COOLED AIR | | Number of Bathrooms: | 2 | Number of Bedrooms: | 3 | | Plumbing: | 9 | Roof Covering: | COMP SHINGLE |
|
| | Type | Description | Class CD | Sub Class CD | Year Built | Area |
| | MA | Main Area | 1 | 30 | 1966 | 1620.0 |
| | SI1 | SITE IMPROVEMENT | 1 | 30 | 1966 | 1.5 |
| | S1F | Single One Story Fireplace | 1 | 30 | 1966 | 1.0 |
| | ATG | Attached Garage | 1 | 30 | 1966 | 420.0 |
| | TOOL | TOOL SHED | 1 | 30 | 1966 | 80.0 |
Sketch
Property Image
Land
| 1 | RES 1 | Converted: Residential | 0.2583 | 11250.00 | 0.00 | 0.00 | 1.00 | $112,500 | $0 |
Roll Value History
| 2026 | N/A | N/A | N/A | N/A | N/A |
| 2025 | $247,490 | $135,000 | $0 | $382,490 | $152,996 |
| 2024 | $271,460 | $112,500 | $0 | $383,960 | $153,584 |
| 2023 | $271,460 | $112,500 | $0 | $383,960 | $383,960 |
| 2022 | $258,530 | $92,810 | $0 | $351,340 | $351,340 |
| 2021 | $198,870 | $92,810 | $0 | $291,680 | $291,680 |
| 2020 | $142,050 | $92,810 | $0 | $234,860 | $234,860 |
| 2019 | $142,050 | $92,810 | $0 | $234,860 | $234,860 |
| 2018 | $161,020 | $48,200 | $0 | $209,220 | $209,220 |
| 2017 | $146,380 | $48,200 | $0 | $194,580 | $194,580 |
| 2016 | $133,070 | $48,200 | $0 | $181,270 | $181,270 |
| 2015 | $126,740 | $48,200 | $0 | $174,940 | $174,940 |
| 2014 | $120,700 | $48,200 | $0 | $168,900 | $168,900 |
| 2013 | $120,700 | $48,200 | $0 | $168,900 | $168,900 |
| 2012 | $115,800 | $48,200 | $0 | $0 | $0 |
| 2011 | $115,800 | $48,200 | $0 | $0 | $0 |
| 2010 | $100,900 | $48,200 | $0 | $0 | $0 |
| 2009 | $117,500 | $48,200 | $0 | $0 | $0 |
| 2008 | $117,500 | $48,200 | $0 | $0 | $0 |
| 2007 | $97,200 | $25,700 | $0 | $0 | $0 |
Deed and Sales History
| 1 | 04/15/2024 | DPR | DEED OF PERSONAL REPRESENTATIVE | BASSETT BETTY A | CASTEEL KATHLEEN | | | | 147398 | 2024-01876 |
| 2 | 06/25/2014 | BARGAIN & | BARGAIN & SALE DEED | GAINES ROBERT & ELSIE TRUST | BASSETT BETTY A | | | $175,000.00 | 126131 | 2014-04381 |
| 3 | 06/13/2014 | DPR | DEED OF PERSONAL REPRESENTATIVE | GAINES ROBERT & ELSIE TRUST | GAINES ROBERT & ELSIE TRUST | | | | 126072 | 2014-04097 |
| 4 | 02/01/1968 | WARRANTY D | WARRANTY DEED | | | | | $20,500.00 | 0 | 3250-491940 |
Payout Agreement
| No payout information available.. |