Property
Account |
| Property ID: | 9446 | Abbreviated Legal Description: | 28-7-36 TAX 16 |
| Parcel Number: | 360728130035 | Agent Code: | |
| Type: | Real | | |
| Tax Area: | 15 - WW City Annex | Land Use Code | 11 |
| Open Space: | N | DFL | N |
| Historic Property: | N | Remodel Property: | N |
| Multi-Family Redevelopment: | N | | |
| Township: | 7 | Section: | 28 |
| Range: | 36 |
Location |
| Address: | 930 E CHESTNUT ST WA 99362 | Mapsco: | |
| Neighborhood: | G Res | Map ID: | |
| Neighborhood CD: | 614011 |
Owner |
| Name: | BOBROW-STAIN KATE | Owner ID: | 73709 |
| Mailing Address: | 930 E CHESTNUT ST WALLA WALLA, WA 99362 | % Ownership: | 100.0000000000% |
| | | Exemptions: | |
Taxes and Assessment Details
Values
| (+) Improvement Homesite Value: | + | $0 | |
| (+) Improvement Non-Homesite Value: | + | $364,310 | |
| (+) Land Homesite Value: | + | $0 | |
| (+) Land Non-Homesite Value: | + | $128,580 | |
| (+) Curr Use (HS): | + | $0 | $0 |
| (+) Curr Use (NHS): | + | $0 | $0 |
| | | -------------------------- | |
| (=) Market Value: | = | $492,890 | |
| (–) Productivity Loss: | – | $0 | |
| | | -------------------------- | |
| (=) Subtotal: | = | $492,890 | |
| (+) Senior Appraised Value: | + | $0 | |
| (+) Non-Senior Appraised Value: | + | $492,890 | |
| | | -------------------------- | |
| (=) Total Appraised Value: | = | $492,890 | |
| (–) Senior Exemption Loss: | – | $0 | |
| (–) Exemption Loss: | – | $0 | |
| | | -------------------------- | |
| (=) Taxable Value: | = | $492,890 | |
Taxing Jurisdiction
| Owner: | BOBROW-STAIN KATE | | |
| % Ownership: | 100.0000000000% | | |
| Total Value: | $492,890 | | |
| Tax Area: | 15 - WW City Annex |
| CERFD | CURRENT EXPENSE REFUND 010 | 0.0000000000 | $492,890 | $492,890 | $0.00 | | |
| CURREXP | CURRENT EXPENSE 010 | 1.0175366760 | $492,890 | $492,890 | $501.53 | | |
| HUMNSERV | HUMAN SERVICES 119 | 0.0250000000 | $492,890 | $492,890 | $12.32 | | |
| SLDREL | SOLDIERS RELIEF 121 | 0.0155990005 | $492,890 | $492,890 | $7.69 | | |
| EMERGSER | EMS 147 | 0.3792580840 | $492,890 | $492,890 | $186.93 | | |
| EMSRFD | EMS REFUND 147 | 0.0000000000 | $492,890 | $492,890 | $0.00 | | |
| PORTRFD | PORT REFUND 640 | 0.0000000000 | $492,890 | $492,890 | $0.00 | | |
| PORTWWGEN | PORT OF WW 640 | 0.2460186015 | $492,890 | $492,890 | $121.26 | | |
| SD140BOND | SD #140 BOND 764 | 0.8342371393 | $492,890 | $492,890 | $411.19 | | |
| SD140GEN | SD #140 GENERAL 760 | 2.0646500647 | $492,890 | $492,890 | $1,017.65 | | |
| ST2 | STATE SCHOOL PART 2 600 | 0.8131451643 | $492,890 | $492,890 | $400.79 | | |
| STATESCHL | STATE SCHOOL 600 | 1.5158548041 | $492,890 | $492,890 | $747.15 | | |
| STREFUND | STATE REFUND LEVY 603 | 0.0000000000 | $492,890 | $492,890 | $0.00 | | |
| CWWBOND | C OF WW BOND 643 | 0.2760494372 | $492,890 | $492,890 | $136.06 | | |
| CWWGEN | CITY OF WW 631 | 1.6100204973 | $492,890 | $492,890 | $793.56 | | |
| CWWRFD | CITY OF WALLA WALLA REFUND 631 | 0.0000000000 | $492,890 | $492,890 | $0.00 | | |
| | Total Tax Rate: | 8.7973694689 | | | | | |
| | | | | Taxes w/Current Exemptions: | $4,336.13 | | |
| | | | | Taxes w/o Exemptions: | $4,336.13 | | |
Improvement / Building
| Improvement #1: | RESIDENTIAL | State Code: | 11 | 2150.0 sqft | Value: | $364,310 |
| Exterior Wall: | SIDING | Foundation: | SLAB FOUNDATION | | Heating/Cooling: | WARM & COOLED AIR | Number of Bathrooms: | 2 | | Number of Bedrooms: | 3 | Plumbing: | 9 | | Roof Covering: | COMP SHINGLE |   |   |
|
| | Type | Description | Class CD | Sub Class CD | Year Built | Area |
| | MA | Main Area | 1 | 35 | 1948 | 2150.0 |
| | SI1 | SITE IMPROVEMENT | 1 | 35 | 1948 | 2.5 |
| | S1F | Single One Story Fireplace | 1 | 35 | 1948 | 1.0 |
| | RPC | OPEN PORCH W/ROOF , CEILED | 1 | 35 | 1948 | 42.0 |
| | CPC | COVERED CARPORT/PATIO | 1 | 35 | 1948 | 154.0 |
| | WOD | Wood Deck | 1 | 35 | 1948 | 379.0 |
| | RESTOOL | RESIDENTIAL TOOL SHED | 1 | 35 | 1948 | 88.0 |
| | DTG | Detached Garage | 1 | 35 | 1948 | 726.0 |
| | GIF | GARAGE INTERIOR FINISH | 11 | 35 | 2015 | 484.0 |
Sketch
Property Image
Land
| 1 | RES 1 | Converted: Residential | 0.4815 | 20975.00 | 0.00 | 0.00 | 1.00 | $128,580 | $0 |
Roll Value History
| 2026 | N/A | N/A | N/A | N/A | N/A |
| 2025 | $350,600 | $151,440 | $0 | $502,040 | $502,040 |
| 2024 | $364,310 | $128,580 | $0 | $492,890 | $492,890 |
| 2023 | $364,310 | $128,580 | $0 | $492,890 | $492,890 |
| 2022 | $364,310 | $105,090 | $0 | $469,400 | $469,400 |
| 2021 | $364,310 | $105,090 | $0 | $469,400 | $469,400 |
| 2020 | $235,040 | $105,090 | $0 | $340,130 | $340,130 |
| 2019 | $235,040 | $105,090 | $0 | $340,130 | $340,130 |
| 2018 | $254,990 | $56,500 | $0 | $311,490 | $311,490 |
| 2017 | $254,990 | $56,500 | $0 | $311,490 | $311,490 |
| 2016 | $228,470 | $56,500 | $0 | $284,970 | $284,970 |
| 2015 | $207,700 | $56,500 | $0 | $264,200 | $264,200 |
| 2014 | $207,700 | $56,500 | $0 | $264,200 | $264,200 |
| 2013 | $207,700 | $56,500 | $0 | $264,200 | $264,200 |
| 2012 | $212,700 | $56,500 | $0 | $0 | $0 |
| 2011 | $212,700 | $56,500 | $0 | $0 | $0 |
| 2010 | $212,700 | $56,500 | $0 | $0 | $0 |
| 2009 | $242,600 | $56,500 | $0 | $0 | $0 |
| 2008 | $242,600 | $56,500 | $0 | $0 | $0 |
| 2007 | $162,400 | $34,000 | $0 | $0 | $0 |
Deed and Sales History
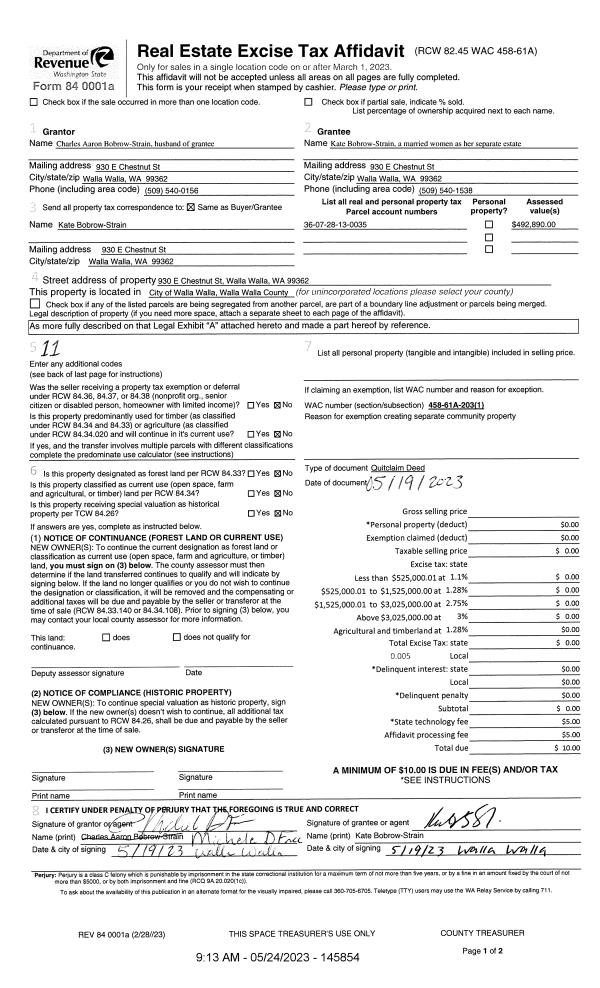
| 1 | 06/07/2023 | QCD | QUIT CLAIM DEED | BOBROW-STRAIN CHARLES AARON & KATE | BOBROW-STRAIN KATE | | | $0.00 | 145929 | 2023-03099 |
| 2 | 05/24/2023 | QCD | QUIT CLAIM DEED | BOBROW-STRAIN CHARLES AARON & KATE | BOBROW-STAIN KATE | | | $0.00 | 145854 | 2023-02780 |
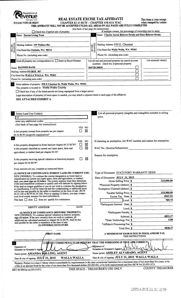
| 3 | 07/31/2015 | SWD | STATUTORY WARRANTY DEED | STORMS LIVING TRUST | BOBROW-STRAIN CHARLES AARON & KATE | | | $315,900.00 | 128514 | 2015-06598 |
| 4 | 01/31/1997 | WARRANTY D | WARRANTY DEED | | | | | $181,000.00 | 87608 | 2489-700892 |
Payout Agreement
| No payout information available.. |