Property
Account |
| Property ID: | 9436 | Abbreviated Legal Description: | 28-7-36 TAX 5C |
| Parcel Number: | 360728120006 | Agent Code: | |
| Type: | Real | | |
| Tax Area: | 1 - OL-140-F | Land Use Code | 11 |
| Open Space: | N | DFL | N |
| Historic Property: | N | Remodel Property: | N |
| Multi-Family Redevelopment: | N | | |
| Township: | 7 | Section: | 28 |
| Range: | 36 |
Location |
| Address: | 941 PLEASANT ST WA 99362 | Mapsco: | |
| Neighborhood: | G Res | Map ID: | |
| Neighborhood CD: | 614011 |
Owner |
| Name: | DUNCAN CHRISTOPHER R | Owner ID: | 54949 |
| Mailing Address: | REBECCA C O'CONNOR 941 PLEASANT ST WALLA WALLA, WA 99362 | % Ownership: | 100.0000000000% |
| | | Exemptions: | |
Taxes and Assessment Details
Property Tax Information as of
02/21/2026
Click on "Statement Details" to expand or collapse a tax statement.
* Please enter a valid date ** Please enter a valid date *
Statement Details |
| | TOTAL: | $0.00 | $0.00 | $0.00 | $0.00 | $0.00 | $0.00 |
|
| | $0.00 | $0.00 | $0.00 | $0.00 | $0.00 | $0.00 |
Values
| (+) Improvement Homesite Value: | + | $0 | |
| (+) Improvement Non-Homesite Value: | + | $330,910 | |
| (+) Land Homesite Value: | + | $0 | |
| (+) Land Non-Homesite Value: | + | $121,830 | |
| (+) Curr Use (HS): | + | $0 | $0 |
| (+) Curr Use (NHS): | + | $0 | $0 |
| | | -------------------------- | |
| (=) Market Value: | = | $452,740 | |
| (–) Productivity Loss: | – | $0 | |
| | | -------------------------- | |
| (=) Subtotal: | = | $452,740 | |
| (+) Senior Appraised Value: | + | $0 | |
| (+) Non-Senior Appraised Value: | + | $452,740 | |
| | | -------------------------- | |
| (=) Total Appraised Value: | = | $452,740 | |
| (–) Senior Exemption Loss: | – | $0 | |
| (–) Exemption Loss: | – | $0 | |
| | | -------------------------- | |
| (=) Taxable Value: | = | $452,740 | |
Taxing Jurisdiction
| Owner: | DUNCAN CHRISTOPHER R | | |
| % Ownership: | 100.0000000000% | | |
| Total Value: | $452,740 | | |
| Tax Area: | 1 - OL-140-F |
| CERFD | CURRENT EXPENSE REFUND 010 | 0.0000000000 | $452,740 | $452,740 | $0.00 | | |
| CURREXP | CURRENT EXPENSE 010 | 1.0175366760 | $452,740 | $452,740 | $460.68 | | |
| HUMNSERV | HUMAN SERVICES 119 | 0.0250000000 | $452,740 | $452,740 | $11.32 | | |
| SLDREL | SOLDIERS RELIEF 121 | 0.0155990005 | $452,740 | $452,740 | $7.06 | | |
| EMERGSER | EMS 147 | 0.3792580840 | $452,740 | $452,740 | $171.71 | | |
| EMSRFD | EMS REFUND 147 | 0.0000000000 | $452,740 | $452,740 | $0.00 | | |
| PORTRFD | PORT REFUND 640 | 0.0000000000 | $452,740 | $452,740 | $0.00 | | |
| PORTWWGEN | PORT OF WW 640 | 0.2460186015 | $452,740 | $452,740 | $111.38 | | |
| SD140BOND | SD #140 BOND 764 | 0.8342371393 | $452,740 | $452,740 | $377.69 | | |
| SD140GEN | SD #140 GENERAL 760 | 2.0646500647 | $452,740 | $452,740 | $934.75 | | |
| ST2 | STATE SCHOOL PART 2 600 | 0.8131451643 | $452,740 | $452,740 | $368.14 | | |
| STATESCHL | STATE SCHOOL 600 | 1.5158548041 | $452,740 | $452,740 | $686.29 | | |
| STREFUND | STATE REFUND LEVY 603 | 0.0000000000 | $452,740 | $452,740 | $0.00 | | |
| CWWBOND | C OF WW BOND 643 | 0.2760494372 | $452,740 | $452,740 | $124.98 | | |
| CWWGEN | CITY OF WW 631 | 1.6100204973 | $452,740 | $452,740 | $728.92 | | |
| CWWRFD | CITY OF WALLA WALLA REFUND 631 | 0.0000000000 | $452,740 | $452,740 | $0.00 | | |
| | Total Tax Rate: | 8.7973694689 | | | | | |
| | | | | Taxes w/Current Exemptions: | $3,982.92 | | |
| | | | | Taxes w/o Exemptions: | $3,982.92 | | |
Improvement / Building
| Improvement #1: | RESIDENTIAL | State Code: | 11 | 2475.0 sqft | Value: | $330,910 |
| Exterior Wall: | SIDING | Foundation: | SLAB FOUNDATION | | Heating/Cooling: | WARM & COOLED AIR | Number of Bathrooms: | 2 | | Number of Bedrooms: | 3 | Plumbing: | 9 | | Roof Covering: | COMP SHINGLE |   |   |
|
| | Type | Description | Class CD | Sub Class CD | Year Built | Area |
| | MA | Main Area | 4 | 30 | 1958 | 2475.0 |
| | UPFL | Upper Floor (included in main area) | 4 | 30 | 1958 | 633.0 |
| | SI1 | SITE IMPROVEMENT | 4 | 30 | 1958 | 1.5 |
| | S1F | Single One Story Fireplace | 4 | 30 | 1958 | 1.0 |
| | RPO | OPEN PORCH W/ROOF | 4 | 30 | 1958 | 68.0 |
| | TOOL | TOOL SHED | 4 | 30 | 1958 | 90.0 |
Sketch
Property Image
Land
| 1 | RES 1 | Converted: Residential | 0.3200 | 13939.00 | 0.00 | 0.00 | 1.00 | $121,830 | $0 |
Roll Value History
| 2026 | N/A | N/A | N/A | N/A | N/A |
| 2025 | $312,250 | $145,520 | $0 | $457,770 | $457,770 |
| 2024 | $330,910 | $121,830 | $0 | $452,740 | $452,740 |
| 2023 | $330,910 | $121,830 | $0 | $452,740 | $452,740 |
| 2022 | $330,910 | $100,360 | $0 | $431,270 | $431,270 |
| 2021 | $275,760 | $100,360 | $0 | $376,120 | $376,120 |
| 2020 | $183,840 | $100,360 | $0 | $284,200 | $284,200 |
| 2019 | $183,840 | $100,360 | $0 | $284,200 | $284,200 |
| 2018 | $221,110 | $50,500 | $0 | $271,610 | $271,610 |
| 2017 | $210,580 | $50,500 | $0 | $261,080 | $261,080 |
| 2016 | $210,580 | $50,500 | $0 | $261,080 | $261,080 |
| 2015 | $200,550 | $50,500 | $0 | $251,050 | $251,050 |
| 2014 | $114,600 | $50,500 | $0 | $165,100 | $165,100 |
| 2013 | $114,600 | $50,500 | $0 | $165,100 | $165,100 |
| 2012 | $101,200 | $50,500 | $0 | $0 | $0 |
| 2011 | $101,200 | $50,500 | $0 | $0 | $0 |
| 2010 | $101,200 | $50,500 | $0 | $0 | $0 |
| 2009 | $118,000 | $50,500 | $0 | $0 | $0 |
| 2008 | $118,000 | $50,500 | $0 | $0 | $0 |
| 2007 | $90,100 | $28,000 | $0 | $0 | $0 |
Deed and Sales History
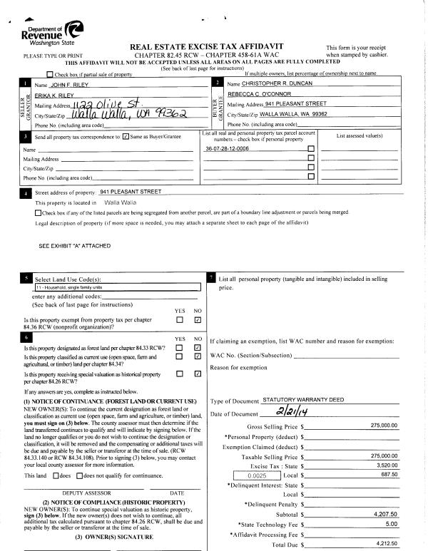
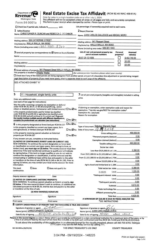
| 1 | 09/19/2024 | SWD | STATUTORY WARRANTY DEED | DUNCAN CHRISTOPHER R | GALLEGOS JUAN CARLOS | | | $490,000.00 | 148225 | 2024-05374 |
| 2 | 02/21/2014 | SWD | STATUTORY WARRANTY DEED | RILEY JOHN F & ERIKA K | DUNCAN CHRISTOPHER R | | | $275,000.00 | 125462 | 2014-01280 |
| 3 | 04/14/1998 | WARRANTY D | WARRANTY DEED | | | | | $112,000.00 | 90215 | 2659-803999 |
Payout Agreement
| No payout information available.. |