Property
Account |
| Property ID: | 9431 | Abbreviated Legal Description: | 28-7-36 TAX 188 |
| Parcel Number: | 360728110114 | Agent Code: | |
| Type: | Real | | |
| Tax Area: | 1 - OL-140-F | Land Use Code | 11 |
| Open Space: | N | DFL | N |
| Historic Property: | N | Remodel Property: | N |
| Multi-Family Redevelopment: | N | | |
| Township: | 7 | Section: | 28 |
| Range: | 36 |
Location |
| Address: | 820 STURM AVE WA 99362 | Mapsco: | |
| Neighborhood: | G Res | Map ID: | |
| Neighborhood CD: | 614011 |
Owner |
| Name: | TICE BENJAMIN J & KRISTINA A | Owner ID: | 45814 |
| Mailing Address: | 820 STURM AVE WALLA WALLA, WA 99362 | % Ownership: | 100.0000000000% |
| | | Exemptions: | |
Taxes and Assessment Details
Property Tax Information as of
02/21/2026
Click on "Statement Details" to expand or collapse a tax statement.
* Please enter a valid date ** Please enter a valid date *
Statement Details |
| | TOTAL: | $0.00 | $0.00 | $0.00 | $0.00 | $0.00 | $0.00 |
|
| | $0.00 | $0.00 | $0.00 | $0.00 | $0.00 | $0.00 |
Values
| (+) Improvement Homesite Value: | + | $0 | |
| (+) Improvement Non-Homesite Value: | + | $360,050 | |
| (+) Land Homesite Value: | + | $0 | |
| (+) Land Non-Homesite Value: | + | $104,540 | |
| (+) Curr Use (HS): | + | $0 | $0 |
| (+) Curr Use (NHS): | + | $0 | $0 |
| | | -------------------------- | |
| (=) Market Value: | = | $464,590 | |
| (–) Productivity Loss: | – | $0 | |
| | | -------------------------- | |
| (=) Subtotal: | = | $464,590 | |
| (+) Senior Appraised Value: | + | $0 | |
| (+) Non-Senior Appraised Value: | + | $464,590 | |
| | | -------------------------- | |
| (=) Total Appraised Value: | = | $464,590 | |
| (–) Senior Exemption Loss: | – | $0 | |
| (–) Exemption Loss: | – | $0 | |
| | | -------------------------- | |
| (=) Taxable Value: | = | $464,590 | |
Taxing Jurisdiction
| Owner: | TICE BENJAMIN J & KRISTINA A | | |
| % Ownership: | 100.0000000000% | | |
| Total Value: | $464,590 | | |
| Tax Area: | 1 - OL-140-F |
| CERFD | CURRENT EXPENSE REFUND 010 | 0.0000000000 | $464,590 | $464,590 | $0.00 | | |
| CURREXP | CURRENT EXPENSE 010 | 1.0175366760 | $464,590 | $464,590 | $472.74 | | |
| HUMNSERV | HUMAN SERVICES 119 | 0.0250000000 | $464,590 | $464,590 | $11.61 | | |
| SLDREL | SOLDIERS RELIEF 121 | 0.0155990005 | $464,590 | $464,590 | $7.25 | | |
| EMERGSER | EMS 147 | 0.3792580840 | $464,590 | $464,590 | $176.20 | | |
| EMSRFD | EMS REFUND 147 | 0.0000000000 | $464,590 | $464,590 | $0.00 | | |
| PORTRFD | PORT REFUND 640 | 0.0000000000 | $464,590 | $464,590 | $0.00 | | |
| PORTWWGEN | PORT OF WW 640 | 0.2460186015 | $464,590 | $464,590 | $114.30 | | |
| SD140BOND | SD #140 BOND 764 | 0.8342371393 | $464,590 | $464,590 | $387.58 | | |
| SD140GEN | SD #140 GENERAL 760 | 2.0646500647 | $464,590 | $464,590 | $959.22 | | |
| ST2 | STATE SCHOOL PART 2 600 | 0.8131451643 | $464,590 | $464,590 | $377.78 | | |
| STATESCHL | STATE SCHOOL 600 | 1.5158548041 | $464,590 | $464,590 | $704.25 | | |
| STREFUND | STATE REFUND LEVY 603 | 0.0000000000 | $464,590 | $464,590 | $0.00 | | |
| CWWBOND | C OF WW BOND 643 | 0.2760494372 | $464,590 | $464,590 | $128.25 | | |
| CWWGEN | CITY OF WW 631 | 1.6100204973 | $464,590 | $464,590 | $748.00 | | |
| CWWRFD | CITY OF WALLA WALLA REFUND 631 | 0.0000000000 | $464,590 | $464,590 | $0.00 | | |
| | Total Tax Rate: | 8.7973694689 | | | | | |
| | | | | Taxes w/Current Exemptions: | $4,087.18 | | |
| | | | | Taxes w/o Exemptions: | $4,087.18 | | |
Improvement / Building
| Improvement #1: | RESIDENTIAL | State Code: | 11 | 2418.0 sqft | Value: | $360,050 |
| Exterior Wall: | PLYWOOD | Foundation: | SLAB FOUNDATION | | Heating/Cooling: | WARM & COOLED AIR | Number of Bathrooms: | 3 | | Number of Bedrooms: | 4 | Plumbing: | 12 | | Roof Covering: | COMP SHINGLE |   |   |
|
| | Type | Description | Class CD | Sub Class CD | Year Built | Area |
| | MA | Main Area | 3 | 30 | 1974 | 2418.0 |
| | UPFL | Upper Floor (included in main area) | 3 | 30 | 1974 | 806.0 |
| | SI1 | SITE IMPROVEMENT | 3 | 30 | 1974 | 2.5 |
| | BASE | BASEMENT | 3 | 30 | 1974 | 621.0 |
| | S1F | Single One Story Fireplace | 3 | 30 | 1974 | 1.0 |
| | RPC | OPEN PORCH W/ROOF , CEILED | 3 | 30 | 1974 | 150.0 |
| | WDR | WOOD DECK W/ROOF | 3 | 30 | 1974 | 360.0 |
| | ATG | Attached Garage | 3 | 30 | 1974 | 528.0 |
Sketch
Property Image
Land
| 1 | RES 1 | Converted: Residential | 0.2400 | 10454.00 | 0.00 | 0.00 | 1.00 | $104,540 | $0 |
Roll Value History
| 2026 | N/A | N/A | N/A | N/A | N/A |
| 2025 | $376,450 | $125,450 | $0 | $501,900 | $501,900 |
| 2024 | $360,050 | $104,540 | $0 | $464,590 | $464,590 |
| 2023 | $360,050 | $104,540 | $0 | $464,590 | $464,590 |
| 2022 | $360,050 | $86,250 | $0 | $446,300 | $446,300 |
| 2021 | $276,960 | $86,250 | $0 | $363,210 | $363,210 |
| 2020 | $184,640 | $86,250 | $0 | $270,890 | $270,890 |
| 2019 | $184,640 | $86,250 | $0 | $270,890 | $270,890 |
| 2018 | $200,990 | $47,500 | $0 | $248,490 | $248,490 |
| 2017 | $200,990 | $47,500 | $0 | $248,490 | $248,490 |
| 2016 | $191,420 | $47,500 | $0 | $238,920 | $238,920 |
| 2015 | $182,300 | $47,500 | $0 | $229,800 | $229,800 |
| 2014 | $182,300 | $47,500 | $0 | $229,800 | $229,800 |
| 2013 | $182,300 | $47,500 | $0 | $229,800 | $229,800 |
| 2012 | $177,400 | $47,500 | $0 | $0 | $0 |
| 2011 | $177,400 | $47,500 | $0 | $0 | $0 |
| 2010 | $177,400 | $47,500 | $0 | $0 | $0 |
| 2009 | $202,400 | $47,500 | $0 | $0 | $0 |
| 2008 | $202,400 | $47,500 | $0 | $0 | $0 |
| 2007 | $175,200 | $25,000 | $0 | $0 | $0 |
Deed and Sales History
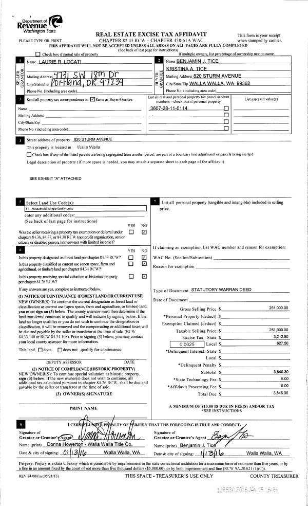
| 1 | 01/15/2016 | SWD | STATUTORY WARRANTY DEED | WUTHRICH LAURIE R | TICE BENJAMIN J & KRISTINA A | | | $251,000.00 | 129530 | 2016-00350 |
| 2 | 07/31/2013 | WARRANTY D | WARRANTY DEED | MC QUARRIE, GALEN & MARILEE | WUTHRICH, LAURIE R | | | $225,000.00 | 124370 | 2013-07753 |
| 3 | 08/03/1989 | WARRANTY D | WARRANTY DEED | | | | | $96,000.00 | 0 | 1778-904896 |
Payout Agreement
| No payout information available.. |