Property
Account |
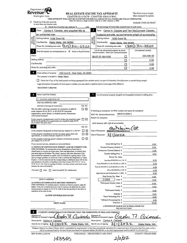
| Property ID: | 9392 | Abbreviated Legal Description: | EAST WALLA WALLA ROBERTS LOT 5 & E 25' OF LOT 6 BLK 1 |
| Parcel Number: | 360727590105 | Agent Code: | |
| Type: | Real | | |
| Tax Area: | 105 - 140-F-4 | Land Use Code | 11 |
| Open Space: | N | DFL | N |
| Historic Property: | N | Remodel Property: | N |
| Multi-Family Redevelopment: | N | | |
| Township: | 7 | Section: | 27 |
| Range: | 36 |
Location |
| Address: | 1438 GRANT ST WA 99362 | Mapsco: | |
| Neighborhood: | A Res | Map ID: | |
| Neighborhood CD: | 613011 |
Owner |
| Name: | CAICEDO CARLOS A & TERRI MC CORMACK | Owner ID: | 71061 |
| Mailing Address: | 1438 GRANT ST WALLA WALLA, WA 99362 | % Ownership: | 100.0000000000% |
| | | Exemptions: | |
Taxes and Assessment Details
Property Tax Information as of
02/21/2026
Click on "Statement Details" to expand or collapse a tax statement.
* Please enter a valid date ** Please enter a valid date *
Statement Details |
| | TOTAL: | $0.00 | $0.00 | $0.00 | $0.00 | $0.00 | $0.00 |
|
| | $0.00 | $0.00 | $0.00 | $0.00 | $0.00 | $0.00 |
Values
| (+) Improvement Homesite Value: | + | $0 | |
| (+) Improvement Non-Homesite Value: | + | $208,590 | |
| (+) Land Homesite Value: | + | $0 | |
| (+) Land Non-Homesite Value: | + | $89,100 | |
| (+) Curr Use (HS): | + | $0 | $0 |
| (+) Curr Use (NHS): | + | $0 | $0 |
| | | -------------------------- | |
| (=) Market Value: | = | $297,690 | |
| (–) Productivity Loss: | – | $0 | |
| | | -------------------------- | |
| (=) Subtotal: | = | $297,690 | |
| (+) Senior Appraised Value: | + | $0 | |
| (+) Non-Senior Appraised Value: | + | $297,690 | |
| | | -------------------------- | |
| (=) Total Appraised Value: | = | $297,690 | |
| (–) Senior Exemption Loss: | – | $0 | |
| (–) Exemption Loss: | – | $0 | |
| | | -------------------------- | |
| (=) Taxable Value: | = | $297,690 | |
Taxing Jurisdiction
| Owner: | CAICEDO CARLOS A & TERRI MC CORMACK | | |
| % Ownership: | 100.0000000000% | | |
| Total Value: | $297,690 | | |
| Tax Area: | 105 - 140-F-4 |
| CERFD | CURRENT EXPENSE REFUND 010 | 0.0000000000 | $297,690 | $297,690 | $0.00 | | |
| CURREXP | CURRENT EXPENSE 010 | 1.0175366760 | $297,690 | $297,690 | $302.91 | | |
| HUMNSERV | HUMAN SERVICES 119 | 0.0250000000 | $297,690 | $297,690 | $7.44 | | |
| SLDREL | SOLDIERS RELIEF 121 | 0.0155990005 | $297,690 | $297,690 | $4.64 | | |
| EMERGSER | EMS 147 | 0.3792580840 | $297,690 | $297,690 | $112.90 | | |
| EMSRFD | EMS REFUND 147 | 0.0000000000 | $297,690 | $297,690 | $0.00 | | |
| FD4EXP | FD #4 EXPENSE 686 | 0.8836993059 | $297,690 | $297,690 | $263.07 | | |
| RLBRFD | RURAL LIBRARY REFUND 623 | 0.0000000000 | $297,690 | $297,690 | $0.00 | | |
| RURALLIB | RURAL LIBRARY 623 | 0.3710609029 | $297,690 | $297,690 | $110.46 | | |
| PORTRFD | PORT REFUND 640 | 0.0000000000 | $297,690 | $297,690 | $0.00 | | |
| PORTWWGEN | PORT OF WW 640 | 0.2460186015 | $297,690 | $297,690 | $73.24 | | |
| SD140BOND | SD #140 BOND 764 | 0.8342371393 | $297,690 | $297,690 | $248.34 | | |
| SD140GEN | SD #140 GENERAL 760 | 2.0646500647 | $297,690 | $297,690 | $614.63 | | |
| ST2 | STATE SCHOOL PART 2 600 | 0.8131451643 | $297,690 | $297,690 | $242.07 | | |
| STATESCHL | STATE SCHOOL 600 | 1.5158548041 | $297,690 | $297,690 | $451.25 | | |
| STREFUND | STATE REFUND LEVY 603 | 0.0000000000 | $297,690 | $297,690 | $0.00 | | |
| COROAD | COUNTY ROAD 115 | 1.6549953990 | $297,690 | $297,690 | $492.68 | | |
| CRPRD | COUNTY ROAD REFUND 115 | 0.0000000000 | $297,690 | $297,690 | $0.00 | | |
| | Total Tax Rate: | 9.8210551422 | | | | | |
| | | | | Taxes w/Current Exemptions: | $2,923.63 | | |
| | | | | Taxes w/o Exemptions: | $2,923.63 | | |
Improvement / Building
| Improvement #1: | RESIDENTIAL | State Code: | 11 | 1036.0 sqft | Value: | $208,590 |
| Exterior Wall: | SIDING | Heating/Cooling: | BASEBOARD ELECTRIC | | Number of Bathrooms: | 2 | Number of Bedrooms: | 2 | | Plumbing: | 9 | Roof Covering: | COMP SHINGLE |
|
| | Type | Description | Class CD | Sub Class CD | Year Built | Area |
| | MA | Main Area | 1 | 20 | 1950 | 1036.0 |
| | SI1 | SITE IMPROVEMENT | 1 | 20 | 1950 | 1.0 |
| | BASE | BASEMENT | 1 | 20 | 1950 | 828.0 |
| | BMF | BASEMENT - MIN FINISH | 1 | 20 | 1950 | 828.0 |
| | S1F | Single One Story Fireplace | 1 | 20 | 1950 | 1.0 |
| | RPS | PORCH W/STEPS,ROOF | 1 | 20 | 1950 | 32.0 |
| | DTG | Detached Garage | 1 | 20 | 1950 | 440.0 |
Sketch
Property Image
Land
| 1 | RES 1 | Converted: Residential | 0.2273 | 9900.00 | 0.00 | 0.00 | 1.00 | $89,100 | $0 |
Roll Value History
| 2026 | N/A | N/A | N/A | N/A | N/A |
| 2025 | $200,970 | $108,900 | $0 | $309,870 | $309,870 |
| 2024 | $208,590 | $89,100 | $0 | $297,690 | $297,690 |
| 2023 | $208,590 | $89,100 | $0 | $297,690 | $297,690 |
| 2022 | $189,630 | $71,780 | $0 | $261,410 | $261,410 |
| 2021 | $151,700 | $71,780 | $0 | $223,480 | $223,480 |
| 2020 | $121,360 | $71,780 | $0 | $193,140 | $193,140 |
| 2019 | $121,360 | $71,780 | $0 | $193,140 | $193,140 |
| 2018 | $90,320 | $47,000 | $0 | $137,320 | $137,320 |
| 2017 | $90,320 | $47,000 | $0 | $137,320 | $137,320 |
| 2016 | $82,110 | $47,000 | $0 | $129,110 | $129,110 |
| 2015 | $82,110 | $47,000 | $0 | $129,110 | $129,110 |
| 2014 | $78,200 | $47,000 | $0 | $125,200 | $125,200 |
| 2013 | $78,200 | $47,000 | $0 | $125,200 | $125,200 |
| 2012 | $83,400 | $47,000 | $0 | $0 | $0 |
| 2011 | $83,400 | $47,000 | $0 | $0 | $0 |
| 2010 | $83,400 | $47,000 | $0 | $0 | $0 |
| 2009 | $97,900 | $47,000 | $0 | $0 | $0 |
| 2008 | $97,900 | $47,000 | $0 | $0 | $0 |
| 2007 | $62,600 | $24,500 | $0 | $0 | $0 |
Deed and Sales History
| 1 | 02/01/2022 | QCD | QUIT CLAIM DEED | CAICEDO CARLOS A | CAICEDO CARLOS A & TERRI MC CORMACK | | | $0.00 | 143345 | 2022-01027 |
| 2 | 04/30/2004 | WARRANTY D | WARRANTY DEED | JACOBSEN, JAMES A & CYNTHIA H | CAICEDO, CARLOS A | | | $135,000.00 | 104649 | 2004-04624 |
| 3 | 01/26/2000 | WARRANTY D | WARRANTY DEED | | | | | $83,000.00 | 94425 | 2940-000811 |
Payout Agreement
| No payout information available.. |