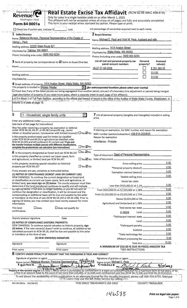
Property
Account |
| Property ID: | 9388 | Abbreviated Legal Description: | TULL PARK LOT 9 BLK 2 |
| Parcel Number: | 360727580209 | Agent Code: | |
| Type: | Real | | |
| Tax Area: | 105 - 140-F-4 | Land Use Code | 11 |
| Open Space: | N | DFL | N |
| Historic Property: | N | Remodel Property: | N |
| Multi-Family Redevelopment: | N | | |
| Township: | 7 | Section: | 27 |
| Range: | 36 |
Location |
| Address: | 1414 AVALON ST WA 99362 | Mapsco: | |
| Neighborhood: | A Res | Map ID: | |
| Neighborhood CD: | 613011 |
Owner |
| Name: | PECK VERNA L | Owner ID: | 68290 |
| Mailing Address: | 1414 AVALON WALLA WALLA, WA 99362 | % Ownership: | 100.0000000000% |
| | | Exemptions: | |
Taxes and Assessment Details
Values
| (+) Improvement Homesite Value: | + | $0 | |
| (+) Improvement Non-Homesite Value: | + | $355,030 | |
| (+) Land Homesite Value: | + | $0 | |
| (+) Land Non-Homesite Value: | + | $89,640 | |
| (+) Curr Use (HS): | + | $0 | $0 |
| (+) Curr Use (NHS): | + | $0 | $0 |
| | | -------------------------- | |
| (=) Market Value: | = | $444,670 | |
| (–) Productivity Loss: | – | $0 | |
| | | -------------------------- | |
| (=) Subtotal: | = | $444,670 | |
| (+) Senior Appraised Value: | + | $0 | |
| (+) Non-Senior Appraised Value: | + | $444,670 | |
| | | -------------------------- | |
| (=) Total Appraised Value: | = | $444,670 | |
| (–) Senior Exemption Loss: | – | $0 | |
| (–) Exemption Loss: | – | $0 | |
| | | -------------------------- | |
| (=) Taxable Value: | = | $444,670 | |
Taxing Jurisdiction
| Owner: | PECK VERNA L | | |
| % Ownership: | 100.0000000000% | | |
| Total Value: | $444,670 | | |
| Tax Area: | 105 - 140-F-4 |
| CERFD | CURRENT EXPENSE REFUND 010 | 0.0000000000 | $444,670 | $444,670 | $0.00 | | |
| CURREXP | CURRENT EXPENSE 010 | 1.0175366760 | $444,670 | $444,670 | $452.47 | | |
| HUMNSERV | HUMAN SERVICES 119 | 0.0250000000 | $444,670 | $444,670 | $11.12 | | |
| SLDREL | SOLDIERS RELIEF 121 | 0.0155990005 | $444,670 | $444,670 | $6.94 | | |
| EMERGSER | EMS 147 | 0.3792580840 | $444,670 | $444,670 | $168.64 | | |
| EMSRFD | EMS REFUND 147 | 0.0000000000 | $444,670 | $444,670 | $0.00 | | |
| FD4EXP | FD #4 EXPENSE 686 | 0.8836993059 | $444,670 | $444,670 | $392.95 | | |
| RLBRFD | RURAL LIBRARY REFUND 623 | 0.0000000000 | $444,670 | $444,670 | $0.00 | | |
| RURALLIB | RURAL LIBRARY 623 | 0.3710609029 | $444,670 | $444,670 | $165.00 | | |
| PORTRFD | PORT REFUND 640 | 0.0000000000 | $444,670 | $444,670 | $0.00 | | |
| PORTWWGEN | PORT OF WW 640 | 0.2460186015 | $444,670 | $444,670 | $109.40 | | |
| SD140BOND | SD #140 BOND 764 | 0.8342371393 | $444,670 | $444,670 | $370.96 | | |
| SD140GEN | SD #140 GENERAL 760 | 2.0646500647 | $444,670 | $444,670 | $918.09 | | |
| ST2 | STATE SCHOOL PART 2 600 | 0.8131451643 | $444,670 | $444,670 | $361.58 | | |
| STATESCHL | STATE SCHOOL 600 | 1.5158548041 | $444,670 | $444,670 | $674.06 | | |
| STREFUND | STATE REFUND LEVY 603 | 0.0000000000 | $444,670 | $444,670 | $0.00 | | |
| COROAD | COUNTY ROAD 115 | 1.6549953990 | $444,670 | $444,670 | $735.93 | | |
| CRPRD | COUNTY ROAD REFUND 115 | 0.0000000000 | $444,670 | $444,670 | $0.00 | | |
| | Total Tax Rate: | 9.8210551422 | | | | | |
| | | | | Taxes w/Current Exemptions: | $4,367.14 | | |
| | | | | Taxes w/o Exemptions: | $4,367.14 | | |
Improvement / Building
| Improvement #1: | RESIDENTIAL | State Code: | 11 | 1423.0 sqft | Value: | $355,030 |
| Exterior Wall: | PLYWOOD | Heating/Cooling: | WARM & COOLED AIR | | Number of Bathrooms: | 2 | Number of Bedrooms: | 3 | | Plumbing: | 9 | Roof Covering: | COMP SHINGLE |
|
| | Type | Description | Class CD | Sub Class CD | Year Built | Area |
| | MA | Main Area | 1 | 30 | 1972 | 1423.0 |
| | SI1 | SITE IMPROVEMENT | 1 | 30 | 1972 | 2.0 |
| | BASE | BASEMENT | 1 | 30 | 1972 | 1322.0 |
| | S1F | Single One Story Fireplace | 1 | 30 | 1972 | 1.0 |
| | RPO | OPEN PORCH W/ROOF | 1 | 30 | 1972 | 56.0 |
| | WOD | Wood Deck | 1 | 30 | 1972 | 152.0 |
| | ATG | Attached Garage | 1 | 30 | 1972 | 484.0 |
Sketch
Property Image
Land
| 1 | RES 1 | Converted: Residential | 0.2287 | 9960.00 | 0.00 | 0.00 | 1.00 | $89,640 | $0 |
Roll Value History
| 2026 | N/A | N/A | N/A | N/A | N/A |
| 2025 | $336,900 | $109,560 | $0 | $446,460 | $446,460 |
| 2024 | $355,030 | $89,640 | $0 | $444,670 | $444,670 |
| 2023 | $355,030 | $89,640 | $0 | $444,670 | $444,670 |
| 2022 | $295,860 | $72,210 | $0 | $368,070 | $368,070 |
| 2021 | $219,150 | $72,210 | $0 | $291,360 | $291,360 |
| 2020 | $168,580 | $72,210 | $0 | $240,790 | $240,790 |
| 2019 | $168,580 | $72,210 | $0 | $240,790 | $240,790 |
| 2018 | $161,660 | $47,100 | $0 | $208,760 | $208,760 |
| 2017 | $161,660 | $47,100 | $0 | $208,760 | $208,760 |
| 2016 | $134,720 | $47,100 | $0 | $181,820 | $181,820 |
| 2015 | $134,720 | $47,100 | $0 | $181,820 | $181,820 |
| 2014 | $128,300 | $47,100 | $0 | $175,400 | $175,400 |
| 2013 | $128,300 | $47,100 | $0 | $175,400 | $175,400 |
| 2012 | $134,400 | $47,100 | $0 | $0 | $0 |
| 2011 | $134,400 | $47,100 | $0 | $0 | $0 |
| 2010 | $125,800 | $47,100 | $0 | $0 | $0 |
| 2009 | $145,000 | $47,100 | $0 | $0 | $0 |
| 2008 | $145,000 | $47,100 | $0 | $0 | $0 |
| 2007 | $98,300 | $24,600 | $0 | $0 | $0 |
Deed and Sales History
| 1 | 09/27/2023 | DPR | DEED OF PERSONAL REPRESENTATIVE | PECK VERNA L | PECK MICHAEL E & VICKI M | | | | 146535 | 2023-05656 |
| 2 | 12/04/2020 | AFFIDAVIT | AFFIDAVIT | PECK DALE | PECK VERNA L | | | | 0 | 2020-12876 |
| 3 | 07/12/1974 | WARRANTY D | WARRANTY DEED | | | | | $33,900.00 | 0 | 1705-38342 |
Payout Agreement
| No payout information available.. |