Property
Account |
| Property ID: | 9378 | Abbreviated Legal Description: | TULL PARK LOT 6 BLK 1 |
| Parcel Number: | 360727580106 | Agent Code: | |
| Type: | Real | | |
| Tax Area: | 105 - 140-F-4 | Land Use Code | 11 |
| Open Space: | N | DFL | N |
| Historic Property: | N | Remodel Property: | N |
| Multi-Family Redevelopment: | N | | |
| Township: | 7 | Section: | 27 |
| Range: | 36 |
Location |
| Address: | 1420 TULL DR WA 99362 | Mapsco: | |
| Neighborhood: | A Res | Map ID: | |
| Neighborhood CD: | 613011 |
Owner |
| Name: | BARKER KYLE A | Owner ID: | 70962 |
| Mailing Address: | 1420 TULL DR WALLA WALLA, WA 99362 | % Ownership: | 100.0000000000% |
| | | Exemptions: | |
Taxes and Assessment Details
Property Tax Information as of
04/19/2026
Click on "Statement Details" to expand or collapse a tax statement.
* Please enter a valid date ** Please enter a valid date *
Statement Details |
| | TOTAL: | $0.00 | $0.00 | $0.00 | $0.00 | $0.00 | $0.00 |
|
| | $0.00 | $0.00 | $0.00 | $0.00 | $0.00 | $0.00 |
Values
| (+) Improvement Homesite Value: | + | $0 | |
| (+) Improvement Non-Homesite Value: | + | $276,310 | |
| (+) Land Homesite Value: | + | $0 | |
| (+) Land Non-Homesite Value: | + | $77,040 | |
| (+) Curr Use (HS): | + | $0 | $0 |
| (+) Curr Use (NHS): | + | $0 | $0 |
| | | -------------------------- | |
| (=) Market Value: | = | $353,350 | |
| (–) Productivity Loss: | – | $0 | |
| | | -------------------------- | |
| (=) Subtotal: | = | $353,350 | |
| (+) Senior Appraised Value: | + | $0 | |
| (+) Non-Senior Appraised Value: | + | $353,350 | |
| | | -------------------------- | |
| (=) Total Appraised Value: | = | $353,350 | |
| (–) Senior Exemption Loss: | – | $0 | |
| (–) Exemption Loss: | – | $0 | |
| | | -------------------------- | |
| (=) Taxable Value: | = | $353,350 | |
Taxing Jurisdiction
| Owner: | BARKER KYLE A | | |
| % Ownership: | 100.0000000000% | | |
| Total Value: | $353,350 | | |
| Tax Area: | 105 - 140-F-4 |
| CERFD | CURRENT EXPENSE REFUND 010 | 0.0000000000 | $353,350 | $353,350 | $0.00 | | |
| CURREXP | CURRENT EXPENSE 010 | 1.0175366760 | $353,350 | $353,350 | $359.55 | | |
| HUMNSERV | HUMAN SERVICES 119 | 0.0250000000 | $353,350 | $353,350 | $8.83 | | |
| SLDREL | SOLDIERS RELIEF 121 | 0.0155990005 | $353,350 | $353,350 | $5.51 | | |
| EMERGSER | EMS 147 | 0.3792580840 | $353,350 | $353,350 | $134.01 | | |
| EMSRFD | EMS REFUND 147 | 0.0000000000 | $353,350 | $353,350 | $0.00 | | |
| FD4EXP | FD #4 EXPENSE 686 | 0.8836993059 | $353,350 | $353,350 | $312.26 | | |
| RLBRFD | RURAL LIBRARY REFUND 623 | 0.0000000000 | $353,350 | $353,350 | $0.00 | | |
| RURALLIB | RURAL LIBRARY 623 | 0.3710609029 | $353,350 | $353,350 | $131.11 | | |
| PORTRFD | PORT REFUND 640 | 0.0000000000 | $353,350 | $353,350 | $0.00 | | |
| PORTWWGEN | PORT OF WW 640 | 0.2460186015 | $353,350 | $353,350 | $86.93 | | |
| SD140BOND | SD #140 BOND 764 | 0.8342371393 | $353,350 | $353,350 | $294.78 | | |
| SD140GEN | SD #140 GENERAL 760 | 2.0646500647 | $353,350 | $353,350 | $729.54 | | |
| ST2 | STATE SCHOOL PART 2 600 | 0.8131451643 | $353,350 | $353,350 | $287.32 | | |
| STATESCHL | STATE SCHOOL 600 | 1.5158548041 | $353,350 | $353,350 | $535.63 | | |
| STREFUND | STATE REFUND LEVY 603 | 0.0000000000 | $353,350 | $353,350 | $0.00 | | |
| COROAD | COUNTY ROAD 115 | 1.6549953990 | $353,350 | $353,350 | $584.79 | | |
| CRPRD | COUNTY ROAD REFUND 115 | 0.0000000000 | $353,350 | $353,350 | $0.00 | | |
| | Total Tax Rate: | 9.8210551422 | | | | | |
| | | | | Taxes w/Current Exemptions: | $3,470.26 | | |
| | | | | Taxes w/o Exemptions: | $3,470.26 | | |
Improvement / Building
| Improvement #1: | RESIDENTIAL | State Code: | 11 | 1100.0 sqft | Value: | $276,310 |
| Exterior Wall: | PLYWOOD | Heating/Cooling: | WARM & COOLED AIR | | Number of Bathrooms: | 2 | Number of Bedrooms: | 3 | | Plumbing: | 9 | Roof Covering: | COMP SHINGLE |
|
| | Type | Description | Class CD | Sub Class CD | Year Built | Area |
| | MA | Main Area | 1 | 30 | 1966 | 1100.0 |
| | SI1 | SITE IMPROVEMENT | 1 | 30 | 1966 | 1.5 |
| | BASE | BASEMENT | 1 | 30 | 1966 | 1100.0 |
| | BPF | BASEMENT -PARTITIONED FINISH | 1 | 30 | 1966 | 825.0 |
| | OSP | Open | 1 | 30 | 1966 | 20.0 |
| | CPC | COVERED CARPORT/PATIO | 1 | 30 | 1966 | 196.0 |
| | CPC | COVERED CARPORT/PATIO | 1 | 30 | 1966 | 378.0 |
| | ATG | Attached Garage | 1 | 30 | 1966 | 324.0 |
Sketch
Property Image
Land
| 1 | RES 1 | Converted: Residential | 0.1965 | 8560.00 | 0.00 | 0.00 | 1.00 | $77,040 | $0 |
Roll Value History
| 2026 | N/A | N/A | N/A | N/A | N/A |
| 2025 | $280,660 | $94,160 | $0 | $374,820 | $374,820 |
| 2024 | $276,310 | $77,040 | $0 | $353,350 | $353,350 |
| 2023 | $276,310 | $77,040 | $0 | $353,350 | $353,350 |
| 2022 | $251,190 | $62,060 | $0 | $313,250 | $313,250 |
| 2021 | $218,430 | $62,060 | $0 | $280,490 | $280,490 |
| 2020 | $168,020 | $62,060 | $0 | $230,080 | $230,080 |
| 2019 | $168,020 | $62,060 | $0 | $230,080 | $230,080 |
| 2018 | $148,700 | $45,900 | $0 | $194,600 | $194,600 |
| 2017 | $141,620 | $45,900 | $0 | $187,520 | $187,520 |
| 2016 | $134,880 | $45,900 | $0 | $180,780 | $180,780 |
| 2015 | $128,460 | $45,900 | $0 | $174,360 | $174,360 |
| 2014 | $111,700 | $45,900 | $0 | $157,600 | $157,600 |
| 2013 | $111,700 | $45,900 | $0 | $157,600 | $157,600 |
| 2012 | $111,700 | $45,900 | $0 | $0 | $0 |
| 2011 | $111,700 | $45,900 | $0 | $0 | $0 |
| 2010 | $111,700 | $45,900 | $0 | $0 | $0 |
| 2009 | $129,200 | $45,900 | $0 | $0 | $0 |
| 2008 | $129,200 | $45,900 | $0 | $0 | $0 |
| 2007 | $110,800 | $23,400 | $0 | $0 | $0 |
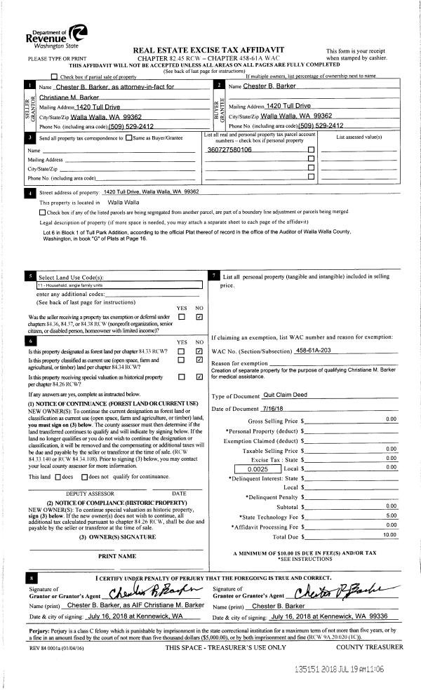
Deed and Sales History
| 1 | 01/10/2022 | SWD | STATUTORY WARRANTY DEED | BARKER CHESTER B ESTATE OF | BARKER KYLE A | | | $330,000.00 | 143217 | 2022-00313 |
| 2 | 07/16/2018 | QCD | QUIT CLAIM DEED | BARKER CHRISTIANE M | BARKER CHESTER B ESTATE OF | | | $0.00 | 135151 | 2018-05849 |
| 3 | 07/01/1965 | WARRANTY D | WARRANTY DEED | | | | | $17,500.00 | 0 | 3140-468571 |
Payout Agreement
| No payout information available.. |